Trollusia
2012-10-01 20:48:18
- #1
大家好!
我们(2个成年人和2个孩子)正在规划我们的独栋住宅!我想请大家给些反馈!
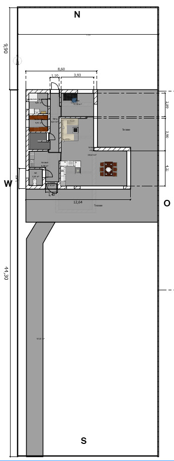
背景情况:我们有一块狭长的(17 x 55米)土地,呈南北向。马路在最南边。我们建房子时不设地下室。房子有两层,屋顶是平的!在靠近马路的地方会有一个未加热的储物棚。我附上了底层和平屋顶平面的设计图以及位置图。
有问题可以直接写信问!
感谢大家的反馈。
此致 敬礼 trollusia





我们(2个成年人和2个孩子)正在规划我们的独栋住宅!我想请大家给些反馈!
背景情况:我们有一块狭长的(17 x 55米)土地,呈南北向。马路在最南边。我们建房子时不设地下室。房子有两层,屋顶是平的!在靠近马路的地方会有一个未加热的储物棚。我附上了底层和平屋顶平面的设计图以及位置图。
有问题可以直接写信问!
感谢大家的反馈。
此致 敬礼 trollusia