独户住宅平面图,角地,山墙屋顶,走廊

  • Erstellt am 2015-04-27 14:31:34

Nadin

2015-04-27 14:31:34
  • #1
大家好,
我已经在这里看了很多,也看了平面图。我们现在也打算夏天开始建房,有现场的建筑商和相应的建筑师。这是我们的第一座房子,因为这是一项昂贵的事情,所以我们想把所有事情都做对。那么你们怎么看平面图?我们觉得阁楼的走廊太窄了,但也许我们错了。还有,如果有个洗衣管道就好了,但该放在哪里呢?
将会有两个儿童房(根据建筑局要求设为工作室)。
地块是一个514平方米的角地,地势平坦。必须是人字屋顶,我们的最高高度已经用满了。
我们是两名成年人和两个孩子(4岁和9岁)。地下室将作为爱好区,只预留了一个未来可能用的浴室准备。
我们对各种想法和建议都很感激。

此致,
娜丁
 

milkie

2015-04-27 14:51:14
  • #2
你好,
北方在哪里?
我缺少的是储藏室。至少在一楼,理想情况下二楼也有。
厨房看起来非常不舒适,如此大而且行走距离很长。必须同时规划好正确的厨房布局。
房门旁的楼梯入口这里已经被多次讨论和批评。
我突然想到的,有个平台楼梯在目前的衣帽区,衣帽区在当前的卫生间旁(可能带储藏室和卫生间靠近厨房)。
为什么餐厅和厨房的一侧(西侧?)没有窗户?
 

Legurit

2015-04-27 15:06:35
  • #3
层高!
 

Nadin

2015-04-27 15:55:24
  • #4
你好,
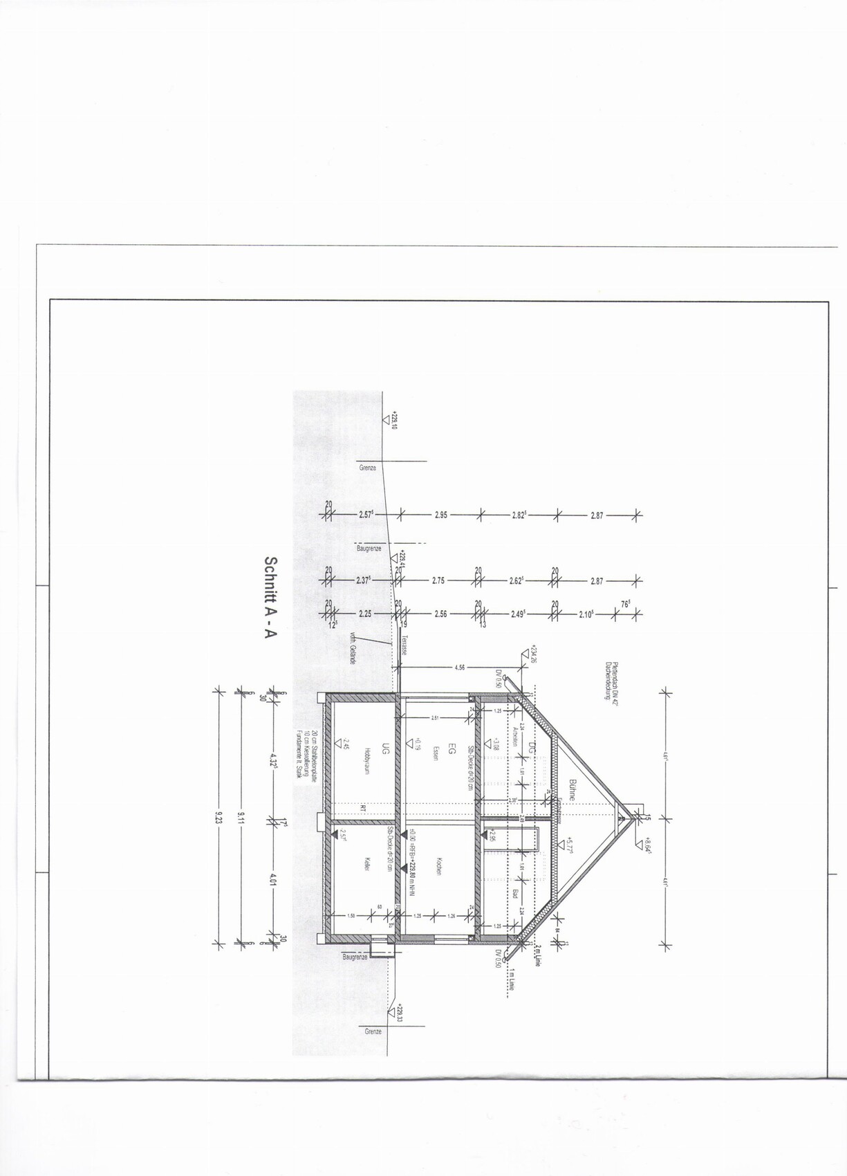
下面的地下室有两个储藏室。一边没有窗户,因为要放一个长2米的柜子。厨房的布局还没有确定。我们想故意留出更多空间,因为我们目前的厨房很窄,只有3.5米长,当厨房里有两个人以上的时候会觉得太小。底楼的层高是2.75米,上层是2.65米。不能更高,因为建设管理部门说:不可以,达到建筑限制。
祝好,纳丁
 

Wastl

2015-04-27 16:01:17
  • #5
如果你们在[EG]里在烟道旁边再画一个壁炉炉子,这一区域就会变得很紧凑。
 

Legurit

2015-04-27 16:31:19
  • #6
你的净空高度分别是251和238……至少后者你应该认真质疑。
 

类似主题
03.02.2017两层无地下室的独栋住宅 - 平面图 - 费用 - 可行性?24
08.02.2015独栋住宅平面图,约200平方米,无地下室 - 评估172
28.01.2015厨房、用餐、居住区划分的问题16
26.06.2015平面图问题,楼梯,窗户,方向12
17.11.2016最终平面图草稿 - 除了窗户35
11.02.2016窗户 / 门 / 衣柜13
27.04.2016地下室、一楼和平顶层的平面图设计12
26.06.2016180平方米平面图加地下室 - 12.40米 x 9.04米21
09.12.2016规划/独栋住宅平面图(约140平方米,地下室,一楼,阁楼)30
20.11.2016在北威州规划一栋195平方米带地下室和人字屋顶的独栋住宅13
17.10.2017独栋住宅建筑成本190平方米+地下室含客房28
10.11.2017建筑师设计的房屋平面图,两层带地下室18
20.12.2017户型图中有重大错误?厨房太小?39
07.05.2018无地下室的独栋住宅 - 平面图讨论19
19.05.2018新建独户住宅的平面图:窗户/门/内墙的大小和布局合适吗?20
03.06.2018大约8x11的半双拼住宅新建,平面图和窗户的评估35
07.09.2018位于北坡的160平方米木结构独栋住宅,带地下室100
15.09.2018北露台和南边的厨房?欢迎反馈37
28.07.2020160平方米的独栋住宅,带地下室,500平方米的地块108
14.10.2024单户住宅136平方米带车库和地下室的平面图17

Oben