Hallo zusammen,
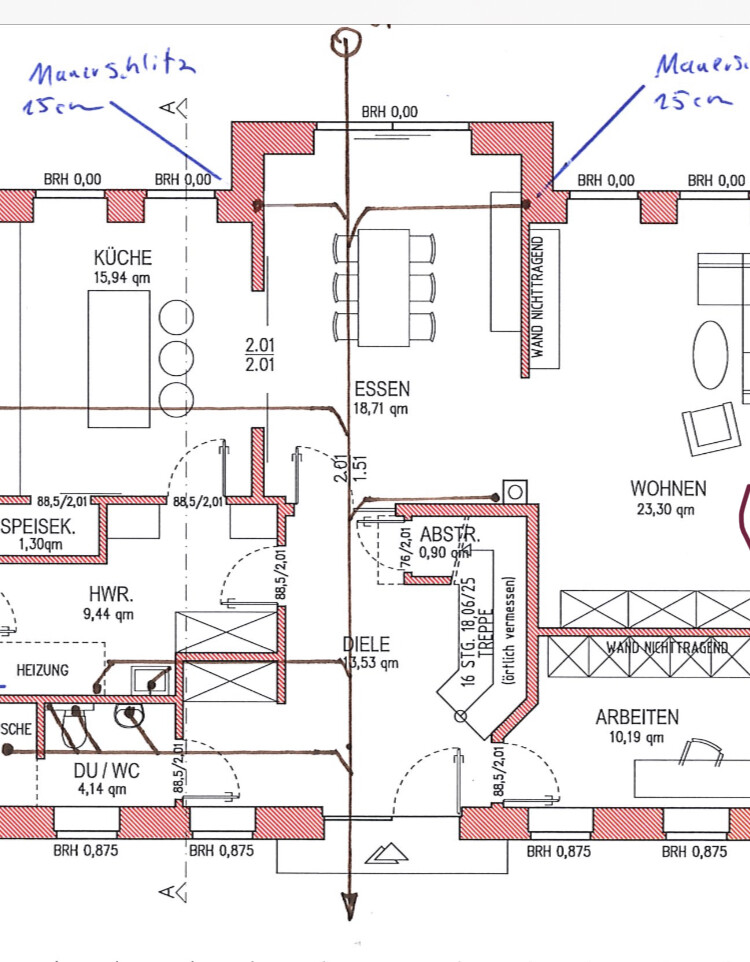
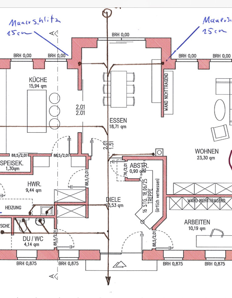
wir haben damals beim Bau eine Zuluft für einen Kamin in der Bodenplatte verlegen lassen. Der Rohrausgang ist neben dem Schornstein s. Bild im Wohnzimmer (nicht an Außenwand). Auf dem Leitungsplan s. Bild ist nun ein Rohr eingezeichnet welches nach draußen führt. Draußen befindet sich der Rohrausgang mit so einer Kappe. s. Bild.
Kann es sich dabei um das Zuluftrohr handeln?
viele Grüße



wir haben damals beim Bau eine Zuluft für einen Kamin in der Bodenplatte verlegen lassen. Der Rohrausgang ist neben dem Schornstein s. Bild im Wohnzimmer (nicht an Außenwand). Auf dem Leitungsplan s. Bild ist nun ein Rohr eingezeichnet welches nach draußen führt. Draußen befindet sich der Rohrausgang mit so einer Kappe. s. Bild.
Kann es sich dabei um das Zuluftrohr handeln?
viele Grüße
Vielen Dank für die Rückmeldung.
Es riecht schon nach Abwasser.
Wir fragen uns nur was für einen Sinn ein Abwasserrohr mitten im Wohnzimmer neben dem Schornstein zu suchen hat….
Lässt sich nun im Nachgang leider nicht mehr rekonstruieren wie das zustande gekommen sein könnte, weil eig. immer feststand, dass dort mal ein Kaminofen hin soll.
Es riecht schon nach Abwasser.
Wir fragen uns nur was für einen Sinn ein Abwasserrohr mitten im Wohnzimmer neben dem Schornstein zu suchen hat….
Lässt sich nun im Nachgang leider nicht mehr rekonstruieren wie das zustande gekommen sein könnte, weil eig. immer feststand, dass dort mal ein Kaminofen hin soll.
Wenn es im Wohnzimmer Abwasserrohre ist, den komischen Stopfen entfernen und eine Verschlusskappe drauf.
Im Außenbereich ebenfalls eine Verschlusskappe drauf, den braucht Mann immer wieder mal ( Zisterne leerpumpen, das Rohr durchspülen und bei Verstopfung reinigen, als Wohnmobilablass etc,)
Im Außenbereich ebenfalls eine Verschlusskappe drauf, den braucht Mann immer wieder mal ( Zisterne leerpumpen, das Rohr durchspülen und bei Verstopfung reinigen, als Wohnmobilablass etc,)
LeaLeoo schrieb:
Wir fragen uns nur was für einen Sinn ein Abwasserrohr mitten im Wohnzimmer neben dem Schornstein zu suchen hat….Vielleicht ist das ein Kondensatablauf?Ähnliche Themen