ᐅ Zentrale Wohnraumlüftung im KfW-55 Haus planen – Leitungen vom DG aus sinnvoll?
Erstellt am: 15.12.25 20:56
M
MaxMai25Guten Tag,
ich möchte hier keine komplette Planung ersetzen, da mir bewusst ist, dass das nicht funktionieren wird.
Allerdings kommt der Handwerker, der mir seit Wochen verspricht, sich das anzuschauen und mich bei Planung und Durchführung zu unterstützen nicht aus der Hocke.
Daher ist mein Ziel im Idealfall wenigstens die Leitungen vom DG mal vorzusehen, da wir ggf. die Baustelle dort dann halbwegs abschließen könnten.
Anlage, Kernbohrungen und Anschlüsse kann man ja dann ggf. noch später machen.
Von dort gibt es bereits je einen DN160 Anschluss für Frischluft durch die Fassade sowie Fortluft aus dem Dach.
Der Plan ist nicht unbedingt das vorhandene Lüftungskonzept zu erfüllen sondern bei den Gegebenheiten das bestmögliche herauszuholen ohne das halbe Haus aufzureißen/zu verkoffern.
Wir haben aktuell keine Lüftung und lüften daher mit klassischer Fensterlüftung und haben keine Probleme.
Wir hätten kein Problem weiter auch mit Fensterlüftung zu ergänzen, was wohl z.B. für Küche/WC im EG nicht anders gehen wird.
Langsame und damit geräuscharme Luftbewegung ist auch wichtiger als große Luftmengen.
Hier also meine Gedanken:
Vom Aufstellort der Anlage im DG kann im Trockenbau in der Decke folgendes erreicht werden:
Mein aktueller Plan:
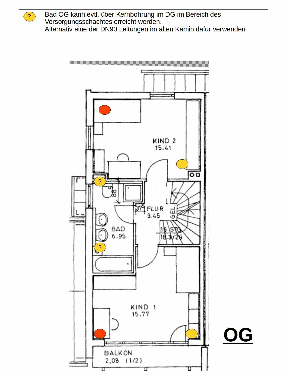
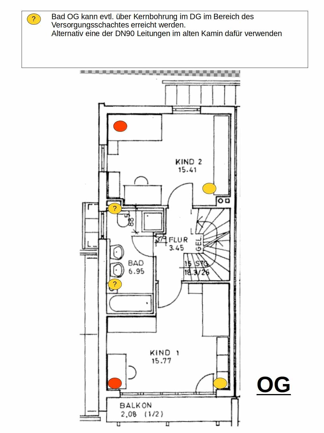
Im Anhang die von mir zusammengestellten Grundrisse mit den entsprechenden Markierungen (sorry für die miese Qualität).
Außerdem eine Liste mit den Leitungen, deren groben Längen und Luftmengen/Geschwindigkeiten.
Letzteres dient eher der Plausibilisierung und das würde ich ggf. gerne final jemanden machen lassen, der Ahnung hat und auch die Anlage einbauen und einstellen kann.
Fragen:
Ich freue mich über konstruktives Feedback.





ich möchte hier keine komplette Planung ersetzen, da mir bewusst ist, dass das nicht funktionieren wird.
Allerdings kommt der Handwerker, der mir seit Wochen verspricht, sich das anzuschauen und mich bei Planung und Durchführung zu unterstützen nicht aus der Hocke.
Daher ist mein Ziel im Idealfall wenigstens die Leitungen vom DG mal vorzusehen, da wir ggf. die Baustelle dort dann halbwegs abschließen könnten.
Anlage, Kernbohrungen und Anschlüsse kann man ja dann ggf. noch später machen.
- Es ist ein Reiheneckhaus saniert auf KfW Effizienzhaus 55.
- 4 Personen und knapp 120 qm Wohnfläche + knapp 40 qm im Keller, die ein sehr selten genutztes Gästezimmer mit Bad umfassen.
- Nur noch ungenutzte Kamine, die alle oben abgetragen wurden und damit keine Verbindung mehr nach außen haben.
- Keine Öfen, Feuerstellen etc.
Von dort gibt es bereits je einen DN160 Anschluss für Frischluft durch die Fassade sowie Fortluft aus dem Dach.
Der Plan ist nicht unbedingt das vorhandene Lüftungskonzept zu erfüllen sondern bei den Gegebenheiten das bestmögliche herauszuholen ohne das halbe Haus aufzureißen/zu verkoffern.
Wir haben aktuell keine Lüftung und lüften daher mit klassischer Fensterlüftung und haben keine Probleme.
Wir hätten kein Problem weiter auch mit Fensterlüftung zu ergänzen, was wohl z.B. für Küche/WC im EG nicht anders gehen wird.
Langsame und damit geräuscharme Luftbewegung ist auch wichtiger als große Luftmengen.
Hier also meine Gedanken:
Vom Aufstellort der Anlage im DG kann im Trockenbau in der Decke folgendes erreicht werden:
- Der Kniestock auf der gegenüberliegenden Seite des Dachs. Darunter liegt das Zimmer Süd OG.
- Das direkt unterhalb des Lagerraums liegende Zimmer Nord OG (Kernbbohrung).
- Der Kamin West (ungenutzt). Dieser hat ein Innenmaß von 200x200 mit Formsteinen.
- Der Wohnraum im DG durch den Trockenbau in der Decke.
- Das Treppenhaus im DG vor dem Wohnraum durch den Trockenbau.
Mein aktueller Plan:
- Den Raum im DG direkt anbinden mit 1x Zu- (und 1x Abluft?) an entgegengesetzten Enden des Raumes.
- Das Bad OG falls möglich über Kernbohrung in den Versorgungsschacht direkt aus dem OG anbinden.
- Den Kamin nutzen um 4x DN90 Flexrohr zu verlegen für...
- 1x Abluft Bad KG
- 1x Zuluft Hobby KG ODER falls 2. oben nicht klappt
- für 1x Abluft Bad OG
- 2x Zuluft Wohnzimmer EG (liegt am offenen Treppenhaus).
- Im offenen Treppenhaus oben im DG 1x (oder auch gleich 2x) Abluft. Hierdurch kann ich einen gewissen Kamineffekt vom Wohnzimmer EG bis unter das Dach erzeugen.
- Mit 2 Kernbohrungen zum Zimmer Nord OG: 1x Zu- und 1x Abluft an entgegengesetzten Enden des Raumes.
- Das selbe für das Zimmer Süd OG
- Falls möglich noch 1x Abluft durch den zweiten Kamin (Ost) evtl. ins WC EG. Es wird allerdings fast sicher max. DN75 sein im blödesten Fall auch unmöglich, da dort bereits Heizungsleitungen hindurch führen.
Im Anhang die von mir zusammengestellten Grundrisse mit den entsprechenden Markierungen (sorry für die miese Qualität).
Außerdem eine Liste mit den Leitungen, deren groben Längen und Luftmengen/Geschwindigkeiten.
Letzteres dient eher der Plausibilisierung und das würde ich ggf. gerne final jemanden machen lassen, der Ahnung hat und auch die Anlage einbauen und einstellen kann.
Fragen:
- Wie sinnvoll ist es, die genannten Räume doppelt anzubinden?
- Ich möchte insbesondere vermeiden die Türen der Räume alle mit Überstromöffnungen versehen zu müssen.
- Wie problematisch sind die genannten Kernbohrungen bzgl. Schall?
- Die Verzweigung von wahrscheinlich DN160 aus dem Gerät auf DN90 mit Mehrfachverteilern macht man dann direkt in der Nähe des Gerätes, oder?
- Die Kernbohrungen bei 6. und 7. mit 130 mm damit man ein DN125 Ventil direkt in der Decke einlassen kann das aber auch mit DN90er Leitung verbunden ist?
Ich freue mich über konstruktives Feedback.
Anzeige
Hallo MaxMai25,
schau mal hier: Zentrale Wohnraumlüftung im KfW-55 Haus planen – Leitungen vom DG aus sinnvoll?. Da wird jeder fündig!
schau mal hier: Zentrale Wohnraumlüftung im KfW-55 Haus planen – Leitungen vom DG aus sinnvoll?. Da wird jeder fündig!
Bei den Schlauchsystemen sollten diese mindestens 5m lang sein damit kein Schalldämpfer übertragen wird.
Normal wird der Kamin ganz entfernt, damit man dort ordentlich Platz hat.
Zu und Abluft in einem Raum ist ungewöhnlich.
Normalerweise erzeugt man im OG eher einen Überdruck und im EG einen Unterdruck. KG eher "neutral".
Schlafzimmer eher Richtung 60m^3/h.
Normal wird der Kamin ganz entfernt, damit man dort ordentlich Platz hat.
Zu und Abluft in einem Raum ist ungewöhnlich.
Normalerweise erzeugt man im OG eher einen Überdruck und im EG einen Unterdruck. KG eher "neutral".
Schlafzimmer eher Richtung 60m^3/h.
Ähnliche Themen