Wohnzimmer Grundrissplanungs-Ideen?

4,80 Stern(e) 4 Votes
Zuletzt aktualisiert 21.11.2025
Sie befinden sich auf der Seite 7 der Diskussion zum Thema: Wohnzimmer Grundrissplanungs-Ideen?
>> Zum 1. Beitrag <<

Bautraum2015

Bautraum2015

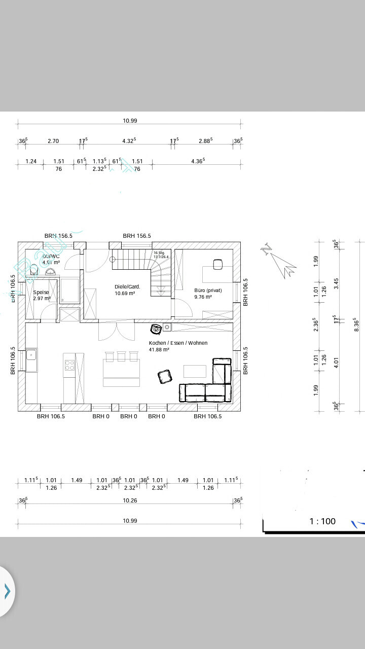
Sodala, hier Jetzt mal etwas professioneller als bisher. Meine Frage: bekomm ich da eine halbgewendelte Treppe unter?
Und übersehe ich was....ungute Ecken?

Grundriss: Offener Kochen/Essen/Wohnen-Bereich, Diele, Büro, Speise, WC.


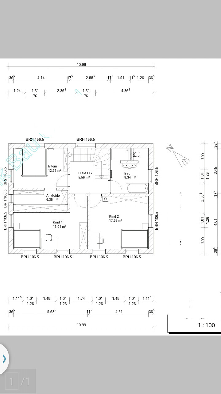
Dachgeschoss-Grundriss: Eltern, Kind 1, Kind 2, Ankleide, Diele OG, Bad, Treppenhaus, Maßangaben.
 
L

Legurit

Ankleide und K1 sind Schrott... verabschiedet euch von der Ankleide... ihr opfert das Kinderzimmer und habt dann eine Ankleide mit 60 cm Gang... (meine Meinung zumindest).
 
EveundGerd

EveundGerd

Ich würde jetzt einen Architekten zeichnen lassen. Die haben ein Auge dafür. Nimm Deinen Grundriss mit und erkläre ihm was Ihr als problematisch empfindet.
 
Zuletzt aktualisiert 21.11.2025
Im Forum Grundrissplanung / Grundstücksplanung gibt es 2535 Themen mit insgesamt 87978 Beiträgen


Ähnliche Themen zu Wohnzimmer Grundrissplanungs-Ideen?
Nr.ErgebnisBeiträge
1Grundrissplanung - Wie Schlafzimmers & Ankleide anordnen? 11
2Waschmaschine und Trockner in Ankleide? 16
3Pfiffige Schlafzimmer Idee mit Ankleide gesucht 19
4Durchbruch Bad und Ankleide ohne Türe? 12
5Grundriss Schlafzimmer, Ankleide und Bad en Suite - Seite 336
6Grundriss Schlafzimmer mit Bad und Ankleide 62

Oben