Hausbau - Ratgeber
Bauherrenhilfe
- Bauherrenhilfe vor Vertragsabschluss
-- Warum einen unabhängigen Baubetreuer?
-- Vertragsgrundlagen
-- Bausumme
-- Zahlungsplan zur Kostenkontrolle
-- Pflichten des Bauherren vor Vertragsabschluss
-- Unterlagen beim Hausbau vor Vertragsabschluss
- Bauherrenhilfe nach Vertragsabschluss
-- Bauantrag bei Behörden
-- Bau-Genehmigungsverfahren bei Baubehörden
-- Bauspezifische Versicherungen
-- Bauzeitenplan
-- Baubeginn - die Letzten Pflichten der Bauherrschaft
- Bauherrenhilfe während der Bauzeit
- Gewährleistungsansprüche
- Bauabnahme
Baufinanzierung
- Baufinanzierung - Allgemeine Fragen
- Kreditarten
- Kredit-Konditionen
- Bausparen
- Staatliche Förderungen
- Verkehrswert
- Haushaltsrechnung und Bonität
Hausbau Planung
- Haustypen
- Hausbau Vorbereitungsarbeiten
- Das Baugrundstück
- Baugrund beim Hausbau
- Baurecht
- Gebäudeschutz
- Erdarbeiten und Wasserhaltung
- Stützmauern
- Einfriedung
- Untergeschoss
- Kanalisation
- Tragende Elemente
- Nichttragende Innenwände
- Fundation / Fundament
- Deckenkonstruktionen
- Dächer
- Kaminanlagen
- Treppen Rampen Leitern
- Dachbeläge und Spengler
- Fenster
- Sonnen und Wetterschutz
- Aussenputze
- Einbauten, Küchen, Türen
- Bodenbeläge und Unterlagsböden
- Parkett
- Gips, Wand, Decke
Haustechnik und Energie
- Heiztechnik
- Lüftung und Klimatechnik
- Sanitärtechnik
- Elektrotechnik
- Erneuerbare Energie
Whirlpools / Jacuzzi
Hausbau Magazin
- Baufinanzierung trotz Krise?
- Das Blockhaus
- Moderne Dämmstoffe im Vergleich
- Erker Vor- und Nachteile
- Glasflächen beim Hausbau
- Günstig ein Haus Bauen
- Mediterraner Hausbaustil
- Mehrgenerationenhaus
- Moderne Architektur
- Gartengestaltung leicht gemacht
- Traditioneller Ziegelbau
- Villa als höchster Traum
- Im Eigenheim Ruhestand geniessen
- Altbau sanieren
- Kauf einer Holzgarage
- Immobilienmakler
- Arbeitshandschuhe für den Winter
- Zuhause verschönern
- Outdoor-Plissees
- Schlafzimmer planen
- Terrassenüberdachung
- Wohngebäudeversicherung
- Zaunarten und Eigenschaften
- Hauseingang gestalten
- Der perfekte Grundriss
- Sparsamer heizen im Altbau
- Einfamilienhaus smart finanzieren
- Planung einer PV-Anlage
- Neues Haus
- Immobilienfinanzierung
- Installation einer Photovoltaikanlage
- Asbest erkennen und entfernen
- Gartenpflege im Frühling – worauf achten
- Sauna im Fokus - Wellness zuhause
- Erfolgreich vermieten
- Die perfekte Winterbekleidung
- Das Niedrigenergiehaus
- Der April und seine Stürme
- Architektonische Vielfalt
- Ökologisch und nachhaltig bauen
- Das perfekte Schlafzimmer
- Nachhaltige Energieversorgung
- Zukunftsorientiert bauen
- Nachhaltigkeit beim Hausbau
- Tiny Houses
- Wärmepumpen als nachhaltige Heizvariante
- Maßgeschneiderten Kleiderschrank
- Der richtige Baukredit
- Ratgeber für erfolgreichen Hausbau
- Haus als Altersvorsorge
Do-it-yourself Anleitungen
- Verlegeanleitung für Bodenbeläge und Parkett
- Bodenbeläge und Parkett reinigen und pflegen
- Malerarbeiten am Haus
- Garten Tipps
- Umzug und Reinigung

ᐅ Wie würdet ihr den Zuweg bei seitlichem Hauseingang gestalten?

Erstellt am: 06.01.17 12:11
M
Momad
M
Momad
06.01.17 12:11
Hallo,

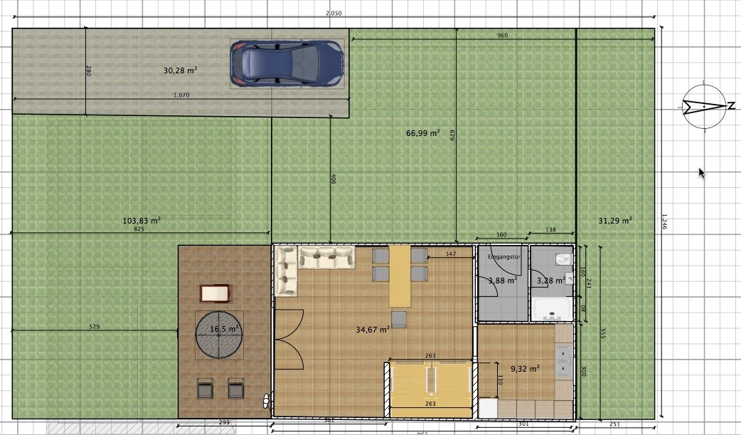
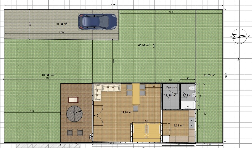
wie würdet ihr den Zugangsweg zur einer seitlichen Hauseingangstür hier optimal gestalten (Siehe bitte Anhang!)?
Ziel ist die maximal Garten/Grün Fläche zu erhalten, also zu wenig pflastern wie möglich.
Zu beachten daß seitlich auch einen Lichtschacht (Kellerwohnraum) kommen sollte.
Da wo das Auto steht könnte eventuell eine einzeln Garage kommen.
Über Anregungen/Vorschläge werde ich mich sehr freuen.

Vielen Dank

Grundrissplan eines Grundstücks mit Haus, Garten, Zufahrt und Carport
M
Momad
06.01.17 12:24
Nachtrag: es handelt sich hier um eine Doppelhaushälfte, nördlich und westlich grenzen Gärten der Nachbarn.
Y
ypg
06.01.17 12:35
Zufahrt ist von Süden?
M
Momad
06.01.17 12:40
Ja genau.. südlich ist eine Neubaugebiet Zufahrtstrasse.
Y
ypg
06.01.17 12:59
Westseite kommt ein Lichtschacht? Ein größerer? Welche Höhe ca?
Bekommt der Westen noch Fenster?
Gibt es noch Mitspracherecht zum Grundriss oder steht der bzw ist schon gebaut?
M
Momad
06.01.17 13:18
Also westlich ist eine 2m Breites Fenster noch.
Wohnraumkeller Fenster ist 1,8m breit und 1m hoch.
Zu den westlich liegenden Lichtschacht liegen mir noch keine Angaben, aber hier sollte nur das kleinste technisch zulässige Größe kommen.
Baubeginn könnte in ca. 4 bis 6 Wochen beginnen, Ein Grundriss Anpassungen wären glaube ich noch möglich.
Wie würdest du es denn gestalten:
A: Ohne Grundriss Anpassungen
B: Mit Grundriss Anpassungen
Danke!
lichtschachtfenster