Hausbau - Ratgeber
Bauherrenhilfe
- Bauherrenhilfe vor Vertragsabschluss
-- Warum einen unabhängigen Baubetreuer?
-- Vertragsgrundlagen
-- Bausumme
-- Zahlungsplan zur Kostenkontrolle
-- Pflichten des Bauherren vor Vertragsabschluss
-- Unterlagen beim Hausbau vor Vertragsabschluss
- Bauherrenhilfe nach Vertragsabschluss
-- Bauantrag bei Behörden
-- Bau-Genehmigungsverfahren bei Baubehörden
-- Bauspezifische Versicherungen
-- Bauzeitenplan
-- Baubeginn - die Letzten Pflichten der Bauherrschaft
- Bauherrenhilfe während der Bauzeit
- Gewährleistungsansprüche
- Bauabnahme
Baufinanzierung
- Baufinanzierung - Allgemeine Fragen
- Kreditarten
- Kredit-Konditionen
- Bausparen
- Staatliche Förderungen
- Verkehrswert
- Haushaltsrechnung und Bonität
Hausbau Planung
- Haustypen
- Hausbau Vorbereitungsarbeiten
- Das Baugrundstück
- Baugrund beim Hausbau
- Baurecht
- Gebäudeschutz
- Erdarbeiten und Wasserhaltung
- Stützmauern
- Einfriedung
- Untergeschoss
- Kanalisation
- Tragende Elemente
- Nichttragende Innenwände
- Fundation / Fundament
- Deckenkonstruktionen
- Dächer
- Kaminanlagen
- Treppen Rampen Leitern
- Dachbeläge und Spengler
- Fenster
- Sonnen und Wetterschutz
- Aussenputze
- Einbauten, Küchen, Türen
- Bodenbeläge und Unterlagsböden
- Parkett
- Gips, Wand, Decke
Haustechnik und Energie
- Heiztechnik
- Lüftung und Klimatechnik
- Sanitärtechnik
- Elektrotechnik
- Erneuerbare Energie
Whirlpools / Jacuzzi
Hausbau Magazin
- Baufinanzierung trotz Krise?
- Das Blockhaus
- Moderne Dämmstoffe im Vergleich
- Erker Vor- und Nachteile
- Glasflächen beim Hausbau
- Günstig ein Haus Bauen
- Mediterraner Hausbaustil
- Mehrgenerationenhaus
- Moderne Architektur
- Gartengestaltung leicht gemacht
- Traditioneller Ziegelbau
- Villa als höchster Traum
- Im Eigenheim Ruhestand geniessen
- Altbau sanieren
- Kauf einer Holzgarage
- Immobilienmakler
- Arbeitshandschuhe für den Winter
- Zuhause verschönern
- Outdoor-Plissees
- Schlafzimmer planen
- Terrassenüberdachung
- Wohngebäudeversicherung
- Girokonto für Bauherren finden
- Hauseingang gestalten
- Zaunarten und Eigenschaften
- Der perfekte Grundriss
- Sparsamer heizen im Altbau
- Einfamilienhaus smart finanzieren
- Planung einer PV-Anlage
- Neues Haus
- Immobilienfinanzierung
- Installation einer Photovoltaikanlage
- Asbest erkennen und entfernen
- Gartenpflege im Frühling – worauf achten
- Sauna im Fokus - Wellness zuhause
- Erfolgreich vermieten
- Die perfekte Winterbekleidung
- Das Niedrigenergiehaus
- Der April und seine Stürme
- Architektonische Vielfalt
- Ökologisch und nachhaltig bauen
- Das perfekte Schlafzimmer
- Nachhaltige Energieversorgung
- Zukunftsorientiert bauen
- Nachhaltigkeit beim Hausbau
- Tiny Houses
- Wärmepumpen als nachhaltige Heizvariante
- Maßgeschneiderten Kleiderschrank
- Der richtige Baukredit
- Ratgeber für erfolgreichen Hausbau
- Haus als Altersvorsorge
Do-it-yourself Anleitungen
- Verlegeanleitung für Bodenbeläge und Parkett
- Bodenbeläge und Parkett reinigen und pflegen
- Malerarbeiten am Haus
- Garten Tipps
- Umzug und Reinigung

ᐅ Wickelfalzrohre für Wäscheschacht? Erfahrungen?

Erstellt am: 07.03.23 19:06
D
DominicHannove
Hallo,

wir planen im Rahmen unseres Neubaus einen Wäscheschacht einzubauen.
Der Wäscheschacht soll im OG im schrank des Ankleideraumes versteckt werden. Er soll im OG dann aus der Ankleide und zusätzlich aus dem angrenzenden Bad benutzbar sein (hierfür T-Stück). Im EG soll er unverkleidet ca. 80cm aus der Decke herausstehen.

Nach kurzer Recherche soll es vermutlich ein Rohr mit 300mm Durchmesser sein.
Wir möchten das Rohr im Hauswirtschaftsraum wie gesagt eigentlich nicht verkleiden.

Nun stehen wir vor der Entscheidung, welches Material wir nehmen wollen:
- KG Rohr (günstig, aber ggf. statische Ladung und die orangene Farbe gar nicht schön.. müsste also doch verkleidet werden)
- Edelstahl-Rohr (optisch super, aber teuer! insbesondere auch benötigtes T-Stück und Verbindungsstücke sehr teuer)
- Wickelfalzrohr (optisch ganz gut und auch günstig, sogar beim T-Stück... aber Angst, dass Wäsche kaputt geht, da nicht so glatt und ggf. irgendwann Rost?)

Hat jemand Erfahrungen mit einem Wickelfalzrohr als Wäscheschacht?


Zusätzlich:
- Wie groß sollten die runden Durchbrüche in EG-Decke und Wand zw. Ankleide und Bad bei einem Rohr mit 300mm Durchmesser optimalerweise sein... wir hatten so an 330mm gedacht. Dies müssen wir unserem Generalunternehmer mitteilen, da diese die Durchbrüche vornehmen.
- Weiß jemand, wo man einigermaßen preiswert an Einwurftüren kommt (runder 300mm-Anschluss).. Die Preise sind ja mit ca. 250€ echt heftig für so kleine Türen.

Wir wären über jeden Tipp dankbar 🙂
A
Allthewayup
08.03.23 20:22
kbt09 schrieb:


[ATTACH alt="wickelfalzrohre-fuer-waescheschacht-erfahrungen-622070-4.png"]78813[/ATTACH]


Das ist ja cool, unser OG sieht fast identisch aus nur die Dimensionen sind etwas anders und anstatt Ankleide ist das ein Büro mit 9m².
Ihr habt Geschmack 🙂
rick201808.03.23 20:57
@Snowy36 klar haben ja keine Kinderzimmer 😉
Y
ypg
08.03.23 21:52
Meist reicht ja schon im Flur ein Wandschrank von 120cm Breite für Waschmaschine und Trockner, darauf Arbeitsplatte für Wäschekorb/Stapel, darüber wieder ein Hängeschrank. Ok, sollte schon wegen Wasser/Abluft alles im Rohbau geplant sein.
K
kbt09
08.03.23 22:00
Dafür hätte ich auch noch eine alte Variante, sind da aber schon 150 qm .. und diesmal kann die Waschmaschine nachts laufen ;9 ... und es gibt sogar eine recht versteckte Toilette.



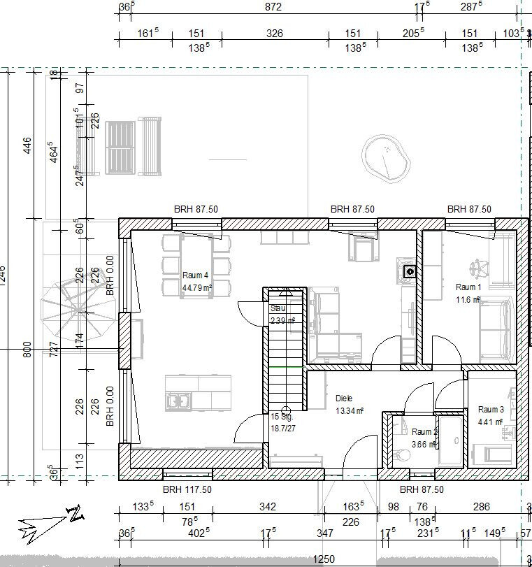
Grundriss eines Wohnhaus-Erdgeschosses mit Wohnzimmer, Küche, Diele und Treppe.

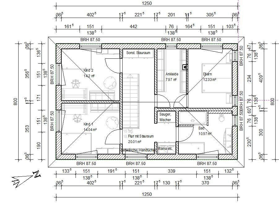
Grundriss eines Hauses mit Elternschlafzimmer, zwei Kinderzimmer, Bad, Flur und Stauraum.
waschmaschine