Hallo zusammen,
da es hier im Forum bisher nur Fragen und keine Antworten zu Euro Massiv Bau GmbH gibt, anbei einmal ein paar erste Erfahrungen. Ich ergänze gerne im Projektverlauf.
Erstkontakt war Anfang Oktober 2021, nach einem Informationsgespräch hatten wir innerhalb einer Woche ein Angebot sowie die Bauleistungsbeschreibung vorliegen. Nach einigen Anpassungen im Angebot gab es ein zweites Beratungsgespräch, hier war auch der Firmeninhaber Herr Wittig anwesend.
Was uns überzeugt hat: Herr Wittig und seine Kollegen sind weniger Vertriebler, sondern eher pragmatische Bauleiter. Bei Detail Rückfragen muss keine "Zentrale" kontaktiert werden, Preise werden transparent ausgewiesen und kalkuliert. Erdaushub, Verbau, Zentimeterdicke von "Riemchen" - alles konnte direkt besprochen werden. Für uns nach einem ersten Ausflug in die Fertighauswelt wirklich einfach und realistisch.
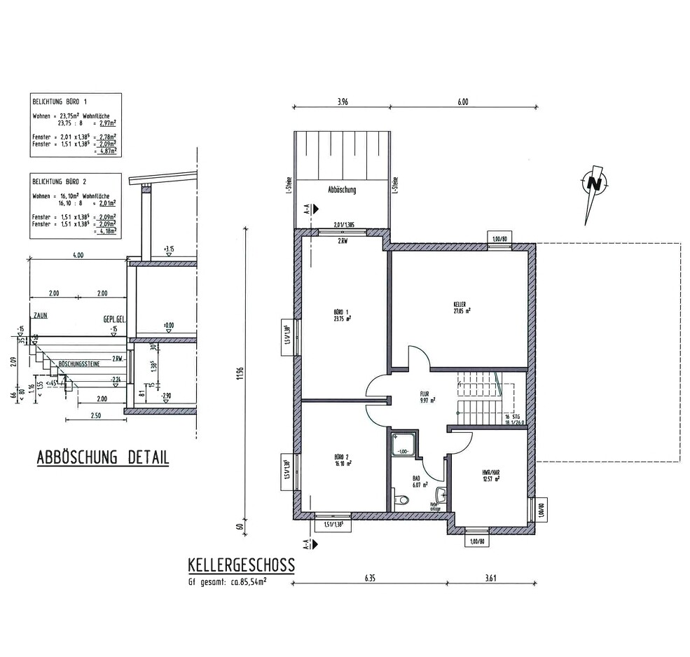
Der Preis für das Haus basiert auf der "Masse" - also die äußeren Maße, Anzahl der Bäder. Die Zimmeraufteilung sowie die genaueren Grundrisse werden erst später erstellt. Für uns passte das, wir hatten schon gute Grundrisse aber kein passendes Unternehmen. Der Architekt von Euro Massiv Bau hat noch Kleinigkeiten an unserer Planung angepasst, gerade im Hinblick auf die Realisierung von offiziellem Wohnraum im Keller.
Wir bauen:
LG Christine
























da es hier im Forum bisher nur Fragen und keine Antworten zu Euro Massiv Bau GmbH gibt, anbei einmal ein paar erste Erfahrungen. Ich ergänze gerne im Projektverlauf.
Erstkontakt war Anfang Oktober 2021, nach einem Informationsgespräch hatten wir innerhalb einer Woche ein Angebot sowie die Bauleistungsbeschreibung vorliegen. Nach einigen Anpassungen im Angebot gab es ein zweites Beratungsgespräch, hier war auch der Firmeninhaber Herr Wittig anwesend.
Was uns überzeugt hat: Herr Wittig und seine Kollegen sind weniger Vertriebler, sondern eher pragmatische Bauleiter. Bei Detail Rückfragen muss keine "Zentrale" kontaktiert werden, Preise werden transparent ausgewiesen und kalkuliert. Erdaushub, Verbau, Zentimeterdicke von "Riemchen" - alles konnte direkt besprochen werden. Für uns nach einem ersten Ausflug in die Fertighauswelt wirklich einfach und realistisch.
Der Preis für das Haus basiert auf der "Masse" - also die äußeren Maße, Anzahl der Bäder. Die Zimmeraufteilung sowie die genaueren Grundrisse werden erst später erstellt. Für uns passte das, wir hatten schon gute Grundrisse aber kein passendes Unternehmen. Der Architekt von Euro Massiv Bau hat noch Kleinigkeiten an unserer Planung angepasst, gerade im Hinblick auf die Realisierung von offiziellem Wohnraum im Keller.
Wir bauen:
- ein freistehendes Einfamilienhaus 10x12m
- Zwei Geschosse, zzgl. Wohnkeller
- Grundstück: 517qm
- Wohnfläche gesamt: 220qm
- Pultdach mit 5° Neigung und Dachüberstand
- Massivgarage mit 6x9m
LG Christine
ChriRoth schrieb:
Der Preis für das Haus basiert auf der "Masse" - also die äußeren Maße, Anzahl der Bäder. Die Zimmeraufteilung sowie die genaueren Grundrisse werden erst später erstellt.D.h., lediglich nach Umbauten Raum!Ich kann doch aber den Grundriss und somit die Anzahl der Räume nicht beliebig erstellen/ändern. Fenster müssen ja auch entsprechend angepasst werden.
Oder steht der Grundriss doch schon und es geht nur noch um wenige cm beim Wandverschieben?
Zu einem fertigen (plausiblen) AG gehört aus meiner Sicht der Grundriss dazu.
Wie sieht denn euer Grundriss aus?
Wenn ich die Zeilen richtig deute, kommt dieser primär von den Bauherren.
driver55 schrieb:
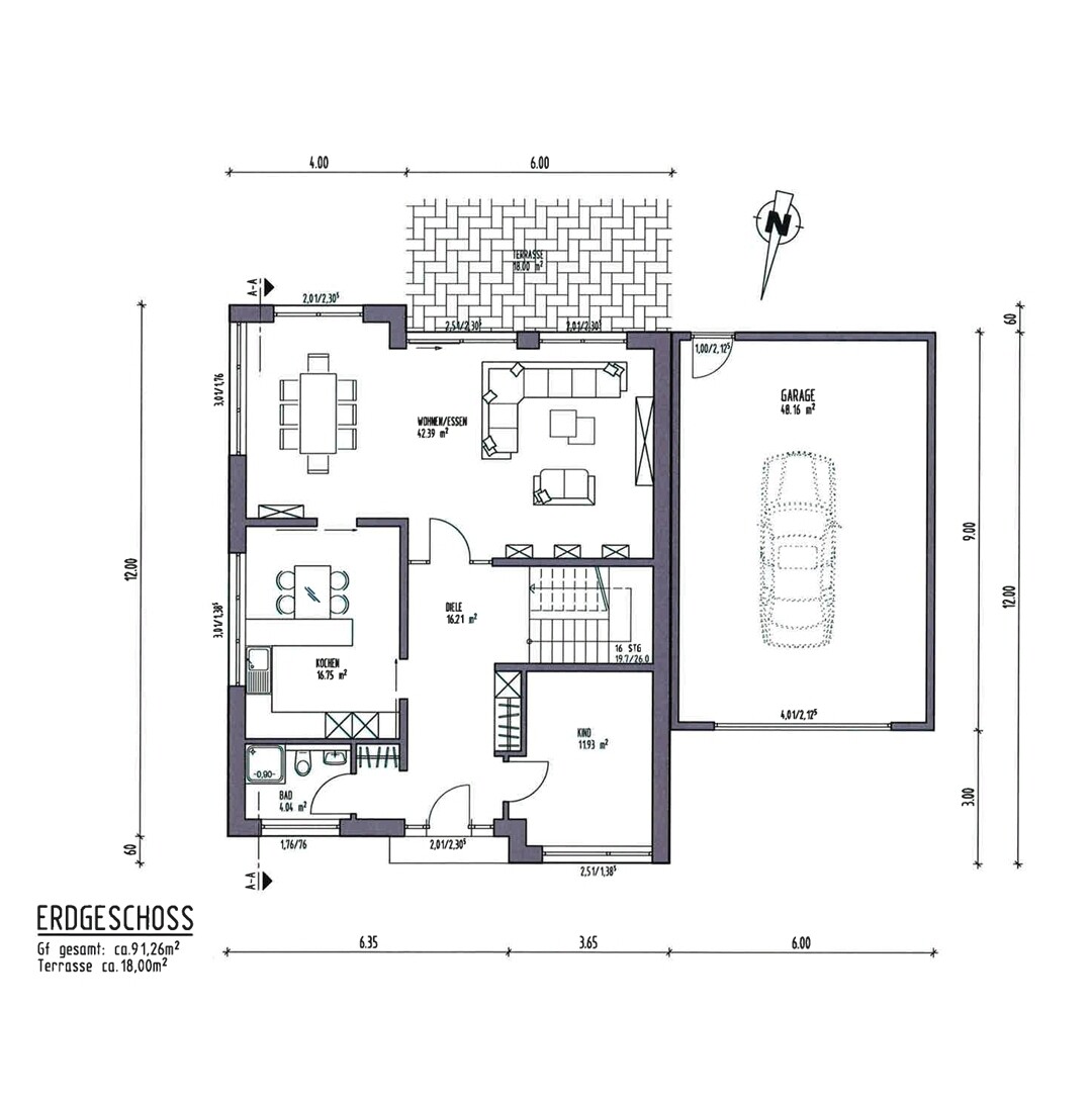
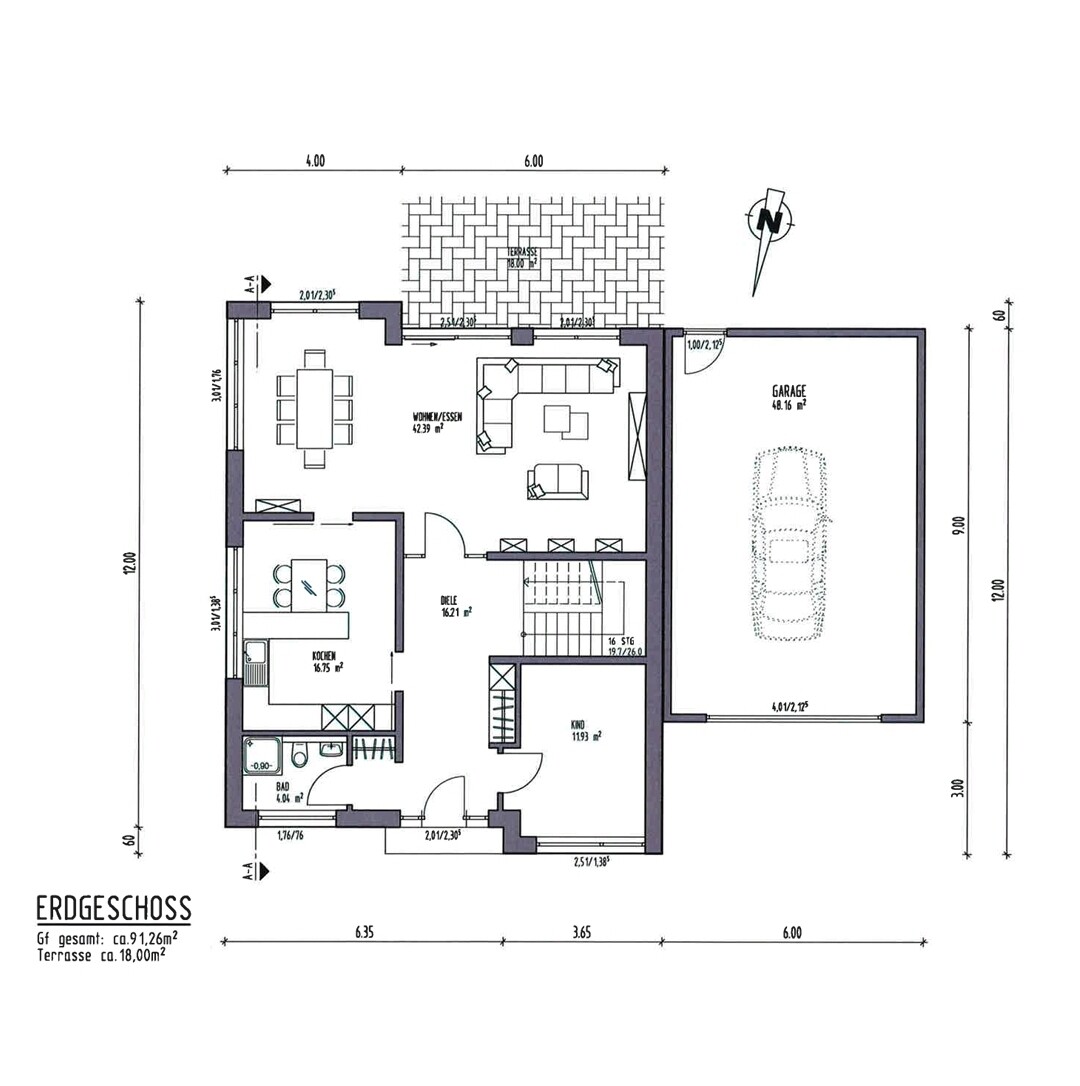
Wie sieht denn euer Grundriss aus?So sieht er aus.
Ich kann dir nicht genau sagen, wie die vorgehen wenn man so ganz ohne Plan kommt. Wir hatten schon Grundrisse, die wir mit dem Architekten angepasst haben. Im Angebot ist eine Anzahl an Fenstern definiert, die auf Haustypen basiert die von Euro Massiv angeboten werden.
ChriRoth schrieb:
Der Preis für das Haus basiert auf der "Masse" - also die äußeren Maße, Anzahl der Bäder. Die Zimmeraufteilung sowie die genaueren Grundrisse werden erst später erstellt. Für uns passte das, wir hatten schon gute Grundrisse aber kein passendes Unternehmen.Das ist ein interessantes Preiskonzept, und die Idee "das Haus ist so groß wie das ähnlichste Modell aus unserem Vorschlägekatalog, der Grundriss erfolgt ´bauseits´" immerhin originell. Die Bauleistungsbeschreibung überzeugt mich leider nicht - viel Bildchen, aber dafür inhaltlich oberflächlich und schwammig. Das muß aber nicht schlecht sein, insofern es zufriedene Kunden keineswegs ausschließt und eher sogar im Gegenteil dafür spricht, daß die Vertrauensbasis auch ohne den Papierkram trägt. Für einen vorsichtig-ängstlichen Kunden der Sorte Pingelhuber wäre sie aber ein No-Go.driver55 schrieb:
Zu einem fertigen (plausiblen) AG gehört aus meiner Sicht der Grundriss dazu.Das sind wir mal einer Meinung. Das wäre für mich eine verpflichtende "Anlage I".ChriRoth schrieb:
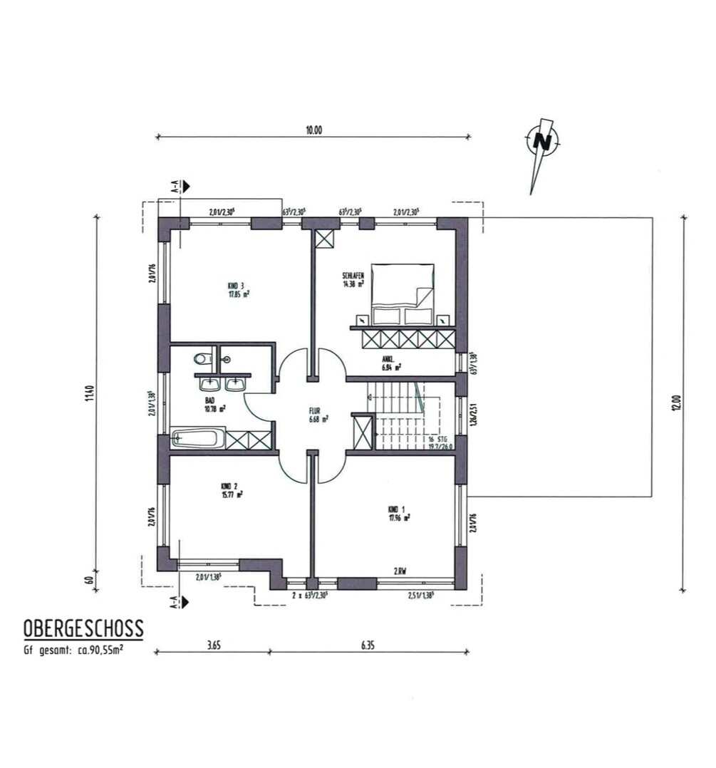
So sieht er aus.Tut Euch den Gefallen und zieht EG und OG zumindest am Eßzimmervorsprung noch kongruent, die anderthalb Quadratmeter mehr oben sind billiger als der Statik- und Dämm-Mehraufwand mit dem freiliegenden Vorsprung.https://www.instagram.com/11antgmxde/
https://www.linkedin.com/company/bauen-jetzt/
N
Nachtigall15.03.25 11:36Hat einer von euch noch die Bauleistungsbeschreibung von Euro Massivbau? Leider sind hier nicht alle Seiten verfügbar.
Nachtigall schrieb:
Hat einer von euch noch die Bauleistungsbeschreibung von Euro Massivbau? Leider sind hier nicht alle Seiten verfügbar.Die wäre vier Jahre alt ohnehin nicht mehr "frisch". Löst Euch von der Fixierung auf irgendwelche Firmen, deren Namen Ihr zufällig irgendwo erhascht habt. Das ist das buchstäblich von hinten aufgezäumte Pferd.https://www.instagram.com/11antgmxde/
https://www.linkedin.com/company/bauen-jetzt/
Ähnliche Themen