Wohnkeller ist sicher guenstiger. Falls es da Hangwasser gibt wuerde ich zumindest die erdberuehrten Bereiche in Beton ausfuehren. Wollt Ihr Garage oder Carport herstellen was sagt der Bebauungsplan dazu? Was ist laut Bebauungsplan erlaubt? Dachneigungen, Geschosse, Hoehen?
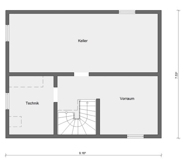
Stell doch mal Deinen Grundriss ein.
Stell doch mal Deinen Grundriss ein.
H
hampshire15.02.21 14:27haydee schrieb:
@hampshire du hast auch nicht aufgefülltWeggebaggert und gemeisselt, Stützwände aus Beton erstellt, beidseitig gedämmt, dahinter wieder aufgefüllt, hier was weggenommen, da was angeschüttet... Am Ende waren es über 1000Kubikmeter bewegter Boden. Alles blieb auf dem Grundstück. Es gibt Menschen, die bewegen mit einem Kellerbau weniger.D
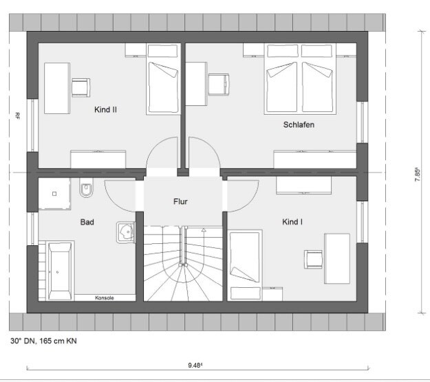
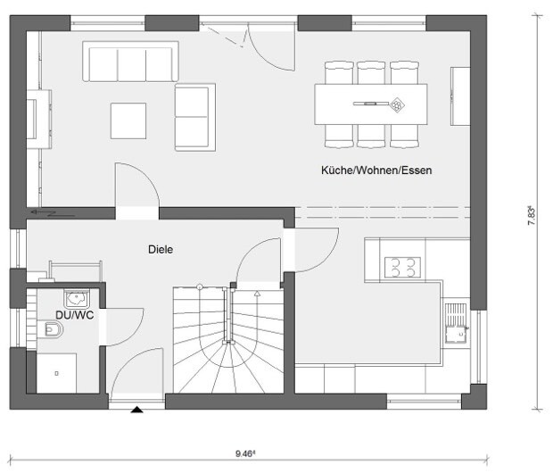
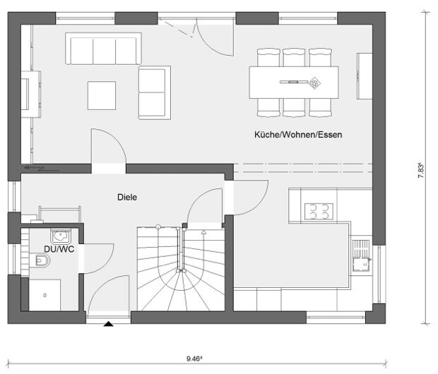
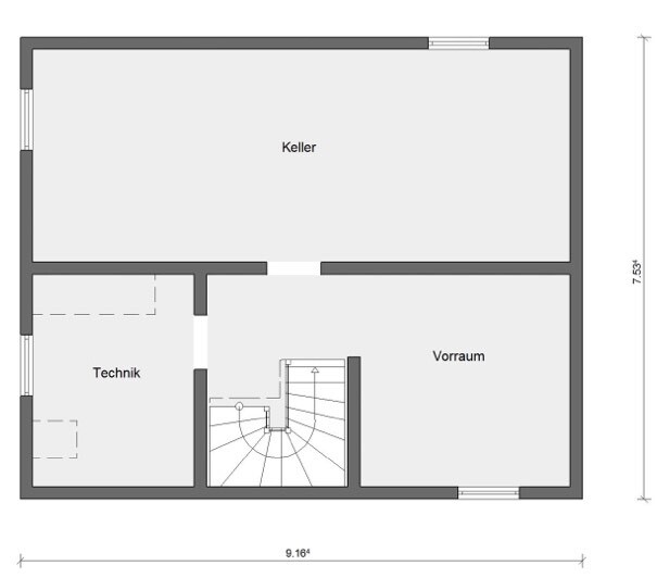
derwilder8515.02.21 15:30Hallo Zusammen, vielen lieben Dank für eure Meinungen und die Mehrheit würde uns einen Keller empfehlen.
Aktuell haben wir beigefügte Grundrisse als Favoriten. im Keller könnt ihr euch noch ein Schlafzimmer, Bad und Büro vorstellen.
Der Bebauungsplan:
Budget:



Aktuell haben wir beigefügte Grundrisse als Favoriten. im Keller könnt ihr euch noch ein Schlafzimmer, Bad und Büro vorstellen.
Der Bebauungsplan:
- 1 Geschossig
- können die Dachgeschosse Vollgeschosse werden
- Ist ein Drempel in Höhe von max. 1,00 m zulässig
- Satteldach oder Pultdach und die Dachneigung von max. 45" ist zulässig
- dürfen Untergeschosse Vollgeschosse sein, wenn OKF Erdgeschoss nicht höher als die davorliegende Straße liegt (Gemessen Mitte Haus zu Außenkante Bürgersteig /Schrammbord
- werden dl& Keller der Häuser bergse!t1g wasserdicht ausgebildet
Budget:
- Bezugsfertig möchten wir ohne Baunebenkosten und ohne Erdarbeiten ca. 350 T EUR ausgeben
haydee schrieb:
Schon die meisten die hier ohne Keller bauen wollten, hätten Tonnen an Beton für Stützmauern versenkt, dazu noch viel mehr Erdreich um das ganze flach zu bekommen.Daher ja auch meine Kellerregel - wohlgemerkt keine Bauernregel vom Stammtisch, sondern gesammelte Erfahrungswerte aus vierzig Jahren Beschäftigung mit dem Bauthema - daß ein Keller wo er eigentlich nicht vermeidlich ist 1. als "Ersatzmaßnahme" praktisch einer Realisierung adäquate Kosten verursacht und 2. das nicht nur für klare Fälle total, sondern für alle "Grautöne dazwischen" auch anteilig gilt; und zwar pauschal je 20 cm Höhenunterschied (im Grundplattenfeld) mit zehn Prozentpunkten. Bis ab zwei Metern Höhenunterschied ein nichtgebauter Keller faktisch mit dem gebauten Keller kostenmäßig gleichauf liegt.derwilder85 schrieb:
# 1 Geschossig
# können die Dachgeschosse Vollgeschosse werden
# Ist ein Drempel in Höhe von max. 1,00 m zulässiglese ich als "1+D, Dachgeschoss ohne Vollgeschossvermeidung, aber ab der 1m-Linie als Schrägdach auszuführen".https://www.instagram.com/11antgmxde/
https://www.linkedin.com/company/bauen-jetzt/
D
derwilder8515.02.21 15:48Korrekt 1 + DG
Danke!
Deine Erfahrungen decken sich auch mit einer Faustformel, die wir in einem Podcast gehört haben. Wenn noch 45m2 Raumprogramm benötigt wird, dann sollten diese Räume zur Kostenoptimierung in den Wohnkeller verschoben werden, anstelle das Haus zu vergrößern.
11ant schrieb:
Daher ja auch meine Kellerregel - wohlgemerkt keine Bauernregel vom Stammtisch, sondern gesammelte Erfahrungswerte aus vierzig Jahren Beschäftigung mit dem Bauthema
Danke!
Deine Erfahrungen decken sich auch mit einer Faustformel, die wir in einem Podcast gehört haben. Wenn noch 45m2 Raumprogramm benötigt wird, dann sollten diese Räume zur Kostenoptimierung in den Wohnkeller verschoben werden, anstelle das Haus zu vergrößern.
Ähnliche Themen