ᐅ Terrassenüberdachung in Grundriss einplanen?
Erstellt am: 17.03.14 10:10
Hallo zusammen,
wir hätten gerne die Terrassenüberdachung wie im Anhang abgebildet.
Auch bei uns wäre der nur die Hälfte der Terrasse überdacht, nämlich der Teil vor der Küche. Unser Entwurf ist fertig falls der Statiker das ok gibt.
Sollte die Überdachung noch mit aufgenommen werden in den Entwurf und in die Baugenehmigung oder genügt das bei Planung der Außenanlagen?
Viel Glück
milkie

wir hätten gerne die Terrassenüberdachung wie im Anhang abgebildet.
Auch bei uns wäre der nur die Hälfte der Terrasse überdacht, nämlich der Teil vor der Küche. Unser Entwurf ist fertig falls der Statiker das ok gibt.
Sollte die Überdachung noch mit aufgenommen werden in den Entwurf und in die Baugenehmigung oder genügt das bei Planung der Außenanlagen?
Viel Glück
milkie
Wenn Ihr später noch eine Baugenehmigung wegen der Größe des Daches braucht, würde ich die Planung mit reinnehmen. Es ergibt sich meines Wissens keine weiteren Kosten. Eine Nachtragsbaugenehmigung kostet wiederum.
Außerdem könnt Ihr bauseits gleich Halterungen in den Rohbau mit einplanen lassen, da mit WDVS ja wieder Probleme beim nachträglichen Anbringen entstehen.
Schicke Terrasse... würde mir auch gefallen!
Außerdem könnt Ihr bauseits gleich Halterungen in den Rohbau mit einplanen lassen, da mit WDVS ja wieder Probleme beim nachträglichen Anbringen entstehen.
Schicke Terrasse... würde mir auch gefallen!
B
Bauexperte17.03.14 11:55Hallo,
In der Anlage findest Du eines, unserer BV, wo ebenfalls einen Pavillon auf Kundenwunsch errichtet wurde. Zum Bauantrag mußte eine Detailplanung des Pavillon erstellt werden. Dadurch haben sich die Kosten des Bauantrages weder gesenkt, noch erhöht
Grüße, Bauexperte

milkie schrieb:Das ist keine Terrassenüberdachung im herkömmlichen Sinne, sondern ein, mit der Bausubstanz verbundener, Pavillon und der gehört mit in den Bauantrag sowie die statische Berechnung.
Sollte die Überdachung noch mit aufgenommen werden in den Entwurf und in die Baugenehmigung oder genügt das bei Planung der Außenanlagen?
In der Anlage findest Du eines, unserer BV, wo ebenfalls einen Pavillon auf Kundenwunsch errichtet wurde. Zum Bauantrag mußte eine Detailplanung des Pavillon erstellt werden. Dadurch haben sich die Kosten des Bauantrages weder gesenkt, noch erhöht
Grüße, Bauexperte
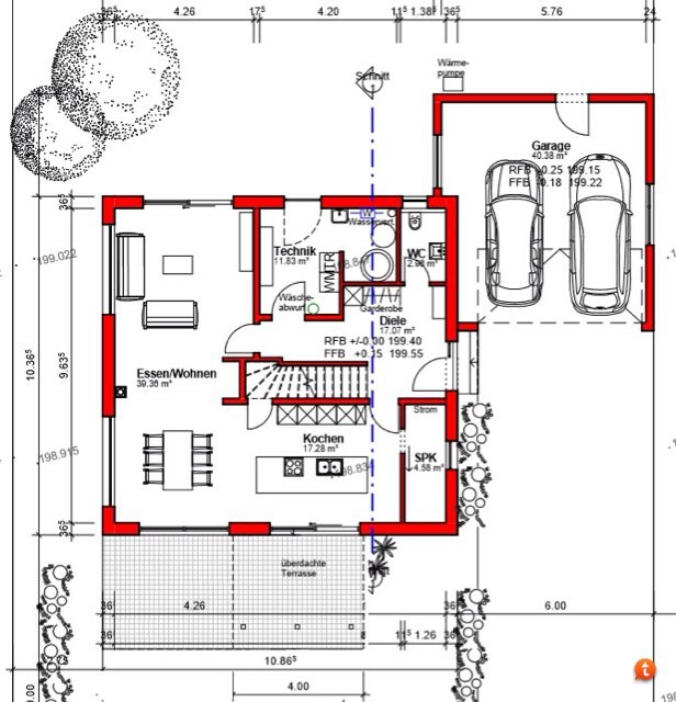
Hallo zusammen,
wir haben nun das Terrassendach mit in den Entwurf übernommen sind jetzt aber unsicher ob wir die Fenster so lassen sollen wie bisher.
Die linke Variante ist aus unserer bisherigen Planung. Die rechte Variante haben wir uns noch überlegt. Wäre das evtl. besser/praktischer?
Ansicht ist Südseite. Den EG Grundriss laden wir mal dazu hoch.
Danke schon mal.
Viel Glück
milkie


wir haben nun das Terrassendach mit in den Entwurf übernommen sind jetzt aber unsicher ob wir die Fenster so lassen sollen wie bisher.
Die linke Variante ist aus unserer bisherigen Planung. Die rechte Variante haben wir uns noch überlegt. Wäre das evtl. besser/praktischer?
Ansicht ist Südseite. Den EG Grundriss laden wir mal dazu hoch.
Danke schon mal.
Viel Glück
milkie
Ähnliche Themen