Z
Zenjamino22.03.22 08:09Hallo zusammen,
wir planen gerade unsere Terrasse und diese ist durch eine gewisse Fehlplanung der Stützmauern nicht ganz so einfach.
Problem: Wir müssen die Ebene der Terrasse 30 cm höher planen (wären dann 15 cm unter Fußbodenkante), da diese Höhe bei der gebauten Stützmauer fehlt.
Nun habe ich folgende Optionen:
Zweite Stützmauer mit 30 cm genau hinter der ersten (sieht einfach blöd aus meiner Meinung nach), oder eine 15 cm (mit Randsteinen der Terrasse gebaut) und dann eine zweite 15 cm Ebene nach ca 4 Meter (beim 2ten Ausgang), was die Terrasse dann auf 2 Ebenen realisieren würde.
Nun meine Frage, ob das überhaupt geht eine 15 cm Ebene mit Randsteinen zu planen oder ob der Plan mit Zwei Ebenen an sich schon unsinnig ist.
Ich hoffe ich habe es verständlich beschrieben.
Danke schon einmal und besten Gruß
Zenjamino
wir planen gerade unsere Terrasse und diese ist durch eine gewisse Fehlplanung der Stützmauern nicht ganz so einfach.
Problem: Wir müssen die Ebene der Terrasse 30 cm höher planen (wären dann 15 cm unter Fußbodenkante), da diese Höhe bei der gebauten Stützmauer fehlt.
Nun habe ich folgende Optionen:
Zweite Stützmauer mit 30 cm genau hinter der ersten (sieht einfach blöd aus meiner Meinung nach), oder eine 15 cm (mit Randsteinen der Terrasse gebaut) und dann eine zweite 15 cm Ebene nach ca 4 Meter (beim 2ten Ausgang), was die Terrasse dann auf 2 Ebenen realisieren würde.
Nun meine Frage, ob das überhaupt geht eine 15 cm Ebene mit Randsteinen zu planen oder ob der Plan mit Zwei Ebenen an sich schon unsinnig ist.
Ich hoffe ich habe es verständlich beschrieben.
Danke schon einmal und besten Gruß
Zenjamino
W
WilderSueden22.03.22 08:41Wie viel Platz hast du denn? Zwei Ebenen machen nur Sinn, wenn jede Ebene für sich auch groß genug ist oder anderweitig ihren Sinn erfüllt.
Hast du irgendwelche Laufwege an der Stützmauer entlang? Dann könnte man den zum Beispiel 30cm tiefer als die Terrasse setzen. Am besten du stellst mal einen Plan und Fotos ein, damit wir uns das richtig vorstellen können
Hast du irgendwelche Laufwege an der Stützmauer entlang? Dann könnte man den zum Beispiel 30cm tiefer als die Terrasse setzen. Am besten du stellst mal einen Plan und Fotos ein, damit wir uns das richtig vorstellen können
Z
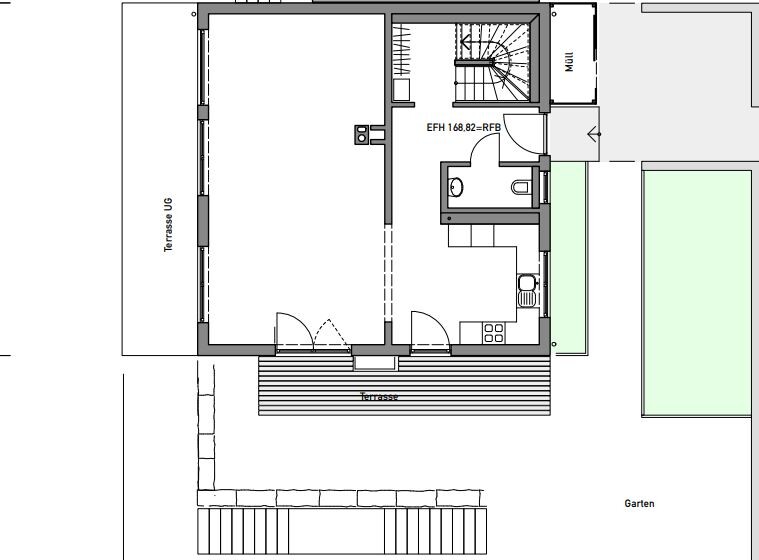
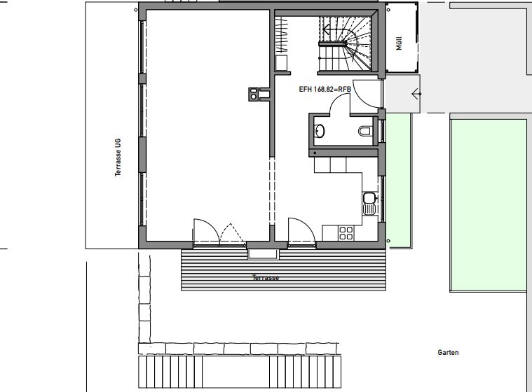
Zenjamino22.03.22 09:06Also die eine Ebene der Terrasse würde ich bis zur Wand zwischen den beiden Türen machen, was ca einer Fläche von ca. 20 qm entspricht, dann eine Stufe mit 15 cm und dann nochmal ca 15 qm mit Übergang zu einem gepflasterten Weg Richtung Garten. Die Stützmauer zum Haus ist 4 m Lang und dann ca. 8 m Richtung Garten
Neben der Erhöhung ist kein Platz für einen Weg, aber vlt für ein paar Blumentöpfe.
Anbei ein Bild aus dem Bauantrag (Terrasse dort aber zu klein eingezeichnet).
Die Frage ist halt, ob das überhaupt geht 20 qm Steinterrasse mit einem 15 cm Randstein abzufangen.
Gruß
Zenjamino

Neben der Erhöhung ist kein Platz für einen Weg, aber vlt für ein paar Blumentöpfe.
Anbei ein Bild aus dem Bauantrag (Terrasse dort aber zu klein eingezeichnet).
Die Frage ist halt, ob das überhaupt geht 20 qm Steinterrasse mit einem 15 cm Randstein abzufangen.
Gruß
Zenjamino
Ähnliche Themen