Hallo ihr lieben,
wir sind gerade ein bisschen überfordert was das sammeln an Informationen zum Thema erschließen angeht und haben Angst aufgrund von Unwissenheit nun schon einen Verzug unseres Bauvorhabens zu verursachen.
Folgende Fakten sind vorhanden:
Es soll ein Einfamilienhaus wie auf dem Plan gestellt werden (Fertighaus) am Donnerstag letzter Woche haben wir unseren Bauantrag eingereicht und wollen uns nun an die Erschließung des Grundstücks machen das wir da nicht noch in einen Zeitlichen Verzug kommen weil wir uns zu spät darum gekümmert haben...oder sind wir jetzt bereits spät dran?
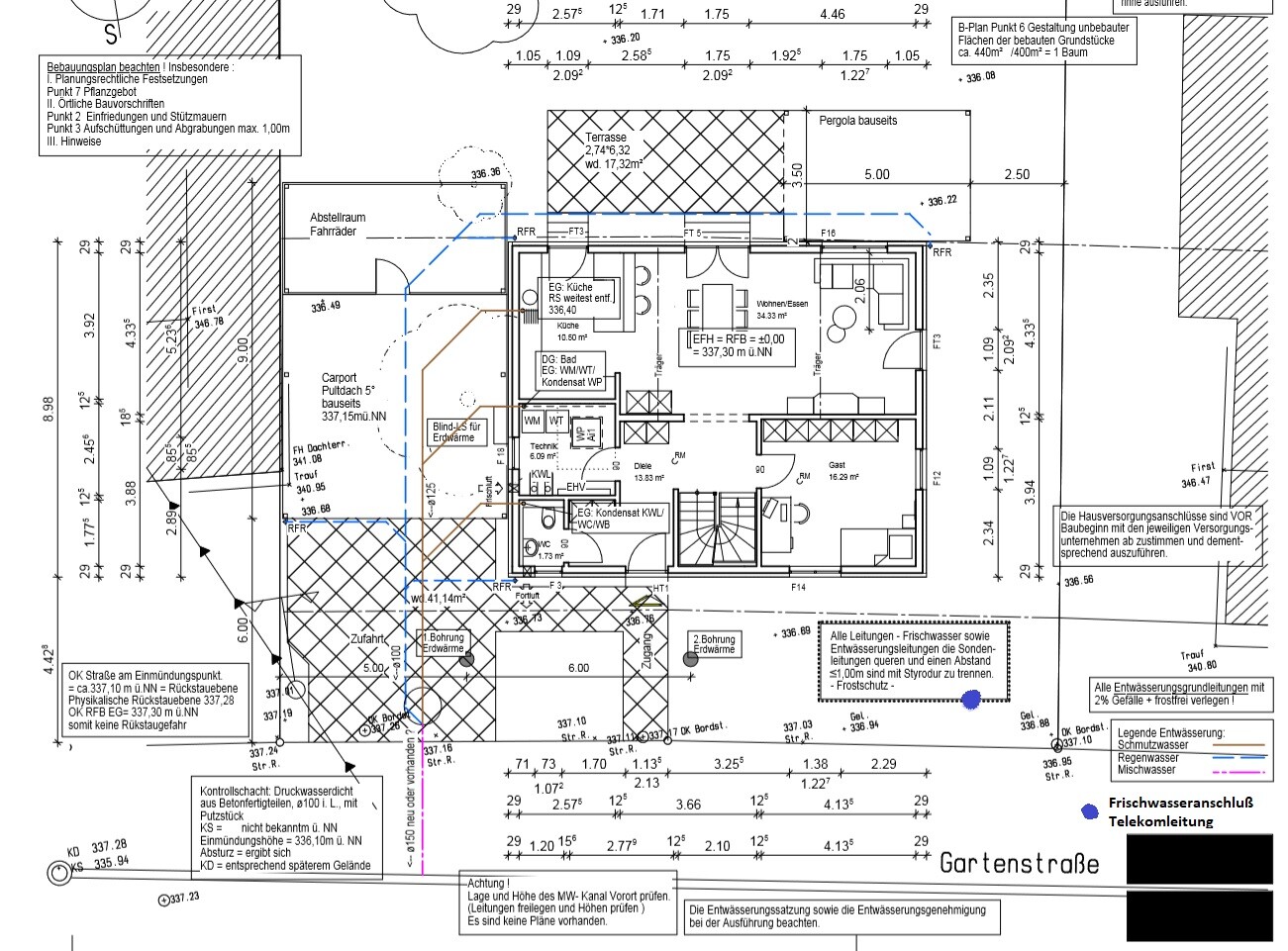
Auf dem Grundstück liegt bereits eine Frischwasserleitung inkl. Uhr etc. sowie ein Kabel der Telekom mehr aber auch nicht. Nun ist die Frage wie gehen wir am besten vor und an wen müssen wir uns alles wenden?
Mein Plan sah so aus das ich am Montag zu den Stadtwerken gehe und dort Vorstellig werde zwecks Strom und Wasser denn dieser Anschluss müsste ja auch verlegt werden da er an dieser Stelle nicht viel nutzen hat. Wäre es sinnvoll den vorhandenen Wasseranschluss komplett zu entfernen und den so erstellen zu lassen das er entlang der rosa farbigen Linie kommt?
Anschließend wollte ich dann bei Unitymedia anrufen zwecks Kabelanschluss da wir auch unser Internet gerne weiterhin über Kabel beziehen wollen.
Wie lange dauert es in der Regel bis die entsprechenden Stellen anfangen zu arbeiten?
Wir sind wirklich gerade überfordert was das ganze angeht.
Gruß
Tobi

wir sind gerade ein bisschen überfordert was das sammeln an Informationen zum Thema erschließen angeht und haben Angst aufgrund von Unwissenheit nun schon einen Verzug unseres Bauvorhabens zu verursachen.
Folgende Fakten sind vorhanden:
Es soll ein Einfamilienhaus wie auf dem Plan gestellt werden (Fertighaus) am Donnerstag letzter Woche haben wir unseren Bauantrag eingereicht und wollen uns nun an die Erschließung des Grundstücks machen das wir da nicht noch in einen Zeitlichen Verzug kommen weil wir uns zu spät darum gekümmert haben...oder sind wir jetzt bereits spät dran?
Auf dem Grundstück liegt bereits eine Frischwasserleitung inkl. Uhr etc. sowie ein Kabel der Telekom mehr aber auch nicht. Nun ist die Frage wie gehen wir am besten vor und an wen müssen wir uns alles wenden?
Mein Plan sah so aus das ich am Montag zu den Stadtwerken gehe und dort Vorstellig werde zwecks Strom und Wasser denn dieser Anschluss müsste ja auch verlegt werden da er an dieser Stelle nicht viel nutzen hat. Wäre es sinnvoll den vorhandenen Wasseranschluss komplett zu entfernen und den so erstellen zu lassen das er entlang der rosa farbigen Linie kommt?
Anschließend wollte ich dann bei Unitymedia anrufen zwecks Kabelanschluss da wir auch unser Internet gerne weiterhin über Kabel beziehen wollen.
Wie lange dauert es in der Regel bis die entsprechenden Stellen anfangen zu arbeiten?
Wir sind wirklich gerade überfordert was das ganze angeht.
Gruß
Tobi
Das Grundstück liegt aber an einer Straße?
Was ist denn bei Euch „Teilerschlossen“?
Erschlossen bedeutet, dass Strom, Wasser, Gas und Straße, also das Notwendige _am_ Grundstück liegt, sodass der Versorger sich von da die Leitungen aufs Grundstück zum Haus holen kann, also er buddelt zum nächsten Verteiler und zieht dann Leitungen.
Normalerweise kümmert sich der Häuslebauer darum. Zumindest sagt er Dir, was zu tun ist und wer wann angerufen werden muss, damit dem Bau nix im Wege steht.
Ein Fertighaus braucht ja auch erstmal eine Bodenplatte...
Was ist denn bei Euch „Teilerschlossen“?
Erschlossen bedeutet, dass Strom, Wasser, Gas und Straße, also das Notwendige _am_ Grundstück liegt, sodass der Versorger sich von da die Leitungen aufs Grundstück zum Haus holen kann, also er buddelt zum nächsten Verteiler und zieht dann Leitungen.
Normalerweise kümmert sich der Häuslebauer darum. Zumindest sagt er Dir, was zu tun ist und wer wann angerufen werden muss, damit dem Bau nix im Wege steht.
Ein Fertighaus braucht ja auch erstmal eine Bodenplatte...
Teilerschlossen heisst in unserem Fall das auf dem Grundstück (wurde zuvor als Garten genutzt) ein Wasseranschluss vorhanden ist und es gibt auch eine Leitung der Telekom auf dem Grundstück und mehr ist noch nicht da.
Von unserem Häuslebauer kam diesbezüglich leider noch nichts wollten uns aber auch erstmal selber erkundigen bevor wir Ihn fragen man mag nur ungern vollkommen inkompetent wirken.
Von unserem Häuslebauer kam diesbezüglich leider noch nichts wollten uns aber auch erstmal selber erkundigen bevor wir Ihn fragen man mag nur ungern vollkommen inkompetent wirken.
Ähnliche Themen