ᐅ Stahltreppe oder Holztreppe? Pro / Kontra? Feedback
Erstellt am: 16.10.16 09:38
Guten Tag, wir beschäftigen uns derzeit mit der Frage Holz- oder Stahltreppe.Was ist Eure Meinung dazu? Entscheidet letztendlich nur der persönliche Geschmack (und der finanzielle Rahmen)? Oder gibt es Vor- und Nachteile?
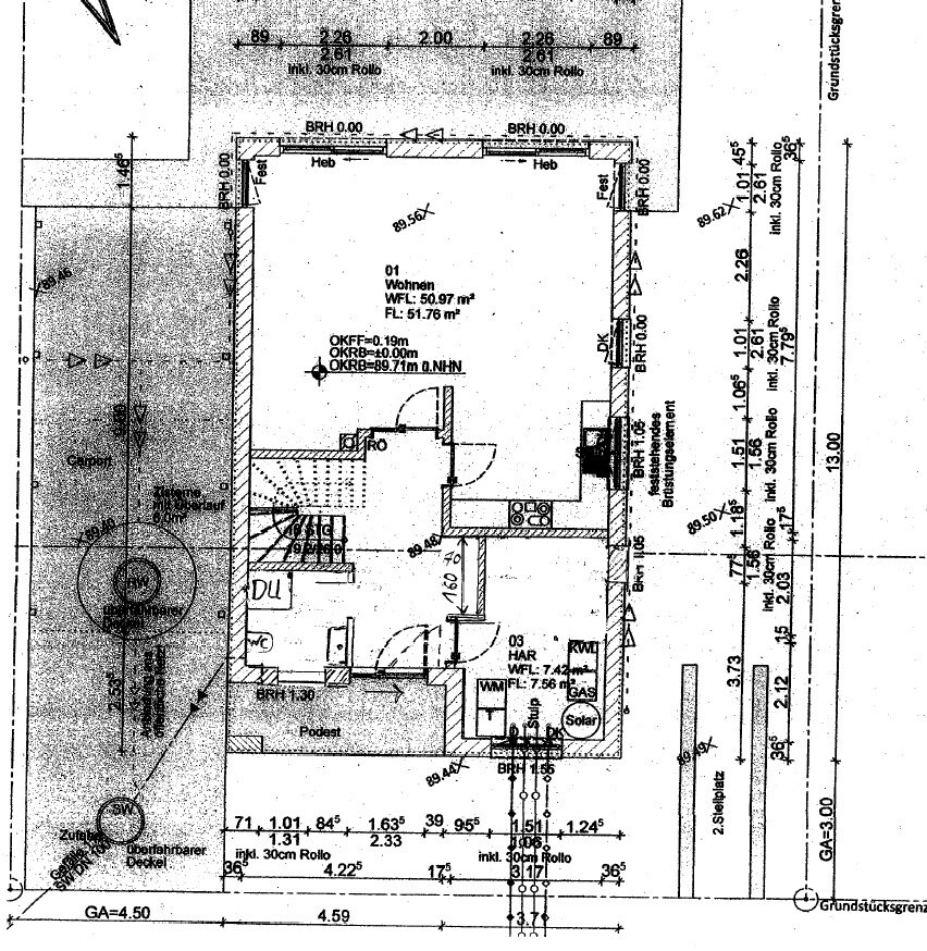
Gebaut werden soll eine 160 qm Stadtvilla.
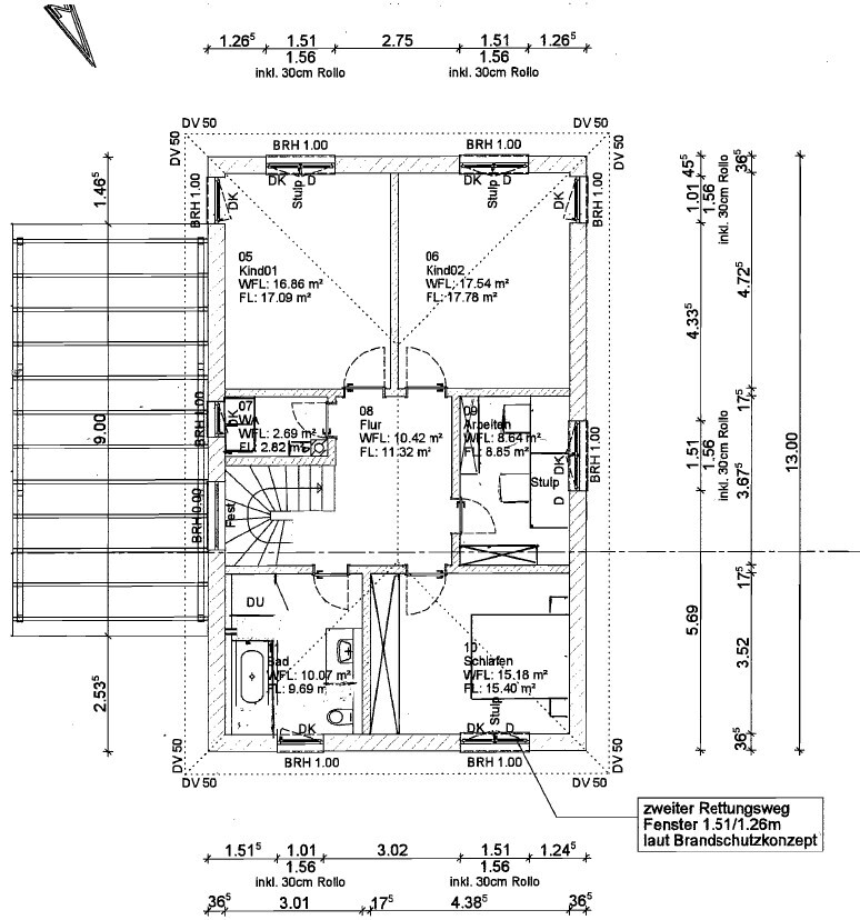
Hinweise generell zum Grundriss dürfen natürlich auch gegeben werden. Das EG wurde von uns noch mal umgestaltet (mehr Stauraum im HAR), deshalb 2x der Grundriss EG.
Vielen Dank für die Hinweise!






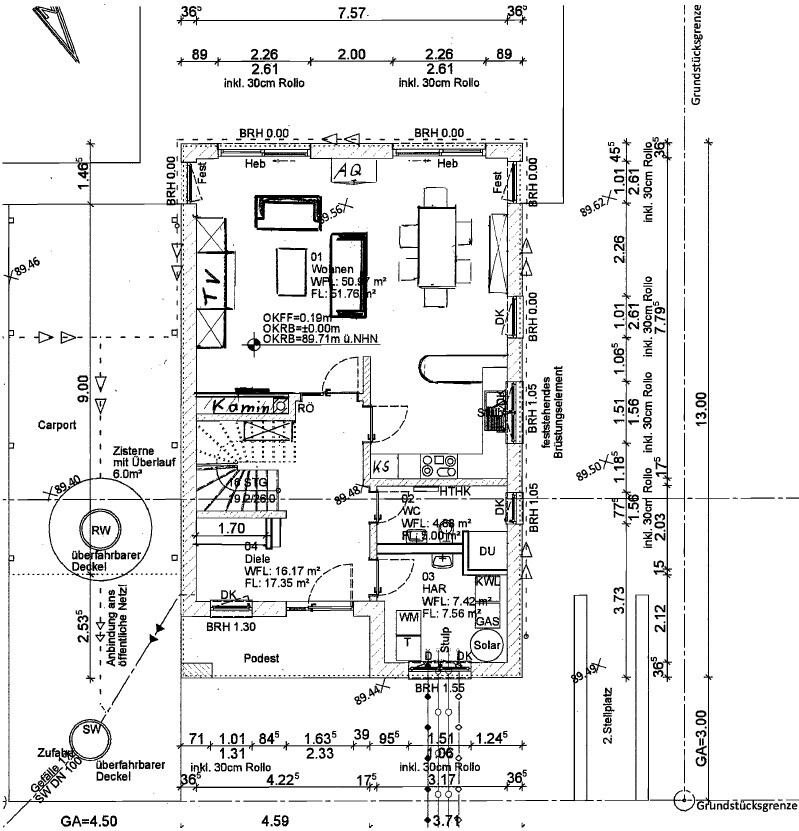
Gebaut werden soll eine 160 qm Stadtvilla.
Hinweise generell zum Grundriss dürfen natürlich auch gegeben werden. Das EG wurde von uns noch mal umgestaltet (mehr Stauraum im HAR), deshalb 2x der Grundriss EG.
Vielen Dank für die Hinweise!
MarcWen schrieb:
Stahlbeton Treppe?
Gibt es einen speziellen Grund bei der Raumaufteilung? Küche z.B. im Westen?Im Osten steht Carport lt. Bebauungsplan ist dort auch eine Zufahrt zu erstellen. Metallreppe oder Holztreppe?
Ähnliche Themen