Hausbau - Ratgeber
Bauherrenhilfe
- Bauherrenhilfe vor Vertragsabschluss
-- Warum einen unabhängigen Baubetreuer?
-- Vertragsgrundlagen
-- Bausumme
-- Zahlungsplan zur Kostenkontrolle
-- Pflichten des Bauherren vor Vertragsabschluss
-- Unterlagen beim Hausbau vor Vertragsabschluss
- Bauherrenhilfe nach Vertragsabschluss
-- Bauantrag bei Behörden
-- Bau-Genehmigungsverfahren bei Baubehörden
-- Bauspezifische Versicherungen
-- Bauzeitenplan
-- Baubeginn - die Letzten Pflichten der Bauherrschaft
- Bauherrenhilfe während der Bauzeit
- Gewährleistungsansprüche
- Bauabnahme
Baufinanzierung
- Baufinanzierung - Allgemeine Fragen
- Kreditarten
- Kredit-Konditionen
- Bausparen
- Staatliche Förderungen
- Verkehrswert
- Haushaltsrechnung und Bonität
Hausbau Planung
- Haustypen
- Hausbau Vorbereitungsarbeiten
- Das Baugrundstück
- Baugrund beim Hausbau
- Baurecht
- Gebäudeschutz
- Erdarbeiten und Wasserhaltung
- Stützmauern
- Einfriedung
- Untergeschoss
- Kanalisation
- Tragende Elemente
- Nichttragende Innenwände
- Fundation / Fundament
- Deckenkonstruktionen
- Dächer
- Kaminanlagen
- Treppen Rampen Leitern
- Dachbeläge und Spengler
- Fenster
- Sonnen und Wetterschutz
- Aussenputze
- Einbauten, Küchen, Türen
- Bodenbeläge und Unterlagsböden
- Parkett
- Gips, Wand, Decke
Haustechnik und Energie
- Heiztechnik
- Lüftung und Klimatechnik
- Sanitärtechnik
- Elektrotechnik
- Erneuerbare Energie
Whirlpools / Jacuzzi
Hausbau Magazin
- Baufinanzierung trotz Krise?
- Das Blockhaus
- Moderne Dämmstoffe im Vergleich
- Erker Vor- und Nachteile
- Glasflächen beim Hausbau
- Günstig ein Haus Bauen
- Mediterraner Hausbaustil
- Mehrgenerationenhaus
- Moderne Architektur
- Gartengestaltung leicht gemacht
- Traditioneller Ziegelbau
- Villa als höchster Traum
- Im Eigenheim Ruhestand geniessen
- Altbau sanieren
- Kauf einer Holzgarage
- Immobilienmakler
- Arbeitshandschuhe für den Winter
- Zuhause verschönern
- Outdoor-Plissees
- Schlafzimmer planen
- Terrassenüberdachung
- Wohngebäudeversicherung
- Zaunarten und Eigenschaften
- Hauseingang gestalten
- Der perfekte Grundriss
- Sparsamer heizen im Altbau
- Einfamilienhaus smart finanzieren
- Planung einer PV-Anlage
- Neues Haus
- Immobilienfinanzierung
- Installation einer Photovoltaikanlage
- Asbest erkennen und entfernen
- Gartenpflege im Frühling – worauf achten
- Sauna im Fokus - Wellness zuhause
- Erfolgreich vermieten
- Die perfekte Winterbekleidung
- Das Niedrigenergiehaus
- Der April und seine Stürme
- Architektonische Vielfalt
- Ökologisch und nachhaltig bauen
- Das perfekte Schlafzimmer
- Nachhaltige Energieversorgung
- Zukunftsorientiert bauen
- Nachhaltigkeit beim Hausbau
- Tiny Houses
- Wärmepumpen als nachhaltige Heizvariante
- Maßgeschneiderten Kleiderschrank
- Der richtige Baukredit
- Ratgeber für erfolgreichen Hausbau
- Haus als Altersvorsorge
Do-it-yourself Anleitungen
- Verlegeanleitung für Bodenbeläge und Parkett
- Bodenbeläge und Parkett reinigen und pflegen
- Malerarbeiten am Haus
- Garten Tipps
- Umzug und Reinigung

ᐅ Stahlbetonstützen in den Ecken des Erkers

Erstellt am: 19.05.17 16:00
B
bluminger
B
bluminger
19.05.17 16:00
Hallo,

bei uns werden im EG in den (inneren) Ecken des Erkers vom Statiker Stahlbetonstützen geplant. Sowohl Energieberater, als auch Rohbauer, haben sowas noch nie gesehen. Ist das nötig? Hat das noch jemand so?
Uns gefällt die Vermischung der Materialien (Porenbeton vs Stahlbeton mit Dämmung) nicht.

Vielen Dank im Voraus!
M
Mycraft
19.05.17 16:55
Sind die Säulen statisch vielleicht nicht ausreichend sprich nicht druckfest...frag doch den Statiker warum die Stützen sein müssen er müsste es ja wissen.
1
11ant
19.05.17 20:08
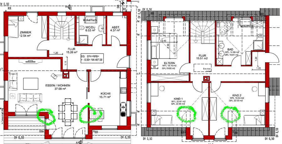
Ist noch von diesem https://www.hausbau-forum.de/threads/efh-grundriss-mit-keller-version-2.15596/ Haus die Rede ?

Enden darüber möglicherweise Seitenwände des Zwerchgiebels (die Zeichnung ist nicht so eindeutig) ?
https://www.instagram.com/11antgmxde/
https://www.linkedin.com/company/bauen-jetzt/
B
bluminger
19.05.17 20:28
Es ist noch das Haus, zumindest die Außenwände passen noch.

Die Stahlbetonstütze sind an den inneren Ecken geplant, nicht an den äußeren. Ich kann gerade leider kein Bild hochladen, wird ggf. noch nachgeliefert.
C
Curly
19.05.17 22:11
wir haben auch einen Erker und bei uns ist eine innere Stütze aus Beton gegossen worden. Dort liegt in der Erdgeschossdecke ein Stahlträger auf, er verbindet Wohnzimmerwand mit Küche. Der Stahlträger wurde wegen der Statik gebraucht.

LG
Sabine
statikerstahlträger