G
Grantlhaua25.02.19 21:41Hallo Zusammen,
ich grüble gerade über unserer Planung für die Einbauspots und komme nicht so recht weiter.
EG Gang: Hier gefällt mir der Übergang zwischen den einzelnen "Gangabschnitten" nicht
Gang OG: Der Bereich hinter dem Überzug muss noch sinnvoll integriert werden. Ist das überhaupt genug Licht?
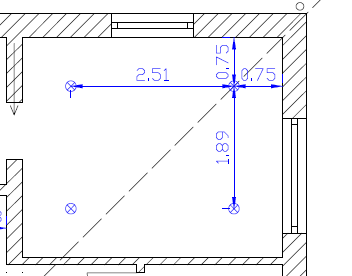
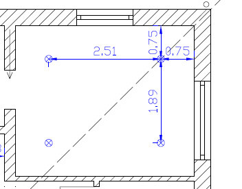
Gang UG: Passt die Anordnung so? Ist das genug Ausleuchtung?
Spots Schlafzimmer: An die Wand Bildunten kommt das Bett mit 2 Hängelampen aus der Decke als Nachttischlampe. Brauch ich dann überhaupt 4 Spots oder reichen vielleicht auch 3 in einer Reihe an der Gegenüberliegenden Wand?
Ich finde aktuell aber auch keine Lösungen, ohne die Räume alle mit Spots zuzukleistern...
Vielleicht hat jemand bessere Ideen.




ich grüble gerade über unserer Planung für die Einbauspots und komme nicht so recht weiter.
EG Gang: Hier gefällt mir der Übergang zwischen den einzelnen "Gangabschnitten" nicht
Gang OG: Der Bereich hinter dem Überzug muss noch sinnvoll integriert werden. Ist das überhaupt genug Licht?
Gang UG: Passt die Anordnung so? Ist das genug Ausleuchtung?
Spots Schlafzimmer: An die Wand Bildunten kommt das Bett mit 2 Hängelampen aus der Decke als Nachttischlampe. Brauch ich dann überhaupt 4 Spots oder reichen vielleicht auch 3 in einer Reihe an der Gegenüberliegenden Wand?
Ich finde aktuell aber auch keine Lösungen, ohne die Räume alle mit Spots zuzukleistern...
Vielleicht hat jemand bessere Ideen.
G
Grantlhaua25.02.19 22:15rick2018 schrieb:
Ohne Raumhöhen und technischen Daten der Spots wird es schwer eine Aussage bezüglich der Ausleuchtung zu treffen.
Wie kam deine Anordnung zu stande?Fertigmaß 2,54m. Den Spot können wir uns noch frei aussuchen solange er in ne normale Kaiser Dose passt. Anordnung aufgrund einer ersten Zeichnung von uns und dann der elektrofirma.
Grantlhaua schrieb:
Ich finde aktuell aber auch keine Lösungen, ohne die Räume alle mit Spots zuzukleistern...Es gab mal ne Zeit vor den Spots, und es wird eine Zeit nach den Spots geben. Zweiteres ist zum Glück schon bei einigen eingezogen 😉
Mach zb im Schlafzimmer eine schöne Deckenleuchte (nein, nix trutschiges) oder einen modernen Doppelspot in der Mitte. Gleiches gilt für den Flur.
Dieses Vollkleistern kann man nämlich auch übertreiben.
O
Obstlerbaum25.02.19 22:22Im Schlafzimmer würde ich die Spots möglichst weit vom Kopfende des Bettes fernhalten, sonst werden sie vermutlich nie benutzt. Lieber eine 3er oder 4er Reihe nah an die Wand bzw. Schrankfront, je nach Grundriss. Helle Wände sind für die subjektiv wahrgenommene Helligkeit in einem Raum wichtiger als ein heller Boden.
Ähnliche Themen