Sanierung Zweifamilienhaus 1936 Erfahrungen?

4,70 Stern(e) 11 Votes
Zuletzt aktualisiert 21.11.2025
Sie befinden sich auf der Seite 9 der Diskussion zum Thema: Sanierung Zweifamilienhaus 1936 Erfahrungen?
>> Zum 1. Beitrag <<

L

leschaf

Hier kommt mal wieder ein Update.

Erstmal war der Trockenbauer wie vereinbart da und hat unsere neuen Bäder gebaut, bzw deren Wände.


Innenraum-Baustelle mit Stahlrahmen-Wandkonstruktion und teilweise verputzten Waenden.


Auch die Wand zwischen den Kinderzimmer existiert jetzt:


Raum im Umbau: freigelegte Wand mit Metallständerwerk und Dämmung, Tür offen.


Und im Keller ist größtenteils gedämmt - sorry, schlechte Bildquali. Es bleiben schnuckelige 183-185cm Raumhöhe. Aber ist ja nur als Lager gedacht. In einem Raum haben wir noch 2m.


Kellerraum mit gelben Kabelrollen, grauen Schläuchen, Holzlatte und Eimern.


Dann war der Heizungsbauer da und hat fast alle Rohre verlegt (und dabei nur ein Rohr falsch gesetzt. Die Architektin hat ihn das Schmutzwasserrohr durch mein Arbeitszimmer wieder ausbauen lassen, ich weiß nicht ob wir das verlangt hätten) sowie die Anschlüsse für die Heizkörper gebaut.

Letztere werden jetzt wegen größerer Dimension und zusätzlicher HK ca 50% teurer als im ersten Angebot - gut, dass wir da die Fördermittel höher als das Angebot gesetzt hatten.

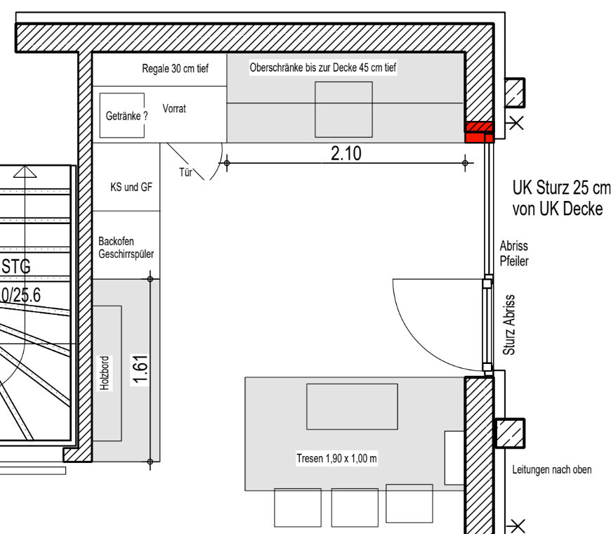
Der Elektriker ist im EG angekommen und wartet auf unsere Entscheidung bezüglich Küche. Wir haben dafür zwei Varianten:

Einmal als U:

2D-Grundriss eines Schlafzimmers mit Bett, Tür und Möbeln, Maßlinien sichtbar


Das erlaubt ziemlich optimale Arbeitswege, aber ist gefühlt weniger unser Fall (den Türanschlag können wir noch umlegen lassen, aber die Tür geht 180° auf) und hat zwei tote Ecken.

Alternativ diese Variante hier mit längeren Laufwegen (die wir aber aktuell in der Mietwohnung noch länger haben - Abstand kochfeld <-> Spüle ist noch größer - und uns nicht groß stören, sondern auch für Platz sorgen, wenn die Kids mit in der Küche sind). Grundstück würden wir hier noch an die Spülenseite verschieben, ist aktuell nur im Hochschrank planlinks weil wir mal überlegt hatten, den etwas höher zu setzen und dann Backofen drüber. Durchgang planunten ist 75cm.


Grundriss einer Küche: Regale, Oberschränke, Vorrat, Getränke, Tür und Tresen.


Was meint ihr? Küche kommt vom Tischler, der alles selbst baut.

Und: Der Fensterbauer hat die Terrassentür eingebaut. Da fehlt mir aber gerade tatsächlich ein Foto von...reiche ich nach. Sieht aber top aus!
 
L

leschaf

Auch wenn die Resonanz eher sparsam ist, ist es mal wieder Zeit für ein Update :)

Seit Mai ist einiges passiert.
- Wir haben ein schickes neues Dach mit Photovoltaik. Eigentlich sollte das im Juli passieren, es wurde dann Oktober.
- Die Wärmepumpe ist da - Außengerät steht noch beim Nachbarn in der Garage, weil noch das Gerüst steht. Das soll nächste Woche weg, denn
- Der Maler ist seit geraumer Zeit aktiv. Er macht quasi alles, komplett neuer Innenputz, streichen, anflicken der neuen Fenster, Fassade außen streichenund Fußboden inkl Fußleisten.

Insgesamt sieht es jetzt schon wirklich gut aus, aber es geht einfach zäh vorwärts…es fehlt einfach an vielen Kleinigkeiten, die man vorher als Laie unterschätzt. Einzug ist für Januar geplant…

Wir sind inzwischen leider ca 30% der über Budget…allerdings zu einem guten Teil selbst dafür verantwortlich. So war im Budget ursprünglich keine Photovoltaik (12kwp, ca 20k vor Förderung), kein komplett neues Dach (Mehrkosten ca 25k), eine kleinere Terrasse (Mehrpreis 5k). Dazu dann eine Überraschung bei der Statik (15T€ Mehrkosten im Rohbau), die man niemandem anlasten kann, da die Grundrisse bzgl der Außenwände einfach falsch waren und erst beim Öffnen der Wände das zweischalige Mauerwerk entdeckt wurde.

Viele Gewerbe hatte die Architektin gut getroffen bei ihren Schätzungen, aber beim Maler hat sie komplett daneben gegriffen…da liegen wir einfach über 200% drüber (oder auch 30T€) und das ist ein Punkt, den ich ihr ankreide. Mit ihrer Erfahrung hätte sie da eigentlich wissen müssen, dass das veranschlagte Budget nicht reicht, um die Sauerei von Elektriker und Sanitär zu beheben. Es waren nur 2000€ für Putzreparatur innen und 12000€ für Streichen angesetzt. Genauso der Trockenbau für Verkleidungen von neuen Rohren, Stahlträgern usw, da sind wir beim vierfachen der veranschlagten 3000€.

Sie hatte zwar klar gesagt, dass man mit 15% Mehrkosten planen sollte, aber da hätten wir gedacht, dass die für Überraschungen wie die Sache mit der Statik eingeplant sind. Davon hatten wir zum Glück sonst keine…

Insgesamt bringt uns das jetzt nicht in Schwierigkeiten, da wir zum Glück genügend Reserven haben, aber es schlägt schon auf die Stimmung.

Abgesehen davon macht die Frau aber weiterhin gute Arbeit, ist teilweise mehrfach in der Woche auf der Baustelle, macht einen guten Job in der Bauleitung und auch zu unmöglichen Zeiten erreichbar und aktiv. Im Vergleich zudem, was wir von Freunden oder Bekannten zu ihren Architekten hören, haben wir da einen guten Griff gemacht.

Fotos kommen dann, wenn nächste Woche das Gerüst weg ist :)
 
K

Kiefernadel

Hallo Leschaf,
Danke für deine Updates. Ich lese sie immer sehr gerne und finde euren Fortschritt interessant .
 
11ant

11ant

Dazu dann eine Überraschung bei der Statik (15T€ Mehrkosten im Rohbau), die man niemandem anlasten kann, da die Grundrisse bzgl der Außenwände einfach falsch waren und erst beim Öffnen der Wände das zweischalige Mauerwerk entdeckt wurde.
Das ist ein bißchen aufwendig, aber durchaus vorab klärbar.
Viele Gewerbe hatte die Architektin gut getroffen bei ihren Schätzungen, aber beim Maler hat sie komplett daneben gegriffen…da liegen wir einfach über 200% drüber (oder auch 30T€) und das ist ein Punkt, den ich ihr ankreide. Mit ihrer Erfahrung hätte sie da eigentlich wissen müssen, dass das veranschlagte Budget nicht reicht, um die Sauerei von Elektriker und Sanitär zu beheben. Es waren nur 2000€ für Putzreparatur innen und 12000€ für Streichen angesetzt. Genauso der Trockenbau für Verkleidungen von neuen Rohren, Stahlträgern usw, da sind wir beim vierfachen der veranschlagten 3000€.
Das riecht nach der typischen Verschätzung von Architekten, die nicht altsubstanzspezialisiert sind. Was bedeutet eigentlich "Sauerei von Elektriker und Sanitär": waren das Akkordbarbaren und/oder ist hier mangelhaft detailgeplant worden ? - Sauereibehebungskosten hätte ich den Herrschaften von ihren Rechnungen abgezogen. Nennt sich Regiearbeiten.
 
L

leschaf

Das ist ein bißchen aufwendig, aber durchaus vorab klärbar.

Das riecht nach der typischen Verschätzung von Architekten, die nicht altsubstanzspezialisiert sind. Was bedeutet eigentlich "Sauerei von Elektriker und Sanitär": waren das Akkordbarbaren und/oder ist hier mangelhaft detailgeplant worden ? - Sauereibehebungskosten hätte ich den Herrschaften von ihren Rechnungen abgezogen. Nennt sich Regiearbeiten.
Mit dem ersten Punkt hast du wohl Recht.

Bzgl Sauerei: mit dem Elektriker sind wir bisher sehr zufrieden. Heizungsbauer solala, der hat am 1-2 Stellen schon unüberlegte Sachen gemacht. Aber mir ging es eher darum, dass durch die Erschütterungen beim Wände aufstemmen einfach viel Lehmunterputz abgefallen ist bzw danach locker war und weg musste. Wir haben für Ausbesserung und Vorbereitung des Oberputzes über 100 Stunden in Stundenlohn bezahlt. Die Architektin ist eigentlich sehr Altbau-erfahren, deswegen haben wir sie ja auch engagiert. Wir haben vorher auch mehrere ihrer Sanierungen besichtigen können, sowohl sie als auch die jeweiligen Bauherren waren da sehr offen. Aber ich verstehe halt nicht, wie man die Malerarbeiten dann so unterschätzen kann. Um den Preis zu treffen hätten wir im Prinzip nur Schlitze Spachteln und dann streichen dürfen :D
 
11ant

11ant

Aber mir ging es eher darum, dass durch die Erschütterungen beim Wände aufstemmen einfach viel Lehmunterputz abgefallen ist bzw danach locker war und weg musste. Wir haben für Ausbesserung und Vorbereitung des Oberputzes über 100 Stunden in Stundenlohn bezahlt. Die Architektin ist eigentlich sehr Altbau-erfahren, deswegen haben wir sie ja auch engagiert. Wir haben vorher auch mehrere ihrer Sanierungen besichtigen können, sowohl sie als auch die jeweiligen Bauherren waren da sehr offen. Aber ich verstehe halt nicht, wie man die Malerarbeiten dann so unterschätzen kann.
Ich verstehe es leider mit dem Ergebnis von Zweifeln an ihrer Altbauerfahrung. Das meinte ich damit, daß ich für Sanierungen keine Neubauarchitekten zu nehmen empfehle: die lassen sich gerne zu dem Mißverständnis hinreißen, im Bestand brauche man keine Leistungsphase 1 mehr - nein!, die sieht da nur anders aus. Und auch die Leistungsphase 5 bis 7 sind auch hier extrem budgetrelevant.
 
Zuletzt aktualisiert 21.11.2025
Im Forum Bauplanung gibt es 5072 Themen mit insgesamt 100818 Beiträgen


Ähnliche Themen zu Sanierung Zweifamilienhaus 1936 Erfahrungen?
Nr.ErgebnisBeiträge
1Dach mit Photovoltaik oder anders investieren Erfahrungen? 19
2Photovoltaik vorbereitung bei Neubau sinnvoll? - Seite 281
3Wie Photovoltaik-Anlagen Anbieter für einen Neubau suchen? - Seite 424
4Gas mit Solarthermie? oder Wärmepumpe mit Photovoltaik? Beratung 149
5Photovoltaikanlage Angebot für unser Einfamilienhaus - Seite 2162
616.03.16: Start Montage Photovoltaik - Seite 460
7Welches Leerrohr für Photovoltaik - Seite 213
8Baurecht: Elektriker weigert sich weiterzumachen - Seite 778
9Photovoltaik um jeden Preis - aktuelle Lage und Angebote - Seite 23169
10Photovoltaik - Position auf dem Dach und Nur ein Zähler? 10
11KNX vom Elektriker ohne Programmierung - Seite 865
12Wände vor den Fußböden fliesen? 11
13Bestandshaus umbauen - Mehr Platz für Küche und Bad - Ideen? 20
14Kosten für Maler sehr hoch oder normal? - Seite 314
15Wie wichtig ist das "traditionelle" Dach in Zeiten von Photovoltaik? - Seite 323
16Dunstabzug / Dach oder Wand 14
17Standort Küche und Wohnzimmer 55
18Fliesen legen Mehrkosten. - Seite 255
19Abweichungen Aufmaß Küche durch Feinputz ca. 1,2 cm problematisch? 12
20Mehrkosten falsch geplante Belüftungsanlage + Bodentiefe Fenster? 50

Oben