ᐅ Platzierung Luft-Wasser-Wärmepumpe Außengerät und Kontrollierte-Wohnraumlüftung-Leitungen
Erstellt am: 08.05.23 16:30
M
Mucuc18Hallo zusammen!
Wir befinden uns aktuell in der Einfamilienhaus-Planung, entsprechender Thread ist hier zu finden: Link
Zwei technische Fragen die uns aktuell (neben ein paar anderen Themen) beschäftigen, die eher technischer Natur sind - daher losgelöst vom existierenden Thema:
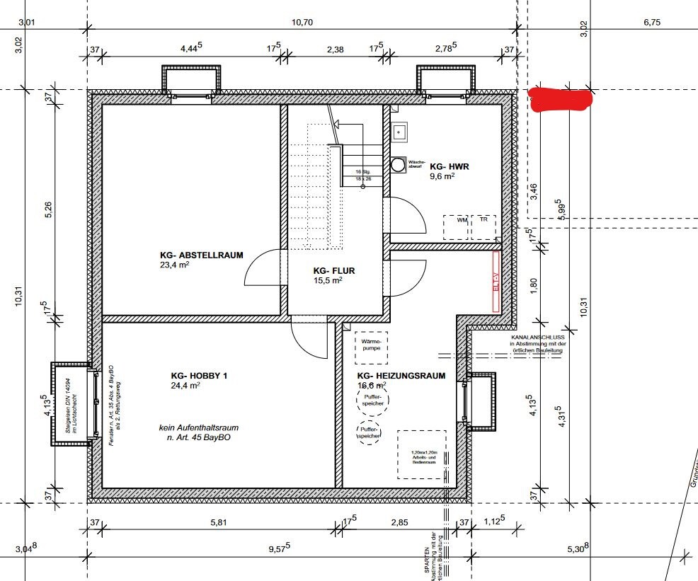
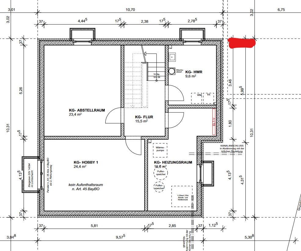
1. Wo könnten wir das Wärmepumpe Außengerät für die Luft-Wasser-Wärmepumpe platzieren? Die Planerin hat die Position direkt beim Lichtschacht vom Technikraum vorgeschlagen. Technisch sicher einfach, aber können wir uns direkt vor der Küche und direkt neben dem Eingang leider nicht so vorstellen. Eine Idee von uns wäre die Platzierung auf der Garage (siehe rote Markierung im folgenden Bild). Die Planerin hatte da etwas Bedenken bzgl. der Leitungsführung. Wie massiv sind diese Leitungen? Kann man diese nicht einfach durch den Hauswirtschaftsraum-Lichtschacht leiten? Die Alternative wäre eine Luft-Wasser-Wärmepumpe zur Innenaufstellung, hier habe ich jedoch von einigen Nachteilen (insb. Einschränkung auf wenige Hersteller) gelesen.


2. Es soll eine zentrale Kontrollierte-Wohnraumlüftung eingeplant werden. Hier wurde uns gesagt, dass dafür 2 Lichtschächte im Technikraum notwendig sind, jeweils einer für Zu- und Abluft. Nach etwas Einlesen kann ich das nicht ganz nachvollziehen, üblicher wäre doch entweder Zu/Abluft-Rohr durch die Kellerwand zu legen, ohne extra einen zusätzlichen Lichtschacht einzuplanen? Da diese vermutlich einen recht großen Durchmesser haben, wäre eine Verlegung durch den Hauswirtschaftsraum und den dortigen LIchtschacht vermutlich nicht so praktikabel...
Wie würdet ihr Luft-Wasser-Wärmepumpe Außengerät und Kontrollierte-Wohnraumlüftung-Zu und Abluft platzieren?
Danke schonmal für eure Unterstützung!
Wir befinden uns aktuell in der Einfamilienhaus-Planung, entsprechender Thread ist hier zu finden: Link
Zwei technische Fragen die uns aktuell (neben ein paar anderen Themen) beschäftigen, die eher technischer Natur sind - daher losgelöst vom existierenden Thema:
1. Wo könnten wir das Wärmepumpe Außengerät für die Luft-Wasser-Wärmepumpe platzieren? Die Planerin hat die Position direkt beim Lichtschacht vom Technikraum vorgeschlagen. Technisch sicher einfach, aber können wir uns direkt vor der Küche und direkt neben dem Eingang leider nicht so vorstellen. Eine Idee von uns wäre die Platzierung auf der Garage (siehe rote Markierung im folgenden Bild). Die Planerin hatte da etwas Bedenken bzgl. der Leitungsführung. Wie massiv sind diese Leitungen? Kann man diese nicht einfach durch den Hauswirtschaftsraum-Lichtschacht leiten? Die Alternative wäre eine Luft-Wasser-Wärmepumpe zur Innenaufstellung, hier habe ich jedoch von einigen Nachteilen (insb. Einschränkung auf wenige Hersteller) gelesen.
2. Es soll eine zentrale Kontrollierte-Wohnraumlüftung eingeplant werden. Hier wurde uns gesagt, dass dafür 2 Lichtschächte im Technikraum notwendig sind, jeweils einer für Zu- und Abluft. Nach etwas Einlesen kann ich das nicht ganz nachvollziehen, üblicher wäre doch entweder Zu/Abluft-Rohr durch die Kellerwand zu legen, ohne extra einen zusätzlichen Lichtschacht einzuplanen? Da diese vermutlich einen recht großen Durchmesser haben, wäre eine Verlegung durch den Hauswirtschaftsraum und den dortigen LIchtschacht vermutlich nicht so praktikabel...
Wie würdet ihr Luft-Wasser-Wärmepumpe Außengerät und Kontrollierte-Wohnraumlüftung-Zu und Abluft platzieren?
Danke schonmal für eure Unterstützung!
M
motorradsilke08.05.23 19:59Die Außeneinheit der Wärmepumpe auf jeden Fall irgendwo hinstellen, wo man nicht daran vorbeigeht. Der Luftzug, den das abgibt, ist nervig.
Hast du mal gefragt ob man das überhaupt durch den Lichtschacht legen kann? Das muss ja alles isoliert werden.
Ich kann dir mal Fotos von unseren Kontrollierte-Wohnraumlüftung / Luft-Wasser-Wärmepumpe Rohren schicken, vielleicht hilft dir das.
Wir hatten im alten Haus ein innen aufgestelltes Gerät (Tecalor THZ 504), als Kombigerät für Heizung/Lüftung. Wir waren damit eigentlich zufrieden.
Im neuen Haus kriegen wir eine Split-Wärmepumpe und eine separate Kontrollierte-Wohnraumlüftung.
Bei der Auswahl von Herstellern haben wir uns komplett auf die Kompetenzen des Installateurs gestützt.


Ich kann dir mal Fotos von unseren Kontrollierte-Wohnraumlüftung / Luft-Wasser-Wärmepumpe Rohren schicken, vielleicht hilft dir das.
Wir hatten im alten Haus ein innen aufgestelltes Gerät (Tecalor THZ 504), als Kombigerät für Heizung/Lüftung. Wir waren damit eigentlich zufrieden.
Im neuen Haus kriegen wir eine Split-Wärmepumpe und eine separate Kontrollierte-Wohnraumlüftung.
Bei der Auswahl von Herstellern haben wir uns komplett auf die Kompetenzen des Installateurs gestützt.
Ähnliche Themen