Hallo zusammen,
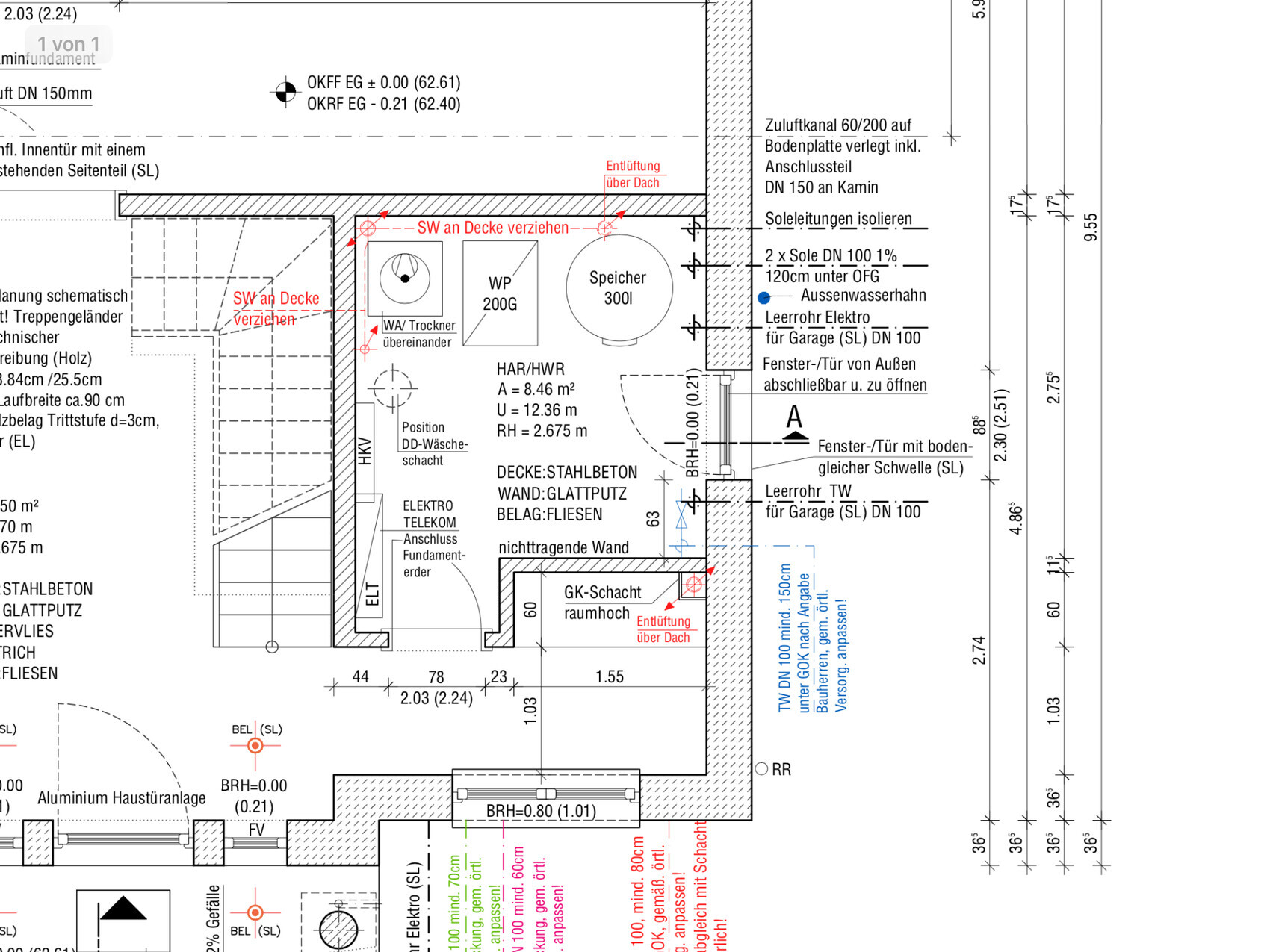
wir haben ein Riesen Haus aber nur einen kleinen Hauswirtschaftsraum. Nun wollen wir unbedingt unten eine freie Wand für Regale oder eine Arbeitsfläche haben. In der Ausführungsplanung tauchte nun plötzlich aber eine Wasseruhr an der Wand auf, die mich extrem stört. Unser Architekt sagt, man bekommt die oben nicht mit in die Reihe der Geräte.
Wie ist eure Einschätzung. Könnte man die nicht auch hinter die Waschmaschine setzen? Oder gibt es Vorschriften zur Zugänglichkeit o.ä.?
Grüße, Redsonic

wir haben ein Riesen Haus aber nur einen kleinen Hauswirtschaftsraum. Nun wollen wir unbedingt unten eine freie Wand für Regale oder eine Arbeitsfläche haben. In der Ausführungsplanung tauchte nun plötzlich aber eine Wasseruhr an der Wand auf, die mich extrem stört. Unser Architekt sagt, man bekommt die oben nicht mit in die Reihe der Geräte.
Wie ist eure Einschätzung. Könnte man die nicht auch hinter die Waschmaschine setzen? Oder gibt es Vorschriften zur Zugänglichkeit o.ä.?
Grüße, Redsonic
I
Irgendwoabaier05.01.17 00:11Naja, da gibt es in der Regel ein Drehventil vor der Uhr, eines hinter der Uhr - die Uhr muss ja ggf. mal ausgetauscht werden... Dann muss sie auch abgelesen werden können, ohne dass jedes Mal groß umgeräumt wird...
Man sollte also schon gut an die Uhr dran kommen. Und dann hängt es natürlich vom örtlichen Wasserversorger ab, was er an Vorschriften dazu hat.
Man sollte also schon gut an die Uhr dran kommen. Und dann hängt es natürlich vom örtlichen Wasserversorger ab, was er an Vorschriften dazu hat.
C
Caspar202005.01.17 08:05Z.b. Unser örtlicher Wasserversorger sagt folgendes:
- Der Netzanschluss muss außerhalb wie innerhalb des Gebäudes leicht zugänglich sein. Er darf außerhalb des Gebäudes nicht überbaut oder mit großen oder teuren Pflanzen überpflanzt, innerhalb des Gebäudes nicht eingemauert oder zugestellt werden.
Unser Anschluss ist zwischen Heizung und Wand.
Der wurde vom Wasserwerk nicht abgenommen. Die Installateure haben murrend die Uhr um einiges höher setzen müssen, damit man auch nach Jahren mit Zange das Teil austauschen kann.
Wenn Du Lust hast, Deine Waschmaschine 2 x im Jahr zu bewegen... ich hätte es nicht!
Ich habe allerdings auch darauf geachtet , dass ich eine Wand frei habe. Bei der Montage der Technik vor Ort ist also noch einiges an Absprache drin
Grüsse
Der wurde vom Wasserwerk nicht abgenommen. Die Installateure haben murrend die Uhr um einiges höher setzen müssen, damit man auch nach Jahren mit Zange das Teil austauschen kann.
Wenn Du Lust hast, Deine Waschmaschine 2 x im Jahr zu bewegen... ich hätte es nicht!
Ich habe allerdings auch darauf geachtet , dass ich eine Wand frei habe. Bei der Montage der Technik vor Ort ist also noch einiges an Absprache drin
Grüsse
Ähnliche Themen