Hausbau - Ratgeber
Bauherrenhilfe
- Bauherrenhilfe vor Vertragsabschluss
-- Warum einen unabhängigen Baubetreuer?
-- Vertragsgrundlagen
-- Bausumme
-- Zahlungsplan zur Kostenkontrolle
-- Pflichten des Bauherren vor Vertragsabschluss
-- Unterlagen beim Hausbau vor Vertragsabschluss
- Bauherrenhilfe nach Vertragsabschluss
-- Bauantrag bei Behörden
-- Bau-Genehmigungsverfahren bei Baubehörden
-- Bauspezifische Versicherungen
-- Bauzeitenplan
-- Baubeginn - die Letzten Pflichten der Bauherrschaft
- Bauherrenhilfe während der Bauzeit
- Gewährleistungsansprüche
- Bauabnahme
Baufinanzierung
- Baufinanzierung - Allgemeine Fragen
- Kreditarten
- Kredit-Konditionen
- Bausparen
- Staatliche Förderungen
- Verkehrswert
- Haushaltsrechnung und Bonität
Hausbau Planung
- Haustypen
- Hausbau Vorbereitungsarbeiten
- Das Baugrundstück
- Baugrund beim Hausbau
- Baurecht
- Gebäudeschutz
- Erdarbeiten und Wasserhaltung
- Stützmauern
- Einfriedung
- Untergeschoss
- Kanalisation
- Tragende Elemente
- Nichttragende Innenwände
- Fundation / Fundament
- Deckenkonstruktionen
- Dächer
- Kaminanlagen
- Treppen Rampen Leitern
- Dachbeläge und Spengler
- Fenster
- Sonnen und Wetterschutz
- Aussenputze
- Einbauten, Küchen, Türen
- Bodenbeläge und Unterlagsböden
- Parkett
- Gips, Wand, Decke
Haustechnik und Energie
- Heiztechnik
- Lüftung und Klimatechnik
- Sanitärtechnik
- Elektrotechnik
- Erneuerbare Energie
Whirlpools / Jacuzzi
Hausbau Magazin
- Baufinanzierung trotz Krise?
- Das Blockhaus
- Moderne Dämmstoffe im Vergleich
- Erker Vor- und Nachteile
- Glasflächen beim Hausbau
- Günstig ein Haus Bauen
- Mediterraner Hausbaustil
- Mehrgenerationenhaus
- Moderne Architektur
- Gartengestaltung leicht gemacht
- Traditioneller Ziegelbau
- Villa als höchster Traum
- Im Eigenheim Ruhestand geniessen
- Altbau sanieren
- Kauf einer Holzgarage
- Immobilienmakler
- Arbeitshandschuhe für den Winter
- Zuhause verschönern
- Outdoor-Plissees
- Schlafzimmer planen
- Terrassenüberdachung
- Wohngebäudeversicherung
- Girokonto für Bauherren finden
- Hauseingang gestalten
- Zaunarten und Eigenschaften
- Der perfekte Grundriss
- Sparsamer heizen im Altbau
- Einfamilienhaus smart finanzieren
- Planung einer PV-Anlage
- Neues Haus
- Immobilienfinanzierung
- Installation einer Photovoltaikanlage
- Asbest erkennen und entfernen
- Gartenpflege im Frühling – worauf achten
- Sauna im Fokus - Wellness zuhause
- Erfolgreich vermieten
- Die perfekte Winterbekleidung
- Das Niedrigenergiehaus
- Der April und seine Stürme
- Architektonische Vielfalt
- Ökologisch und nachhaltig bauen
- Das perfekte Schlafzimmer
- Nachhaltige Energieversorgung
- Zukunftsorientiert bauen
- Nachhaltigkeit beim Hausbau
- Tiny Houses
- Wärmepumpen als nachhaltige Heizvariante
- Maßgeschneiderten Kleiderschrank
- Der richtige Baukredit
- Ratgeber für erfolgreichen Hausbau
- Haus als Altersvorsorge
Do-it-yourself Anleitungen
- Verlegeanleitung für Bodenbeläge und Parkett
- Bodenbeläge und Parkett reinigen und pflegen
- Malerarbeiten am Haus
- Garten Tipps
- Umzug und Reinigung

ᐅ Planung Fitnessbereich

Erstellt am: 15.09.20 19:59
B
BiLa137
Hallo liebe Community,

ich bin neu hier und hoffe, dass der Post im richtigen Unterforum gelandet ist.

Wir haben ein Grundstück gekauft (2000 qm Bauland, 1000 qm Grünland) und sind nun in der Planungsphase. Einig sind wir uns darüber, dass es ein Fertighaus in Holzständerbauweise werden soll. Wir dürfen nur eingeschossig bauen, so dass es auf einen 1,5 Geschosser mit Satteldach hinaus läuft. Aktuell haben wir uns Angebote von Bien-Zenker und Okal Haus machen lassen...aber so 100% überzeugt sind wir noch nicht.

Doch nun zu meinem heutigen Anliegen:
Ich sitze schon einige Wochen über dem Grundriss und stehe immer wieder vor der Frage, wie bzw. wo man unseren Fitnessbereich am Besten unterbringt. Wir sind beide leidenschaftliche "Hobbykraftsportler" und wollen uns gerne endlich den Traum eines eigenen kleinen Fitnessbereiches verwirklichen. Wir benötigen schätzungsweise 30 qm Fläche.
Von einem Keller (1 großer Raum als Wohnkeller ausgebaut, der Rest Nutzkeller) wurde uns seitens der Baufirmen und eines Architekten eher abgeraten. Aktuell wird der Fitnessbereich als Anbau geplant (30.000 Euro Kosten), den man durch den Hauswirtschaftsraum erreicht. Ich finde einen Keller eigentlich deutlich besser, da wir dort auch die Technik und Hauswirtschaftsraum unterbringen könnten, so dass wir eine generelle kleinere Grundfläche des Hauses benötigen würden.
Mit Anbau hat das Haus aktuell eine Größe von 195 qm.

Habt ihr andere Ideen/Vorschläge? Oder selber einen Fitnessbereich im Haus geplant?

Ich freue mich über Feedback!
B
BiLa137
17.09.20 12:48
ypg schrieb:

Ich habe mich jetzt bis Seite 4 durchgekämpft, um endlich Grundrisse zu sehen.
Ich bin enttäuscht!

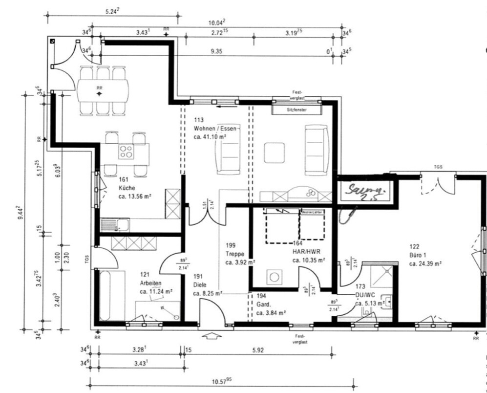
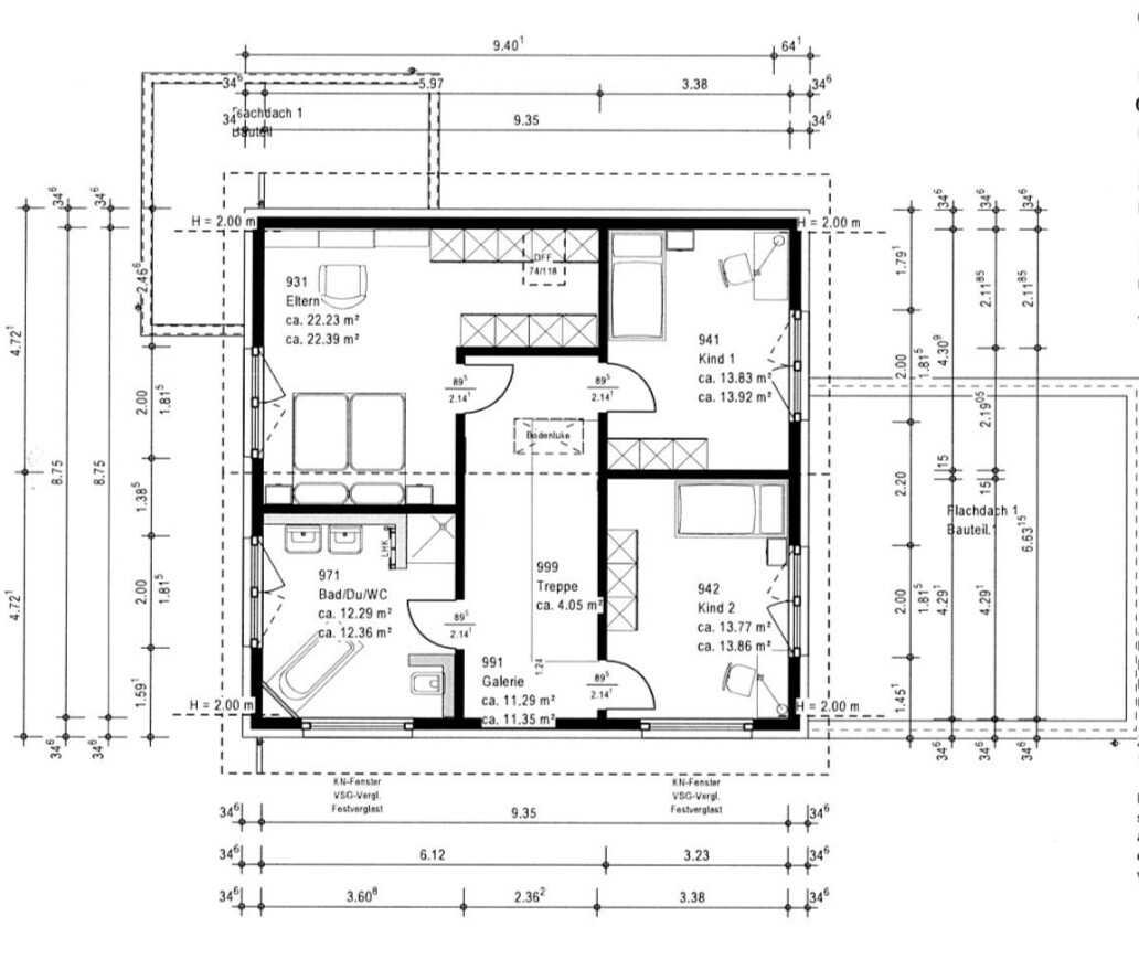
so jetzt kommt mal eine Grundrissidee von einem der BT. Wir setzen uns aber privat nochmal mit einem Architekten zusammen und basteln an dem für uns perfekten Grundriss. Den poste ich dann sicherlich auch noch für Verbesserungsvorschläge etc.
Grundriss eines Hauses mit Küche, Essen/Wohnen, Büro, Arbeitsraum, Diele, Treppe und Bad.

Grundriss eines Hauses: Eltern, zwei Kinderzimmer, Bad, Treppe, Galerie.
11ant17.09.20 14:15
hanse987 schrieb:

Für mich wäre eine Gartenhütte nichts.
Ich hatte den betreffenden Lesetip nicht gegeben, weil dort allerlei Alternativen diskutiert werden, sondern weil dabei auch herausgearbeitet wird, warum und in jeweils welchem Maße sie Totgeburten sind.
https://www.instagram.com/11antgmxde/
https://www.linkedin.com/company/bauen-jetzt/
A
Alessandro
17.09.20 14:54
Scout schrieb:

Oh mein Gott, Training und dann noch schwitzen dabei? Das geht ja mal gar nicht, Gott bewahre!

mein Fitnessstudio ist unklimatisiert. Teilweise hat es da 40°C +, und das über Wochen.
Zwischen schwitzen und kollabieren ist ein Unterschied.
S
Scout
17.09.20 15:08
Wohnst du in Südspanien?
Alessandro schrieb:

Teilweise hat es da 40°C +, und das über Wochen.

Bei TE ging ich eigentlich nicht davon aus, dass er in Südspanien ein Haus bauen möchte.

Und selbst dort geht sowas, da empfehle ich mal einen Besuch in Venice Beach, genauer am"Muscle Beach"....
A
Alessandro
17.09.20 15:11
mein Fitnessstudio liegt in Mittelhessen
Muss ich dir jetzt erklären dass, wenn die Sonne tagelang einen kleinen Raum ohne Beschattung aufheizt, es unerträglich darin wird?
Ich schwitze gern beim Training, aber mir soll die Suppe nicht schon runterlaufen wenn ich mir die Schnürsenkel binde
A
Alessandro
17.09.20 15:14
am besten du gehst mal im Hochsommer auf den Speicher und versuchst dort mal länger als eine halbe Stunde normal zu atmen
Denn genau so ist es in einem Anbau ohne Beschattung, Kontrollierte-Wohnraumlüftung, oder AC
beschattung