B
Bertram10022.09.19 20:34Hallo Forum,
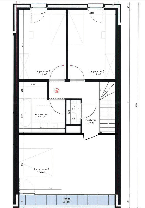
Ich raufe mir ein bisschen die Haare bzgl. des Badezimmers. Ich habe ein Haus im Rohbau gekauft. Das Bad finde ich schwierig einzurichten. Ich möchte nur eine Dusche, eine Badewanne ist nicht nötig (es sei denn der Platz ist wirklich übrig). Und natürlich ein waschbecken.
Der Grundriss ist schon so gemauert wie im Plan angegeben. Änderungen sind möglich, kosten aber. Darum will ich das lieber vermeiden.
Zusätzlich zur Badezimmerfrage bin ich mir auch gar nicht sicher wo ich die Waschmaschine hinplanen soll. Sie ist unten im EG im Vorrats-/Technikraum vorgesehen. Praktischer wäre sie oben bei den Schlafzimmern. Da wo ich Wasche auch anfällt. Dann müsste sie ins Bad. Aber ich weiss gar nicht genau wie und wo (und eine Waschmaschine ist so hässlich...)
Ich hoffe, jemand von euch hat eine Idee. Ich stehe gerade auf dem (Waschmaschine-)Schlauch.
Falls euch die Farben im EG interessieren: Rot stellt die Küche dar mit Esstisch links, blau ist ein Sofa mit Tisch und einem Sessel, grau sind ein paar kleinere Möbel und der gelbe Kreis ist mein Musizierplatz (Gitarre).


Ich raufe mir ein bisschen die Haare bzgl. des Badezimmers. Ich habe ein Haus im Rohbau gekauft. Das Bad finde ich schwierig einzurichten. Ich möchte nur eine Dusche, eine Badewanne ist nicht nötig (es sei denn der Platz ist wirklich übrig). Und natürlich ein waschbecken.
Der Grundriss ist schon so gemauert wie im Plan angegeben. Änderungen sind möglich, kosten aber. Darum will ich das lieber vermeiden.
Zusätzlich zur Badezimmerfrage bin ich mir auch gar nicht sicher wo ich die Waschmaschine hinplanen soll. Sie ist unten im EG im Vorrats-/Technikraum vorgesehen. Praktischer wäre sie oben bei den Schlafzimmern. Da wo ich Wasche auch anfällt. Dann müsste sie ins Bad. Aber ich weiss gar nicht genau wie und wo (und eine Waschmaschine ist so hässlich...)
Ich hoffe, jemand von euch hat eine Idee. Ich stehe gerade auf dem (Waschmaschine-)Schlauch.
Falls euch die Farben im EG interessieren: Rot stellt die Küche dar mit Esstisch links, blau ist ein Sofa mit Tisch und einem Sessel, grau sind ein paar kleinere Möbel und der gelbe Kreis ist mein Musizierplatz (Gitarre).
B
Bertram10022.09.19 21:28Ich sehe gerade dass Leute meine Thread als eher "schlecht" raten. Fehlt irgendwas oder ist etwas undeutlich? Ich kann nicht direkt sehen was an dem Faden "eher schlecht" sein soll? Vielleicht können die Rater ja was dazu sagen?
A
allstar8322.09.19 21:49Bertram100 schrieb:
Ich sehe gerade dass Leute meine Thread als eher "schlecht" raten. Fehlt irgendwas oder ist etwas undeutlich? Ich kann nicht direkt sehen was an dem Faden "eher schlecht" sein soll? Vielleicht können die Rater ja was dazu sagen?Das passiert mobil leider oft aus Versehen dass man mit nur einem Stern ratet...B
Bertram10023.09.19 09:19Ok, allstar83, dann warte ich erst mal ab. Ich dachte dass ich eventuell etwas wichtiges vergessen habe.
H
hampshire23.09.19 09:28Die Waschmaschine im Bad oben ist sinnvoll und bei Verzicht auf die Badewanne auch gut unterzubringen. Eine "schöne" Maschine zu finden ist schwierig. Eine Maschine in einem kleinen Schrank verschwinden zu lassen ist dagegen leicht.
Ähnliche Themen