Hallo zusammen!
Wir sind gerade dabei, unsere Terrassenüberdachung zu planen. Bzw. wo wir die Terrasse setzen und diese überdachen...
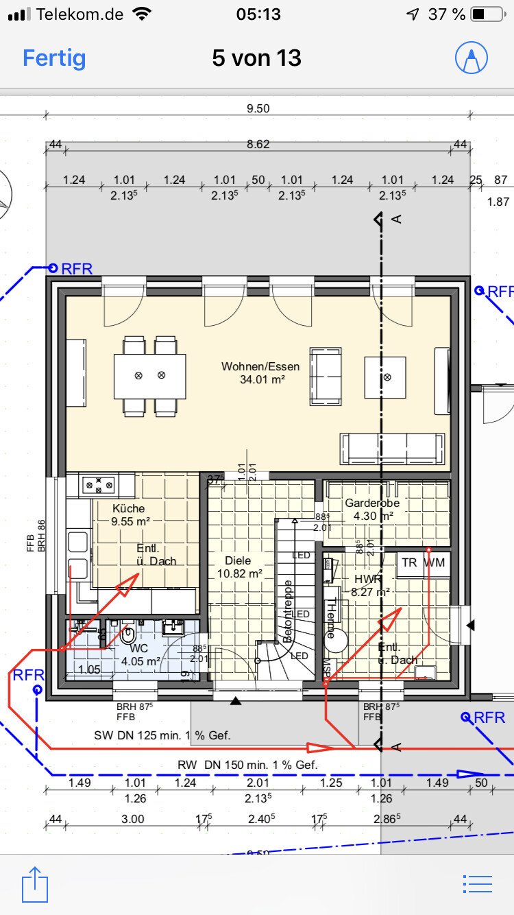
Anbei einmal der Grundriss von unserem EG.
Unsere Gedanken waren es, die Terrasse incl. Terrassenüberdachung (5m breit, 4m tief, satiniertes VSG-Glas) in die Mitte des Hauses zu setzen. Diese würde dann genau an den „Innenseiten“ der beiden Äußeren Glastüren angrenzen.
Jetzt kam mir aber der Gedanke, ob uns dann im Allraum nicht zu viel Licht geklaut wird...
Mir kam dann die Idee, die Terrasse incl. Überdachung an die Rechte Hausecke bündig zu setzen und dann bis zur Hausmitte (Überdachung auf 4,75m breite wählen) zu gehen. Sodas man quasi nur das Wohnzimmer etwas abdunkelt. Könnte zum Fernsehschauen bei Tageslicht evtl. sogar angenehmer sein...
Oder meint ist das satiniertes Glas sowieso die volle Helligkeit durchlässt und wir uns keine Gedanken machen müssen?

Wir sind gerade dabei, unsere Terrassenüberdachung zu planen. Bzw. wo wir die Terrasse setzen und diese überdachen...
Anbei einmal der Grundriss von unserem EG.
Unsere Gedanken waren es, die Terrasse incl. Terrassenüberdachung (5m breit, 4m tief, satiniertes VSG-Glas) in die Mitte des Hauses zu setzen. Diese würde dann genau an den „Innenseiten“ der beiden Äußeren Glastüren angrenzen.
Jetzt kam mir aber der Gedanke, ob uns dann im Allraum nicht zu viel Licht geklaut wird...
Mir kam dann die Idee, die Terrasse incl. Überdachung an die Rechte Hausecke bündig zu setzen und dann bis zur Hausmitte (Überdachung auf 4,75m breite wählen) zu gehen. Sodas man quasi nur das Wohnzimmer etwas abdunkelt. Könnte zum Fernsehschauen bei Tageslicht evtl. sogar angenehmer sein...
Oder meint ist das satiniertes Glas sowieso die volle Helligkeit durchlässt und wir uns keine Gedanken machen müssen?
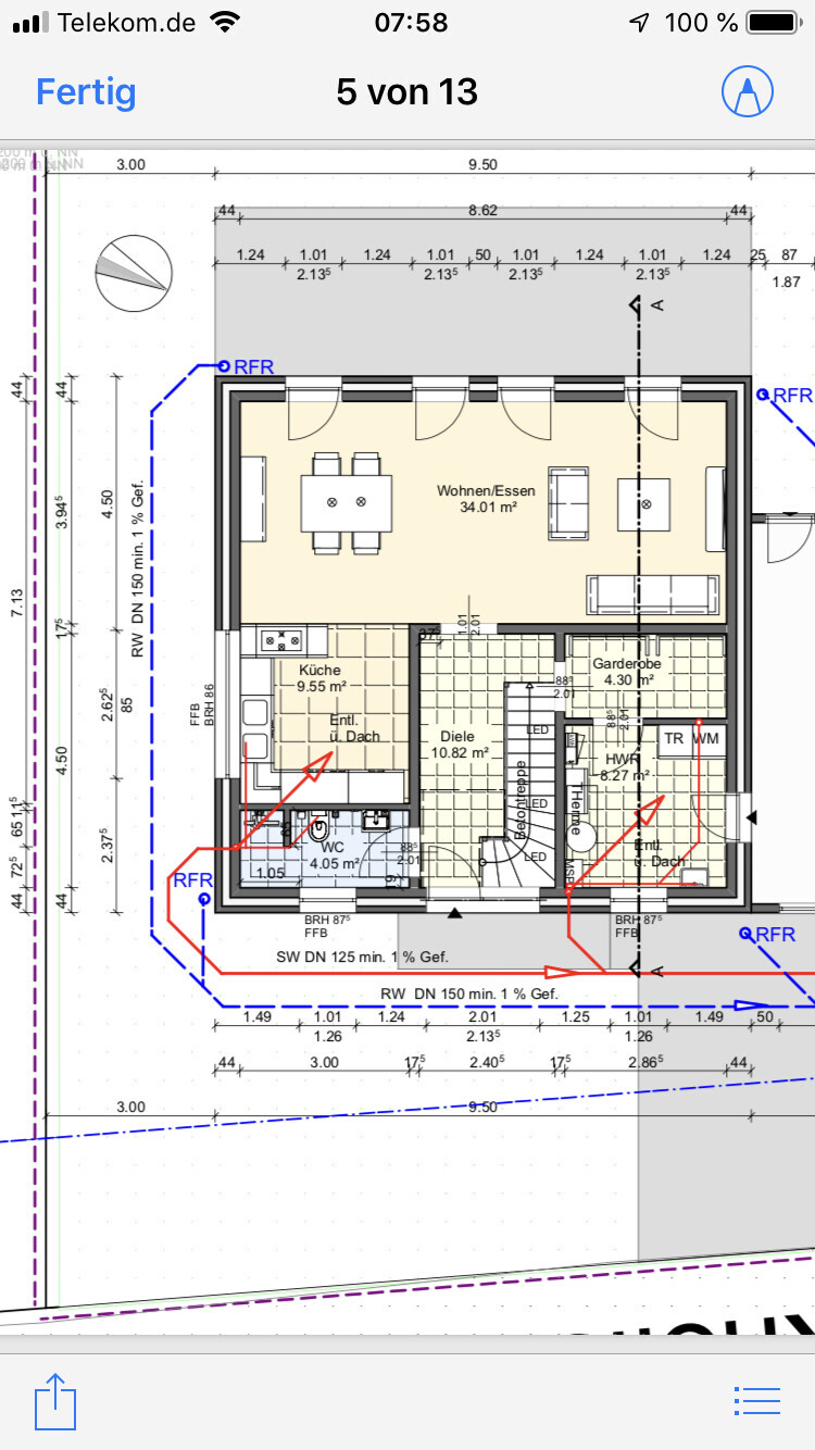
Hier die Zeichnung noch einmal mit Nordpfeil.
Entschuldigung, darauf hätte ich auch eher achten können.
Die Terrasse soll natürlich zum Grillen, sitzen, gemütliche abendstunden usw benutzt werden.
Und ja, die Möbel werden ungefähr so stehen wie eingezeichnet.
Und das satinierte soll nicht vorrangig zur Verschattung dienen, sondern auch damit man den Schmutz auf dem Dach nicht so sieht, wie bei Klarglas.

Entschuldigung, darauf hätte ich auch eher achten können.
Die Terrasse soll natürlich zum Grillen, sitzen, gemütliche abendstunden usw benutzt werden.
Und ja, die Möbel werden ungefähr so stehen wie eingezeichnet.
Und das satinierte soll nicht vorrangig zur Verschattung dienen, sondern auch damit man den Schmutz auf dem Dach nicht so sieht, wie bei Klarglas.
Ähnliche Themen