Hallo zusammen,
anbei die aktuelle Badplanung für unser Familenbad im OG mit 11,5qm Gesamtfläche.
Dieses ist im OG einer Stadtvilla mit 155qm ohne Keller, Bad befindet sich an der Nord-West Ecke des Hauses.
Bewohner: 2 Erwachsene und 2 Kinder (6+10 Jahre)
Die Wände sind fix, Fenster- und Türenmaße auch. Die Positionen der Tür könnte
noch auf der Wand geschoben werden.
Es geht um eure Meinung und Verbesserungsvorschläge zur Größe, Anordnung von Dusche/WC/waschbecken/Wanne bzw. Vorwänden.
Die 3D Ansichten wurden mit dem V&C Badplaner erstellt, daher sind einige Details nicht richtig dargestellt:
- Der Duschbereich bekommt eine Ablaufrinne an der Fensterseite.
- Der Duschbereich hat eine Größe von 90 x 160cm (b x l)
- Badewanne wird eine Schröder Luzern Eckwanne mit 165 x 90cm (b x l)
In die Ecke hinter der Tür soll der Wäschekorb und noch ein Badmöbel (Regal, Kommode, Schränkchen)
Ein elektr. Handtuchheizkörper wird nachgerüstet, falls in der Praxis nötig. Wärmebedarfsrechung sieht keinen vor.



anbei die aktuelle Badplanung für unser Familenbad im OG mit 11,5qm Gesamtfläche.
Dieses ist im OG einer Stadtvilla mit 155qm ohne Keller, Bad befindet sich an der Nord-West Ecke des Hauses.
Bewohner: 2 Erwachsene und 2 Kinder (6+10 Jahre)
Die Wände sind fix, Fenster- und Türenmaße auch. Die Positionen der Tür könnte
noch auf der Wand geschoben werden.
Es geht um eure Meinung und Verbesserungsvorschläge zur Größe, Anordnung von Dusche/WC/waschbecken/Wanne bzw. Vorwänden.
Die 3D Ansichten wurden mit dem V&C Badplaner erstellt, daher sind einige Details nicht richtig dargestellt:
- Der Duschbereich bekommt eine Ablaufrinne an der Fensterseite.
- Der Duschbereich hat eine Größe von 90 x 160cm (b x l)
- Badewanne wird eine Schröder Luzern Eckwanne mit 165 x 90cm (b x l)
In die Ecke hinter der Tür soll der Wäschekorb und noch ein Badmöbel (Regal, Kommode, Schränkchen)
Ein elektr. Handtuchheizkörper wird nachgerüstet, falls in der Praxis nötig. Wärmebedarfsrechung sieht keinen vor.
Mmh...funktioniert wahrscheinlich, aber ich bin ehrlich ich finde es ganz schön auf Kante genäht das "T". Sind das Rohbaumaße?
Wir haben 305cm Breite und uns dagegen entschieden.
In dem "Kloeck" kannst Dich gerade mal drehen. 122 cm da ziehst mal knapp 60 cm für ein WC ab (im Hauptbad würde ich kein so ein Kurz-WC machen) bleiben 60cm vor dem WC. Bei 90cm Duschbreite gehe ich davon aus das WC ebenso. Das ist Mindestbreite was man so hernimmt.
90cm Duschbreite ist auch gerade mal so und alles andere als großzügig. Ich finde die T-Lösung "verkleinert" hier den Raum. Würde ich persönlich nicht machen. Aber ist ja Deine Entscheidung. Finde nur es sollte mal erwähnt sein, dass der Raum meiner Meinung nach aller unterste Kante für ein T ist. Da schaut auf der "Animation" vielleicht großzügiger aus. Vor allem sollten es Rohbaumaße sein. Zieh Putz/Fließ und vielleicht 1-2cm Ungenauigkeit ab, da fehlen Dir auf einmal 5cm.
Wir haben 305cm Breite und uns dagegen entschieden.
In dem "Kloeck" kannst Dich gerade mal drehen. 122 cm da ziehst mal knapp 60 cm für ein WC ab (im Hauptbad würde ich kein so ein Kurz-WC machen) bleiben 60cm vor dem WC. Bei 90cm Duschbreite gehe ich davon aus das WC ebenso. Das ist Mindestbreite was man so hernimmt.
90cm Duschbreite ist auch gerade mal so und alles andere als großzügig. Ich finde die T-Lösung "verkleinert" hier den Raum. Würde ich persönlich nicht machen. Aber ist ja Deine Entscheidung. Finde nur es sollte mal erwähnt sein, dass der Raum meiner Meinung nach aller unterste Kante für ein T ist. Da schaut auf der "Animation" vielleicht großzügiger aus. Vor allem sollten es Rohbaumaße sein. Zieh Putz/Fließ und vielleicht 1-2cm Ungenauigkeit ab, da fehlen Dir auf einmal 5cm.
H
hampshire21.01.20 12:48bafische schrieb:
Haben noch andere Leser mit der Duschwandlänge und Wasseraustritt Erfahrungen?Hab mal den Disto gezückt:
Duschbereichsfläche ist 1,45 m x 1,35 m, Seitenwände 2,10 m hoch, Öffnung 0,71 m an der kürzeren Seite.
Duschender ist 1,83 m hoch
Regendusche ist auf 2,22 m,
Wasser von Regendusche spritzt 1,50 m weit vom Standort des Duschenden
Fazit: Etwas Wasser kommt auch an der Öffnung vorbei bis etwa 30 cm nach draußen.
Dort läuft aber niemand entlang und nach dem Duschen wird einmal "abgezogen".
P
pffreestyler21.01.20 13:27Unsere Dusche hat 1,0x1,6. Als Minimum ohne Tür/Vorhang und ohne Enge würde ich persönlich 0,9x1,5 ansehen. Aber wie hampshire schon gesagt hat, wenn es 10 cm rausspritzt, wird's halt einfach abgezogen. Null Problemo.
Wir haben die Trennwand bis unter die Decke gezogen. Uns fehlt das Glas nicht und zu dunkel ist es auf der anderen Seite auch nicht. Wobei es mit Glas sicherlich stylisher ist.
Wir haben die Trennwand bis unter die Decke gezogen. Uns fehlt das Glas nicht und zu dunkel ist es auf der anderen Seite auch nicht. Wobei es mit Glas sicherlich stylisher ist.
das Bessere ist des Guten Feind....
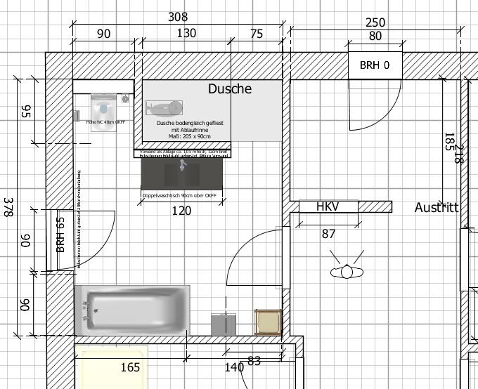
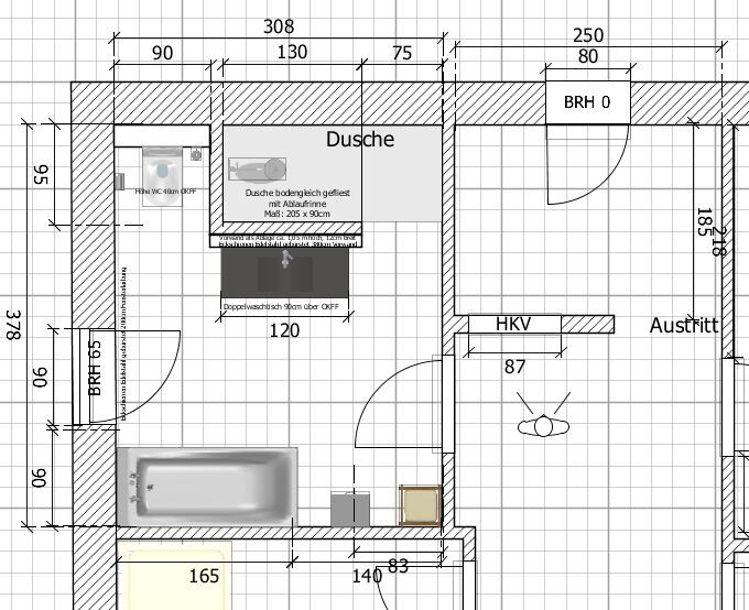
@face26, ja 11,5qm und 308 cm Breite ist die quetscht-Version für ein T-Bad. Wir haben es in Natura schon mal gesehen und fanden die Aufteilung des Bades in mehrere Zonen durch das "T" trotz der engen Maße sehr gut.
Ja, sind alles Rohbaumaße.
Habe mal aus dem "T" ein "L" gemacht, wie bei Katdreas...

Finde ich auf den ersten Blick gefälliger. Der Duschbereich ist jetzt 205 x 95cm (vorher 160 x 90cm) , die "Spritzwand" bei 130cm (vorher 90cm). Die Dusch-Spritz Problematik sollte dadurch besser in den Griff zu bekommen sein, das Klo-Eck ist nach vorne nicht mehr so beengt, dafür aber einsehbarer. Hm? Wie findet ihr diese Variante?
Des Weiteren hat uns unser Planer gesagt, dass die Wände, egal ob "T" oder "L" Deckenhoch sein müssten, aus Stabilitätsgründen. Hat ihr das alle auch? Oder gibt es auch Versionen mit ~2,20m hohen "T" oder "L" Wänden? Die nicht hohen Trennwände sollten doch auch für mehr Licht sorgen, oder?
@face26, ja 11,5qm und 308 cm Breite ist die quetscht-Version für ein T-Bad. Wir haben es in Natura schon mal gesehen und fanden die Aufteilung des Bades in mehrere Zonen durch das "T" trotz der engen Maße sehr gut.
Ja, sind alles Rohbaumaße.
Habe mal aus dem "T" ein "L" gemacht, wie bei Katdreas...
Finde ich auf den ersten Blick gefälliger. Der Duschbereich ist jetzt 205 x 95cm (vorher 160 x 90cm) , die "Spritzwand" bei 130cm (vorher 90cm). Die Dusch-Spritz Problematik sollte dadurch besser in den Griff zu bekommen sein, das Klo-Eck ist nach vorne nicht mehr so beengt, dafür aber einsehbarer. Hm? Wie findet ihr diese Variante?
Des Weiteren hat uns unser Planer gesagt, dass die Wände, egal ob "T" oder "L" Deckenhoch sein müssten, aus Stabilitätsgründen. Hat ihr das alle auch? Oder gibt es auch Versionen mit ~2,20m hohen "T" oder "L" Wänden? Die nicht hohen Trennwände sollten doch auch für mehr Licht sorgen, oder?
@lastdrop,
wie hoch ist denn euer "T", normaler Trockenbau, gemauert oder beides?
Wie dick sind denn die Wände, also die kurze Wand zwischen Klo und Dusche (hab ich mit 20cm geplant - ohne Fliese) und die breite Wand mit dem Waschbecken (hab hier 12cm, Deckenhoch + 12 cm Vorwand 105cm angenommen - beides ohne Fliese)
wie hoch ist denn euer "T", normaler Trockenbau, gemauert oder beides?
Wie dick sind denn die Wände, also die kurze Wand zwischen Klo und Dusche (hab ich mit 20cm geplant - ohne Fliese) und die breite Wand mit dem Waschbecken (hab hier 12cm, Deckenhoch + 12 cm Vorwand 105cm angenommen - beides ohne Fliese)
Ähnliche Themen