ᐅ Meinung zur Küchengröße bzw. Raumplan
Erstellt am: 23.09.19 10:18
Hallo zusammen,
wir befinden uns gerade in der Planungsphase unseres Einfamilienhaus.
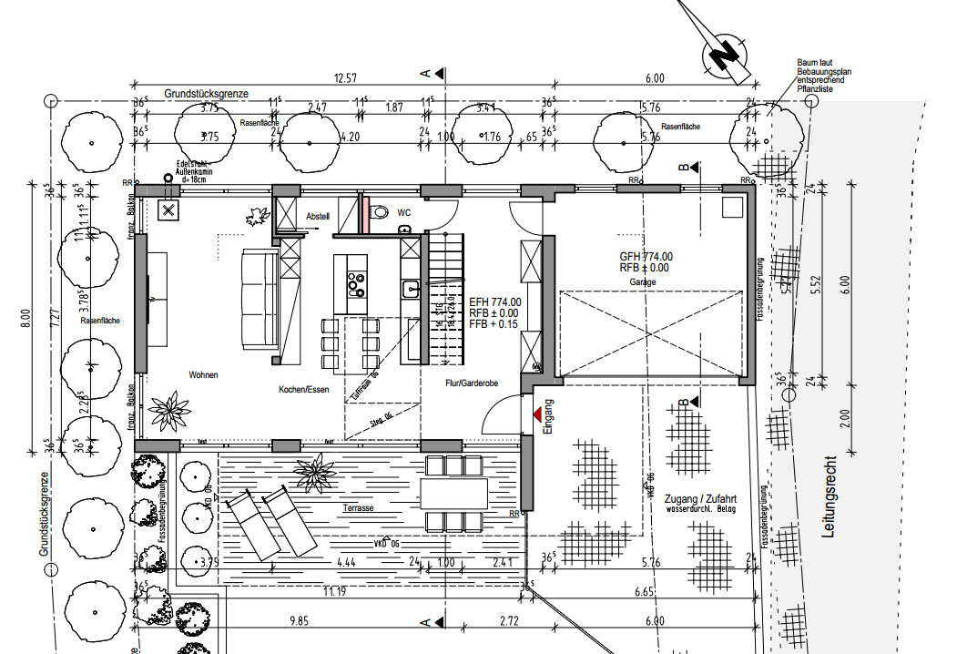
Ich würde gerne mal eure Meinung bzgl. Küchengröße hören. Ist eurer Meinung nach eine Küchenzeile mit ca. 3,78m + Insel + einzelner Hochschrank/Kühlschrank ausreichend?
In unserer aktuellen Wohnung haben wir ca. 2,90m Küchenzeile + Insel. Hier ist uns die Arbeitsplatte leider doch ab und zu zu klein:

Alternative könnte sein, dass wir den Tisch drehen und dann hinterm sofa noch halbhohe Schränke mit Arbeitsplatte anbringen könnten. Allerdings gefällt mir dies nicht so wirklich:

Vielen Dank für eure Meinungen!
Gruß Hannes
wir befinden uns gerade in der Planungsphase unseres Einfamilienhaus.
Ich würde gerne mal eure Meinung bzgl. Küchengröße hören. Ist eurer Meinung nach eine Küchenzeile mit ca. 3,78m + Insel + einzelner Hochschrank/Kühlschrank ausreichend?
In unserer aktuellen Wohnung haben wir ca. 2,90m Küchenzeile + Insel. Hier ist uns die Arbeitsplatte leider doch ab und zu zu klein:
Alternative könnte sein, dass wir den Tisch drehen und dann hinterm sofa noch halbhohe Schränke mit Arbeitsplatte anbringen könnten. Allerdings gefällt mir dies nicht so wirklich:
Vielen Dank für eure Meinungen!
Gruß Hannes
F
Fummelbrett!23.09.19 14:02Meine erste Idee dazu:

Das wäre quasi ein großes U. Hätte auch den Vortei, dass man z.B. nach dem Einkaufen die Tasche nahe dem Abstellraum zum Einräumen abstellen kann. Mehr Arbeitsfläche gibt es auch, nachdem man den unteren Schenkel auch tiefer als 60cm Standardtiefe gestalten kann - nur bleibt dann irgendwann kein (schöner) Platz mehr für den Esstisch.
Was ich nicht erkennen kann: Gibt es zwischen der Couch und der Küche eine Abtrennung, zumindest eine halbhohe Mauer, oder ist das komplett offen?
Das wäre quasi ein großes U. Hätte auch den Vortei, dass man z.B. nach dem Einkaufen die Tasche nahe dem Abstellraum zum Einräumen abstellen kann. Mehr Arbeitsfläche gibt es auch, nachdem man den unteren Schenkel auch tiefer als 60cm Standardtiefe gestalten kann - nur bleibt dann irgendwann kein (schöner) Platz mehr für den Esstisch.
Was ich nicht erkennen kann: Gibt es zwischen der Couch und der Küche eine Abtrennung, zumindest eine halbhohe Mauer, oder ist das komplett offen?
Fummelbrett! schrieb:
Was ich nicht erkennen kann: Gibt es zwischen der Couch und der Küche eine Abtrennung, zumindest eine halbhohe Mauer, oder ist das komplett offen?Hi, vielen Dank für deine Antwort. Nein, hier wollten wir bewusst keine Abtrennung, sondern alles offen. Hier sind lediglich zwei Stützsäulen (links und rechts neben dem Sofa) geplant.
Hmm mit dem U wird es ziemlch eng. Der Gedanke mit den Einkäufen und der Abstellkammer ist natürlich nicht schlecht. Hmm...
F
Fummelbrett!23.09.19 18:06hippjoha schrieb:
Hi, vielen Dank für deine Antwort. Nein, hier wollten wir bewusst keine Abtrennung, sondern alles offen. Hier sind lediglich zwei Stützsäulen (links und rechts neben dem Sofa) geplant.Okay. Der Kühlschrank (ist doch das Kästchen oben links in der Küche, oder?) ist dann eigentlich ziemlich blöd positioniert. Wenn er wirklich dort steht, sitzt ihr auf der Couch mit dem Ohr am Kühlschrank... Seid ihr vielleicht mal in einem Küchenstudio gewesen? Wenn es ein Gutes ist, dann können die euch sicher sehr wertvolle Tipps geben. Ich finde den Schnitt an sich recht schwierig, muss aber auch gestehen dass ich persönlich kein Fan offener Küchen bin.
hippjoha schrieb:
Hmm mit dem U wird es ziemlch eng. Der Gedanke mit den Einkäufen und der Abstellkammer ist natürlich nicht schlecht. Hmm...Ja, das wird 'ne enge Kiste. Aber da muss man ja noch mehr rausholen können. Habt ihr Hängeschränke geplant bzw. wie soll der Stil generell sein?
H
hampshire23.09.19 18:20Natürlich reicht der Küchenplatz aus, wenn man nicht zum Horten von Geschirr, Töpfen und Vorräten neigt und auch nicht für jede Tätigkeit eine Küchenmaschine angeschafft hat. Mir gefällt der offene Entwurf. Etwas anders denken hilft oft das richtige Haus für sich zu bauen - es sei denn man baut für Andere, dann helfen die ganzen Standard-Regeln. Wir kommen beispielsweise in einem Haus für 4 Personen mit 5 Innentüren aus. Das plant erst mal keiner so. Uns ist das aber genau recht. Habe Mut zur eigenen Idee.
Ähnliche Themen