ᐅ Lichtplanung - Position, Anzahl Einbaustrahler, Ideen
Erstellt am: 03.05.19 11:41
Hallo zusammen,
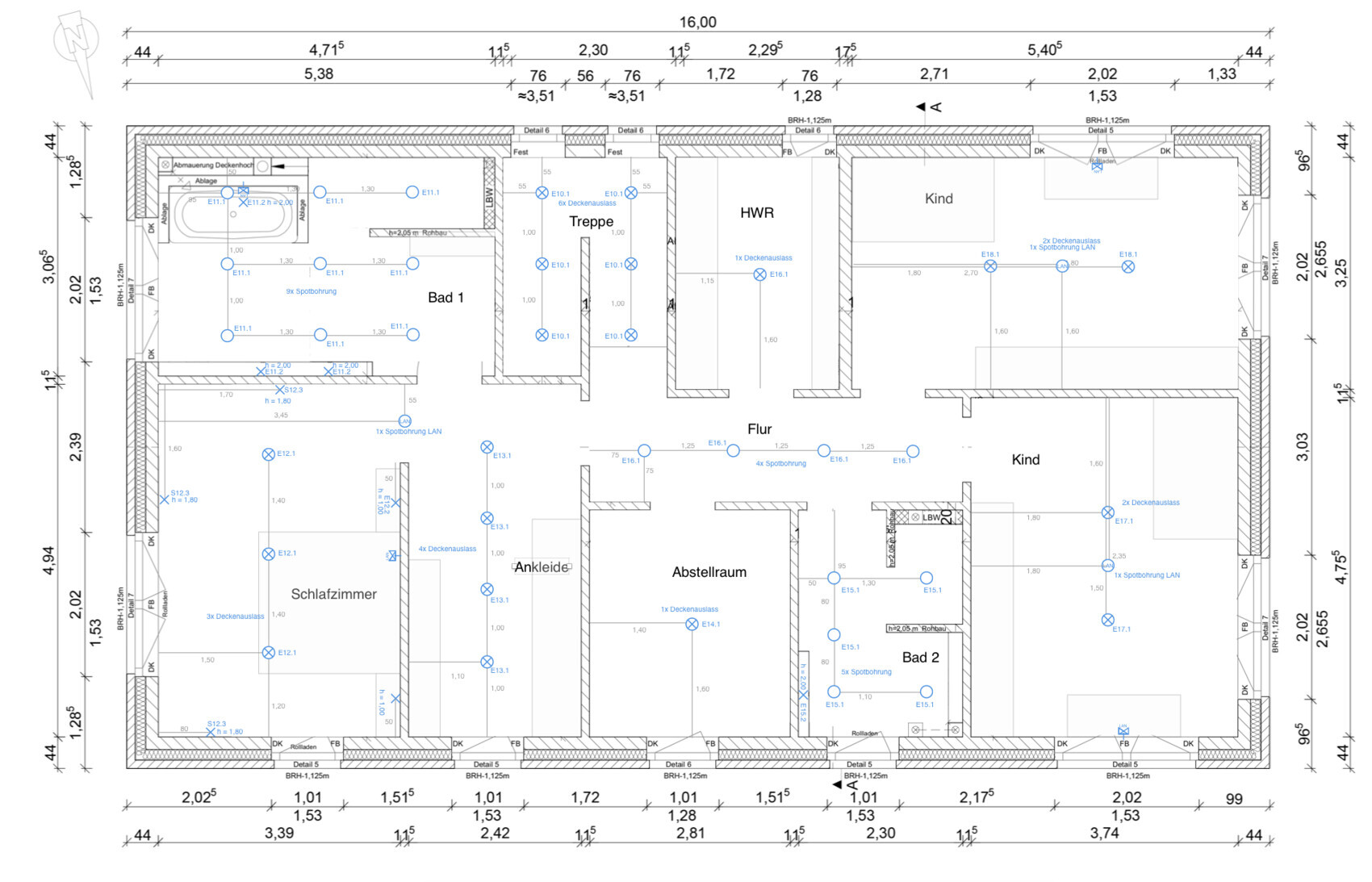
unser Hausbau schreitet voran und wir versuchen gerade, die Elektroplanung zu finalisieren und bei der Lichtplanung habe ich noch ein paar Fragezeichen, bei denen ihr mir evtl. helfen könnt. Ich habe mal die Pläne für EG und OG angehangen sowie eine kurze Übersicht der geplanten Strahler. Folgende Fragen stellen sich uns:



unser Hausbau schreitet voran und wir versuchen gerade, die Elektroplanung zu finalisieren und bei der Lichtplanung habe ich noch ein paar Fragezeichen, bei denen ihr mir evtl. helfen könnt. Ich habe mal die Pläne für EG und OG angehangen sowie eine kurze Übersicht der geplanten Strahler. Folgende Fragen stellen sich uns:
- Grundsätzlich: Gibt es Verbesserungsvorschläge, v.a. bei der Positionierung der Einbaustrahler (Ess- und Wohnzimmer, Flure, OG-Bäder), aber auch der Decken- und Wandauslässe. Fällt euch etwas auf, das wir übersehen oder falsch gemacht haben? Gibt es subjektive Anmerkungen, wo ihr anders heran gegangen wärt?
- Wir haben nur 2 Strahlergruppen im Wohn-Ess-Bereich. Wir hatten vor kurzem ein Negativbeispiel mit insg. 6 Gruppen bei quasi gleicher Fläche, wo mir das viel zu kleinteilig war. Seht ihr für die Praxis bei den 2 Gruppen Nachteile oder Optimierungspotential?
- Einschätzung der Lichtmenge: Ich habe viel von der Empfehlung gelesen, in Wohnräumen ~150lm/qm, in Bädern und Küche eher 300lm/qm anzupeilen. Wie ihr in der Übersicht sehen könnt, liegen wir teilweise deutlich darüber. Im Ess- und Wohnzimmer weil wir dimmen können, in den Bädern, weil hier die allgemeinen Empfehlungen nicht zu meiner Praxiserfahrung passten. Wir haben gerade erst wieder ein Duschbad mit ~7qm erlebt, bei dem insg. 8 Einbaustrahler à 700lm installiert waren (also 800lm/qm). Das ist aber entgegen meiner Erwartung absolut nicht gleißend hell, sondern völlig in Ordnung. Nicht "gemütlich hell", sondern "schön hell". Kann mir jemand diese Abweichung erklären?
D
DanielHamburg03.05.19 12:07Moin,
im Wohnzimmer wären mir die Strahler viel zu ungemütlich.
Habe in der Küche 6 Brumberg Strahler mit MR16-LED-Spot 30938 (550 lm), das reicht mir von der Helligkeit vollkommen aus. Küche ist ähnlich groß.
In der Küche würde ich darauf achten, dass die Strahler über der Arbeitsfläche sind, da man sonst selbst einen Schatten auf die Fläche wirft.
Im Bad haben wir weniger Strahler, aber zusätzliches Licht vom Spiegelschrank. Für uns reicht das völlig, ist vielleicht aber auch Geschmackssache? Mir wären das deutlich zu viele Strahler im Bad.
im Wohnzimmer wären mir die Strahler viel zu ungemütlich.
Habe in der Küche 6 Brumberg Strahler mit MR16-LED-Spot 30938 (550 lm), das reicht mir von der Helligkeit vollkommen aus. Küche ist ähnlich groß.
In der Küche würde ich darauf achten, dass die Strahler über der Arbeitsfläche sind, da man sonst selbst einen Schatten auf die Fläche wirft.
Im Bad haben wir weniger Strahler, aber zusätzliches Licht vom Spiegelschrank. Für uns reicht das völlig, ist vielleicht aber auch Geschmackssache? Mir wären das deutlich zu viele Strahler im Bad.
Ich finde das ganze Wohnen mit Küche durch die ganzen Auslässe viel zu unruhig. Das Licht wird gar nicht gebraucht. Die Schnittpunkte mit dem Flur harmonieren auch gar nicht. Da ist überall Versatz.
Im Flur brauchts vor dem Abstell und vor dem Gäste-WC Licht, der Rest wird mitbeleuchtet. Ich verstehe ja, dass man einen gerade gestreckten Flur mit mehreren Lichtspots in Szene setzen will, aber dieser Flur gibt es mM nach nicht her.
Ich würde wenn, den Flur bis nach planrechts durchziehen und nur die Hälfte verwenden (jeden zweiten Spot streichen). Das WZ und Essbereich anpassen mit gerade mal ... keine Ahnung... die Hälfte oder gar noch weniger.
Vlt so, dass der letzte vom Flur planrechts die Mitte vom WZ wäre (oder von der Terrassentür planoben mittig) und dann als umgekipptes T anordnen und separat Akzentspots vor dem TV-Möbel.
Den Windfang würde ich mit beim Flur einbeziehen. Die Spots (dann 2?) wären dann vor dem Garderobenschrank.
In der Küche über der Arbeitsfläche bzw vor den Hochschränken. Die aber unabhängig von den restlichen Spots.
Bedenken sollte man, dass Arbeitslicht eigentlich immer angenehmer ist, wenn sie in Höhe der Augen ist. In der Küche also die typische Arbeitsbeleuchtung.
Weiterhin würde ich bedenken, dass die Spots langsam gar nicht mehr so hipp sind - wer sich jetzt Massen von den Dingern in die Decke bohren lässt, wird sich eventuell ärgern... aber da ist ja jeder anders. Zumindest gibt es gerade zur Zeit mal wieder so coole Leuchten, da könnt ich für ein zweites Haus mit ausstatten
Wir haben Decken- und Wandlichter... die Deckenbeleuchtung ist bei uns nur im Bad (und Nebenräume) von Bedeutung. In jedem wohnlichen Raum haben wir eher Wandspots oder eben Arbeitsleuchten bzw am Sofa eine Stehlampe in Betrieb, die dann über Zeitschaltuhren. Sogar in der Küche und im Flur haben wir seltenst Oberlicht an.
Im Flur brauchts vor dem Abstell und vor dem Gäste-WC Licht, der Rest wird mitbeleuchtet. Ich verstehe ja, dass man einen gerade gestreckten Flur mit mehreren Lichtspots in Szene setzen will, aber dieser Flur gibt es mM nach nicht her.
Ich würde wenn, den Flur bis nach planrechts durchziehen und nur die Hälfte verwenden (jeden zweiten Spot streichen). Das WZ und Essbereich anpassen mit gerade mal ... keine Ahnung... die Hälfte oder gar noch weniger.
Vlt so, dass der letzte vom Flur planrechts die Mitte vom WZ wäre (oder von der Terrassentür planoben mittig) und dann als umgekipptes T anordnen und separat Akzentspots vor dem TV-Möbel.
Den Windfang würde ich mit beim Flur einbeziehen. Die Spots (dann 2?) wären dann vor dem Garderobenschrank.
In der Küche über der Arbeitsfläche bzw vor den Hochschränken. Die aber unabhängig von den restlichen Spots.
Bedenken sollte man, dass Arbeitslicht eigentlich immer angenehmer ist, wenn sie in Höhe der Augen ist. In der Küche also die typische Arbeitsbeleuchtung.
Weiterhin würde ich bedenken, dass die Spots langsam gar nicht mehr so hipp sind - wer sich jetzt Massen von den Dingern in die Decke bohren lässt, wird sich eventuell ärgern... aber da ist ja jeder anders. Zumindest gibt es gerade zur Zeit mal wieder so coole Leuchten, da könnt ich für ein zweites Haus mit ausstatten
Wir haben Decken- und Wandlichter... die Deckenbeleuchtung ist bei uns nur im Bad (und Nebenräume) von Bedeutung. In jedem wohnlichen Raum haben wir eher Wandspots oder eben Arbeitsleuchten bzw am Sofa eine Stehlampe in Betrieb, die dann über Zeitschaltuhren. Sogar in der Küche und im Flur haben wir seltenst Oberlicht an.
DanielHamburg schrieb:
im Wohnzimmer wären mir die Strahler viel zu ungemütlich.Das nehme ich mal so mit. Ich kenne auch Wohnungen, die ausschließlich Einbaustrahler, auch im Wohnzimmer haben. Das wirkt, bei entsprechender Einrichtung, gar nicht ungemütlich. Noch dazu haben wir im Esszimmer einen zentralen Decken- und im Wohnzimmer mehrere Wandauslässe.
DanielHamburg schrieb:
Habe in der Küche 6 Brumberg Strahler mit MR16-LED-Spot 30938 (550 lm), das reicht mir von der Helligkeit vollkommen aus. Küche ist ähnlich groß.Danke, das hilft mir als Einschätzung. Damit liegst du ja ziemlich nah bei den empfohlenen 300lm/qm.
DanielHamburg schrieb:
In der Küche würde ich darauf achten, dass die Strahler über der Arbeitsfläche sind, da man sonst selbst einen Schatten auf die Fläche wirft.Dieser Hinweis ist mir bekannt, nachvollziehbar und auch bei uns bedacht.
DanielHamburg schrieb:
Im Bad haben wir weniger Strahler, aber zusätzliches Licht vom Spiegelschrank. Für uns reicht das völlig, ist vielleicht aber auch Geschmackssache? Mir wären das deutlich zu viele Strahler im Bad.Wandauslässe u.a. über dem Spiegel haben wir auch eingeplant, zum einen für den Schattenwurf, zum anderen für eine nächtliche Minimalbeleuchtung.
ypg schrieb:
Im Flur brauchts vor dem Abstell und vor dem Gäste-WC Licht, der Rest wird mitbeleuchtet. Ich verstehe ja, dass man einen gerade gestreckten Flur mit mehreren Lichtspots in Szene setzen will, aber dieser Flur gibt es mM nach nicht her.Der Hinweis mit der Position vor WC und Abstell finde ich sehr gut, darauf habe ich bisher nicht geachtet.
Unser Plan war nicht, den Flur irgendwie in Szene zu setzen, sondern diesen Durchgangsbereich als eine Einheit zu beleuchten.
ypg schrieb:
Ich würde wenn, den Flur bis nach planrechts durchziehen und nur die Hälfte verwenden (jeden zweiten Spot streichen). Das WZ und Essbereich anpassen mit gerade mal ... keine Ahnung... die Hälfte oder gar noch weniger. Vlt so, dass der letzte vom Flur planrechts die Mitte vom WZ wäre (oder von der Terrassentür planoben mittig) und dann als umgekipptes T anordnen und separat Akzentspots vor dem TV-Möbel.Der Tipp will sich mir nicht so ganz erschließen. Im Flur muss ich nur Licht anmachen, wenn ich durch muss, es kann also oft aus bleiben, wenn man sich in Wohn-Ess-Koch-Bereich aufhält. Wenn dann die Strahler noch weiter in den Wohnbereich hineinragen, dann beleuchte ich noch mehr Fläche während ich eigentlich nur den Flur nutzen will.
ypg schrieb:
Den Windfang würde ich mit beim Flur einbeziehen. Die Spots (dann 2?) wären dann vor dem Garderobenschrank.Zwischen Windfang und Flur ist eine Tür (mit Glaseinsatz), die, nach unserer Erfahrung, meist zu sein wird. Da ist weder aus Aufenthaltsgründen noch aus optischen Gründen (Sturz + Tür dazwischen) ein guter Grund, ein durchgehende Beleuchtung zu planen.
ypg schrieb:
In der Küche über der Arbeitsfläche bzw vor den Hochschränken. Die aber unabhängig von den restlichen Spots.Welche restlichen Spots meinst du? Es gibt in der Küche nur die Spots die über der Arbeitsplatte und vor den Hochschränken sind. Separat schaltbar ist der einzelne Deckenauslass und vsl. zwei Spots in der Kochnische. (Bilder von der Küche)
ypg schrieb:
Weiterhin würde ich bedenken, dass die Spots langsam gar nicht mehr so hipp sind - wer sich jetzt Massen von den Dingern in die Decke bohren lässt, wird sich eventuell ärgern... aber da ist ja jeder anders. Zumindest gibt es gerade zur Zeit mal wieder so coole Leuchten, da könnt ich für ein zweites Haus mit ausstatten Wir setzen die Spots nicht, weil sie hipp sind, sondern weil uns das Raumgefühl mit weniger Deckenleuchten besser gefällt. Aber es lässt mich dennoch in Erwägung ziehen, noch den ein oder anderen Deckenauslass mit zu planen, falls wir doch mal eine klassische Leuchte aufhängen wollen.
ypg schrieb:
Wir haben Decken- und Wandlichter... die Deckenbeleuchtung ist bei uns nur im Bad (und Nebenräume) von Bedeutung. In jedem wohnlichen Raum haben wir eher Wandspots oder eben Arbeitsleuchten bzw am Sofa eine Stehlampe in Betrieb, die dann über Zeitschaltuhren. Sogar in der Küche und im Flur haben wir seltenst Oberlicht an.Wir haben im WZ auch Wandauslässe geplant, um eben für gemütliche Stunden das Licht zu reduzieren (alternativ lassen sich auch die Deckenspots dimmen und geben dann wärmeres Licht als bei voller Helligkeit). Wir sind aber in Arbeitsbereichen gar keine Fans von Teilbeleuchtung. Da sollen dann schon die LEDs leuchten, wenn in der Küche gearbeitet wird.
opalau schrieb:
Der Tipp will sich mir nicht so ganz erschließen. Im Flur muss ich nur Licht anmachen, wenn ich durch muss, es kann also oft aus bleiben, wenn man sich in Wohn-Ess-Koch-Bereich aufhält. Wenn dann die Strahler noch weiter in den Wohnbereich hineinragen, dann beleuchte ich noch mehr Fläche während ich eigentlich nur den Flur nutzen will.opalau schrieb:
Zwischen Windfang und Flur ist eine Tür (mit Glaseinsatz), die, nach unserer Erfahrung, meist zu sein wird. Da ist weder aus Aufenthaltsgründen noch aus optischen Gründen (Sturz + Tür dazwischen) ein guter Grund, ein durchgehende Beleuchtung zu planen.Du kannst sie ja alle getrennt schalten: Windfang, Flur und WZ/Ess.
Aber es sieht halt bescheiden aus, wenn Spots (JA, man sieht sie auch, wenn das Licht aus ist), verschoben sind.
Man erzielt ja auch, ohne dass Licht gemacht wird, eine Wirkung durch die Setzung. Ansonsten braucht es nämlich keine Planung - dann würde man dort welche setzen, wo man denkt... nach Gutdünken.
Aber die Optik einer Linie, die einen Bruch macht, sieht eben nicht aus - wie bei Dir im Knoten WZ/Ess/Flur.
Und das gilt auch gerade, wenn zwischen Flur und Windfang ein Bruch ist, also ein merkwürdiger Winkel
opalau schrieb:
sondern weil uns das Raumgefühl mit weniger Deckenleuchten besser gefällt.Sichtbar ist bei Dir eine Decke, die hat mehr Löcher als ein Käse.Statt eines Deckenauslasses planst Du 20?/30? im Wohnbereich... irgendwo hakt Dein Argument. Einfach mal darüber sinnieren
Ähnliche Themen