ᐅ Lichtplanung in Küche, Wohn- und Esszimmer + Smart Home Technik
Erstellt am: 18.02.24 17:03
F
Fliederhaus25F
Fliederhaus2518.02.24 17:03Hallo zusammen,
wir beschäftigen uns gerade mit der Lichtplanung und Smart Home-Ausstattung für unser Einfamilienhaus.
Lichtplanung
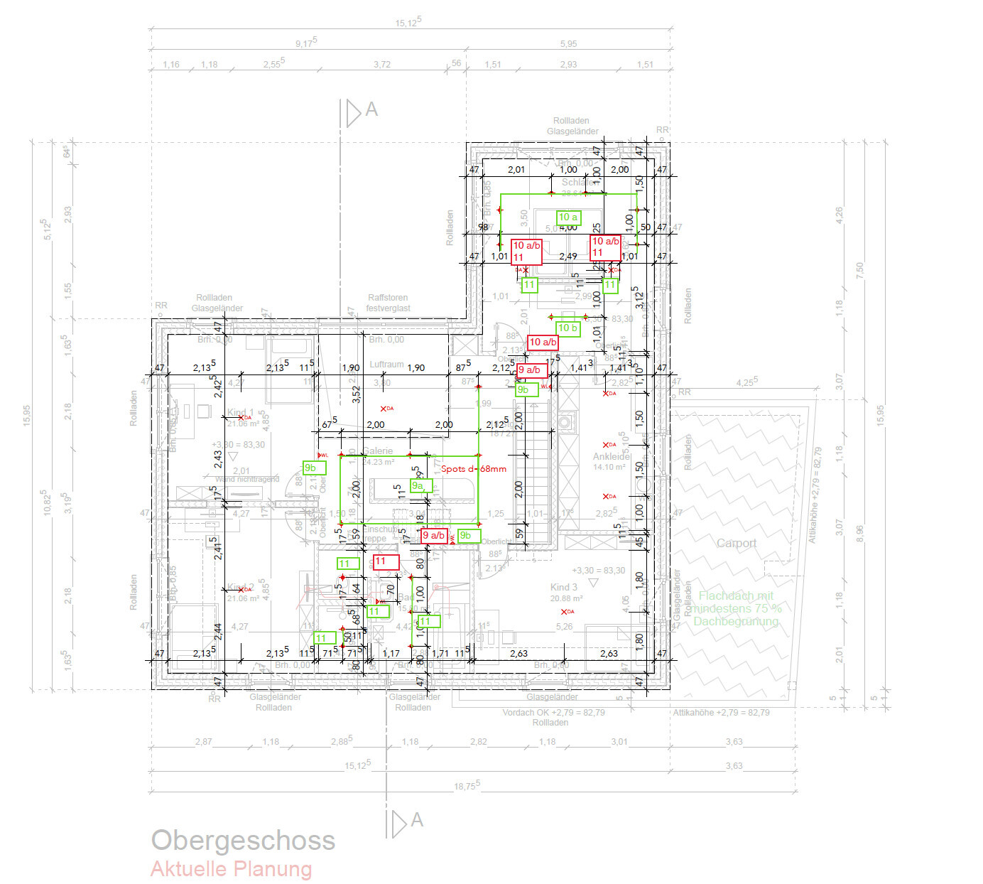
Wir haben einen großen Küchen-, Wohn- und Essbereich, der je nach Nutzung entsprechend ausgeleuchtet werden soll.
In einem ersten Schritt geht es um die Planung von Spots, die in die Filigranbetondecke gebohrt werden.
Die Planung kommt maßgeblich von unserem Lichtplaner, wir möchten uns aber auch nochmal die Meinung des Forums einholen.
Die Lampen sollen nicht alle gleichzeigt an sein, sondern über mehrere Schaltgruppen - je nach Nutzung - ein- und ausgeschaltet bzw. gedimmt werden.
In dem angehängten Dokument sind die geplanten Spots (rote Kreise), die Verschaltungen (grüne Linien + kästen mit Nummer) und die Schalter (rote Kästen mit Nummern) eingezeichnet.
Die Treppenbeleuchtung fehlt aktuell noch, laut unserem Lichtplaner wird diese im Rohbau geplant und entschieden.
Was meint Ihr zu der Planung? Passt diese zum Grundriss? Sind es ggf. zu viele Spots? Wo könnten Steh- und Beistellampen stehen?
Smart Home
Um die Lampen möglichst flexibel schalten zu können, möchten wir diese sternförmig mit 5-adrigen Kabeln verkabeln und mit Casambi (Dali)-Modulen ausstatten. Dadurch können wir die Lampen auch dort schalten, wo keine Schalter vorhanden sind, Szenen einprogrammieren und sie besser dimmen als mit einer Phasenabschnittssteuerung.
Mein Mann und ich sind beide keine passionierten Bastler / Programmierer, sodass wir denken, dass wir mit dieser Lösung die Lampen die Flexibilität eines Smart Home Systems haben , aber keine Funktionen vorsehen, die wir schlussendlich nicht nutzen.
Über die 5-adrige, sternförmige Verkabelung können wir auch noch nachträglich - über den Einbau von Casambi-Modulen- weitere Leuchten zu dem System hinzufügen.
Die Raffstores werden über KNX angeschlossen und sind an zentralen Stellen über Schalter schaltbar.
Was meint Ihr zu dem angedachten Vorgehen? Sollten wir die Dali/Casambi-Lampen auch noch an das KNX-System anschließen? Dann wäre meinem Verständnis nach eine zusätzliche, zentrale Verkabelung notwendig.
Danke und viele Grüße!


wir beschäftigen uns gerade mit der Lichtplanung und Smart Home-Ausstattung für unser Einfamilienhaus.
Lichtplanung
Wir haben einen großen Küchen-, Wohn- und Essbereich, der je nach Nutzung entsprechend ausgeleuchtet werden soll.
In einem ersten Schritt geht es um die Planung von Spots, die in die Filigranbetondecke gebohrt werden.
Die Planung kommt maßgeblich von unserem Lichtplaner, wir möchten uns aber auch nochmal die Meinung des Forums einholen.
Die Lampen sollen nicht alle gleichzeigt an sein, sondern über mehrere Schaltgruppen - je nach Nutzung - ein- und ausgeschaltet bzw. gedimmt werden.
In dem angehängten Dokument sind die geplanten Spots (rote Kreise), die Verschaltungen (grüne Linien + kästen mit Nummer) und die Schalter (rote Kästen mit Nummern) eingezeichnet.
Die Treppenbeleuchtung fehlt aktuell noch, laut unserem Lichtplaner wird diese im Rohbau geplant und entschieden.
Was meint Ihr zu der Planung? Passt diese zum Grundriss? Sind es ggf. zu viele Spots? Wo könnten Steh- und Beistellampen stehen?
Smart Home
Um die Lampen möglichst flexibel schalten zu können, möchten wir diese sternförmig mit 5-adrigen Kabeln verkabeln und mit Casambi (Dali)-Modulen ausstatten. Dadurch können wir die Lampen auch dort schalten, wo keine Schalter vorhanden sind, Szenen einprogrammieren und sie besser dimmen als mit einer Phasenabschnittssteuerung.
Mein Mann und ich sind beide keine passionierten Bastler / Programmierer, sodass wir denken, dass wir mit dieser Lösung die Lampen die Flexibilität eines Smart Home Systems haben , aber keine Funktionen vorsehen, die wir schlussendlich nicht nutzen.
Über die 5-adrige, sternförmige Verkabelung können wir auch noch nachträglich - über den Einbau von Casambi-Modulen- weitere Leuchten zu dem System hinzufügen.
Die Raffstores werden über KNX angeschlossen und sind an zentralen Stellen über Schalter schaltbar.
Was meint Ihr zu dem angedachten Vorgehen? Sollten wir die Dali/Casambi-Lampen auch noch an das KNX-System anschließen? Dann wäre meinem Verständnis nach eine zusätzliche, zentrale Verkabelung notwendig.
Danke und viele Grüße!
F
Fliederhaus2518.02.24 18:04kbt09 schrieb:
Mir fällt direkt die Arbeitsfläche in der Küche planoberhalb von 3 c auf ... wie wird die denn beleuchtet?Guter Punkt! Hier kommen Hängeschränke hin. Darunter werden Lampen angebracht, die dann die Arbeitsfläche beleuchten.
Fliederhaus25 schrieb:
Die Raffstores werden über KNX angeschlossen und sind an zentralen Stellen über Schalter schaltbar.
Was meint Ihr zu dem angedachten Vorgehen? Sollten wir die Dali/Casambi-Lampen auch noch an das KNX-System anschließen? Dann wäre meinem Verständnis nach eine zusätzliche, zentrale Verkabelung notwendig.Warum trennt ihr das? Ggf. kann man die Raffstoren in Casambi integrieren (kenne das System nicht). eine Trennung macht jedenfalls nicht viel Sinn, es sei denn, man bleibt bei der Beschattungssteuerung rein bei Tastsensoren ohne Visualisierung.Fliederhaus25 schrieb:
Um die Lampen möglichst flexibel schalten zu können, möchten wir diese sternförmig mit 5-adrigen Kabeln verkabeln und mit Casambi (Dali)-Modulen ausstatten. Dadurch können wir die Lampen auch dort schalten, wo keine Schalter vorhanden sind, Szenen einprogrammieren und sie besser dimmen als mit einer Phasenabschnittssteuerung.
Mein Mann und ich sind beide keine passionierten Bastler / Programmierer, sodass wir denken, dass wir mit dieser Lösung die Lampen die Flexibilität eines Smart Home Systems haben , aber keine Funktionen vorsehen, die wir schlussendlich nicht nutzen.
Über die 5-adrige, sternförmige Verkabelung können wir auch noch nachträglich - über den Einbau von Casambi-Modulen- weitere Leuchten zu dem System hinzufügen.
Was meint Ihr zu dem angedachten Vorgehen? Sollten wir die Dali/Casambi-Lampen auch noch an das KNX-System anschließen? Dann wäre meinem Verständnis nach eine zusätzliche, zentrale Verkabelung notwendig.Sternförmig wäre für DALI zwar möglich, aber grundsätzlich eher verschwenderisch, weil Bus-System. Sprich, du kannst auch linienförmig verkabeln und trotzdem jeder Teilnehmer einzeln steuern.
Zwecks flexibler Ansteuerung ist sternförmig natürlich sinnvoll, dann kannst du auch"Lampengenau" entscheiden, ob du sie ungeschaltet, KNX geschaltet, KNX gedimmt oder DALI fähig ausstattest.
Wenn die Steuerung über KNX-Schalter/Touchdisplays erfolgen soll, dann musst du natürlich DALI und KNX koppeln. Dafür reicht aber ein Gateway im Schaltschrank, keine zusätzliche Verkabelung notwendig.
Die Entscheidung musst du aber zeitnah treffen, denn es gibt natürlich auch die Möglichkeit alles über DALI zu machen (Taster, Touchpanels, Sensorik), muss aber dann eben für DALI verkabelt werden.
Ich würde aber definitiv die Bedienung und Sensorik über KNX machen und DALI nur für Licht belassen.
N
Numrollen24.02.24 09:47Hallo,
ich habe ähnliches noch ungeklärt bei mir. KNX ist gesetzt. Habe in der Decke 5x 1,5 (im Wohnzimmer mehr) liegen und natürlich unklar ob DALI nötig ist. Sind ja auch etwas höhere Kosten, Aufwendiger bei Defekten, ein Gateway muss her.
Mir geht es aber auch um das Licht selbst noch. Ich bin ein absoluter Fan von Dimmen, auch Zeitabhängig. Stehe nicht auf Lampen die mich blenden, d.h. Spots sind nicht so schön für mich. Würde gerne viel über LED Lichtbänder abbilden. Macht das Sinn oder was bedenke ich nicht? Stromverbrauch wäre ein Thema.
Und ist hier DALI einfach ein MUSS oder kann ich das noch über einen KNX Dimmer machen?
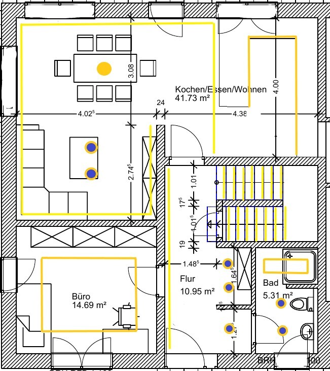
Im Bild wären die gelben Linien LED Streifen. An der Wand endlang wäre Indirekt, in der Küchenzeile und im Bad direkt.

ich habe ähnliches noch ungeklärt bei mir. KNX ist gesetzt. Habe in der Decke 5x 1,5 (im Wohnzimmer mehr) liegen und natürlich unklar ob DALI nötig ist. Sind ja auch etwas höhere Kosten, Aufwendiger bei Defekten, ein Gateway muss her.
Mir geht es aber auch um das Licht selbst noch. Ich bin ein absoluter Fan von Dimmen, auch Zeitabhängig. Stehe nicht auf Lampen die mich blenden, d.h. Spots sind nicht so schön für mich. Würde gerne viel über LED Lichtbänder abbilden. Macht das Sinn oder was bedenke ich nicht? Stromverbrauch wäre ein Thema.
Und ist hier DALI einfach ein MUSS oder kann ich das noch über einen KNX Dimmer machen?
Im Bild wären die gelben Linien LED Streifen. An der Wand endlang wäre Indirekt, in der Küchenzeile und im Bad direkt.
Ähnliche Themen