ᐅ Licht- und Elektroplanung im Neubau
Erstellt am: 08.05.21 08:10
H
Hendrik198008.05.21 08:10Liebes Forum,
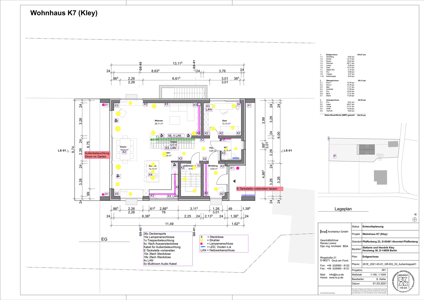
wir planen gerade den Bau unseres Einfamilienhaus. In der letzten Woche habe ich einen ersten Entwurf für die Licht- und Elektroinstallation gemacht, den ich hier gerne einmal zur Diskussion stellen würden.
Denkt ihr, ich sollte die Deckenstrahler noch reduzieren? Sind die Steckdosen ausreichend? Freue mich über Kommentare!


wir planen gerade den Bau unseres Einfamilienhaus. In der letzten Woche habe ich einen ersten Entwurf für die Licht- und Elektroinstallation gemacht, den ich hier gerne einmal zur Diskussion stellen würden.
Denkt ihr, ich sollte die Deckenstrahler noch reduzieren? Sind die Steckdosen ausreichend? Freue mich über Kommentare!
H
hampshire08.05.21 08:19Deckenstrahler sind Geschmackssache. Mir wäre das zu viel. Behaglichkeit kommt von weiteren Lichtquellen, die besser gleich mit planen, dann wird auch klar wo welche Steckdosen benötigt werden.
Ich hab mal beim LAN drüber gesehen. Find ich soweit OK, nur würde ich immer aus einer Einzeldose eine Doppelte machen. Was mir fehlt sind die Access Points? EG, OG, Terrasse? Was planst du an der Eingangstür? LAN auch gleich bei der Vorbereitung der E-Ladesäule berücksichtigen.
Ähnliche Themen