Hallo,
meine Frau und ich sind gerade am hin un her Überlegen bezüglich einer Neubau-ETW. Hier mal die Fakten:
Neubau-ETW
Preis:46500+9000 für den Stellplatz
Momentan wohnen wir in einer Einliegerwohnung meiner Eltern auf 35 qm in einem Zimmer kostenfrei und konnten uns daher einiges ansparen. Meine Frau studiert gerade Lehramt und ich arbeite seit über 3 Jahren als Ingenieur. Finanzierung haben wir uns durchgerechnet und die haut hin.
Jetzt kommen wir zu den Nachteilen, neben die Wohnung kommt ein kleiner Kindergarten mit 2 Gruppen, der Garten vom Kindergarten ist nach Nord-West hinter dem Nachbarhaus ausgerichtet, unsere Wohnung nach Süden vor dem Haus. Ansonsten ist es am Nachmittag in der Wohngegend wirklich ruhig und angenehm.
Zeitgleich könnten wir jetzt noch anstatt eine Wohnung zu kaufen in eine Mietwohnung ziehen (50 qm 2 Zimmer Erdgeschoss 630 kalt, Mietpreis liegt in der Gegend bei 10-12€/qm.) und weiter suchen. Eventuell sinken die Preise und wir können was schöneres als die ETW ergattern bzw. sogar bauen, da wir das Gefühl haben, dass die Wohnung überteuert ist. Allerdings liegen die Hauspreise hier für Neubau bei mindestens 650k, was altes aus den 80ern bekommt man schon so ab 500k, Grundstückspreise liegen bei mindestens 450-500€/qm außerhalb und in Emmendingen bei ca 800-1000€/qm.
Insgesamt haben wir schon lange gesucht und immer gedacht es kommt was besseres, zugleich hat mich die Mietwohnungssuche wirklich gestresst da wir eine Katze haben und man vor den Vermietern wie ein Bettler dasteht. Hier wurde den Vermietern von Interessenten sogar Geld angeboten als Prämie wenn sie die Zusage bekommen...
Insgesamt haben wir die Befürchtung was total überteuertes zu kaufen wenn in 2-4 Jahren die Preise extrem sinken.
Was meint ihr zu dem Vorhaben?
meine Frau und ich sind gerade am hin un her Überlegen bezüglich einer Neubau-ETW. Hier mal die Fakten:
Neubau-ETW
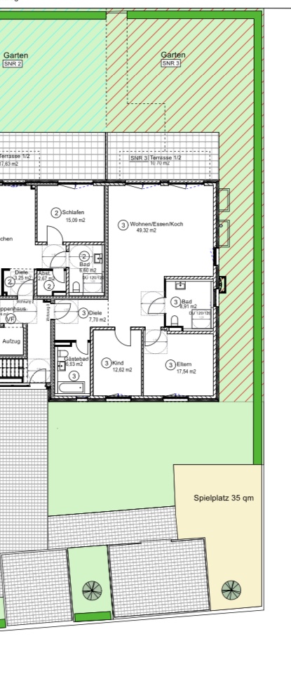
- Lage Teningen/Emmendingen liegt bei Freiburg im Breisgau
- 8-Parteien-Haus, kein sozialer Wohnungsbau, bisher 5 Wohnungen verkauft
- Fertigstellung ca. in 5 Monaten, jetzt kann man noch alles umplanen (Elektro, Terrassenbelag, Fliesen usw...)
- 114 qm 4 Zimmer Erdgeschoss + 90 qm Garten
- Stellplatz mit Stromanschluss für E-Autos (Wurde so von mir als Wunsch geäußert)
- Ausstattung, vermutlich etwas mehr als Standard (Massivholzparkett, + Fußbodenheizung mit Einzelraumsteuerung, Großes Bad)
- Heizung Luft-Wasser-Wärmepumpe + Gas
- Zimmergrößen:
- Wohnzimmer 40,5 qm
- Diele offen zum Wohnzimmer 10,32 qm
- Bad 9,51 qm
- Gäste-WC 1,84 qm
- Kind 1 12,6 qm
- Kind 2 10,45 qm
- Eltern 17,5 qm
Preis:46500+9000 für den Stellplatz
Momentan wohnen wir in einer Einliegerwohnung meiner Eltern auf 35 qm in einem Zimmer kostenfrei und konnten uns daher einiges ansparen. Meine Frau studiert gerade Lehramt und ich arbeite seit über 3 Jahren als Ingenieur. Finanzierung haben wir uns durchgerechnet und die haut hin.
Jetzt kommen wir zu den Nachteilen, neben die Wohnung kommt ein kleiner Kindergarten mit 2 Gruppen, der Garten vom Kindergarten ist nach Nord-West hinter dem Nachbarhaus ausgerichtet, unsere Wohnung nach Süden vor dem Haus. Ansonsten ist es am Nachmittag in der Wohngegend wirklich ruhig und angenehm.
Zeitgleich könnten wir jetzt noch anstatt eine Wohnung zu kaufen in eine Mietwohnung ziehen (50 qm 2 Zimmer Erdgeschoss 630 kalt, Mietpreis liegt in der Gegend bei 10-12€/qm.) und weiter suchen. Eventuell sinken die Preise und wir können was schöneres als die ETW ergattern bzw. sogar bauen, da wir das Gefühl haben, dass die Wohnung überteuert ist. Allerdings liegen die Hauspreise hier für Neubau bei mindestens 650k, was altes aus den 80ern bekommt man schon so ab 500k, Grundstückspreise liegen bei mindestens 450-500€/qm außerhalb und in Emmendingen bei ca 800-1000€/qm.
Insgesamt haben wir schon lange gesucht und immer gedacht es kommt was besseres, zugleich hat mich die Mietwohnungssuche wirklich gestresst da wir eine Katze haben und man vor den Vermietern wie ein Bettler dasteht. Hier wurde den Vermietern von Interessenten sogar Geld angeboten als Prämie wenn sie die Zusage bekommen...
Insgesamt haben wir die Befürchtung was total überteuertes zu kaufen wenn in 2-4 Jahren die Preise extrem sinken.
Was meint ihr zu dem Vorhaben?
Bertram100 schrieb:
Mein Balkon ist nicht so gross. Ca 6m2. Reicht mir aber. Ich kann draußen sitzen.
Meine Mutter hatte lange einen Balkon von 18m². Der war auf verschiedenen Ebenen begrünt und sah super aus.Kannst du von dem Balkon bitte mal ein Foto machen, wenn es ok für dich ist? Das scheint "standardgröße" aktuell zu sein und ich kann mir das nicht so richtig vorstellen. Aktuell haben wir einen riesigen Balkon - dürften auch so an die 16-18 qm2 sein.
B
Bertram10003.08.20 07:06Mein Balkon ist im Moment nackig. Da steht gar nichts drauf, noch nicht einmal1 Pflanze. Ich ziehe demnächst um. Im Internet kannst du dir ja mal begrünte Balkone angucken.
N
NoggerLoger03.08.20 07:26Kammer wollten wir einplanen, geht aber nicht, außer jemand hat ne Idee . Haben aber eine große Küche und einen schrank fürs Schlafzimmer geplant. Waschmaschine und Trockner kommen in den Trockenraum. Wir bekommen viel licht da Südausgerichtet und keine Häuser die was verdecken. 1OG wäre für uns nichts wegen den geplanten Kindern. Ansonsten haben die oberen Wohnungen eine hammer Aussicht darauf bin ich echt neidisch.
Hier noch der alte Grundriss (3 Zimmer) aber mit Garten. Würde dann auch updates zur Einrichtung posten falls Interesse besteht.

Hier noch der alte Grundriss (3 Zimmer) aber mit Garten. Würde dann auch updates zur Einrichtung posten falls Interesse besteht.
Bertram100 schrieb:
Mein Balkon ist im Moment nackig. Da steht gar nichts drauf, noch nicht einmal1 Pflanze. Ich ziehe demnächst um. Im Internet kannst du dir ja mal begrünte Balkone angucken.Ja ist doch perfekt - wäre ein Foto möglich?
Ich hatte die Frage mal irgendwo hier gestellt, finde es aber nicht mehr. Welche Gründe gibt es das ein Bauträger heute noch mit KfW70 wirbt? Ich dachte KfW55 wäre Standard. Ist das negativ zu bewerten, wenn noch nach dem "alten Standard" (müsste Energieverordnung 2016) gebaut wird?
N
NoggerLoger07.08.20 17:46Unsere Wohnung wird nach Energieeinsparverordnung 2016 gebaut. Die Mehrkosten bekommst du höchstens durch den kfw Zuschuss raus. Wir hatten die letzten Jahre keinen richtigen Winter mehr dafür aber heiße Sommer, da bringen dickere Steine mehr als Dämmung. Die ganzen KFW 55 Wohnungen wurden hier mit Fertigbauteilen gebaut. Großen Nachteil zwischen Energieeinsparverordnung 16 und KFW sehe ich nicht.
Ähnliche Themen