ᐅ Kühlkonzept Neubau - Splitklima / Luft-Wasser-Wärmepumpe Kühlfunktion / Kombination
Erstellt am: 20.06.21 11:49
S
SamantheusS
Samantheus20.06.21 11:49Hallo zusammen,
ich plane gerade den Bau eines Einfamilienhaus und bin mir noch unschlüssig bezüglich des Kühlkonzepts. Ich habe die aktuelle Grundrissplanung angehängt. Bezüglich der Grundrisse habe ich auch im Grundrissplanungsforum einen Thread (https://www.hausbau-forum.de/threads/grundrissplanung-und-platzierung-efh-ca-200qm-auf-900qm-Grundstück.39104/page-4#post-505270).
Es handelt sich um einen KFW 55 Neubau (Poroton Ziegel, Stahlbeton Decke) mit LWWP, Kontrollierte-Wohnraumlüftung und Rollos/Jalousien an allen Fenstern. Die Gartenseite mit den großen Fenstern geht zu Südwesten, die Eingangsseite zum Nordosten. Das Büro zur Gartenseite muss auf alle Fälle klimatisiert werden, da es in Dauernutzung ist mit vielen technischen Geräten die eine hohe Wärme erzeugen. Ansonsten bin ich vom Charakter her jemand der es gerne sehr kühl mag, Urlaub in Skandinavien macht aber auf keinen Fall in Griechenland, Ägypten oder so. Sprich die Wohlfühltemperatur ist deutlich niedriger als bei den meisten anderen Menschen.
Jetzt bin ich am überlegen wie das Haus am besten zu kühlen ist (abgesehen von Verschattung etc.).
Variante 1:
Splitklima im Büro
Variante 2:
Splitklima im Büro + Kühlfunktion der Luft-Wasser-Wärmepumpe (ca. 5k EUR Aufpreis)
Variante 3:
Splitklima im Büro + Wohn/Ess/Kochbereich
Variante 4:
Splitklima im Büro + Wohn/Ess/Kochbereich + Flur OG (geht dann aber wahrscheinlich nur über der Treppe, Vorlauftemperatur. nicht so ideal weil kühle Luft dann direkt ins EG absinkt?)
Variante 5:
Splitklima im Büro + Wohn/Ess/Kochbereich + Kind + Kind + Schlafen
Weiterhin frage ich mich wie groß der Unterschied ist ob es man gleich im Rahmen des Neubaus mitmacht, oder nachträglich dann nachrüstet (deutlich teurer wenn man es später macht? Potenzielle Probleme mit KfW 55?).
Bei der Frage ob man je ein Split Gerät je Raum nimmt oder die Multisplit Variante bin ich auch noch unsicher. Aktuell habe ich noch keine konkreten Angebote mit Preisen vorliegen.
Vielen Dank vorab!
Viele Grüße
Sam
Ansicht:


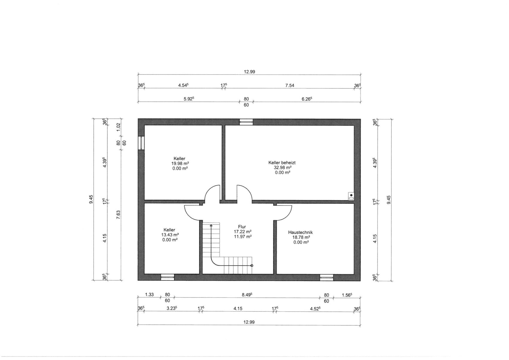
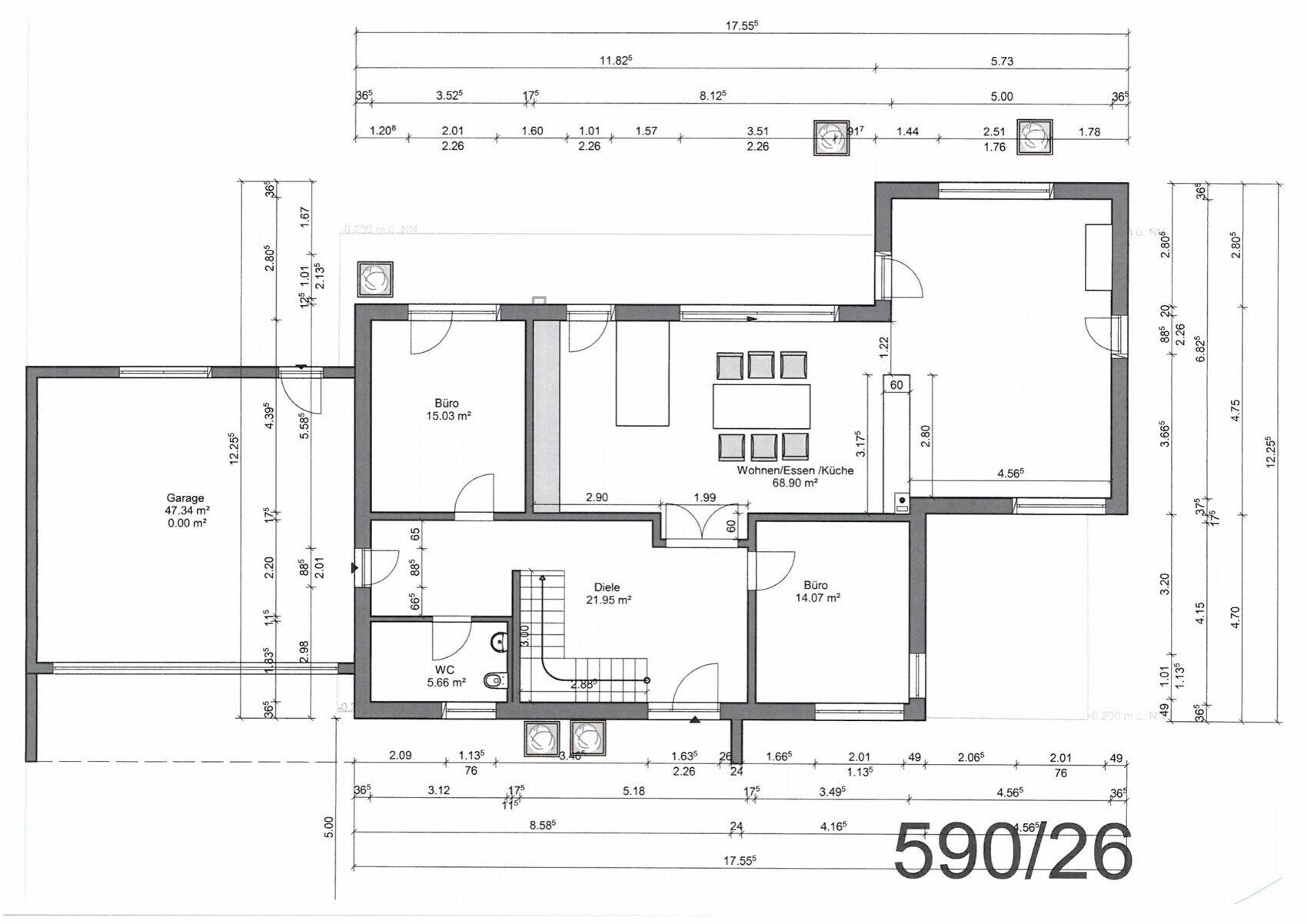
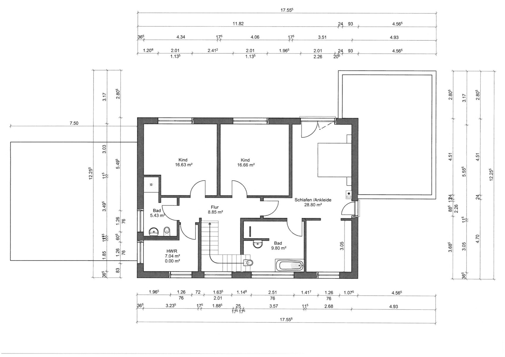
Grundriss:



ich plane gerade den Bau eines Einfamilienhaus und bin mir noch unschlüssig bezüglich des Kühlkonzepts. Ich habe die aktuelle Grundrissplanung angehängt. Bezüglich der Grundrisse habe ich auch im Grundrissplanungsforum einen Thread (https://www.hausbau-forum.de/threads/grundrissplanung-und-platzierung-efh-ca-200qm-auf-900qm-Grundstück.39104/page-4#post-505270).
Es handelt sich um einen KFW 55 Neubau (Poroton Ziegel, Stahlbeton Decke) mit LWWP, Kontrollierte-Wohnraumlüftung und Rollos/Jalousien an allen Fenstern. Die Gartenseite mit den großen Fenstern geht zu Südwesten, die Eingangsseite zum Nordosten. Das Büro zur Gartenseite muss auf alle Fälle klimatisiert werden, da es in Dauernutzung ist mit vielen technischen Geräten die eine hohe Wärme erzeugen. Ansonsten bin ich vom Charakter her jemand der es gerne sehr kühl mag, Urlaub in Skandinavien macht aber auf keinen Fall in Griechenland, Ägypten oder so. Sprich die Wohlfühltemperatur ist deutlich niedriger als bei den meisten anderen Menschen.
Jetzt bin ich am überlegen wie das Haus am besten zu kühlen ist (abgesehen von Verschattung etc.).
Variante 1:
Splitklima im Büro
Variante 2:
Splitklima im Büro + Kühlfunktion der Luft-Wasser-Wärmepumpe (ca. 5k EUR Aufpreis)
Variante 3:
Splitklima im Büro + Wohn/Ess/Kochbereich
Variante 4:
Splitklima im Büro + Wohn/Ess/Kochbereich + Flur OG (geht dann aber wahrscheinlich nur über der Treppe, Vorlauftemperatur. nicht so ideal weil kühle Luft dann direkt ins EG absinkt?)
Variante 5:
Splitklima im Büro + Wohn/Ess/Kochbereich + Kind + Kind + Schlafen
Weiterhin frage ich mich wie groß der Unterschied ist ob es man gleich im Rahmen des Neubaus mitmacht, oder nachträglich dann nachrüstet (deutlich teurer wenn man es später macht? Potenzielle Probleme mit KfW 55?).
Bei der Frage ob man je ein Split Gerät je Raum nimmt oder die Multisplit Variante bin ich auch noch unsicher. Aktuell habe ich noch keine konkreten Angebote mit Preisen vorliegen.
Vielen Dank vorab!
Viele Grüße
Sam
Ansicht:
Grundriss:
Aufgrund deiner Vorgaben brauchst du die Variante 5.
Multisplit wäre die Anlage der Wahl am besten noch VRV dann kannst du alles so gestalten wie gewünscht. Ist allerdings nicht günstig. Eine Installation gleich beim Neubau ist komfortabler und ist auch von der Optik hinterher günstiger, da man ja alles verstecken kann.
Hinterher muss du wohl oder übel Kompromisse bezüglich der nötigen Leitungen eingehen. Auch 5 Außengeräte am Haus sehen bescheiden aus.
Die kühle Luft aus dem OG sinkt natürlich runter ins EG aber damit hört es ja nicht auf. Denn es ist ja auch noch warme Luft im OG da. Es dauert halt etwas länger aber irgendwann hat sich ein Gleichgewicht im ganzen Haus eingestellt. Denn die Warme Luft strömt ja immer nach oben dann zu genau deiner Anlage.
Multisplit wäre die Anlage der Wahl am besten noch VRV dann kannst du alles so gestalten wie gewünscht. Ist allerdings nicht günstig. Eine Installation gleich beim Neubau ist komfortabler und ist auch von der Optik hinterher günstiger, da man ja alles verstecken kann.
Hinterher muss du wohl oder übel Kompromisse bezüglich der nötigen Leitungen eingehen. Auch 5 Außengeräte am Haus sehen bescheiden aus.
Die kühle Luft aus dem OG sinkt natürlich runter ins EG aber damit hört es ja nicht auf. Denn es ist ja auch noch warme Luft im OG da. Es dauert halt etwas länger aber irgendwann hat sich ein Gleichgewicht im ganzen Haus eingestellt. Denn die Warme Luft strömt ja immer nach oben dann zu genau deiner Anlage.
S
Samantheus20.06.21 14:27Vielen Dank für die schnelle Antwort.
Kannst du ungefähr abschätzen in welchem Preisrahmen das ca. liegen würde? Wenn das jenseits von gut und böse ist würde ich dann doch erstmal eine günstigere Lösung nehmen und schauen wie die Hitzeentwicklung so ist.
Kannst du ungefähr abschätzen in welchem Preisrahmen das ca. liegen würde? Wenn das jenseits von gut und böse ist würde ich dann doch erstmal eine günstigere Lösung nehmen und schauen wie die Hitzeentwicklung so ist.
J
JoachimG.20.06.21 14:57Samantheus schrieb:
Vielen Dank für die schnelle Antwort.
Kannst du ungefähr abschätzen in welchem Preisrahmen das ca. liegen würde? Wenn das jenseits von gut und böse ist würde ich dann doch erstmal eine günstigere Lösung nehmen und schauen wie die Hitzeentwicklung so ist.Ich habe mir für unseren Neubau eine Klimatisierung anbieten lassen. Klimatisierte Fläche wären ca. 150 qm - 5 Innengeräte als Wandgeräte - 1 Außengerät. Komplett von Daikin - 14 Kilo. Kanalgeräte (um sie in der abgehängten Decke zu verstecken) - 21 Kilo.
Das kann man nicht wirklich sagen. Hängt ja auch noch von den örtlichen Betrieben ab was die so anbieten und wie deren Preise sind.
Je nach Hersteller bist du bei einer 3,4,5 Multisplit bei 3,5 - 6 Tsd dabei plus noch Einbau. Ich würde mit etwa 10K für die Komplettlösung rechnen + Einbau(ganz ganz spitz gerechnet).
Einzelne singlesplit sind da natürlich weitaus günstiger da bis du schon mit 500 je Zimmer dabei aber hast dann auch für jedes Gerät ein Außengerät. Da muss man dann aber viele Kompromisse eingehen und sieht dann am Ende nicht unbedingt chic aus. Auch sind möglicherweise Verlängerungen der Leitungen notwendig und der Preis dafür könnte leicht den Preis der Anlage übersteigen.
Je nach Hersteller bist du bei einer 3,4,5 Multisplit bei 3,5 - 6 Tsd dabei plus noch Einbau. Ich würde mit etwa 10K für die Komplettlösung rechnen + Einbau(ganz ganz spitz gerechnet).
Einzelne singlesplit sind da natürlich weitaus günstiger da bis du schon mit 500 je Zimmer dabei aber hast dann auch für jedes Gerät ein Außengerät. Da muss man dann aber viele Kompromisse eingehen und sieht dann am Ende nicht unbedingt chic aus. Auch sind möglicherweise Verlängerungen der Leitungen notwendig und der Preis dafür könnte leicht den Preis der Anlage übersteigen.
S
Strahleman20.06.21 18:35Mycraft schrieb:
Ich würde mit etwa 10K für die Komplettlösung rechnen + Einbau(ganz ganz spitz gerechnet).Zumindest für die Region Nürnberg hast du recht gut geschätzt. Bei uns kosten 4 Innengeräte + ein 8,3kW Multi-Split Außengerät knapp 10k Euro und der Einbau rund 6k Euro (Neubau).Wenn ihr über eine Klimaanlage nachdenkt, würde ich das direkt im Neubau vorrüsten lassen. Die Kühlmittelleitungen wie auch Kondensatabläufe können recht sauber im Unterputz verlegt werden und v.a. kann man noch individuell auf Probleme reagieren und diese meist recht unkompliziert lösen. Das geht bei einem bestehenden Haus nicht mehr unbedingt.
Ähnliche Themen