ᐅ Küchenplanung - uns fehlt die Idee
Erstellt am: 03.02.21 15:52
Hallo zusammen,
wir sind mitten im Hausbau und planen aktuell die letzten Details unserer zukünftigen Küche.
Eigentlich waren wir bei der Planung im Küchengeschäft mit unserer Küche sehr zufrieden.
Nach ein paar Nächten und weiteren Überlegungen haben wir nun doch etwas Bedenken wegen unseren Hängeschränken.
Nun zu unserem Problem:
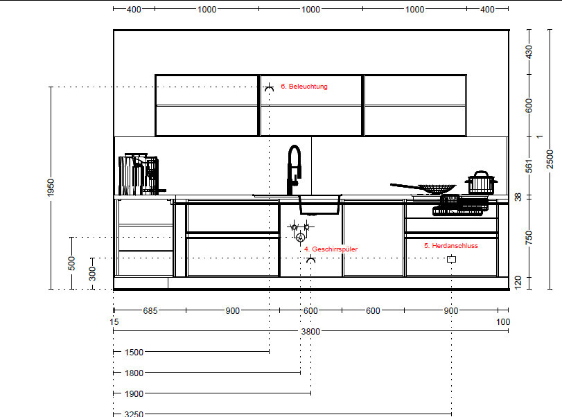
Rechts fast an der Wand haben wir ein Induktionskochfeld mit Muldenlüfter.
Direkt darüber ist aktuell ein hängeschrank versetzt an der Wand. An sich muss das alles nicht symmetrisch sein. Von Weitem finden wir auch, dass es gut passt mit den 3 Hängeschränken.
Wir vermuten aber, dass es doch etwas eigenartig ist, wenn man direkt vor dem kochfeld steht, weil darüber nicht der ganze sondern nur eine Hälfte vom Schrank hängt.
Gut dachten wir uns - wir nehmen einen Hängeschrank weniger und ziehen die dunkle Rückwand bis zur Oberkante der hängeschränke. Aber dann fehlt uns in der Ecke über dem Kochfeld das Licht und wir wissen nicht, wie wir das dort am besten hinbekommen.


Auf der Insel wollen wir das Kochfeld nicht platzieren.
Eventuell noch wichtig:
Der Abwasseranschluss für die Spüle/Geschirrspüler ist schon installiert.
Strom/Wasser ist noch nicht installiert.
Die 10 cm rechts zwischen Wand und Kochfeld werden wahrscheinlich nur 7 cm sein.
Vielleicht hat der ein oder andere eine tolle Idee, wie wir das lösen könnten. 🙂
Viele Grüße
Matze + Frau
wir sind mitten im Hausbau und planen aktuell die letzten Details unserer zukünftigen Küche.
Eigentlich waren wir bei der Planung im Küchengeschäft mit unserer Küche sehr zufrieden.
Nach ein paar Nächten und weiteren Überlegungen haben wir nun doch etwas Bedenken wegen unseren Hängeschränken.
Nun zu unserem Problem:
Rechts fast an der Wand haben wir ein Induktionskochfeld mit Muldenlüfter.
Direkt darüber ist aktuell ein hängeschrank versetzt an der Wand. An sich muss das alles nicht symmetrisch sein. Von Weitem finden wir auch, dass es gut passt mit den 3 Hängeschränken.
Wir vermuten aber, dass es doch etwas eigenartig ist, wenn man direkt vor dem kochfeld steht, weil darüber nicht der ganze sondern nur eine Hälfte vom Schrank hängt.
Gut dachten wir uns - wir nehmen einen Hängeschrank weniger und ziehen die dunkle Rückwand bis zur Oberkante der hängeschränke. Aber dann fehlt uns in der Ecke über dem Kochfeld das Licht und wir wissen nicht, wie wir das dort am besten hinbekommen.
Auf der Insel wollen wir das Kochfeld nicht platzieren.
Eventuell noch wichtig:
Der Abwasseranschluss für die Spüle/Geschirrspüler ist schon installiert.
Strom/Wasser ist noch nicht installiert.
Die 10 cm rechts zwischen Wand und Kochfeld werden wahrscheinlich nur 7 cm sein.
Vielleicht hat der ein oder andere eine tolle Idee, wie wir das lösen könnten. 🙂
Viele Grüße
Matze + Frau
S
steiner7203.02.21 16:20Hi Matze,
habe ich richtig verstanden, dass du dann keine gute Möglichkeit hast, etwas von der gewünschten beleuchteten Stelle an den Strom anzuschließen?
Gruß Martin
habe ich richtig verstanden, dass du dann keine gute Möglichkeit hast, etwas von der gewünschten beleuchteten Stelle an den Strom anzuschließen?
Gruß Martin
H
hausnrplus2503.02.21 16:26Da eure Küche ja nicht klein ist, ist es fraglich, ob so viele Hängeschränke sein müssen?!
Ich persönlich würde die Hängeschränke links um um die Ecke von den Hochschränken ziehen und dann mit offenen Regal abschließen.
Deckenspots/Leuchte dann über die Kochfläche.
Hängeschrank über dem Kochfeld, würde ich nicht machen.
Ich persönlich würde die Hängeschränke links um um die Ecke von den Hochschränken ziehen und dann mit offenen Regal abschließen.
Deckenspots/Leuchte dann über die Kochfläche.
Hängeschrank über dem Kochfeld, würde ich nicht machen.
hausnrplus25 schrieb:
Da eure Küche ja nicht klein ist, ist es fraglich, ob so viele Hängeschränke sein müssen?!
Ich persönlich würde die Hängeschränke links um um die Ecke von den Hochschränken ziehen und dann mit offenen Regal abschließen.
Deckenspots/Leuchte dann über die Kochfläche.
Hängeschrank über dem Kochfeld, würde ich nicht machen.Würde eine schöne offene Dunstabzugshaube über das Kochfeld hängen und links eventuell mit 2 Glas-Oberschränken arbeiten, dadurch wirkt es nicht so "bollig", vor allem wenn du direkt vor dem Kochfeld oder an der "Schnibbelfläche" stehst.
Prinzipiell hätte ich vielleicht Herd & Spüle getauscht, aber das geht jetzt nicht mehr, korrekt?
So hättest du links und rechst vom Kochfeld eine Fläche gehabt (finde ich immer ganz geschickt) und bist nicht so ins Eck gedrückt. Außerdem wird der ganze Dunst sich auch rechts an der Wand ablagern, an den Oberschränken natürlich sowieso auch. Deshalb würde ich die Schränke auf jeden Fall nicht über den Herd setzen und eine offene Dunstabzugshaube wählen
N
nordanney03.02.21 16:45Ganz ehrlich? Bei der Größe der Küche die Hochschränke links bis in die Ecke durchziehen. Die Kaffeemaschine kann z.B. in einen Rollladenschrank gut verstaut werden. Hochschränke noch in Trockenbau oben und am Ende einbinden und den Eindruck einer kompletten Wand erwecken. Ggf. Side By Side Kühlschrank alleine stehen lassen.
Dann ALLE Hochschränke weg. Die finde ich sowieso nur störend und sollten immer weg, wenn woanders genug Platz ist. Schönes Regal oder Wanddeko. Licht aus Spot aus der Decke.
Dann ALLE Hochschränke weg. Die finde ich sowieso nur störend und sollten immer weg, wenn woanders genug Platz ist. Schönes Regal oder Wanddeko. Licht aus Spot aus der Decke.
Ich finde das Kochfeld zu nah an der Wand. Stellt Euch mal rechts eine Pfanne vor.
Ich würde die Spülen weiter links setzen und das Kochfeld verschieben.
Die Fläche zwischen Kochfeld und Spüle ist in der Regel der Arbeitsbereich.
Ich würde gar keine Oberschränke planen. Wirkt irgendwie zu voll.
Ich würde die Spülen weiter links setzen und das Kochfeld verschieben.
Die Fläche zwischen Kochfeld und Spüle ist in der Regel der Arbeitsbereich.
Ich würde gar keine Oberschränke planen. Wirkt irgendwie zu voll.
Ähnliche Themen