Hausbau - Ratgeber
Bauherrenhilfe
- Bauherrenhilfe vor Vertragsabschluss
-- Warum einen unabhängigen Baubetreuer?
-- Vertragsgrundlagen
-- Bausumme
-- Zahlungsplan zur Kostenkontrolle
-- Pflichten des Bauherren vor Vertragsabschluss
-- Unterlagen beim Hausbau vor Vertragsabschluss
- Bauherrenhilfe nach Vertragsabschluss
-- Bauantrag bei Behörden
-- Bau-Genehmigungsverfahren bei Baubehörden
-- Bauspezifische Versicherungen
-- Bauzeitenplan
-- Baubeginn - die Letzten Pflichten der Bauherrschaft
- Bauherrenhilfe während der Bauzeit
- Gewährleistungsansprüche
- Bauabnahme
Baufinanzierung
- Baufinanzierung - Allgemeine Fragen
- Kreditarten
- Kredit-Konditionen
- Bausparen
- Staatliche Förderungen
- Verkehrswert
- Haushaltsrechnung und Bonität
Hausbau Planung
- Haustypen
- Hausbau Vorbereitungsarbeiten
- Das Baugrundstück
- Baugrund beim Hausbau
- Baurecht
- Gebäudeschutz
- Erdarbeiten und Wasserhaltung
- Stützmauern
- Einfriedung
- Untergeschoss
- Kanalisation
- Tragende Elemente
- Nichttragende Innenwände
- Fundation / Fundament
- Deckenkonstruktionen
- Dächer
- Kaminanlagen
- Treppen Rampen Leitern
- Dachbeläge und Spengler
- Fenster
- Sonnen und Wetterschutz
- Aussenputze
- Einbauten, Küchen, Türen
- Bodenbeläge und Unterlagsböden
- Parkett
- Gips, Wand, Decke
Haustechnik und Energie
- Heiztechnik
- Lüftung und Klimatechnik
- Sanitärtechnik
- Elektrotechnik
- Erneuerbare Energie
Whirlpools / Jacuzzi
Hausbau Magazin
- Baufinanzierung trotz Krise?
- Das Blockhaus
- Moderne Dämmstoffe im Vergleich
- Erker Vor- und Nachteile
- Glasflächen beim Hausbau
- Günstig ein Haus Bauen
- Mediterraner Hausbaustil
- Mehrgenerationenhaus
- Moderne Architektur
- Gartengestaltung leicht gemacht
- Traditioneller Ziegelbau
- Villa als höchster Traum
- Im Eigenheim Ruhestand geniessen
- Altbau sanieren
- Kauf einer Holzgarage
- Immobilienmakler
- Arbeitshandschuhe für den Winter
- Zuhause verschönern
- Outdoor-Plissees
- Schlafzimmer planen
- Terrassenüberdachung
- Wohngebäudeversicherung
- Girokonto für Bauherren finden
- Hauseingang gestalten
- Zaunarten und Eigenschaften
- Der perfekte Grundriss
- Sparsamer heizen im Altbau
- Einfamilienhaus smart finanzieren
- Planung einer PV-Anlage
- Neues Haus
- Immobilienfinanzierung
- Installation einer Photovoltaikanlage
- Asbest erkennen und entfernen
- Gartenpflege im Frühling – worauf achten
- Sauna im Fokus - Wellness zuhause
- Erfolgreich vermieten
- Die perfekte Winterbekleidung
- Das Niedrigenergiehaus
- Der April und seine Stürme
- Architektonische Vielfalt
- Ökologisch und nachhaltig bauen
- Das perfekte Schlafzimmer
- Nachhaltige Energieversorgung
- Zukunftsorientiert bauen
- Nachhaltigkeit beim Hausbau
- Tiny Houses
- Wärmepumpen als nachhaltige Heizvariante
- Maßgeschneiderten Kleiderschrank
- Der richtige Baukredit
- Ratgeber für erfolgreichen Hausbau
- Haus als Altersvorsorge
Do-it-yourself Anleitungen
- Verlegeanleitung für Bodenbeläge und Parkett
- Bodenbeläge und Parkett reinigen und pflegen
- Malerarbeiten am Haus
- Garten Tipps
- Umzug und Reinigung

ᐅ Reihenhaus Küche zu teuer oder angemessener Preis?

Erstellt am: 28.07.21 22:03
T
ToFi1988
T
ToFi1988
28.07.21 22:03
Hallo zusammen,

wir werden diesen Herbst/Winter in unser Reihenhaus-Neubau einziehen. Die Küche ist offen gestaltet, aber etwas kleiner - wir versuchen das Maximum herauszuholen. Wir haben mit 2-3 Küchenplanern gesprochen. Mit einem sind wir in die Details gegangen und haben nach einigen Terminen eine für uns sehr schöne Lösung gefunden. Ich würde nun noch gerne eine externe Meinung hören, ob die Küche überteuert oder preislich angemessen ist. Zudem wäre es gut, eine Meinung zu den Geräten zu hören. Ich bin für jede Hilfe sehr dankbar.

Bauort ist in der Nähe von Neumarkt in der Oberpfalz.
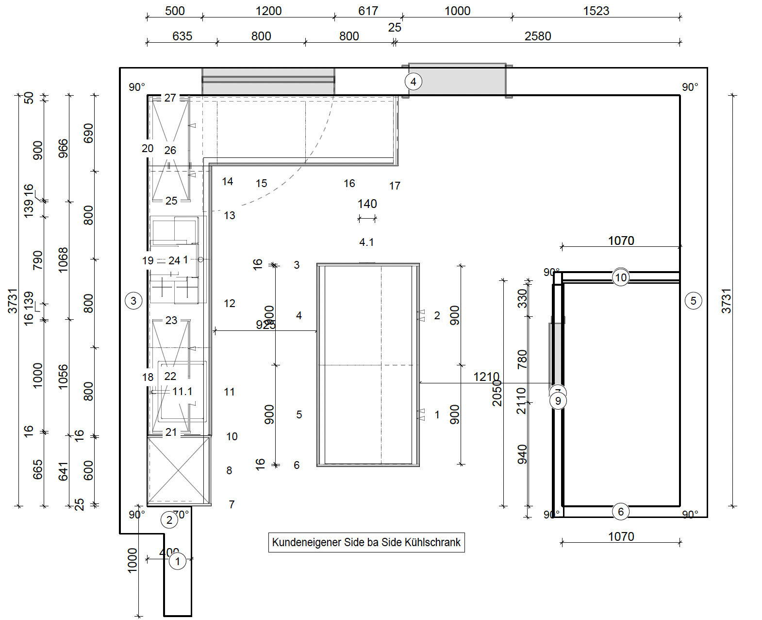
Die Küche hat eine L Form inkl. einer Kücheninsel. Die Insel dient rein als Arbeitsplatte, die Geräte sind an der Wand verbaut.

Küchenplaner ist ein neues Unternehmen, welches aus PlanA entstanden ist.
Hier die Details laut Angebot:

M1:
Lieferant ist Inpura Classic, Comet, Front in Spachtelbeton, Nova pro Modul C.

M2:
Templer Naturstein, satiniert 30-100 mm, Stärke 20 mm, Typ Nero India

Küchenblock L
6x Unterschrank
Wangen Kunststoff
6x Anti-Rutschmatte
Duo Einbausteckdosenelement
Spülenunterschrank
KeraDomo Unterbauspüle
Blanco Linus-S HD mit Schlauchbrause
Abfallsammler
2x Kochstellenunterschrank 80 cm
Besteckeinsatz
2x Oberschrank
2x Livello LED


Arbeitsplatte:
Naturstein satiniert 30-100, Stärke 20 mm Nero India
Teil 1:
Breite 2450 mm
Tiefe 585 mm
Höhe 40 mm
inkl. Bearbeitung

Teil 2:
Breite 2280 mm
Tiefe 640 mm
Höhe 40 mm
inkl. Bearbeitung

Teil 3:
Breite 1850 mm
Tiefe 935 mm
Höhe 40 mm

mit Wandschlussleisten

Geräte
Siemens Spüler SN63EX14BE
Siemens Dampf-Backofen HS836GVB6
Siemens Glaskeramik-kochfeld EX807LVV5E
Siemens Wandesse LC87KEM60

Alles inklusive Montage.

Ich habe ein Angebot für brutto 17.000 euro vorliegen.

Ich danke für eure Meinung, Einschätzung, Verbesserungsvorschläge und Hilfe.

Vielen Dank!


2D-Grundrissplan eines Hauses mit Küche, Wohnzimmer und Schlafzimmer

Moderne Küche mit grauen Schränken, schwarzer Arbeitsplatte, Insel, Ofen, Abzugshaube, Fenster.
D
driver55
28.07.21 22:23
Das kann hier keiner sinnvoll bewerten.
Nimm das AG und frag die selbe Küche bei zwei weiteren Studios an, dann bist schlauer.

Die eine oder andere Position gibt’s ja auch einzeln zu kaufen.

was wird denn dafür aufgerufen?
ToFi1988 schrieb:

Blanco Linus-S HD mit Schlauchbrause
Oder gibt es nur einen Gesamtpreis und keine Einzelposten?
Das sieht bei diesem runden Preis danach aus. 🙄

Die „Brause“ gibt’s für ca. 170€.
Nida35a28.07.21 22:28
ich sehe keinen Kühlschrank,
ansonsten kommt der Preis hin
B
Bookstar
28.07.21 22:30
Preis ist gut und absolut im Rahmen. Kann man so machen
Y
ypg
28.07.21 22:32
Es sind die unbekannten Details, die eine Küche teuer machen.
ToFi1988 schrieb:

Front in Spachtelbeton
Kunststoff in Spachteloptik? Oder Echtbeton?
ToFi1988 schrieb:

Templer Naturstein, satiniert 30-100 mm, Stärke 20 mm, Typ Nero India
Ebenso?
ToFi1988 schrieb:

Abfallsammler
Die gibt es auch von bis… kleiner Behälter an Tür oder Mülltrennanlage in der Schublade.
ToFi1988 schrieb:

Besteckeinsatz
30er, 90er, Plaste oder Holz?
ToFi1988 schrieb:

6x Unterschrank
Türen? Auszüge? Vollauszug?

Wenn alles im Standard ist, so wie ich denke (Kunststofffronten, gängige Schubladen 60er Einsätze, dann scheint es ein normaler Preis zu sein. Wichtig ist ja, dass ihr Eure persönliche Wertigkeit getroffen habt und sie Euch 17000€ wert sind. Küchen sind schlecht zu vergleichen.
M
Myrna_Loy
28.07.21 23:00
Preis scheint ok, aber warum sitzt das Spülbecken direkt am Hochschrank und direkt am Kochfeld???? das ist ein Kitchenette Layout und arbeitswegonomisch ein no go.
siemensküchearbeitsplattenatursteinkunststoffkochfeld