ᐅ Kontrollierte-Wohnraumlüftung Planung/Auslegung, Erfahrungen
Erstellt am: 25.04.23 10:54
B
baueninbwB
baueninbw25.04.23 10:54Guten Morgen liebes Forum,
ich habe heute die Planung vom Fertighaushersteller bezüglich der Kontrollierte-Wohnraumlüftung erhalten. Siehe die Bilder im Anhang. Die Planung selbst hat eine externe Firma erstellt, also nicht der Hausbauer.
Da mit dem Hausbauer aber leider schon einiges schief gelaufen ist, habe ich bei einem so heiklen Thema wie der Auslegung der Kontrollierte-Wohnraumlüftung schon ein bisschen meine Bedenken, bzw. würde ich gern euren Rat hier einholen wollen, einfach um sicher zu gehen, dass hier nicht am falschen Ende gespart wird. Denn wie man hier so lesen kann, spielen ja die kleinsten Dinge eine große Rolle, wenn es beispielsweise um die Lautstärke etc. geht.
Der Legende zur Folge handelt es sich bei der Planung um eine Planung für eine Zehnder Kontrollierte-Wohnraumlüftung, hier fängt es schon an, denn unsere Lüftungsanlage wird eine Viessmann Vitovent 300-W H32S C400 mit einem max. Luftvolumenstrom 400m³/h.
Außerdem macht mich der in der Legende aufgeführte Durchmesser von Ø130mm nachdenklich. Denn wenn ich die Montageanleitung der Viessmann Kontrollierte-Wohnraumlüftung richtig deute, wären bei unserer Kontrollierte-Wohnraumlüftung größere Durchmesser von nöten, weshalb ich auch Angst um die Lautstärke habe.
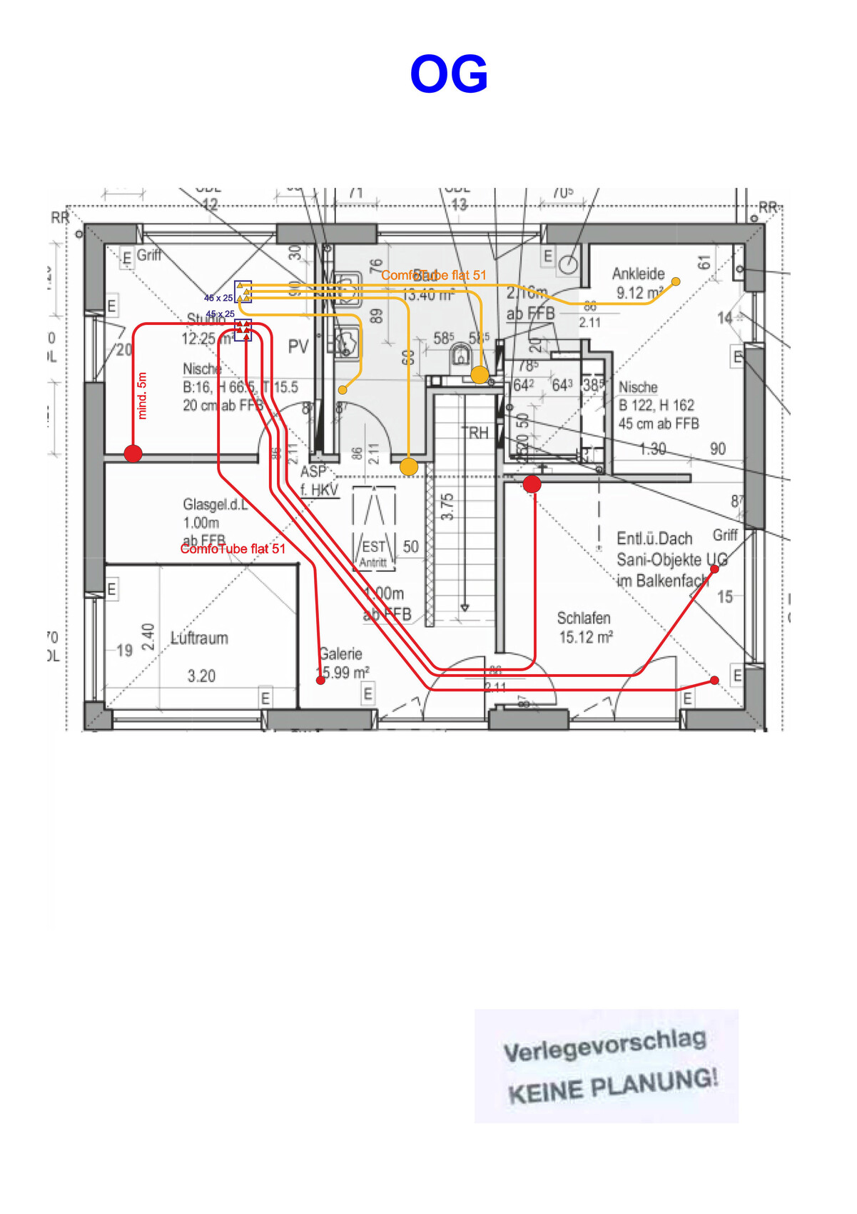
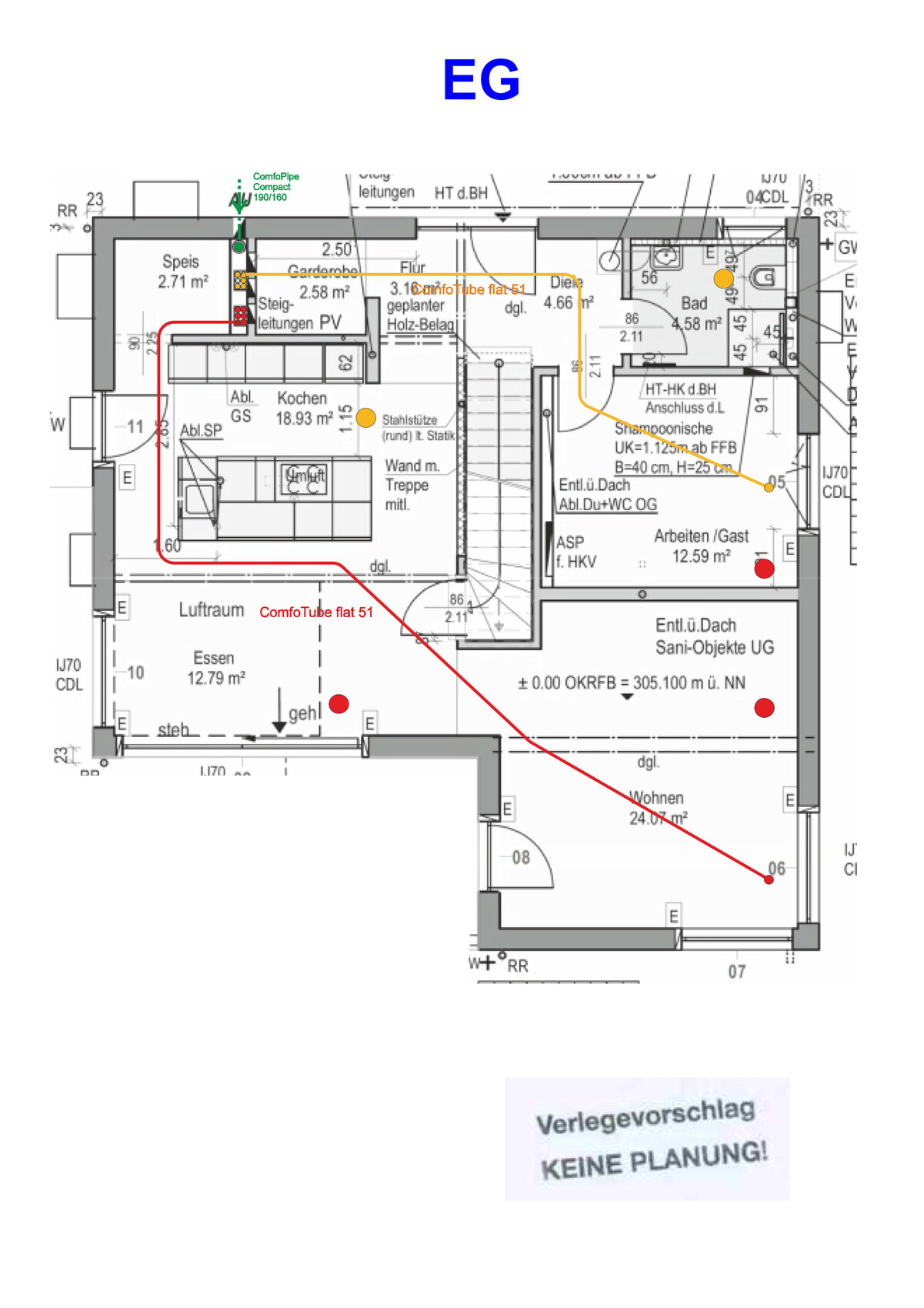
Und was haltet ihr von der Platzierung der Ventile. Ein bisschen was schieben wollen wir auf jeden Fall, denn beispielsweise ist im Schlafzimmer im OG der Auslass genau auf Kopfhöhe unseres Bettes. Auch bin ich mir nicht sicher, ob das Abluftventil im Flur oben da so klug ist, ziehen wir uns dadurch vielleicht die Kochgerüche über den Luftraum noch mehr nach oben? Im Wohnzimmer im EG ist der Auslass genau auf Fußhöhe unseres L-sofas, könnte das im Winter unangenehm sein? Sollte die Abluft in der Küche nicht etwas näher zum Kochfeld?
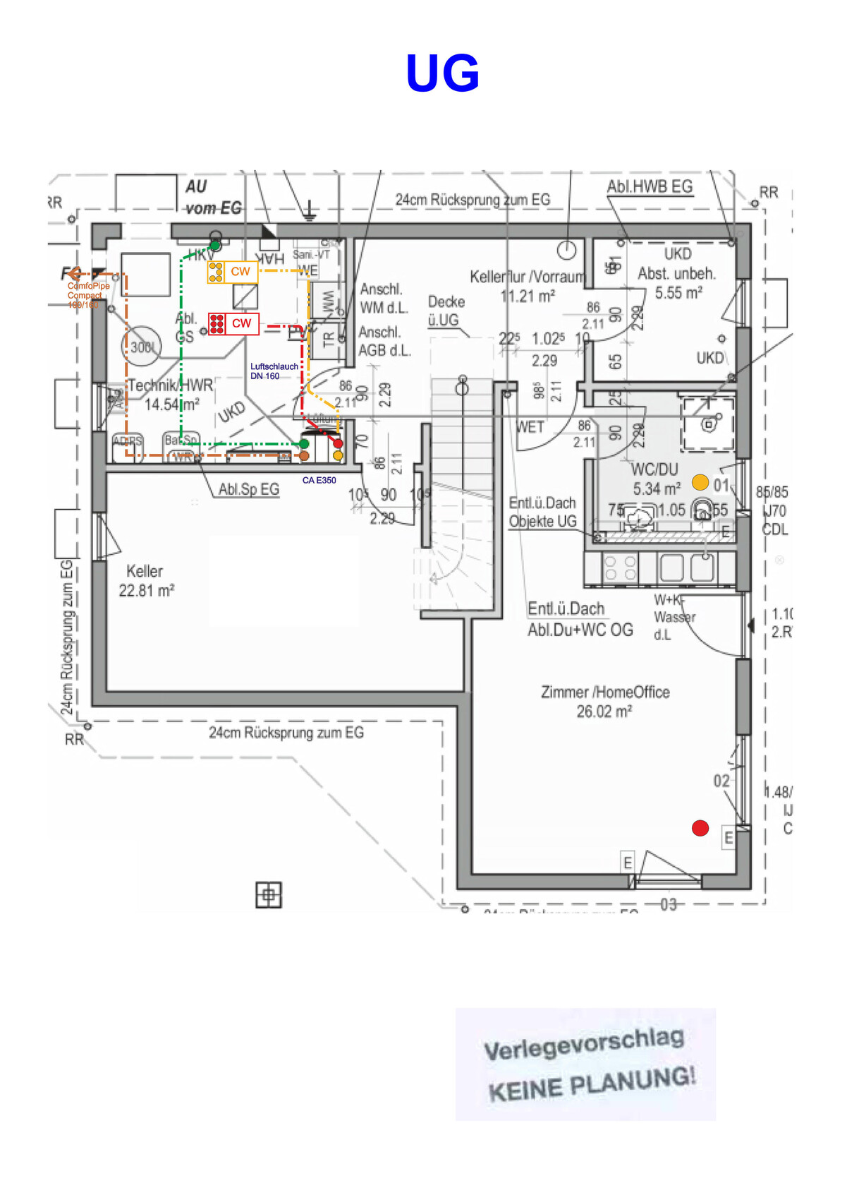
Im UG und EG kommen die Ventile bei diesem Hausbauer aus der Decke und im OG aus den Wänden, vermutlich sind Außenwände hier tabu.
Ich bin absolut nicht vom Fach, belese mich nur gern, weshalb auch alles in Ordnung sein kann, wie gesagt ist aber leider schon einiges aus Schludrigkeit schief gegangen und ich bin mir nicht sicher, ob dem Ersteller dieser Pläne überhaupt die richtige Kontrollierte-Wohnraumlüftung mitgeteilt wurde, speziell, weil es von der Vitovent 300-W auch 3 Varianten mit unterschiedlichem max. Volumenstrom gibt.
Könnt ihr mir ein bisschen helfen oder gar die Angst vor Fehlern nehmen?
Wir sind euch sehr dankbar für eure Hilfe, das ist sicher!
Beste Grüße
Paul


ich habe heute die Planung vom Fertighaushersteller bezüglich der Kontrollierte-Wohnraumlüftung erhalten. Siehe die Bilder im Anhang. Die Planung selbst hat eine externe Firma erstellt, also nicht der Hausbauer.
Da mit dem Hausbauer aber leider schon einiges schief gelaufen ist, habe ich bei einem so heiklen Thema wie der Auslegung der Kontrollierte-Wohnraumlüftung schon ein bisschen meine Bedenken, bzw. würde ich gern euren Rat hier einholen wollen, einfach um sicher zu gehen, dass hier nicht am falschen Ende gespart wird. Denn wie man hier so lesen kann, spielen ja die kleinsten Dinge eine große Rolle, wenn es beispielsweise um die Lautstärke etc. geht.
Der Legende zur Folge handelt es sich bei der Planung um eine Planung für eine Zehnder Kontrollierte-Wohnraumlüftung, hier fängt es schon an, denn unsere Lüftungsanlage wird eine Viessmann Vitovent 300-W H32S C400 mit einem max. Luftvolumenstrom 400m³/h.
Außerdem macht mich der in der Legende aufgeführte Durchmesser von Ø130mm nachdenklich. Denn wenn ich die Montageanleitung der Viessmann Kontrollierte-Wohnraumlüftung richtig deute, wären bei unserer Kontrollierte-Wohnraumlüftung größere Durchmesser von nöten, weshalb ich auch Angst um die Lautstärke habe.
Und was haltet ihr von der Platzierung der Ventile. Ein bisschen was schieben wollen wir auf jeden Fall, denn beispielsweise ist im Schlafzimmer im OG der Auslass genau auf Kopfhöhe unseres Bettes. Auch bin ich mir nicht sicher, ob das Abluftventil im Flur oben da so klug ist, ziehen wir uns dadurch vielleicht die Kochgerüche über den Luftraum noch mehr nach oben? Im Wohnzimmer im EG ist der Auslass genau auf Fußhöhe unseres L-sofas, könnte das im Winter unangenehm sein? Sollte die Abluft in der Küche nicht etwas näher zum Kochfeld?
Im UG und EG kommen die Ventile bei diesem Hausbauer aus der Decke und im OG aus den Wänden, vermutlich sind Außenwände hier tabu.
Ich bin absolut nicht vom Fach, belese mich nur gern, weshalb auch alles in Ordnung sein kann, wie gesagt ist aber leider schon einiges aus Schludrigkeit schief gegangen und ich bin mir nicht sicher, ob dem Ersteller dieser Pläne überhaupt die richtige Kontrollierte-Wohnraumlüftung mitgeteilt wurde, speziell, weil es von der Vitovent 300-W auch 3 Varianten mit unterschiedlichem max. Volumenstrom gibt.
Könnt ihr mir ein bisschen helfen oder gar die Angst vor Fehlern nehmen?
Wir sind euch sehr dankbar für eure Hilfe, das ist sicher!
Beste Grüße
Paul
Küche kann etwas näher an das Kochfeld, muß meiner Meinung nach aber nicht.
Wir haben im Flur im OG keine Abluft. Denke jedoch das die Gerüche oben keine Probleme sein sollten. Das meiste wird unten durch dunstabzug und Abluft abgezogen.
Vom sofa würde ich den Luftauslass weglassen vor allem wenn du zugempfindlich bist.
Zum Rest kann ich dir nicht viel sagen. Um die Lüftung hatten wir uns nicht wirklich gekümmert
Wir haben im Flur im OG keine Abluft. Denke jedoch das die Gerüche oben keine Probleme sein sollten. Das meiste wird unten durch dunstabzug und Abluft abgezogen.
Vom sofa würde ich den Luftauslass weglassen vor allem wenn du zugempfindlich bist.
Zum Rest kann ich dir nicht viel sagen. Um die Lüftung hatten wir uns nicht wirklich gekümmert
baueninbw schrieb:
ich habe heute die Planung vom Fertighaushersteller bezüglich der Kontrollierte-Wohnraumlüftung erhalten. Siehe die Bilder im Anhang. Die Planung selbst hat eine externe Firma erstellt, also nicht der Hausbauer.
Da mit dem Hausbauer aber leider schon einiges schief gelaufen ist, habe ich bei einem so heiklen Thema wie der Auslegung der Kontrollierte-Wohnraumlüftung schon ein bisschen meine Bedenken, bzw. würde ich gern euren Rat hier einholen wollen, einfach um sicher zu gehen, dass hier nicht am falschen Ende gespart wird.Mich wundert, daß einerseits "mit dem Hausbauer schon einiges schief gelaufen ist", davon in Deiner Threadhistorie aber nichts erkennbar ist. Nun hast Du also eine Planung vorgeschlagen bekommen, die von wem eigentlich stammt: von einem Sub des Hausbauers nehme ich an (?), vom Schiefläufer selbst jedenfalls nicht, und somit auch ersteinmal ohne Argwohn hinsichtlich der dahinter steckenden Planungskompetenz. Oder ist der Gegenstand Deiner Hinterfragung hier doch gerade dieser, ob die Anlage aus den richtigen Komponenten zusammengestellt und die empfehlenswertesten Hersteller ausgewählt wurde(n) ?Wenn ich nicht der Einzige bin, dem das bisher nicht klar ist, mag das das unerwartete Besucher-Helfenden-Verhältnis erklären.
Soweit Deine Erwartungen darauf hinweisen, daß Du schon eine Weile hier mitliest, sollten Dir auch die betreffenden Auskenner schon aufgefallen sein (ich zum Beispiel bin deutlich erkennbar kein Heizungsklimalüftungs-Spezialist). Sprich´ diese Mitglieder mit einem @ direkt vor ihren Mitgliedsnamen (also im Format @baueninbw) an, damit holst Du ihre Aufmerksamkeit in Deinen Thread hinein, denn meistens bestreifen sie das Forum nicht so hoch frequent.
Auch daß Du außer in die Pläne auch Einblick in Deine Erwartungen an und Einstellung zu Kontrollierte-Wohnraumlüftung gibst, würde nicht schaden. So können wir noch wenig erkennen. Auch den Hausbauer und seinen Wandaufbau zu nennen, könnte erhellend sein. Weshalb läßt er z.B. den (von wo zugekauften ?) Keller um satte 24 cm hinter dem EG zurückspringen, wo ist die GOK und so weiter ?
Eine mitgelieferte bunte Legende macht noch nicht wett, wenn zur Frage sonst fast aller Hintergrund fehlt !
https://www.instagram.com/11antgmxde/
https://www.linkedin.com/company/bauen-jetzt/
B
baueninbw26.04.23 17:45@11ant
Sei mir nicht böse, aber die von dir geforderten (sagen wir lieber angesprochenen) Punkte haben meiner Meinung nach nichts mit meinen eigentlich gestellten Fragen zu tun. Ich denke meine Fragen waren klar gestellt und alle Nebensächlichkeiten helfen auch nicht bei der Problemlösung.
Wären Forenkollegen hier, die mir helfen könnten, würde ein entsprechend fruchtbarer Dialog von ganz allein entstehen.
Meine Meinung und absolut kein Angriff, ehrlich nicht. Ich danke für deine Antwort, so oder so.
Sei mir nicht böse, aber die von dir geforderten (sagen wir lieber angesprochenen) Punkte haben meiner Meinung nach nichts mit meinen eigentlich gestellten Fragen zu tun. Ich denke meine Fragen waren klar gestellt und alle Nebensächlichkeiten helfen auch nicht bei der Problemlösung.
Wären Forenkollegen hier, die mir helfen könnten, würde ein entsprechend fruchtbarer Dialog von ganz allein entstehen.
Meine Meinung und absolut kein Angriff, ehrlich nicht. Ich danke für deine Antwort, so oder so.
B
baueninbw26.04.23 17:59Das Haus kommt in ca. 6 Wochen, der Keller schon in 3. Viel Zeit bleibt mir nicht mehr, deshalb meine Eile... Ich verstehe, dass nicht alles an zwei Tagen erledigt sein kann und doch hat der Hausbauer einfach so lange gebraucht um mir diese Sachen zu schicken, vielleicht ja auch mit Absicht so spät...
baueninbw schrieb:
Der Legende zur Folge handelt es sich bei der Planung um eine Planung für eine Zehnder Kontrollierte-Wohnraumlüftung, hier fängt es schon an, denn unsere Lüftungsanlage wird eine Viessmann Vitovent 300-W H32S C400 mit einem max. Luftvolumenstrom 400m³/h.Das ist kein Grund zur Beunruhigung. Die Planungssoftware kauft sich halt so ein Planer nicht fünfmal von jedem Hersteller, weil die jedes Mal das gleich rechnet.Wichtig ist, dass der berechnete Gesamtvolumenstrom und die daraus resultierende Luftwechselrate zum Gesamtvolumen des Hauses passt. 400m³/h klingt erstmal bei drei Stockwerken nicht verkehrt.
Ist das UG auch bewohnt/Aufenthaltsraum?
baueninbw schrieb:
Außerdem macht mich der in der Legende aufgeführte Durchmesser von Ø130mmKlingt erstmal nicht schlimm. Die Geräuschentwicklung hängt wiederum vom Durchmesser und Volumenstrom ab. Ich bin nicht firm genug um sagen zu können, ob da wirklich nichts zu hören sein wird, ich denke selbst jemand, der sich richtig auskennt müsste die komplette Berechnung sehen und nicht nur den Verlegevorschlag.Klar sind mehrere oder größere Auslässe nicht schädlich für die Geräuschentwicklung aber die muss man halt auch bezahlen.
baueninbw schrieb:
Und was haltet ihr von der Platzierung der Ventile. Ein bisschen was schieben wollen wir auf jeden Fall, denn beispielsweise ist im Schlafzimmer im OG der Auslass genau auf Kopfhöhe unseres Bettes.Ja direkt über dem Kopf sollte kein Auslass sein, das ist schon ein spürbarer Luftzug.baueninbw schrieb:
ziehen wir uns dadurch vielleicht die Kochgerüche über den Luftraum noch mehr nach oben?baueninbw schrieb:
Sollte die Abluft in der Küche nicht etwas näher zum Kochfeld?Das glaube ich nicht, da ja ein Abzug direkt im Küchenbereich ist. Du solltest dich alelrdings von der Idee verabschieden, dass die Kontrollierte-Wohnraumlüftung so stark Gerüche wegzieht - egal ob sie direkt überm Herd ist oder nicht.Dafür bräuchte man schon eine extrem gute Abzugshaube (die übrigens auch nicht dafür da ist Geruchverteilung zu verhindern, sondern um Wrasen abzusaugen).
baueninbw schrieb:
Im Wohnzimmer im EG ist der Auslass genau auf Fußhöhe unseres L-Sofas, könnte das im Winter unangenehm sein?Wenn ihr sehr Zugempfindlich seit ja. Kommst aber auch darauf an, ob ihr vorhabt im Winter Barfüßig auf dem Sofa rumzuliegen und natürlich wie Zugempfindlich ihr seid. Wie gesagt, in normaler Einstellung ist es schon spürbar. Wir haben tatsächlich einen Auslass direkt über dem Sofa und es ist spürbar, aber auch nicht so unangenehm, dass man da nicht sitzen mag. Ich empfinde es manchmal sogar als angenehm.baueninbw schrieb:
Im UG und EG kommen die Ventile bei diesem Hausbauer aus der Decke und im OG aus den Wänden, vermutlich sind Außenwände hier tabu.Ja, soweit so normal, wo siehst du hier ein Problem?Ähnliche Themen