Bei uns war die Vorgabe, dass der Zwischenbau (Garage/Carport/theoretisch hätte es ein Aufenthaltsraum sein dürfen) min. 5 m breit und Max. 3 m hoch sein darf. Da euer Nachbar aber schon so gebaut hat werden die 3 m passen.
Ein Vollkeller muss ja an die Grenze wo, wie geschrieben wurde, das Fundament der Garage steht. An der Kellerwand wird jedoch ein Arbeitsraum benötigt der dann unter der Garage geschaffen werden muss. Der Benutzer 11ant hatte das mal irgendwo im Bezug auf ne Doppelhaushälfte geschrieben was für nen Quark das zum umsetzen ist.
War bei uns ausschlaggebend für nen Teilkeller.
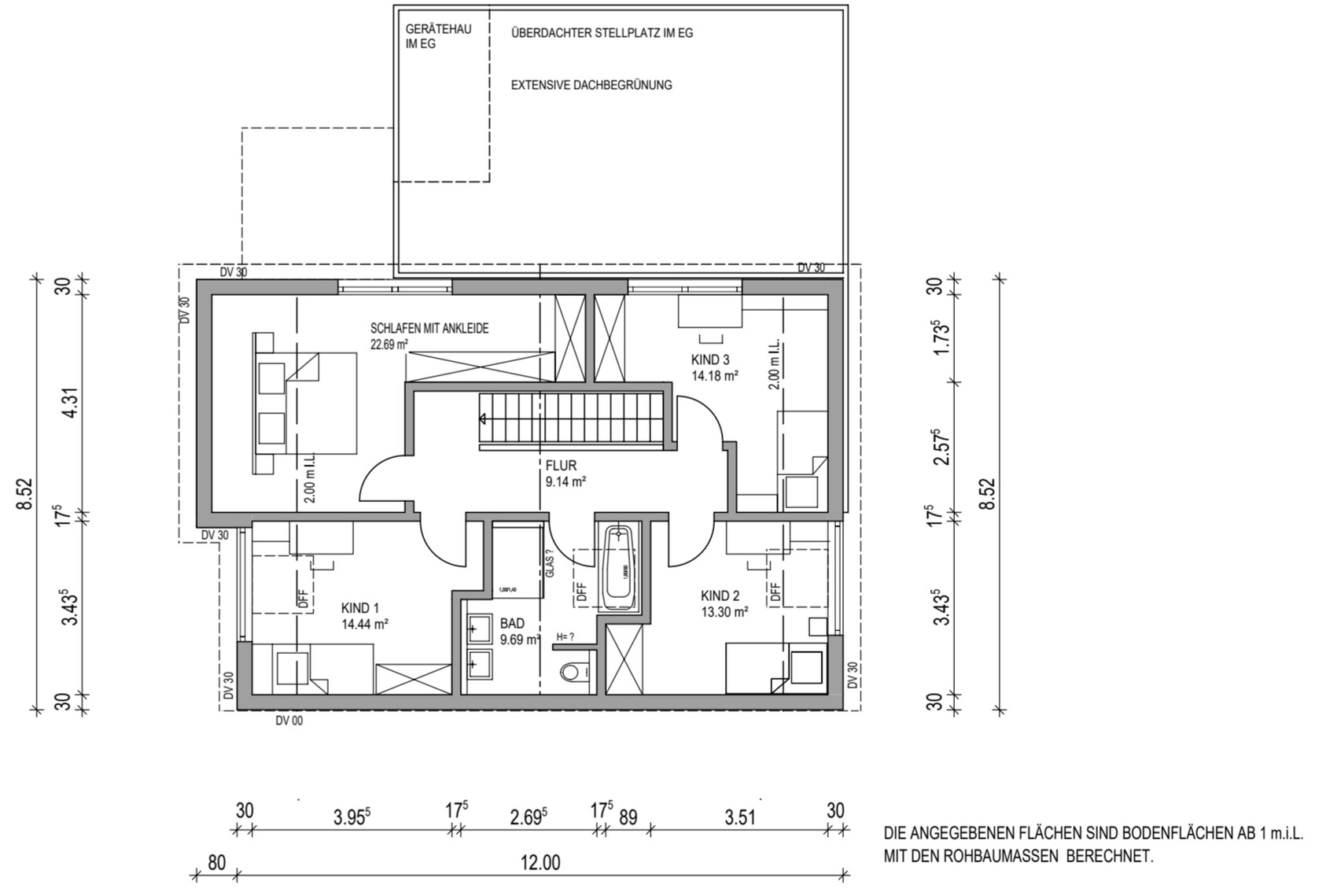
Grundrisse sind in dem Fall hauptsächlich Doppelhaushälfte oder REH ähnlich. Einen passenden Einfamilienhaus Grundriss haben wir nicht gefunden, da die dunkle Wand nie gepasst hat, der Eingang falsch war hauptsächlich aber kaum Grundrisse mit drei Kinderzimmern vorhanden sind.
Der jetzige ist sicher nicht jedermanns Sache deckt aber fast alle Wünsche ab. Übrigens hab ich keine aktuelle Ansicht daher passt die nicht mehr ganz zu den jetzigen Fenstern.




Ein Vollkeller muss ja an die Grenze wo, wie geschrieben wurde, das Fundament der Garage steht. An der Kellerwand wird jedoch ein Arbeitsraum benötigt der dann unter der Garage geschaffen werden muss. Der Benutzer 11ant hatte das mal irgendwo im Bezug auf ne Doppelhaushälfte geschrieben was für nen Quark das zum umsetzen ist.
War bei uns ausschlaggebend für nen Teilkeller.
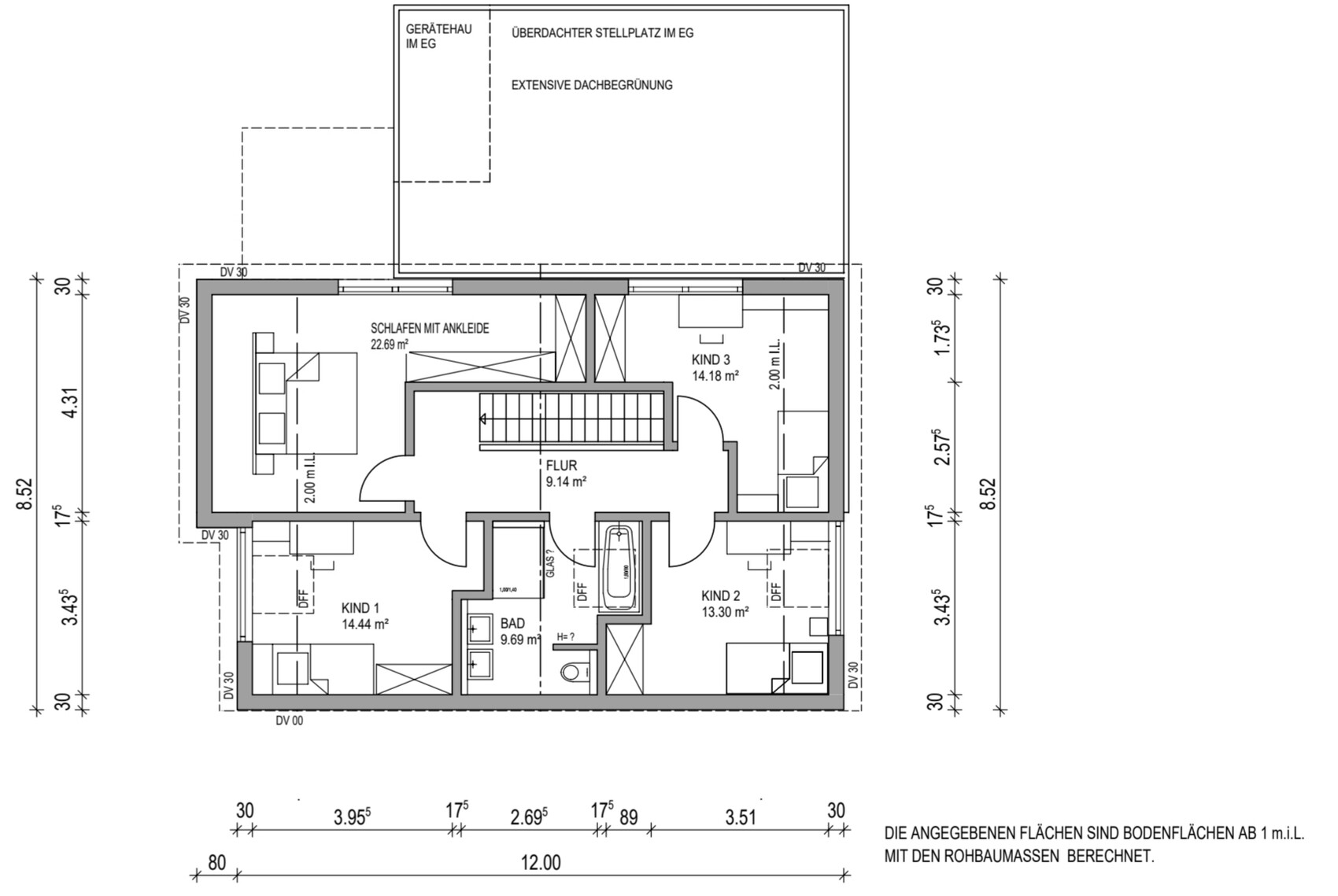
Grundrisse sind in dem Fall hauptsächlich Doppelhaushälfte oder REH ähnlich. Einen passenden Einfamilienhaus Grundriss haben wir nicht gefunden, da die dunkle Wand nie gepasst hat, der Eingang falsch war hauptsächlich aber kaum Grundrisse mit drei Kinderzimmern vorhanden sind.
Der jetzige ist sicher nicht jedermanns Sache deckt aber fast alle Wünsche ab. Übrigens hab ich keine aktuelle Ansicht daher passt die nicht mehr ganz zu den jetzigen Fenstern.
Slava_S schrieb:
Der Benutzer 11ant hatte das mal irgendwo im Bezug auf ne Doppelhaushälfte geschrieben was für nen Quark das zum umsetzen ist.Meine Grundeinschätzung zu Doppelhaushälfte gilt sinngemäß auch hier: daß das eigentlich eine Hausart für Bauträger ist, mindestens aber keine empfehlenswerte Spielwiese für erstgebärende Bauherren. Und was ich sonst bei Doppelhaushälfte empfehle - die Abstimmung zwischen den Planern, wenn nicht gar einen gemeinsamen - gilt hier natürlich gleich die ganze Kette betreffend.https://www.instagram.com/11antgmxde/
https://www.linkedin.com/company/bauen-jetzt/
Stimmt ich voll und ganz zu. Sowohl in der Planung als auch Ausführung hätte man hier bares Geld sparen können.
Jedoch waren alle froh ein Grundstück zu bekommen, sind gleich zu Ihren favorisierten Bauträgern gerannt und haben die Verträge unterschrieben. Wussten es ja nicht besser.
Jedoch waren alle froh ein Grundstück zu bekommen, sind gleich zu Ihren favorisierten Bauträgern gerannt und haben die Verträge unterschrieben. Wussten es ja nicht besser.
11ant schrieb:Das passt besser als beim ersten lesen verstanden.
erstgebärende Bauherren
Slava_S schrieb:
Das passt besser als beim ersten lesen verstanden.Was hattest Du denn da verstanden ?Slava_S schrieb:
Sowohl in der Planung als auch Ausführung hätte man hier bares Geld sparen können.Inwiefern das ?Slava_S schrieb:
Jedoch waren alle froh ein Grundstück zu bekommen, sind gleich zu Ihren favorisierten Bauträgern geranntDa meinst Du BauUnternehmer. Von Bauträgern könnte man keinen favorisieren, weil ja nur einer von ihnen das begehrte Grundstück besitzt.Bauträger sind Verkäufer bebaut entwickelter Grundstücke. Ich meinte, daß Doppelhaushälfte / Hausreihen / Kettenhäuser dem Wesen nach einen Grundstücksentwickler erfordern, der das Gesamtprojekt durchzieht und erst wenn es fertig ist (zumindest rechtlich, zeitlich häufig schon vorher) verkauft.
Die Schnittstelle "gemeinsame Grenze" bleibt zweckmäßig in einer Hand, bis an das Gesamtding ein Griff geschraubt werden kann.
Zu dieser meiner Haltung gibt es durchaus auch Gegenmeinungen, die das als Pessimismus ansehen. Aber aus meiner Sicht ist jeder für sich hinter einem Vorhang zu werkeln und sich erst beim Richtfest überraschen zu lassen ob die beiden Hälften zusammenpassen etwas für Leute, die gerne Filme des Genres "Geschenkt ist noch zu teuer" schauen. Ich persönlich ziehe wenn ich heulen will die "Schicksalsjahre einer Kaiserin" vor
https://www.instagram.com/11antgmxde/
https://www.linkedin.com/company/bauen-jetzt/
11ant schrieb:
Was hattest Du denn da verstanden ?Ich kannte den Ausdruck so nicht und hab das wörtlich verstehen wollen.11ant schrieb:
Inwiefern das ?11ant schrieb:
Die Schnittstelle "gemeinsame Grenze" bleibt zweckmäßig in einer Hand, bis an das Gesamtding ein Griff geschraubt werden kann.Du beantwortest die Rückfrage fast selbst und meine Erfahrung bestätigt das. Die größeren Mengen in der Verhandlung und die freiere Ausführungsplanung spiegeln sich automatisch im Preis wieder. Ob das unbedingt ein Bauträger übernehmen muss ist die andere Frage, da die Freiheit in der Gestaltung dem Gewinn untergeordnet wird.Die Gegenmeinungen sind ja auch berechtigt, auch ich würde wieder so vorgehen obwohl die Schnittstellen nicht immer transparent sind. In der aktuellen Marktlage werden solche Risiken eingegangen.
Mbk84 schrieb:
3. Ist bei der Grundflächenzahl ein 9x10m Haus + Garage/Stellplatz 30qm machbar? Soweit ich gelesen habe, darf bei Nebenanlagen die Grundflächenzahl um 50% überschritten werden.Setzt der Bebauungsplan diesbezüglich nichts weiter fest? Dann gilt die Baunutzungsverordnung, so wie Du es beschrieben hast, sofern eine Fassung nach 1990 anzuwenden ist, was, nach dem Bebauungsplan-Ausschnitt zu urteilen, hier sicher zutrifft.Mbk84 schrieb:
90qm Haus < 0,4x240 + 30qm <0,5x0,4x240Da gruselt es den Mathematiker. Mein Vorschlag:
Grundriss I (Max): 240m² * 0,4 = 96m²
Grundriss II (Max): 96m² * 1,5 = 144m²
Bei einem Haus von 9m * 10m bleiben also noch 6m² für die Terrasse und dann noch 48m² für Garage/Stellplatz und Zufahrt.
Ähnliche Themen