Hausbau - Ratgeber
Bauherrenhilfe
- Bauherrenhilfe vor Vertragsabschluss
-- Warum einen unabhängigen Baubetreuer?
-- Vertragsgrundlagen
-- Bausumme
-- Zahlungsplan zur Kostenkontrolle
-- Pflichten des Bauherren vor Vertragsabschluss
-- Unterlagen beim Hausbau vor Vertragsabschluss
- Bauherrenhilfe nach Vertragsabschluss
-- Bauantrag bei Behörden
-- Bau-Genehmigungsverfahren bei Baubehörden
-- Bauspezifische Versicherungen
-- Bauzeitenplan
-- Baubeginn - die Letzten Pflichten der Bauherrschaft
- Bauherrenhilfe während der Bauzeit
- Gewährleistungsansprüche
- Bauabnahme
Baufinanzierung
- Baufinanzierung - Allgemeine Fragen
- Kreditarten
- Kredit-Konditionen
- Bausparen
- Staatliche Förderungen
- Verkehrswert
- Haushaltsrechnung und Bonität
Hausbau Planung
- Haustypen
- Hausbau Vorbereitungsarbeiten
- Das Baugrundstück
- Baugrund beim Hausbau
- Baurecht
- Gebäudeschutz
- Erdarbeiten und Wasserhaltung
- Stützmauern
- Einfriedung
- Untergeschoss
- Kanalisation
- Tragende Elemente
- Nichttragende Innenwände
- Fundation / Fundament
- Deckenkonstruktionen
- Dächer
- Kaminanlagen
- Treppen Rampen Leitern
- Dachbeläge und Spengler
- Fenster
- Sonnen und Wetterschutz
- Aussenputze
- Einbauten, Küchen, Türen
- Bodenbeläge und Unterlagsböden
- Parkett
- Gips, Wand, Decke
Haustechnik und Energie
- Heiztechnik
- Lüftung und Klimatechnik
- Sanitärtechnik
- Elektrotechnik
- Erneuerbare Energie
Whirlpools / Jacuzzi
Hausbau Magazin
- Baufinanzierung trotz Krise?
- Das Blockhaus
- Moderne Dämmstoffe im Vergleich
- Erker Vor- und Nachteile
- Glasflächen beim Hausbau
- Günstig ein Haus Bauen
- Mediterraner Hausbaustil
- Mehrgenerationenhaus
- Moderne Architektur
- Gartengestaltung leicht gemacht
- Traditioneller Ziegelbau
- Villa als höchster Traum
- Im Eigenheim Ruhestand geniessen
- Altbau sanieren
- Kauf einer Holzgarage
- Immobilienmakler
- Arbeitshandschuhe für den Winter
- Zuhause verschönern
- Outdoor-Plissees
- Schlafzimmer planen
- Terrassenüberdachung
- Wohngebäudeversicherung
- Zaunarten und Eigenschaften
- Hauseingang gestalten
- Der perfekte Grundriss
- Sparsamer heizen im Altbau
- Einfamilienhaus smart finanzieren
- Planung einer PV-Anlage
- Neues Haus
- Immobilienfinanzierung
- Installation einer Photovoltaikanlage
- Asbest erkennen und entfernen
- Gartenpflege im Frühling – worauf achten
- Sauna im Fokus - Wellness zuhause
- Erfolgreich vermieten
- Die perfekte Winterbekleidung
- Das Niedrigenergiehaus
- Der April und seine Stürme
- Architektonische Vielfalt
- Ökologisch und nachhaltig bauen
- Das perfekte Schlafzimmer
- Nachhaltige Energieversorgung
- Zukunftsorientiert bauen
- Nachhaltigkeit beim Hausbau
- Tiny Houses
- Wärmepumpen als nachhaltige Heizvariante
- Maßgeschneiderten Kleiderschrank
- Der richtige Baukredit
- Ratgeber für erfolgreichen Hausbau
- Haus als Altersvorsorge
Do-it-yourself Anleitungen
- Verlegeanleitung für Bodenbeläge und Parkett
- Bodenbeläge und Parkett reinigen und pflegen
- Malerarbeiten am Haus
- Garten Tipps
- Umzug und Reinigung

ᐅ Kaufmöglichkeit "zu kleines" Einfamilienhaus für "zu hohen" Preis 120qm / 550TE

Erstellt am: 24.01.22 15:17
A
Alibert87
A
Alibert87
24.01.22 15:17
Hallo zusammen, wir haben eine Kaufmöglichkeit für ein Einfamilienhaus in unserer Wunschlage. Ich hätte gerne ein wenig Input, bzw. Ideen, ob wir den Schritt wagen sollten oder ob es gar keinen Sinn macht!?
Daten:
Haus ist über 100 Jahre alt, 120qm (plus Keller und Spitzboden), Grundstück ca. 300qm, Renovierung vor ca. 30 Jahren ( neue Dacheindeckung, Wärmedämmverbundsystem , Gasheizung aus 2006)
Was müsste gemacht werden: viel (inkl. Gestaltung neuer Zimmeraufteilung) - mind. ca 150TE für die Sanierung
Wir sind zu viert und haben einsprechend Angst, dass es zu beengt sein könnte. Zumal alles im allem ziemlich teuer ist.

Für uns ist es die Wunschlage und auch eine der besten Lage in unserer Stadt, sodass wir die Chance eigentlich wahrnehmen wollen, aber Preis und Baumumfang sind schon enorm....

Was machen?
A
Alibert87
24.01.22 15:24

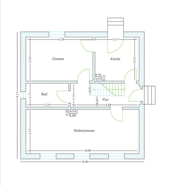
Grundriss einer Wohnung: Wohnzimmer, Zimmer, Küche, Bad, Flur; Türen und Treppen.

Unter und Obergeschoss (Keller habe ich mal raus gelassen - ist ja kein Wohnraum)



Grundriss einer Wohnung mit zwei Schlafzimmern, Arbeitszimmer, Bad, Ankleide, Flur und Wohnzimmer
R
rick2018
24.01.22 15:24
Bekommst du ein neues Haus günstiger? Vermutlich nicht.
In eurer Traumlage? Vermutlich nicht.
120m2 zu viert plus viel Stauraum ist nicht klein. Kinder werden groß und ziehen irgendwann aus.
Wenn es wirklich so eine tolle Lage ist wird euch die Entscheidung vermutlich schnell abgenommen weil jemand zuschlägt. Egal ob für Sanierung oder Neubau.
Günstig ist es nicht. Wie groß ist eurer Budget und wie ist die Einkommenssituation?
A
Alibert87
24.01.22 15:34
rick2018 schrieb:

Bekommst du ein neues Haus günstiger? Vermutlich nicht.
In eurer Traumlage? Vermutlich nicht.
120m2 zu viert plus viel Stauraum ist nicht klein. Kinder werden groß und ziehen irgendwann aus.
Wenn es wirklich so eine tolle Lage ist wird euch die Entscheidung vermutlich schnell abgenommen weil jemand zuschlägt. Egal ob für Sanierung oder Neubau.
Günstig ist es nicht. Wie groß ist eurer Budget und wie ist die Einkommenssituation?

Also Neubau wollen wir gar nicht, allerdings ist das Haus schon wirklich alt (man sieht es dem Haus allerdings nicht an)
Wir wohnen aktuell auf ca 130qm (eine Fläche - leider keinen Garten), deswegen kommt es uns ziemlich beengt vor. Zumal es aktuell auch vom Schnitt überhaupt nicht zu uns passt. Wir denken auch, dass es eine tolle Chance ist, da es kaum Angebote in der Lage gibt.
Haben ca 150TE Eigenkapital (plus Puffer), "leider" ist meine Frau noch ca ein Jahr in Elternzeit, deswegen ca 5500 Euro netto , sonst ca 6200 Euro netto
H
Hausbautraum20
24.01.22 16:06
Das Haus kostet also 550k plus 150k Sanierung oder ist die Sanierung in den 550k enthalten?
700k für ein 100 Jahre altes Haus mit eher kleinem Grund würde man in unserer Gemeinde auch locker verlangen können, aber je nach Landkreis klingt es schon teuer.

120qm mit Keller ist aber was anderes als ohne Keller! Der ganze Stauraum kann in den Keller und bei uns haben so viele ihr Büro im Keller.
Also es ist nicht luxuriös, aber ausreichend.

Was gefällt euch am Grundriss nicht?
A
Alibert87
24.01.22 16:14
Hausbautraum20 schrieb:

Das Haus kostet also 550k plus 150k Sanierung oder ist die Sanierung in den 550k enthalten?
700k für ein 100 Jahre altes Haus mit eher kleinem Grund würde man in unserer Gemeinde auch locker verlangen können, aber je nach Landkreis klingt es schon teuer.

120qm mit Keller ist aber was anderes als ohne Keller! Der ganze Stauraum kann in den Keller und bei uns haben so viele ihr Büro im Keller.
Also es ist nicht luxuriös, aber ausreichend.

Was gefällt euch am Grundriss nicht?

Plus ca 150 TE Sanierung. Es ist teuer ja, zumal wir uns es nicht so nicht saniert vorstellen können, dass es für uns auch den Wert von 700TE hat (das ist ziemlich viel Geld)

Die Bäder sind zu klein. Die Räume müssten offener gestaltet werden, damit es heller und größer wirkt
kellersanierungstauraumneubau