Bei uns kann man vom Hauptbad die Wäsche ins den Schacht werfen vom OG aus oder vom Kinderbad das im EG ist ....
Kommt halt immer auf den Grundriss an , viele haben den Einwurf auch einfach im Flur ....
Wäsche wird ungetrennt eingeworfen , ich trenne dann unten im Keller selbst nach Farben etc , weil der Nachwuchs das leider eh nicht korrekt macht ( je nach Alter).
Kommt halt immer auf den Grundriss an , viele haben den Einwurf auch einfach im Flur ....
Wäsche wird ungetrennt eingeworfen , ich trenne dann unten im Keller selbst nach Farben etc , weil der Nachwuchs das leider eh nicht korrekt macht ( je nach Alter).
D
Davidoff8623.01.20 16:41Servusla,
ich steige in das Thema ein und stelle euch meine Planungsproblematik vor:
Wir haben einen flachen, 225 m2 "großen" Bauplatz, worauf wir laut Bebauungsplan ein Einfamilienhaus bauen sollen. Das Haus besteht aus EG, OG und Staffelgeschoss (muss so sein laut Bebauungsplan) und hat eine Baufläche brutto von Max. 9x9m, wir rechnen also mit einer Wohnfläche von mindestens 150-160 m2.
Es stellt sich nun die Frage, ob wir mit oder ohne Keller bauen.
Was dafür spricht:
Ich weiß, es sinde einige, teilweise inkonsistente (was wäre wenn...) Faktoren im Spiel. Für konkrete und sachliche Tipps wäre ich trotzdem sehr dankbar.
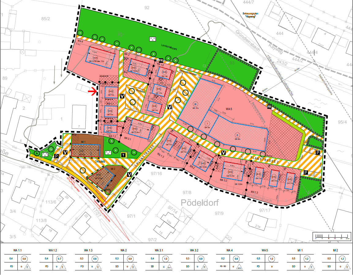
Zum besseren Verständnis hänge ich den Bebauungsplan an.


ich steige in das Thema ein und stelle euch meine Planungsproblematik vor:
Wir haben einen flachen, 225 m2 "großen" Bauplatz, worauf wir laut Bebauungsplan ein Einfamilienhaus bauen sollen. Das Haus besteht aus EG, OG und Staffelgeschoss (muss so sein laut Bebauungsplan) und hat eine Baufläche brutto von Max. 9x9m, wir rechnen also mit einer Wohnfläche von mindestens 150-160 m2.
Es stellt sich nun die Frage, ob wir mit oder ohne Keller bauen.
Was dafür spricht:
- Ein Keller bietet natürlich viel Platzraum, etwa für Haustechnik, Wäsche, zum Lagern etc.
- Ohne Keller brauchen wir auf jeden Fall einen Haustechnikraum im EG. Bei Außenmaßen von 9x9 würden wir es zwar hinkriegen, so einen Raum hätten wir jedoch gerne anders genutzt (z.B. meine Frau ist Lehrerin und braucht ein Arbeitszimmer);
- Wir werden eine 10x3m Garage bauen mit Extraraum, welcher aber nur Max. 4x3m groß ausfällt. Mehr Platz, etwa für ein Gartenhäusle o.Ä., haben wir leider nicht;
- Wir haben im Moment nur ein Kind, planen aber mit mindestens ein zweites oder gar drittes. Trotz Der Raum könnte also knapp werden;
- höherer Wert des Hauses.
- der Keller muss aufgrund des hohen Grundwasserspiegels als weiße Wanne gebaut werden, was bedeutet:
- hohe Kosten, ich rechne mit mindestens 60-70.000 € (Nutzkeller, ohne oder mit kaum Fenster);
- trotz der weißen Wanne, habe ich trotzdem Angst vor Feuchtigkeit, da z.B. der Keller falsch gebaut werden könnte. Ein Haus mit feuchtem Keller ist weniger Wert als ein Haus ohne Keller;
- Das mit weiteren Kindern ist natürlich Zukunftsmusik. Was, wenn weitere Kinder nicht kommen? Wir hätten ein Riesenhaus und kaum Gebrauch dafür.
Ich weiß, es sinde einige, teilweise inkonsistente (was wäre wenn...) Faktoren im Spiel. Für konkrete und sachliche Tipps wäre ich trotzdem sehr dankbar.
Zum besseren Verständnis hänge ich den Bebauungsplan an.
D
Davidoff8623.01.20 19:34Danke, das erwarte ich auch nicht. Ich hoffe eher auf Erfahrungen von anderen Bauherren, die vllt in einer ähnlichen Situation waren bzw. sind (kleiner Bauplatz, feste Vorschriften, Bodenverhältnisse etc.) und wie sie das gelöst haben.
Ich sehe aber ein, wahrscheinlich habe ich die Frage falsch gestellt.
Ich sehe aber ein, wahrscheinlich habe ich die Frage falsch gestellt.
Ähnliche Themen