D
daniels8703.11.16 16:22Wenn man einen Fitnessraum als guten Vorsatz sieht schon. Wenn man schon länger den Sport betreibt wird man froh um den Raum sein.
B
Bauexperte03.11.16 16:30Guten Tag,
ich weiß nicht, wie es dazu gekommen ist, daß ich diesen Thread als TE eröffne; interessant sind die unterschiedlichen Sichtweisen der beteiligten User allemal!
Aus meinem Job kenne ich nur 3 Erklärungen, weshalb Bauherren sich für einen Keller entscheiden:
Was hier im Diskussionsfaden imho unter den Tisch fällt, ist, daß ein Keller - gleich ob Nutz- oder Wohnkeller, auch erhebliche Kosten infolge Erdbewegungen nach sich zieht. Findet sich ein ausreichend tragfähiger, gewachsener Boden mit einer Bodenpressung von mindestens 200 kN/m2 gleichmäßiger Bodenschicht, sind die Kosten *noch* überschaubar; weicht das vorhandene Terrain von dieser Vorgabe ab, *kann* es ordentlich ins Geld gehen. Ich finde es deshalb zu kurz geschaut, werden die Kosten eines Kellers ausschließlich auf das erforderliche Gerüst Mensch und Material reduziert.
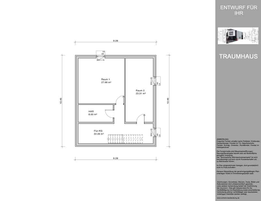
Im nachfolgenden beschreibe ich ein BV mit Teilkeller; Bildmaterial soweit für unseren Kunden unschädlich, habe ich angefügt. Grundlage bildet unsere BB, welche ich im gesunden Mittelfeld ansetzen würde.
Einfamilienhaus Wohn-/Nutzfläche 280 qm, bezugsfertig als Kompletthaus mit überdachtem Freisitz, Energieeinsparverordnung 2014
Patio, verputzte Ausführung, 14.48 x 14.46 m, mit Teilkeller 9.28 x 10,46 m
Lichte Erdgeschoßhöhe 2.75 m
WD-Keller
Teilfarbiger Putz
Farbige Fenster (einseitig foliert)
Betontreppe
Kontrollierte-Wohnraumlüftung mit Wärmerückgewinnung
elektrische Rollläden
Vorbereitung Photovoltaik
Wäscheabwurfsystem
Kaminzug VA
Malerarbeiten + Bodenbeläge
Flachdach
Festpreis von € 429.000,00
(die Kosten für den Keller incl. Aushub und seitlicher Lagerung betrugen € 65.000,00)
Kosten Einfamilienhaus bezugsfertig/qm: € 2.166,00; Kosten Nutzkeller/qm (bisher): € 793,00
Zus. Kosten Baunebenkosten (Baunebenkosten)
Baunebenkosten Paket 1
Vermesser inkl. Lageplan, Einmessungen und Endeinmessung
Baunebenkosten Paket 2
Baustrom, Bauwasserbereitstellung
Baunebenkosten Paket 3
Bodenabfuhr vollständiger Oberboden, sauberer Boden vorausgesetzt
Bodenabfuhr vollständiger Aushub, sauberer Boden vorausgesetzt
Bodenanfuhr Füllkies
Bodenanfuhr Mutterboden ungesiebt und einebnen
Grundstück räumen, natürlicher Aufstand entsorgen
Fällen und Abtransport Wurzel 1 Stück
Lagerfläche herstellen
Abdecken der Straße auf bis zu 50 m² vor dem Grundstück
Baunebenkosten Paket 4
Entwässerungsleitungen Schmutzwasser vom Haus bis zur Nördlichen Grundstücksgrenze einschl. Revisionsschachterstellung DN 1000 bis 2,00 m Tiefe herstellen
Entwässerungsleitungen vom Haus bis zur Nördlichen Grundstücksgrenze herstellen
Baunebenkosten Paket 5
Pflasterarbeiten im Bereich der Terrasse, Stellplatz und Zufahrt, Max. 50 m²
Pflasterunterbau herstellen, Kantensteine in anthrazit liefern und einbauen.
Pflasterfläche herstellen und einkehren Materialwert bis 25 € / m², z.B. Kann La Tierra
Podest aus v.g. Material bis 1,00 m² mit Palisadeneinfassung herstellen
Pakete 1 bis 5 komplett € 37.400,00
Hieraus läßt sich sehr gut ableiten, daß es beim Keller gerade nicht bei den originären Erstellungskosten bleibt; die Mehraufwendungen für Erdarbeiten waren nicht eben gering, da der Aushub nicht auf dem Grundstück gelagert werden konnte. Erschwerend kam hinzu, daß das Grundstück von der hinteren Grenze erschlossen werden mußte; die Kosten hierfür habe ich für diesen Beitrag außen vorgelassen, da nicht typisch.
Demgegenüber eine aktuelle Projektierung eines klassischen Einfamilienhaus:
Einfamilienhaus, Wohn-/Nutzfläche 160 qm, bezugsfertig, als Kompletthaus, verputzte Ausführung,
9.00 x 10.00 m auf Bodenplatteverschärfte, Energieeinsparverordnung 2014
Innenliegendes Satteldach
Farbige Fenster (einseitig foliert)
Stahlholztreppe
Dezentrale Lüftungsanlage
elektrische Rollläden
Vorbereitung Photovoltaik
Malerarbeiten und Bodenbeläge
Festpreis von € 302.000,00
Kosten Baunebenkosten-Pakete 1 bis 5 für Neubau auf Bodenplatte € 33.000,00 (infolge Hinterlandbebauung). Die Kosten für einen Nutzkeller incl. Aushub und seitlicher Lagerung betragen € 41.000,00. Da das Bodengutachten gerade erst beauftragt ist, kann ich noch nichts über die Bodenbeschaffenheit, zu evlt. Mehrkosten infolge Erdarbeiten schreiben.
Kosten Einfamilienhaus bezugsfertig/qm: € 1.887,50; bisherige Kosten Nutzkeller/qm: € 594,00
Im ersteren Beispiel wird der Keller ausschließlich als Nutzkeller verwendet; im 2. Beispiel steht der ausgebaute Spitzboden mit 28,16 qm sowohl als Wohn- als auch Nutzfläche zur Verfügung.
In den vorgestellten Beispielen ist ausschließlich von Nutzkellern die Rede; soll der unterirdisch geschaffene Raum zu Wohnzwecken ausgebaut werden, muß der Wärmeerzeuger an die erforderliche Leistung angepasst, Wohnraumfenster und 2. Rettungsweg, wie die Ausstattung analog der oberirdischen Fläche hergestellt werden. Unter dem Strich kostet dann der Wohnkeller nicht weniger, als die oberirdische Fläche.
Zum Vergleich: eine Fertiggarage 2.96 x 8.96 x 2.45 m mit Türe und Fenster zum Garten, Sektionaltor und erforderlicher Streifenfundamente kostet aktuell € 10.500,00; der qm aufgerundet € 396,00. Der PkW steht trocken, knappe 9.00 qm als Nutzfläche zur Verfügung.
Grundsätzlich kann ich feststellen, daß ein Keller immer dann vermisst wird - so er nicht beruflich erforderlich oder durch die Topographie des Grundstücks interessant ist, wenn die oberirdische Fläche am Bedarf vorbei geplant wurde. Es gibt Beispiele im Netz, welche von € 300.00/qm für einen Keller schreiben, ich hoffe, ich konnte diese verkürzte Darstellung etwas gerade rücken; auch eine weitere Mär des Netzes (Lobby pro Keller), daß ein Keller *höchstens* 10% der Bausumme kostet. Ich sehe auch nicht, daß sich ein Einfamilienhaus ohne Keller nur mit Wertverlust verkaufen läßt. In kommenden Jahren wird es eher die Regel sein, ohne Keller zu bauen, da die Bodenrisiken nicht zu unterschätzen sind, die Baupreise weiter steigen werden.
Deshalb ist es - aus meiner Sicht - wichtig, eine am Bedarf orientierte Entwurfsplanung zu erstellen; eine Planung welche bspw. einen Hauswirtschaftsraum da vorsieht, wo Wäsche vornehmlich entsteht. Das kann beim einen Bauherren das EG sein, bei Familien ist es dagegen häufig das OG oder das DG. Brauche ich einen Keller und wenn ja, wozu will ich ihn nutzen? Ist ein Büro gewünscht - häufig bei Lehrerinnen der Fall, aber auch zunehmend bei Home Officers, sollte der Spitzboden in die Überlegung einbezogen werden; die Möglichkeit der Abseitentüren unterhalb der Schrägen ist ein schöner Aufbewahrungsort für Material; Platz für Technik ist - gegen geringe Mehrkosten - schnell abgetrennt und hergestellt.
Ich lese auch immer wieder, daß auf die Zukunft hin geplant wird - im Alter soll ebenerdig gewohnt werden - was passiert eigentlich dann mit dem Keller, so einer vorhanden ist? Abgesehen davon, daß ich kaum Entwürfe kenne, welche die EG-Planung nicht zerklüftet (interessanterweise wird ein wichtiger Punkt, häufig das DU-WC, in dieser Überlegung stiefmütterlich behandelt), sollte sich Jedermann die Frage stellen, ob er sich wirklich auf den worst case hin einschränken will? Was, wenn er - was ich jedem nur wünschen kann - nie eintritt, die Lebensverhältnisse sich ändern? Erfahrungsgemäß ist es die letzten Jahre so gewesen, daß Bestandsimmobilien in den späteren Lebensjahren veräußert werden und sich stattdessen verändert, kleiner gesetzt (ETW) oder der Neubau mit Kindern (Einliegerwohnung) in Erwägung gezogen wird. Häufig habe ich es schon erlebt, daß Eltern ihren Kindern die Immobilie vererben und sich selbst wieder als Mieter niederlassen. Nicht die dümmste Entscheidung, möchte ich meinen; insbesondere dann, wenn viel zu bearbeitende Gartenfläche zum Bestand gehört.
Grüße, Bauexperte





ich weiß nicht, wie es dazu gekommen ist, daß ich diesen Thread als TE eröffne; interessant sind die unterschiedlichen Sichtweisen der beteiligten User allemal!
Aus meinem Job kenne ich nur 3 Erklärungen, weshalb Bauherren sich für einen Keller entscheiden:
- "Ein Haus ohne Keller ist kein Haus"
- berufliches musst have
- die Topographie des Grundstücks
Was hier im Diskussionsfaden imho unter den Tisch fällt, ist, daß ein Keller - gleich ob Nutz- oder Wohnkeller, auch erhebliche Kosten infolge Erdbewegungen nach sich zieht. Findet sich ein ausreichend tragfähiger, gewachsener Boden mit einer Bodenpressung von mindestens 200 kN/m2 gleichmäßiger Bodenschicht, sind die Kosten *noch* überschaubar; weicht das vorhandene Terrain von dieser Vorgabe ab, *kann* es ordentlich ins Geld gehen. Ich finde es deshalb zu kurz geschaut, werden die Kosten eines Kellers ausschließlich auf das erforderliche Gerüst Mensch und Material reduziert.
Im nachfolgenden beschreibe ich ein BV mit Teilkeller; Bildmaterial soweit für unseren Kunden unschädlich, habe ich angefügt. Grundlage bildet unsere BB, welche ich im gesunden Mittelfeld ansetzen würde.
Einfamilienhaus Wohn-/Nutzfläche 280 qm, bezugsfertig als Kompletthaus mit überdachtem Freisitz, Energieeinsparverordnung 2014
Patio, verputzte Ausführung, 14.48 x 14.46 m, mit Teilkeller 9.28 x 10,46 m
Lichte Erdgeschoßhöhe 2.75 m
WD-Keller
Teilfarbiger Putz
Farbige Fenster (einseitig foliert)
Betontreppe
Kontrollierte-Wohnraumlüftung mit Wärmerückgewinnung
elektrische Rollläden
Vorbereitung Photovoltaik
Wäscheabwurfsystem
Kaminzug VA
Malerarbeiten + Bodenbeläge
Flachdach
Festpreis von € 429.000,00
(die Kosten für den Keller incl. Aushub und seitlicher Lagerung betrugen € 65.000,00)
Kosten Einfamilienhaus bezugsfertig/qm: € 2.166,00; Kosten Nutzkeller/qm (bisher): € 793,00
Zus. Kosten Baunebenkosten (Baunebenkosten)
Baunebenkosten Paket 1
Vermesser inkl. Lageplan, Einmessungen und Endeinmessung
Baunebenkosten Paket 2
Baustrom, Bauwasserbereitstellung
Baunebenkosten Paket 3
Bodenabfuhr vollständiger Oberboden, sauberer Boden vorausgesetzt
Bodenabfuhr vollständiger Aushub, sauberer Boden vorausgesetzt
Bodenanfuhr Füllkies
Bodenanfuhr Mutterboden ungesiebt und einebnen
Grundstück räumen, natürlicher Aufstand entsorgen
Fällen und Abtransport Wurzel 1 Stück
Lagerfläche herstellen
Abdecken der Straße auf bis zu 50 m² vor dem Grundstück
Baunebenkosten Paket 4
Entwässerungsleitungen Schmutzwasser vom Haus bis zur Nördlichen Grundstücksgrenze einschl. Revisionsschachterstellung DN 1000 bis 2,00 m Tiefe herstellen
Entwässerungsleitungen vom Haus bis zur Nördlichen Grundstücksgrenze herstellen
Baunebenkosten Paket 5
Pflasterarbeiten im Bereich der Terrasse, Stellplatz und Zufahrt, Max. 50 m²
Pflasterunterbau herstellen, Kantensteine in anthrazit liefern und einbauen.
Pflasterfläche herstellen und einkehren Materialwert bis 25 € / m², z.B. Kann La Tierra
Podest aus v.g. Material bis 1,00 m² mit Palisadeneinfassung herstellen
Pakete 1 bis 5 komplett € 37.400,00
Hieraus läßt sich sehr gut ableiten, daß es beim Keller gerade nicht bei den originären Erstellungskosten bleibt; die Mehraufwendungen für Erdarbeiten waren nicht eben gering, da der Aushub nicht auf dem Grundstück gelagert werden konnte. Erschwerend kam hinzu, daß das Grundstück von der hinteren Grenze erschlossen werden mußte; die Kosten hierfür habe ich für diesen Beitrag außen vorgelassen, da nicht typisch.
Demgegenüber eine aktuelle Projektierung eines klassischen Einfamilienhaus:
Einfamilienhaus, Wohn-/Nutzfläche 160 qm, bezugsfertig, als Kompletthaus, verputzte Ausführung,
9.00 x 10.00 m auf Bodenplatteverschärfte, Energieeinsparverordnung 2014
Innenliegendes Satteldach
Farbige Fenster (einseitig foliert)
Stahlholztreppe
Dezentrale Lüftungsanlage
elektrische Rollläden
Vorbereitung Photovoltaik
Malerarbeiten und Bodenbeläge
Festpreis von € 302.000,00
Kosten Baunebenkosten-Pakete 1 bis 5 für Neubau auf Bodenplatte € 33.000,00 (infolge Hinterlandbebauung). Die Kosten für einen Nutzkeller incl. Aushub und seitlicher Lagerung betragen € 41.000,00. Da das Bodengutachten gerade erst beauftragt ist, kann ich noch nichts über die Bodenbeschaffenheit, zu evlt. Mehrkosten infolge Erdarbeiten schreiben.
Kosten Einfamilienhaus bezugsfertig/qm: € 1.887,50; bisherige Kosten Nutzkeller/qm: € 594,00
Im ersteren Beispiel wird der Keller ausschließlich als Nutzkeller verwendet; im 2. Beispiel steht der ausgebaute Spitzboden mit 28,16 qm sowohl als Wohn- als auch Nutzfläche zur Verfügung.
In den vorgestellten Beispielen ist ausschließlich von Nutzkellern die Rede; soll der unterirdisch geschaffene Raum zu Wohnzwecken ausgebaut werden, muß der Wärmeerzeuger an die erforderliche Leistung angepasst, Wohnraumfenster und 2. Rettungsweg, wie die Ausstattung analog der oberirdischen Fläche hergestellt werden. Unter dem Strich kostet dann der Wohnkeller nicht weniger, als die oberirdische Fläche.
Zum Vergleich: eine Fertiggarage 2.96 x 8.96 x 2.45 m mit Türe und Fenster zum Garten, Sektionaltor und erforderlicher Streifenfundamente kostet aktuell € 10.500,00; der qm aufgerundet € 396,00. Der PkW steht trocken, knappe 9.00 qm als Nutzfläche zur Verfügung.
Grundsätzlich kann ich feststellen, daß ein Keller immer dann vermisst wird - so er nicht beruflich erforderlich oder durch die Topographie des Grundstücks interessant ist, wenn die oberirdische Fläche am Bedarf vorbei geplant wurde. Es gibt Beispiele im Netz, welche von € 300.00/qm für einen Keller schreiben, ich hoffe, ich konnte diese verkürzte Darstellung etwas gerade rücken; auch eine weitere Mär des Netzes (Lobby pro Keller), daß ein Keller *höchstens* 10% der Bausumme kostet. Ich sehe auch nicht, daß sich ein Einfamilienhaus ohne Keller nur mit Wertverlust verkaufen läßt. In kommenden Jahren wird es eher die Regel sein, ohne Keller zu bauen, da die Bodenrisiken nicht zu unterschätzen sind, die Baupreise weiter steigen werden.
Deshalb ist es - aus meiner Sicht - wichtig, eine am Bedarf orientierte Entwurfsplanung zu erstellen; eine Planung welche bspw. einen Hauswirtschaftsraum da vorsieht, wo Wäsche vornehmlich entsteht. Das kann beim einen Bauherren das EG sein, bei Familien ist es dagegen häufig das OG oder das DG. Brauche ich einen Keller und wenn ja, wozu will ich ihn nutzen? Ist ein Büro gewünscht - häufig bei Lehrerinnen der Fall, aber auch zunehmend bei Home Officers, sollte der Spitzboden in die Überlegung einbezogen werden; die Möglichkeit der Abseitentüren unterhalb der Schrägen ist ein schöner Aufbewahrungsort für Material; Platz für Technik ist - gegen geringe Mehrkosten - schnell abgetrennt und hergestellt.
Ich lese auch immer wieder, daß auf die Zukunft hin geplant wird - im Alter soll ebenerdig gewohnt werden - was passiert eigentlich dann mit dem Keller, so einer vorhanden ist? Abgesehen davon, daß ich kaum Entwürfe kenne, welche die EG-Planung nicht zerklüftet (interessanterweise wird ein wichtiger Punkt, häufig das DU-WC, in dieser Überlegung stiefmütterlich behandelt), sollte sich Jedermann die Frage stellen, ob er sich wirklich auf den worst case hin einschränken will? Was, wenn er - was ich jedem nur wünschen kann - nie eintritt, die Lebensverhältnisse sich ändern? Erfahrungsgemäß ist es die letzten Jahre so gewesen, daß Bestandsimmobilien in den späteren Lebensjahren veräußert werden und sich stattdessen verändert, kleiner gesetzt (ETW) oder der Neubau mit Kindern (Einliegerwohnung) in Erwägung gezogen wird. Häufig habe ich es schon erlebt, daß Eltern ihren Kindern die Immobilie vererben und sich selbst wieder als Mieter niederlassen. Nicht die dümmste Entscheidung, möchte ich meinen; insbesondere dann, wenn viel zu bearbeitende Gartenfläche zum Bestand gehört.
Grüße, Bauexperte
J
j.bautsch04.11.16 08:13auch wenn ich darauf nichts wichtiges beitragen kann: toller Beitrag, vielen dank
Alles schön und gut und nachvollziehbar. Aber wenn eben nicht in die Breite gebaut werden kann und die Höhe durch Vorschriften begrenzt wird, dann bleibt nur der Weg nach unten um ausreichend Stauraum zu gewinnen.
Im Zeitalter zunehmender Verdichtung ist dann der Keller, trotz aller Kosten, oft halt doch nicht "out".
Im Zeitalter zunehmender Verdichtung ist dann der Keller, trotz aller Kosten, oft halt doch nicht "out".
Ähnliche Themen