vorab: wir sind gerade so ein bisschen in der Phase, dass wir alle bisherigen Planungen schwer in Frage stellen. 🙂 ich hoffe, diese Phase ist normal .
Mich beschäftigt im Moment der Aspekt, inwieweit man beim Planen des Grundrisses die Situation im Alter berücksichtigen sollte. Bei den Grundrissen, die wir bisher favorisiert haben, wäre ein Leben im Alter mit den vielleicht tYpischen Problemen so nicht einfach möglich .
So planen wir aktuell zwar auch ein Duschbad im EG, aber das wird sich irgendwo zwischen 3,5-5 qm abspielen und eine grosse, barrierefreie Dusche wäre dort vermutlich ebenso wenig möglich wie überhaupt ausreichend Platz , um Bad mit einem Rollator zu betreten usw. Grundsätzlich hätte ich auch immer ein Schlafzimmer im EG für eine sinnvolle Option gehalten im Hinblick auf später, aber mir scheint, dass speziell solche "Katalog Grundrisse" von Baureihen ein ausreichend großes Schlafzimmer im EG und eben ein ausreichend großes Bad gar nicht so vorsehen .
Nun ist es nicht so, dass uns heute erst bewusst geworden wäre, dass wir auch mal hoffentlich 90 sein könnten und vielleicht die Treppen nicht mehr hochkommen. Wir haben die Frage nach Wohnen im Haus im Alter einfach nicht unbedingt als Priorität gesehen. Grundsätzlich gewinnen wir dem Gedanken nämlich weiter viel ab, dass wir unser Einfamilienhaus vielleicht in 30 Jahren an eines der Kinder geben oder es vermieten, um selbst wieder in die Stadt zu ziehen usw, viel ab.
Aber vielleicht sehen wir das in 20 Jahren sehr anders. Vielleicht hängen wir dann extrem an diesem Ort, an dem Haus, können uns vielleicht nicht vorstellen, dass Elternhaus unserer Kinder zu verkaufen usw.
Dann wäre es ja doch nicht unklug, so zu planen, dass man irgendwann komplett im EG leben könnte, den oberen Teil vielleicht als Wohneinheit separieren, vermieten könnte. Aber dann müsste man evtl jetzt auch Dinge anders planen ...
Welche Rolle hat dieser Aspekt bei euch gespielt?
Mich beschäftigt im Moment der Aspekt, inwieweit man beim Planen des Grundrisses die Situation im Alter berücksichtigen sollte. Bei den Grundrissen, die wir bisher favorisiert haben, wäre ein Leben im Alter mit den vielleicht tYpischen Problemen so nicht einfach möglich .
So planen wir aktuell zwar auch ein Duschbad im EG, aber das wird sich irgendwo zwischen 3,5-5 qm abspielen und eine grosse, barrierefreie Dusche wäre dort vermutlich ebenso wenig möglich wie überhaupt ausreichend Platz , um Bad mit einem Rollator zu betreten usw. Grundsätzlich hätte ich auch immer ein Schlafzimmer im EG für eine sinnvolle Option gehalten im Hinblick auf später, aber mir scheint, dass speziell solche "Katalog Grundrisse" von Baureihen ein ausreichend großes Schlafzimmer im EG und eben ein ausreichend großes Bad gar nicht so vorsehen .
Nun ist es nicht so, dass uns heute erst bewusst geworden wäre, dass wir auch mal hoffentlich 90 sein könnten und vielleicht die Treppen nicht mehr hochkommen. Wir haben die Frage nach Wohnen im Haus im Alter einfach nicht unbedingt als Priorität gesehen. Grundsätzlich gewinnen wir dem Gedanken nämlich weiter viel ab, dass wir unser Einfamilienhaus vielleicht in 30 Jahren an eines der Kinder geben oder es vermieten, um selbst wieder in die Stadt zu ziehen usw, viel ab.
Aber vielleicht sehen wir das in 20 Jahren sehr anders. Vielleicht hängen wir dann extrem an diesem Ort, an dem Haus, können uns vielleicht nicht vorstellen, dass Elternhaus unserer Kinder zu verkaufen usw.
Dann wäre es ja doch nicht unklug, so zu planen, dass man irgendwann komplett im EG leben könnte, den oberen Teil vielleicht als Wohneinheit separieren, vermieten könnte. Aber dann müsste man evtl jetzt auch Dinge anders planen ...
Welche Rolle hat dieser Aspekt bei euch gespielt?
Mizit schrieb:
Ypg, Mitte 30.
Wir sind 10/20 Jahre bei der Hausplanung älter gewesen. Da kann man den für Kinder nicht zu gebrauchenden Platz auch fürs Alter präventiv planen.
Dusche im EG, auch ein ebenerdiges Zimmer, in dem man schlafen könnte, dass sollte für viele vom Preis in der Planung drin sein. Eventuell jetzt ein RiesenWZ, welches man später sinnvoll trennen kann.
Für jede Möglichkeit der Behinderung etwas einzuplanen, kann man meist nicht. Barrieren wie unnötige Ecken oder Wände, alles auf knappe Cm geplant, das kann man immer selbst berücksichtigen.
Schlaganfälle kommen unverhofft, und auch junge Leute sind gefährdet.
In der Lage, durch eine Fuß-OP nicht laufen zu können und zu dürfen, war ich auch schon.
Es ist schön, bei einfachen Behinderungen immer noch die Vorzüge des Hauses genießen zu können 🙂
T
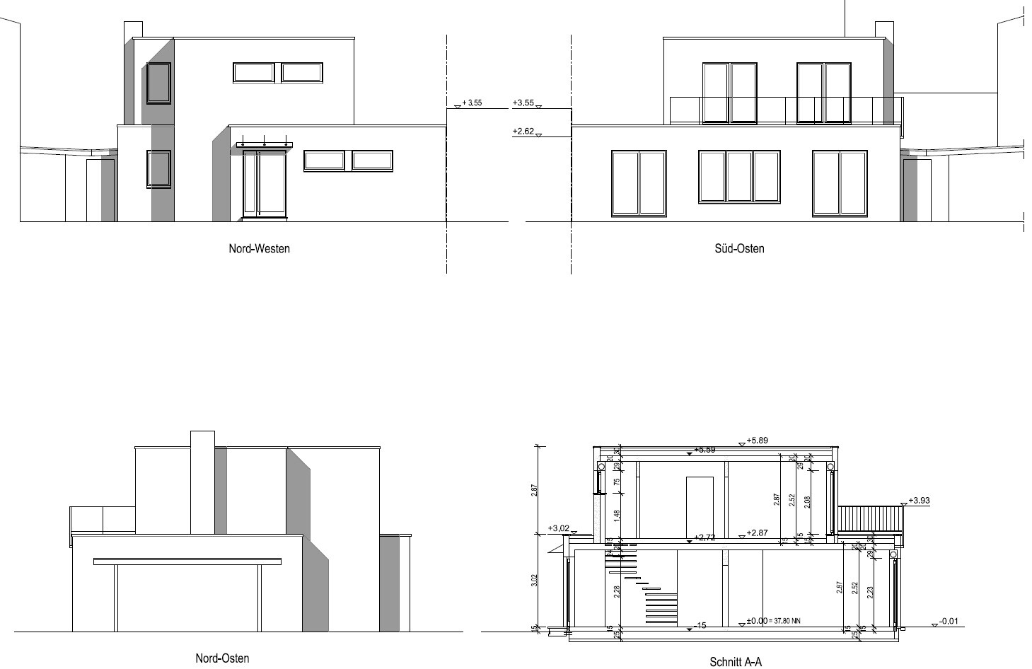
toxicmolotof13.08.16 14:47Da der Wunsch per PN kam, hier unseren Grundriss zu zeigen.... gesagt, getan.
Die notwendigen Türen sollten logisch sein, um die Räumliche Trennung von EG und OG zu schaffen.
Ich möchte darauf hinweisen, dass dies hier keine Erlaubnis ist, die Grundrisse "einfach so" zu verwenden. Für Anregungen können sie gerne verwendet werden. Sollte man mehr als nur Anregungen verwenden wollen, sollten wir drüber reden. Für Feedback bin ich natürlich offen.


Die notwendigen Türen sollten logisch sein, um die Räumliche Trennung von EG und OG zu schaffen.
Ich möchte darauf hinweisen, dass dies hier keine Erlaubnis ist, die Grundrisse "einfach so" zu verwenden. Für Anregungen können sie gerne verwendet werden. Sollte man mehr als nur Anregungen verwenden wollen, sollten wir drüber reden. Für Feedback bin ich natürlich offen.
Wir haben unsere ursprüngliche Planung komplett umgeworfen und haben alle unsere Räume im EG, oben sind die Kinderzimmer und das Arbeitszimmer. Dort könnte dann evtl. auch eine Pflegekraft einziehen, ein zusätzliches Bad ist auch im OG.
Dadurch ist unser Haus ziemlich groß geworden...wir haben nun insges. 240 qm Wohnfläche....aber unser Haus ist nun fast fertig, ich hoffe, wir können in ca. 6 Wochen einziehen.
Dadurch ist unser Haus ziemlich groß geworden...wir haben nun insges. 240 qm Wohnfläche....aber unser Haus ist nun fast fertig, ich hoffe, wir können in ca. 6 Wochen einziehen.
Wir sind gerade bzw. nicht ganz 30 und werden das Thema nicht beachten. Lange bevor eine Treppe ein Hindernis werden sollte wächst einem doch z.B. die gesamte Gartenarbeit über den Kopf bzw. Haus putzen und einfach alles drum herum. Außerdem, bei einem 2-geschossigen Haus, wäre es m.E. eine große Verschwendung sich nur auf eine Etage zu beschränken. Mal abgesehen davon, wir planen ein Arbeitszimmer im EG, welches zumindest als Einzelschlafzimmer taugen könnte und eine Dusche im EG ist auch geplant.
Wir bauen aber auch in sehr guter Lage, d.h. nah am Stadtzentrum, und würden das Haus wohl problemlos und schnell losbekommen für einen guten Preis. Oder vorzeitig vererben. Auf jeden Fall schließe ich gar nicht mal aus, dass wir vielleicht mit 50,60,70 Jahren einfach wieder in eine Stadtwohnung ziehen ohne Gartenarbeit, ohne viel Putzen und andere Pflichten wie Schneeräumen. Für die nächsten 20 Jahre ist ein Haus sicher optimal, aber danach kann man ja wieder wechseln bzw. in 30 oder 40 Jahren.
In Amerika ist der Trend zum schnellen Hauswechsel schon lange da und sowas schwappt ja bekanntlich nach spätestens 10 Jahren über. Wir kennen auch Leute, die ziehen von Familienhaus nachdem die Kinder aus dem Haus sind in den neu gebauten Bungalow. Die sind etwa Mitte 50. Und dann vielleicht mit Mitte 70 wieder in die Stadt und den Bungalow verkaufen? Andere Bekannte wollen jetzt mit Ende 50 vom Familienhaus wieder in eine Stadtwohnung, so wie wir es ja auch nicht ausschließen.
Um es jetzt aber zu relativieren: Wer auf dem Land gebaut hat und sein Haus vermutlich nur weit unter Wert losbekommt und wer vielleicht einer Stadtwohnung eh nichts abgewinnen kann, der sollte da vielleicht mehr darauf achten. Unsere Nonchalance diesem Thema gegenüber rührt auch zum großen Teil daraus, dass Bauland wie Familienhäuser hier extrem stark gefragt sind und das bleibt in dieser Region hier auch so.
Wir bauen aber auch in sehr guter Lage, d.h. nah am Stadtzentrum, und würden das Haus wohl problemlos und schnell losbekommen für einen guten Preis. Oder vorzeitig vererben. Auf jeden Fall schließe ich gar nicht mal aus, dass wir vielleicht mit 50,60,70 Jahren einfach wieder in eine Stadtwohnung ziehen ohne Gartenarbeit, ohne viel Putzen und andere Pflichten wie Schneeräumen. Für die nächsten 20 Jahre ist ein Haus sicher optimal, aber danach kann man ja wieder wechseln bzw. in 30 oder 40 Jahren.
In Amerika ist der Trend zum schnellen Hauswechsel schon lange da und sowas schwappt ja bekanntlich nach spätestens 10 Jahren über. Wir kennen auch Leute, die ziehen von Familienhaus nachdem die Kinder aus dem Haus sind in den neu gebauten Bungalow. Die sind etwa Mitte 50. Und dann vielleicht mit Mitte 70 wieder in die Stadt und den Bungalow verkaufen? Andere Bekannte wollen jetzt mit Ende 50 vom Familienhaus wieder in eine Stadtwohnung, so wie wir es ja auch nicht ausschließen.
Um es jetzt aber zu relativieren: Wer auf dem Land gebaut hat und sein Haus vermutlich nur weit unter Wert losbekommt und wer vielleicht einer Stadtwohnung eh nichts abgewinnen kann, der sollte da vielleicht mehr darauf achten. Unsere Nonchalance diesem Thema gegenüber rührt auch zum großen Teil daraus, dass Bauland wie Familienhäuser hier extrem stark gefragt sind und das bleibt in dieser Region hier auch so.
Ähnliche Themen