ᐅ Ikea Faktum Eckunterschrank 90x90 - Anschlag links oder rechts?
Erstellt am: 09.09.16 07:15
C
carfalHallo,
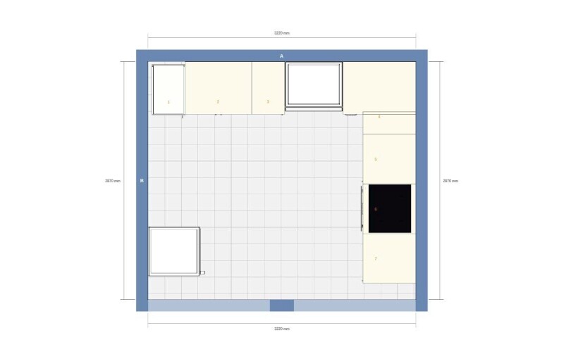
für unsere neue Wohnung erweitern wir unsere alte Küche mit Faktum-schränke, unter anderem mit einem 90x90 Eckunterschrank. Hier ist ein eine grobe (die Reihenfolge Spüle/Geschirrspüler kann sich noch ändern,wegen den Anschlüssen und es gibt 30er/50er Schränke, die ich nicht im Küchenplaner darstellen konnte) Skizze der Küche:

Oben ist der Geschirrspüler und die Spüle, an der rechten Seite ist der Backofen und der Herd. Dazwischen kommt der Eckunterschrank. Jetzt fragen wir uns, ist es praktischer, die Türen rechts in der Zeile mit dem Herd oder links auf der Seite mit der Spüle anzuschlagen? Hier würden mich Erfahrungen von euch interessieren.
Und die nächste Frage, man kann die Türen für beide Anschläge noch nachkaufen. Z.B. für den Linksanschlag 40160176, für den Rechtsanschlag 163695. Bei beiden Steht dabei: „Die Tür kann wahlweise mit der Öffnung nach rechts oder links montiert werden.“
Ist es letztlich egal, welche Türen ich kaufe, montieren lassen Sie sich auf beiden Seiten?
Freundliche Grüße,
Carsten
für unsere neue Wohnung erweitern wir unsere alte Küche mit Faktum-schränke, unter anderem mit einem 90x90 Eckunterschrank. Hier ist ein eine grobe (die Reihenfolge Spüle/Geschirrspüler kann sich noch ändern,wegen den Anschlüssen und es gibt 30er/50er Schränke, die ich nicht im Küchenplaner darstellen konnte) Skizze der Küche:
Oben ist der Geschirrspüler und die Spüle, an der rechten Seite ist der Backofen und der Herd. Dazwischen kommt der Eckunterschrank. Jetzt fragen wir uns, ist es praktischer, die Türen rechts in der Zeile mit dem Herd oder links auf der Seite mit der Spüle anzuschlagen? Hier würden mich Erfahrungen von euch interessieren.
Und die nächste Frage, man kann die Türen für beide Anschläge noch nachkaufen. Z.B. für den Linksanschlag 40160176, für den Rechtsanschlag 163695. Bei beiden Steht dabei: „Die Tür kann wahlweise mit der Öffnung nach rechts oder links montiert werden.“
Ist es letztlich egal, welche Türen ich kaufe, montieren lassen Sie sich auf beiden Seiten?
Freundliche Grüße,
Carsten
I
IKEA-Profi09.09.16 08:41Ob Du die Tür rechts oder links anschlägst ist egal, die Tür ist die Gleiche. Die lassen sich auf beiden Seiten montieren.
Wenn ich jetzt nichts Wesentliches übersehen habe, ist es aus meiner Sicht egal, wie Du sie montierst.
Vielleicht benutzt man den Ofen öfters, dann würde ich sie so anbringen, dass der Anschlag beim Ofen ist. Dann kommst man sich nicht in die Quere, wenn jemand den Ofen benutzt / öffnet.
Wenn ich jetzt nichts Wesentliches übersehen habe, ist es aus meiner Sicht egal, wie Du sie montierst.
Vielleicht benutzt man den Ofen öfters, dann würde ich sie so anbringen, dass der Anschlag beim Ofen ist. Dann kommst man sich nicht in die Quere, wenn jemand den Ofen benutzt / öffnet.
I
IKEA-Experte09.09.16 16:06Hallo, dass es bei Türen mit Griffleiste eine Version für Links- und eine andere für Rechtsanschlag geben muss ist klar. Weshalb es sie auch für die Edelstahlfront gibt weiß ich nicht, aber es wird seinen Grund haben.
Bei einem Linksanschlag kommst du besser von rechts an den Schrank und umgekehrt. Je nachdem, was im Schrank untergebracht und wo gearbeitet wird, ist das eine oder andere praktischer.
Bei einem Linksanschlag kommst du besser von rechts an den Schrank und umgekehrt. Je nachdem, was im Schrank untergebracht und wo gearbeitet wird, ist das eine oder andere praktischer.
So, Frage hat sich geklärt.
Bei der Edelstahlfront gibt es nur oben um die Kante herum Edelstahl. Unten ist da einfach. Jetzt eine dunkelgraue Kunststoffoberfläche wie auf der Rückseite der Front.
Das heißt: Montieren lässt es sich in beide Richtungen. In geschlossenem Zustand wird man auch nichts erkennen. Ist die Türe geöffnet, sieht man eben oben die Kunststoffoberfläche.
Freundliche Grüße,
Carsten
Bei der Edelstahlfront gibt es nur oben um die Kante herum Edelstahl. Unten ist da einfach. Jetzt eine dunkelgraue Kunststoffoberfläche wie auf der Rückseite der Front.
Das heißt: Montieren lässt es sich in beide Richtungen. In geschlossenem Zustand wird man auch nichts erkennen. Ist die Türe geöffnet, sieht man eben oben die Kunststoffoberfläche.
Freundliche Grüße,
Carsten
Ähnliche Themen