ᐅ Haus passend zum Grundstück? Größe vom Grundstück ausreichend?
Erstellt am: 15.06.19 17:38
M
Mecky815Mecky815 schrieb:
Allerdings sind wir uns nicht sicher, ob das Haus nicht zu groß für das Grundstück ist.Zu groß jetzt nicht. Ich würde da mal etwas mit Schablonen spielen und Carports schieben. @danixf hat da ja einen guten Vorschlag gemacht. Darf man einen Carport denn in die vordere 5-Meter-Linie bauen?Mecky815 schrieb:
Geschossigkeit - 2 geschossigAber man darf auch eingeschossig bauen?Mecky815 schrieb:
1. Es liegt bereits ein konkretes Angebot für das Haus vor. „Schlüsselfertig „ bekommen wir es für 254000€Was bedeutet in diesem Fall schlüsselfertig? Wie viel Bodenbeläge und Malerarbeiten sind dabei?TM zb baut so günstig. Oder Scanhaus Marlow Marlow? Town & Country? Heinz von Heiden? Funktioniert. Aber dann kommen eben noch einiges an Zusatzkosten dazu, die bei teureren BUs schon inklusive sind.
haydee schrieb:
Mit Nichtmal 20000 für Baunebenkosten, alle bauseits Kosten, Bodenbeläge und Malerarbeiten, Außenanlage wird es eng. Mit dem Grundpreis ist auch nur schlichte und Mindestausstattung dabei.Ich les das gar nicht so.Baunebenkosten würden ja mit ca.25-30000 dazukommen.
Allerdings sehe ich die erwähnten 20000 als ganz schön eng, da Elektrik noch so einiges frisst, wie auch die Bodenbeläge, Möblierung von Bad und Küche, etc. Ich geh mal davon aus, dass das alles in diesen 20000 kalkuliert ist? Außenanlagen wie Terrasse und Auffahrt ist extra kalkuliert?
Wird das Friesenhaus eigentlich verputzt oder verklinkert?
Drehen würde ich das Haus nicht, der Giebel sollte schon vorn sein, finde ich.
Den Grundriss für oben versteh ich nicht. Insgesamt ist er nicht meins. Ich würd ihn wohl auch spiegeln. Oder auch nicht... hm
Edit: hat sich mit Mecki überschnitten, die Antwort.
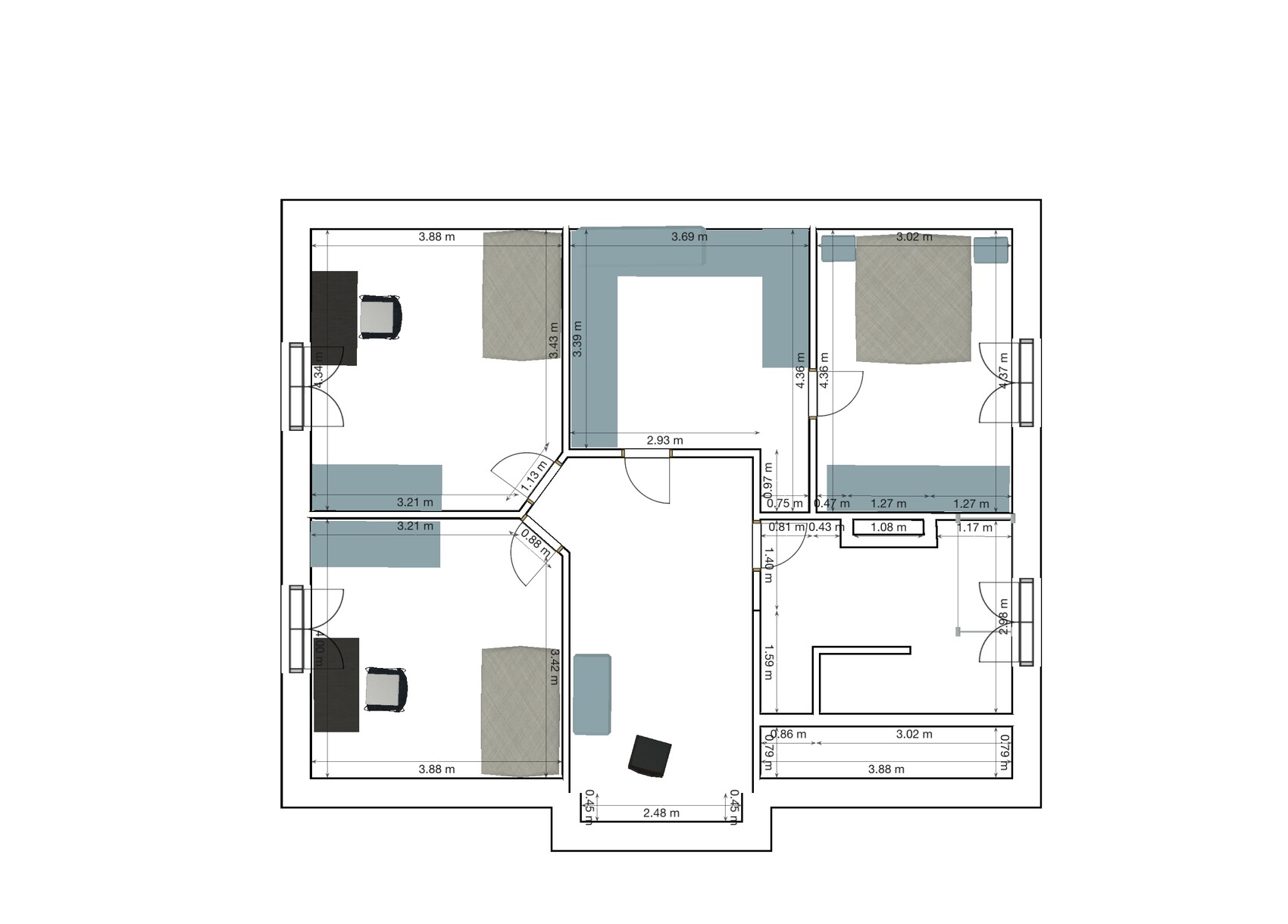
So nun haben wir die Möbel in die Räume eingeplant. Leider übernimmt das Tool die Namen der Räume nicht mit in die Zeichnung. Ich hoffe aber das man sich vorstellen kann für was welcher Raum ist.
UG:

OG:

In den Baunebenkosten sind keine Extras fürs Haus drin, nur sowas wie bautrocknung, Bauwasser/Strom und die Hausanschlüsse.
Alle anderen Extras ein in dem Hauspreis von 300000€ mit drin, unter anderem sowas wie Strom, Bodenbeläge, andere Türen und Fenster u.s.w.
Das Friesenhaus wird verklinkert.
Der mittlere Raum im Obergeschoss soll die Ankleide werden. Die ist deshalb so groß, um noch ein wenig extra Staudamm zu haben für Sachen, die sonst im Obergeschoss kein Platz finden. Rechts daneben ist dann das Schlafzimmer.
UG:
OG:
ypg schrieb:
Baunebenkosten würden ja mit ca.25-30000 dazukommen.
Allerdings sehe ich die erwähnten 20000 als ganz schön eng, da Elektrik noch so einiges frisst, wie auch die Bodenbeläge, Möblierung von Bad und Küche, etc. Ich geh mal davon aus, dass das alles in diesen 20000 kalkuliert ist? Außenanlagen wie Terrasse und Auffahrt ist extra kalkuliert?
Wird das Friesenhaus eigentlich verputzt oder verklinkert?
Drehen würde ich das Haus nicht, der Giebel sollte schon vorn sein, finde ich.
In den Baunebenkosten sind keine Extras fürs Haus drin, nur sowas wie bautrocknung, Bauwasser/Strom und die Hausanschlüsse.
Alle anderen Extras ein in dem Hauspreis von 300000€ mit drin, unter anderem sowas wie Strom, Bodenbeläge, andere Türen und Fenster u.s.w.
Das Friesenhaus wird verklinkert.
Der mittlere Raum im Obergeschoss soll die Ankleide werden. Die ist deshalb so groß, um noch ein wenig extra Staudamm zu haben für Sachen, die sonst im Obergeschoss kein Platz finden. Rechts daneben ist dann das Schlafzimmer.
2m-Linie Dach fehlt, so kann man das Bad nicht beurteilen. Dusche könnte noch im Schrägbereich sein.
Was sollen denn 302 cm Schlafzimmerbreite? Und dann dieses Loch in der Ankleide?
Küche .. Halbinsel - Wand, Durchgang zu schmal
Alle Türen Max. 80 cm Baubreite, Durchgangsbreite dann ca. 76 cm.
Was sollen denn 302 cm Schlafzimmerbreite? Und dann dieses Loch in der Ankleide?
Küche .. Halbinsel - Wand, Durchgang zu schmal
Alle Türen Max. 80 cm Baubreite, Durchgangsbreite dann ca. 76 cm.
Ähnliche Themen