Guten Morgen allesamt,
wir bauen an einem schönen Hanggrundstück unweit der Innenstadt ein Einfamilienhaus mit ca. 200qm Wohnfläche. Wir hatten erste Entwürfe bereits vor ein paar Monaten eingestellt. Weil sich seitdem viel geändert hat, stellen wir den derzeitigen Planungsstand noch einmal neu ein und freuen uns auf die Diskussionen:
Bebauungsplan/Einschränkungen: Bebauungsplan
Größe des Grundstücks: 500qm
Hang: ja, ca 6 m Gefälle über 28 m Grundstückslänge (Südosthang)
Grundflächenzahl 0,2
Geschossflächenzahl 0,3 (Abweichungen bei Einhaltung der Grundflächenzahl werden voraussichtlich genehmigt)
Baufenster, Baulinie und -grenze: normale Abstandsflächen
Randbebauung: Garage wird in Grenze gebaut werden. Dies ist zulässig.
Anzahl Stellplatz: 1 + Garagenzufahrt
Geschossigkeit: I+IS (das bedeutet 1 Vollgeschoss + Sockelgeschoss --> Keller am Hang
Dachform: keine Vorgabe
Stilrichtung: keine Vorgabe
Ausrichtung: Dachfirst muss in Ost-West Richtung verlaufen
Maximale Höhen/Begrenzungen: Traufe Max. 3,60 m über Straßenniveau
weitere Vorgaben
Anforderungen der Bauherren
Stilrichtung, Dachform, Gebäudetyp: Satteldach 48° Neigung
Keller, Geschosse: Kellergeschoss - am Südhang als vorwertiger Wohnraum mit Ausgang zur Terrasse nutzbar
Anzahl der Personen, Alter: Eltern knapp über 30, Kinder 0 und 2 Jahre alt
Raumbedarf im EG, OG: EG: Hauptwohnbereich und Küche; OG: 3 Schlafzimmer + Bad; UG: Sommerwohnzimmer/Spielzimmer mit Gartenzugang, Gästezimmer
Büro: Familiennutzung oder Homeoffice?: evtl. Büro als Studio unterm Dach (nicht entscheidendes Kriterium.
Schlafgäste pro Jahr: längerfristige Besuche sind absehbar
offene oder geschlossene Architektur: offene
konservativ oder moderne Bauweise: klassische Form aber große und Raumhöhe Fenster.
offene Küche, Kochinsel: offene Küche mit kalter Insel mit Sitzmöglichkeit
Anzahl Essplätze: 6
Kamin: wahrscheinlich ja, allerdings als Außenkamin
Musik/Stereowand: nein
Balkon, Dachterrasse: nein
Garage, Carport: Fertiggarage mit gemauerter Unterkellerung
Nutzgarten, Treibhaus: nein
weitere Wünsche/Besonderheiten/Tagesablauf, gern auch Begründungen, warum dieses oder das nicht sein soll:
ebenerdiger Terrassenzugang vom Souterrain aus
Photovoltaik
Hausentwurf
Von wem stammt die Planung:
-Planer eines Bauunternehmens (Bauingenieur) / Bauherren-Eigenplanung
Was gefällt besonders? Warum? Großes Souterrainzimmer mit Terrassenzugang. Komfortable Übernachtungsmöglichkeit für Gäste.
Was gefällt nicht? Warum? Die Treppenform finden wir sehr funktional, sie optimiert die Platzausnutzung im OG und generell zur Südseite des Hauses hin. Optisch hätten wir allerdings eine gerade Treppe bevorzugt.
Die geltende Vollgeschossdefinition nach Bayerischer Bauordnung von 1969 verbietet hier z.B. auch eine Drempelerhöhung oder eine zweite Gaube im OG.
Preisschätzung lt Architekt/Planer: €360.000
Persönliches Preislimit fürs Haus, inkl Ausstattung: 400.000
favorisierte Heiztechnik: Luft-Wasser-Wärmepumpe
Wenn Ihr verzichten müsst, auf welche Details/Ausbauten
-könnt Ihr verzichten: Photovoltaik
-könnt Ihr nicht verzichten: Keller in Wohnraum-Qualität
Warum ist der Entwurf so geworden, wie er jetzt ist? ZB
Ausgehend von den Gegebenheiten des Grundstücks und des Bebauungsplan haben wir den ersten Entwurf nach und nach vollständig umgestaltet, dabei Inspirationen hier aus dem Forum und aus Neubaugebieten (offline) / Pinterest und co (online) eingeplant.
Aktuell beschäftigen uns u.a. noch folgende Fragen:
- Bodentiefe Fenster auf Südseite einflügelig oder zweiflügelig - ursprünglich waren zweiflügelige mit 150cm Breite geplant. Uns gefällt die Optik ohne Unterteilung besser, dann wären aber wahrscheinlich Max. 120cm möglich.
- Festverglasung als großes Lichtband an Südwestecke des UG oder doch lieber zwei Fenster, die in Westansicht auf einer Linie mit den darüberliegenden Fenstern liegen
- Fenster im kleinen Kellerraum im Nordwesten zugunsten der Fassadenoptik weglassen?
- 2 zusätzliche Dachfenster direkt neben der Gaube im OG, um in Kinderzimmern für mehr Licht zu sorgen?
- Bodenbeläge EG und UG: Im OG wird es Parkett werden, für die beiden anderen Geschosse schwanken wir zwischen Parkett und durchgehendem Granitfußboden oder Sichtestrich/Spachtelboden
Wir sind gespannt auf die Kommentare!





wir bauen an einem schönen Hanggrundstück unweit der Innenstadt ein Einfamilienhaus mit ca. 200qm Wohnfläche. Wir hatten erste Entwürfe bereits vor ein paar Monaten eingestellt. Weil sich seitdem viel geändert hat, stellen wir den derzeitigen Planungsstand noch einmal neu ein und freuen uns auf die Diskussionen:
Bebauungsplan/Einschränkungen: Bebauungsplan
Größe des Grundstücks: 500qm
Hang: ja, ca 6 m Gefälle über 28 m Grundstückslänge (Südosthang)
Grundflächenzahl 0,2
Geschossflächenzahl 0,3 (Abweichungen bei Einhaltung der Grundflächenzahl werden voraussichtlich genehmigt)
Baufenster, Baulinie und -grenze: normale Abstandsflächen
Randbebauung: Garage wird in Grenze gebaut werden. Dies ist zulässig.
Anzahl Stellplatz: 1 + Garagenzufahrt
Geschossigkeit: I+IS (das bedeutet 1 Vollgeschoss + Sockelgeschoss --> Keller am Hang
Dachform: keine Vorgabe
Stilrichtung: keine Vorgabe
Ausrichtung: Dachfirst muss in Ost-West Richtung verlaufen
Maximale Höhen/Begrenzungen: Traufe Max. 3,60 m über Straßenniveau
weitere Vorgaben
Anforderungen der Bauherren
Stilrichtung, Dachform, Gebäudetyp: Satteldach 48° Neigung
Keller, Geschosse: Kellergeschoss - am Südhang als vorwertiger Wohnraum mit Ausgang zur Terrasse nutzbar
Anzahl der Personen, Alter: Eltern knapp über 30, Kinder 0 und 2 Jahre alt
Raumbedarf im EG, OG: EG: Hauptwohnbereich und Küche; OG: 3 Schlafzimmer + Bad; UG: Sommerwohnzimmer/Spielzimmer mit Gartenzugang, Gästezimmer
Büro: Familiennutzung oder Homeoffice?: evtl. Büro als Studio unterm Dach (nicht entscheidendes Kriterium.
Schlafgäste pro Jahr: längerfristige Besuche sind absehbar
offene oder geschlossene Architektur: offene
konservativ oder moderne Bauweise: klassische Form aber große und Raumhöhe Fenster.
offene Küche, Kochinsel: offene Küche mit kalter Insel mit Sitzmöglichkeit
Anzahl Essplätze: 6
Kamin: wahrscheinlich ja, allerdings als Außenkamin
Musik/Stereowand: nein
Balkon, Dachterrasse: nein
Garage, Carport: Fertiggarage mit gemauerter Unterkellerung
Nutzgarten, Treibhaus: nein
weitere Wünsche/Besonderheiten/Tagesablauf, gern auch Begründungen, warum dieses oder das nicht sein soll:
ebenerdiger Terrassenzugang vom Souterrain aus
Photovoltaik
Hausentwurf
Von wem stammt die Planung:
-Planer eines Bauunternehmens (Bauingenieur) / Bauherren-Eigenplanung
Was gefällt besonders? Warum? Großes Souterrainzimmer mit Terrassenzugang. Komfortable Übernachtungsmöglichkeit für Gäste.
Was gefällt nicht? Warum? Die Treppenform finden wir sehr funktional, sie optimiert die Platzausnutzung im OG und generell zur Südseite des Hauses hin. Optisch hätten wir allerdings eine gerade Treppe bevorzugt.
Die geltende Vollgeschossdefinition nach Bayerischer Bauordnung von 1969 verbietet hier z.B. auch eine Drempelerhöhung oder eine zweite Gaube im OG.
Preisschätzung lt Architekt/Planer: €360.000
Persönliches Preislimit fürs Haus, inkl Ausstattung: 400.000
favorisierte Heiztechnik: Luft-Wasser-Wärmepumpe
Wenn Ihr verzichten müsst, auf welche Details/Ausbauten
-könnt Ihr verzichten: Photovoltaik
-könnt Ihr nicht verzichten: Keller in Wohnraum-Qualität
Warum ist der Entwurf so geworden, wie er jetzt ist? ZB
Ausgehend von den Gegebenheiten des Grundstücks und des Bebauungsplan haben wir den ersten Entwurf nach und nach vollständig umgestaltet, dabei Inspirationen hier aus dem Forum und aus Neubaugebieten (offline) / Pinterest und co (online) eingeplant.
Aktuell beschäftigen uns u.a. noch folgende Fragen:
- Bodentiefe Fenster auf Südseite einflügelig oder zweiflügelig - ursprünglich waren zweiflügelige mit 150cm Breite geplant. Uns gefällt die Optik ohne Unterteilung besser, dann wären aber wahrscheinlich Max. 120cm möglich.
- Festverglasung als großes Lichtband an Südwestecke des UG oder doch lieber zwei Fenster, die in Westansicht auf einer Linie mit den darüberliegenden Fenstern liegen
- Fenster im kleinen Kellerraum im Nordwesten zugunsten der Fassadenoptik weglassen?
- 2 zusätzliche Dachfenster direkt neben der Gaube im OG, um in Kinderzimmern für mehr Licht zu sorgen?
- Bodenbeläge EG und UG: Im OG wird es Parkett werden, für die beiden anderen Geschosse schwanken wir zwischen Parkett und durchgehendem Granitfußboden oder Sichtestrich/Spachtelboden
Wir sind gespannt auf die Kommentare!
Kaspatoo schrieb:
ein Tipp meiner Frau (ernstgemeint und tatsächlich selbst erprobt): spielt mal eine Runde SIMS.
PS: rosebud;!;!;!;!;!;!;!;!;!;!;!;!;!;!;!.....[emoji23]
Wozu soviel Money?
Raumgestaltung wie die Amis funktioniert auch ohne cheat [emoji2]
Hallo alle,
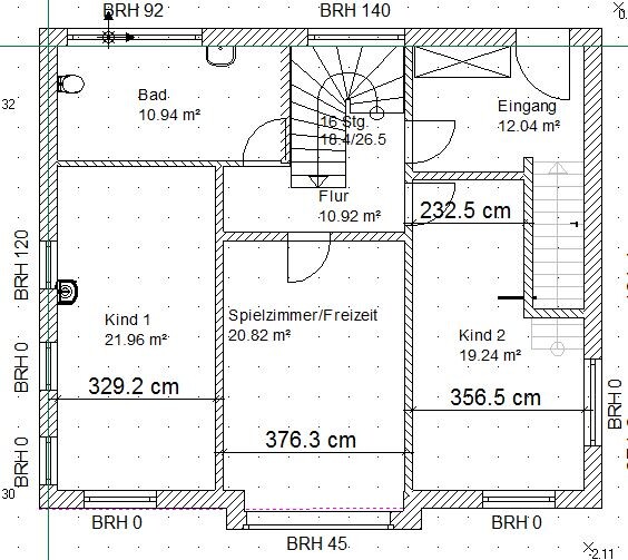
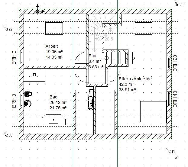
wir sind noch einmal am überlegen bezüglich der Raumaufteilung - hier gab es ja Kritik und viele Verbesserungsvorschläge zu unseren bisherigen Plänen. Viele hatten empfohlen, den Wohnbereich wegen Hanglage ins UG zu verlegen. So hätten wir einen direkten Zugang zu Terrasse/Garten aus dem Wohnzimmer und würden die Schlafräume in EG und DG verteilen.
WIr haben mal einen Entwurf gemacht, inspiriert von Grundrissen und Treppenformen, die wir teils live und teils im Internet gesehen haben. Bezüglich der Treppenform ins DG ist wichtig zu wissen: Wir dürfen nur ca. 50cm Kniestock bauen und das DG darf kein Vollgeschoss werden - hier sind wir mit der Gaube schon absolut am Limit!
Wir sind dankbar für Kommentare und Verbesserungsvorschläge - sowohl zur grundsätzlichen Aufteilung als auch zu Details!



wir sind noch einmal am überlegen bezüglich der Raumaufteilung - hier gab es ja Kritik und viele Verbesserungsvorschläge zu unseren bisherigen Plänen. Viele hatten empfohlen, den Wohnbereich wegen Hanglage ins UG zu verlegen. So hätten wir einen direkten Zugang zu Terrasse/Garten aus dem Wohnzimmer und würden die Schlafräume in EG und DG verteilen.
WIr haben mal einen Entwurf gemacht, inspiriert von Grundrissen und Treppenformen, die wir teils live und teils im Internet gesehen haben. Bezüglich der Treppenform ins DG ist wichtig zu wissen: Wir dürfen nur ca. 50cm Kniestock bauen und das DG darf kein Vollgeschoss werden - hier sind wir mit der Gaube schon absolut am Limit!
Wir sind dankbar für Kommentare und Verbesserungsvorschläge - sowohl zur grundsätzlichen Aufteilung als auch zu Details!
SupaCriz schrieb:
wir sind noch einmal am überlegen bezüglich der RaumaufteilungDann seid doch auch mal Außenmaße am dranschreiben zumindest sieht das ja mal ein bißchen anders aus als bisher.https://www.instagram.com/11antgmxde/
https://www.linkedin.com/company/bauen-jetzt/
Auch ich kann mir nicht vorstellen, dass 360k€ reichen werden. Meine Vermutung ist, dass Ihr über euer Limit von 400k€ kommt bei entsprechender Ausstattung.
Habe ich das richtig gelesen, dass auch das Carport unterkellert werden soll? 200m² in Wohnraumqualität wären bei der Größe und durchschnittlich 2000€/m² eher 400k€ aufwärts oder ein "kleineres" Haus mit 180m².
Habe ich das richtig gelesen, dass auch das Carport unterkellert werden soll? 200m² in Wohnraumqualität wären bei der Größe und durchschnittlich 2000€/m² eher 400k€ aufwärts oder ein "kleineres" Haus mit 180m².