Hallo,
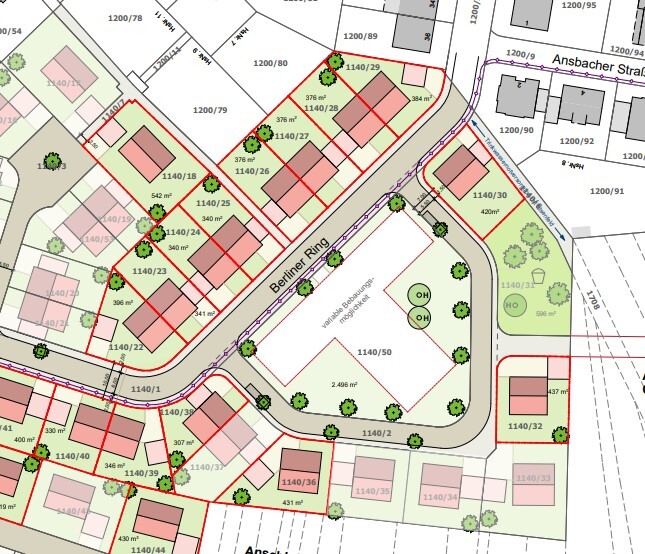
ich habe eine Frage zum Grundstückskauf. Wir können in einem Neubaugebiet ein Grundstück für eine Doppelhaushälfte erwerben.
Aktuell liegt die Auswahl zwischen den Flurnummern 23, 24, 25 und 29.
Grundsätzlich würden wir die 29 bevorzugen, da dieses Grundstück am größten ist, allerdings sind wir unsicher, ob 23-25 nicht durch den rechteckigen Schnitt besser bebaubar / nutzbar sind.
Danke für Tipps und Empfehlungen.



ich habe eine Frage zum Grundstückskauf. Wir können in einem Neubaugebiet ein Grundstück für eine Doppelhaushälfte erwerben.
Aktuell liegt die Auswahl zwischen den Flurnummern 23, 24, 25 und 29.
Grundsätzlich würden wir die 29 bevorzugen, da dieses Grundstück am größten ist, allerdings sind wir unsicher, ob 23-25 nicht durch den rechteckigen Schnitt besser bebaubar / nutzbar sind.
Danke für Tipps und Empfehlungen.
W
wp.seeker19.08.23 17:39Nr 29
+ größer
+ Nachbarn im Nordosten etwas weiter weg
+ Freier Durchgang in den Garten zwischen Haus und Garage möglich
- teurer
- kleinerer Garten-/Terrassenbereich
- mehr Zaun zu bauen, mehr Gehweg zu räumen?
23-25
+ mehr Garten
+ Für Nr. 24: vielleicht ein Giebelfenster auf der Südostseite möglich und mehr Licht im Haus?
- was wird gegenüber geplant und gebaut?
Falls das ein höheres Gebäude wird, habt ihr weniger Sonne
Das sind auf den ersten Blick Punkte, die mir ins Auge fallen. Gewichten müsst ihr diese.
+ größer
+ Nachbarn im Nordosten etwas weiter weg
+ Freier Durchgang in den Garten zwischen Haus und Garage möglich
- teurer
- kleinerer Garten-/Terrassenbereich
- mehr Zaun zu bauen, mehr Gehweg zu räumen?
23-25
+ mehr Garten
+ Für Nr. 24: vielleicht ein Giebelfenster auf der Südostseite möglich und mehr Licht im Haus?
- was wird gegenüber geplant und gebaut?
Falls das ein höheres Gebäude wird, habt ihr weniger Sonne
Das sind auf den ersten Blick Punkte, die mir ins Auge fallen. Gewichten müsst ihr diese.
W
wp.seeker19.08.23 17:51Korrektur für 24: Giebelfenster wäre Südwest.
Bringt mehr Helligkeit als nordost bei 23 und 25
Bringt mehr Helligkeit als nordost bei 23 und 25
M
motorradsilke19.08.23 18:22Ich werfe mal 39 und 40 in den Raum. Da kannst du den Garten schön nach Süden ausrichten und hast den ganzen Tag Sonne. Keine Strasse vor der Terrasse wie bei den von dir genannten Grundstücken.
Wie ich Dir bereits im grünen Forum (dort konnte ich Dir auch meinen externen Beitrag verlinken) sagte, wirst Du hier mit den Stichworten Doppelhaus / Mitkellerer / Ohnekellerer / Nahtstelle / Hausprofil und vor allem Goalkeeperthread zu den Erläuterungen finden, wo die Stolperfallen für die Erbauer halber Häuser liegen.
https://www.instagram.com/11antgmxde/
https://www.linkedin.com/company/bauen-jetzt/
https://www.instagram.com/11antgmxde/
https://www.linkedin.com/company/bauen-jetzt/
motorradsilke schrieb:
Ich werfe mal 39 und 40 in den Raum. Da kannst du den Garten schön nach Süden ausrichten und hast den ganzen Tag Sonne. Keine Strasse vor der Terrasse wie bei den von dir genannten Grundstücken.Hallo, es sind leider nur noch die oben genannten Flurstücke frei.
Ähnliche Themen