Hausbau - Ratgeber
Bauherrenhilfe
- Bauherrenhilfe vor Vertragsabschluss
-- Warum einen unabhängigen Baubetreuer?
-- Vertragsgrundlagen
-- Bausumme
-- Zahlungsplan zur Kostenkontrolle
-- Pflichten des Bauherren vor Vertragsabschluss
-- Unterlagen beim Hausbau vor Vertragsabschluss
- Bauherrenhilfe nach Vertragsabschluss
-- Bauantrag bei Behörden
-- Bau-Genehmigungsverfahren bei Baubehörden
-- Bauspezifische Versicherungen
-- Bauzeitenplan
-- Baubeginn - die Letzten Pflichten der Bauherrschaft
- Bauherrenhilfe während der Bauzeit
- Gewährleistungsansprüche
- Bauabnahme
Baufinanzierung
- Baufinanzierung - Allgemeine Fragen
- Kreditarten
- Kredit-Konditionen
- Bausparen
- Staatliche Förderungen
- Verkehrswert
- Haushaltsrechnung und Bonität
Hausbau Planung
- Haustypen
- Hausbau Vorbereitungsarbeiten
- Das Baugrundstück
- Baugrund beim Hausbau
- Baurecht
- Gebäudeschutz
- Erdarbeiten und Wasserhaltung
- Stützmauern
- Einfriedung
- Untergeschoss
- Kanalisation
- Tragende Elemente
- Nichttragende Innenwände
- Fundation / Fundament
- Deckenkonstruktionen
- Dächer
- Kaminanlagen
- Treppen Rampen Leitern
- Dachbeläge und Spengler
- Fenster
- Sonnen und Wetterschutz
- Aussenputze
- Einbauten, Küchen, Türen
- Bodenbeläge und Unterlagsböden
- Parkett
- Gips, Wand, Decke
Haustechnik und Energie
- Heiztechnik
- Lüftung und Klimatechnik
- Sanitärtechnik
- Elektrotechnik
- Erneuerbare Energie
Whirlpools / Jacuzzi
Hausbau Magazin
- Baufinanzierung trotz Krise?
- Das Blockhaus
- Moderne Dämmstoffe im Vergleich
- Erker Vor- und Nachteile
- Glasflächen beim Hausbau
- Günstig ein Haus Bauen
- Mediterraner Hausbaustil
- Mehrgenerationenhaus
- Moderne Architektur
- Gartengestaltung leicht gemacht
- Traditioneller Ziegelbau
- Villa als höchster Traum
- Im Eigenheim Ruhestand geniessen
- Altbau sanieren
- Kauf einer Holzgarage
- Immobilienmakler
- Arbeitshandschuhe für den Winter
- Zuhause verschönern
- Outdoor-Plissees
- Schlafzimmer planen
- Terrassenüberdachung
- Wohngebäudeversicherung
- Zaunarten und Eigenschaften
- Hauseingang gestalten
- Der perfekte Grundriss
- Sparsamer heizen im Altbau
- Einfamilienhaus smart finanzieren
- Planung einer PV-Anlage
- Neues Haus
- Immobilienfinanzierung
- Installation einer Photovoltaikanlage
- Asbest erkennen und entfernen
- Gartenpflege im Frühling – worauf achten
- Sauna im Fokus - Wellness zuhause
- Erfolgreich vermieten
- Die perfekte Winterbekleidung
- Das Niedrigenergiehaus
- Der April und seine Stürme
- Architektonische Vielfalt
- Ökologisch und nachhaltig bauen
- Das perfekte Schlafzimmer
- Nachhaltige Energieversorgung
- Zukunftsorientiert bauen
- Nachhaltigkeit beim Hausbau
- Tiny Houses
- Wärmepumpen als nachhaltige Heizvariante
- Maßgeschneiderten Kleiderschrank
- Der richtige Baukredit
- Ratgeber für erfolgreichen Hausbau
- Haus als Altersvorsorge
Do-it-yourself Anleitungen
- Verlegeanleitung für Bodenbeläge und Parkett
- Bodenbeläge und Parkett reinigen und pflegen
- Malerarbeiten am Haus
- Garten Tipps
- Umzug und Reinigung

ᐅ Grundrissvorschläge - Was geht was fällt durch?

Erstellt am: 11.05.17 20:04
E
Ev-Marie86
M
MIA_SAN_MIA__
12.05.17 10:58
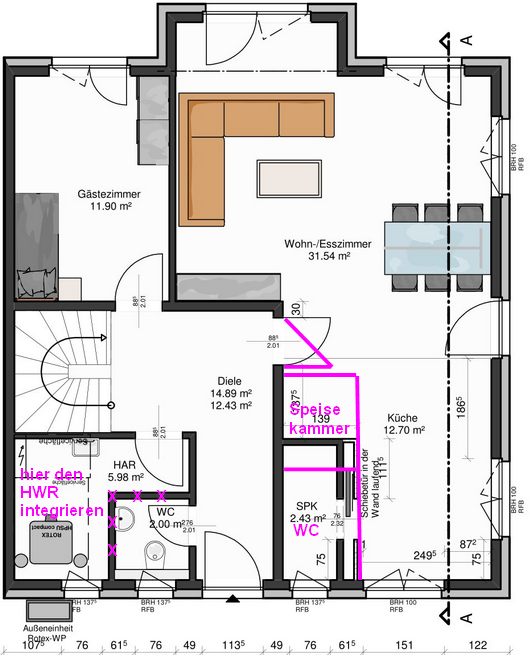
Hast du vielleicht ne Außenansicht und ne Ansicht auf dem Grundstück? Würde das mit dem Erker gerne verstehen
11ant12.05.17 11:02
MIA_SAN_MIA__ schrieb:
Ich würde Küche und Gästezimmer drehen und den Esstisch am Erker platzieren
MIA_SAN_MIA__ schrieb:
Ich finde die Position der Couch trotzdem nicht glücklich. Ich würde da den Esstisch hinstellen, wenn ich schon den Erker habe.
Mir wäre das ja auch sympathisch, aber das ist Geschmackssache, also subjektiv. Objektiv ökonomisch hingegen ist, wenn die Küche mit allem Rohregedöns an der Seite von Anschlussraum, WC und Bad ist.
Ev-Marie86 schrieb:
Waschmaschine sollte sowieso nach oben... und das mit der spiebetür se ich genauso...
Meine Oma selig hätte jetzt gesagt: "Du bist verrückt, mein Kind". Platz zum Verschenken sehe ich in diesem Haus nicht, schon gar nicht die Kaiserloge im Giebel an die Waschmaschine. An der benachbarten Wand wird das Kind später sein Bett stehen haben, und die Ankleide an dieser Stelle kann man dann wohl brauchen.
Ev-Marie86 schrieb:
Das ist jetzt die Frage... ob man eine Speis gut in die Küche integrieren kann... ich kann mir das nicht vorstellen... und wie gesagt diese Option mit ich packe alles in den Hauswirtschaftsraum... finde ich schrecklich... ich packe keine Lebensmittel zur Heizung... no way
"Integrieren" meint hier wohl "durch einen Küchenschrank ersetzen" ? - nein, die (separate) Speisekammer an der Nordseite ist genau richtig. Ich bleibe bei meinem alten Vorschlag

Grundriss eines Hauses: Wohn-/Esszimmer, Küche mit Speisekammer, Gästezimmer, Diele, WC.

mit der Abweichung, darin die Positionen von Speisekammer und WC zu tauschen, also die Speisekammer direkt an die Außenwand zu tun.
RobsonMKK schrieb:
Du weißt schon das bei Fußbodenheizung trotzdem überall warm wird?
In Räumen wo keine ist, wird sie auch nicht warm.
ypg schrieb:
Waschtisch und Toilette tauschen -> Toilette unters Dachfenster, Wandstummel weg
Unterschreibe ich, mit Ausnahme von "Toilette unters Dachfenster" - außer es ist als Sitzpinkelargument ausdrücklich gewünscht

Ich würde auch die Wanne gerne da wegdrehen, so daß man gerade daraus aufstehen kann (die Kopfhöhe in Wannenmitte dürfte da etwa bei Einssechzig liegen).
https://www.instagram.com/11antgmxde/
https://www.linkedin.com/company/bauen-jetzt/
J
j.bautsch
12.05.17 12:39
danke 11ant, so meinte ich das mit dem integrieren. nicht Wände schieben sondern eine vernünftige stauraumplanung machen und so viele schränke planen das alles unterkommt auch getränke Kisten und Geräte. denn dann gilt auch hier: Tür zu und fertig
E
Ev-Marie86
12.05.17 12:54
Hausansicht...

Moderne weiße zweistöckige Villa mit dunklem Dach, großen Fensterfronten und Terrasse im Garten.


Weißes Einfamilienhaus mit Holzterrasse, Gartenmöbeln und Sonnenschirm
11ant12.05.17 13:02
In diese virtuellen Fototapeten "eingepaßt" sehen die Häuser m.E. irgendwie immer wie Teletubbies aus
https://www.instagram.com/11antgmxde/
https://www.linkedin.com/company/bauen-jetzt/
E
Ev-Marie86
12.05.17 13:03
Geschmackssache... mir gefällts...
speisekammer