ᐅ Grundrissplanung Stadtvilla Doppelgarage | Keller | KFW40+ | 205m²
Erstellt am: 23.11.20 09:29
B
buffae0424Würfel* schrieb:
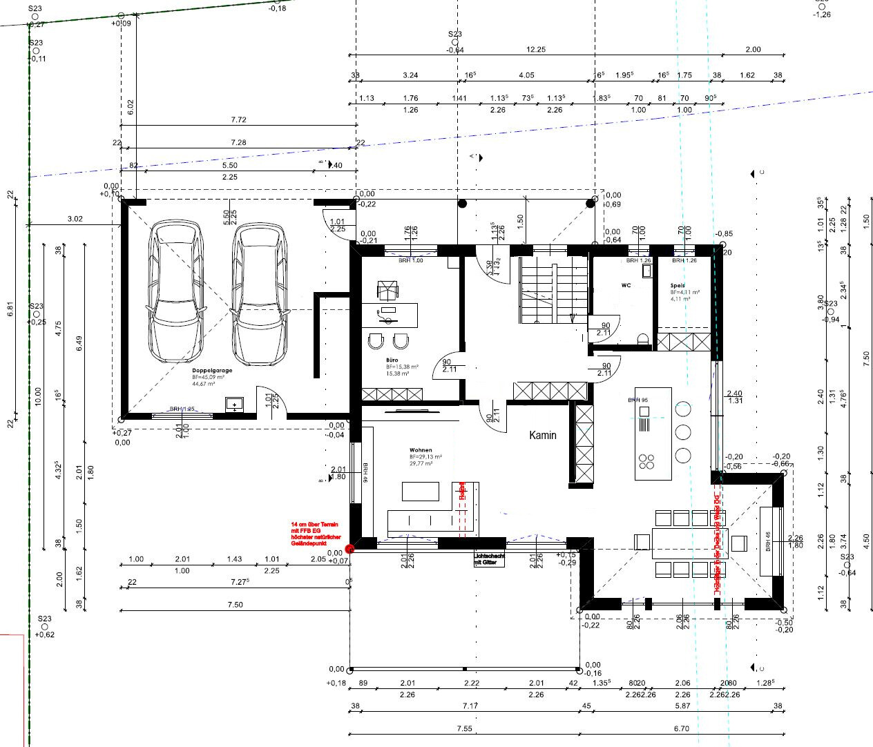
Hier eine Idee zur Aufteilung des EGs. Keine Podesttreppe mehr, dafür größeres Gäste-WC, wo auch eine Dusche reinpasst. Küche großzügiger mit bodentiefen Fenstern Richtung schöner Aussicht, Wohnzimmer ohne Engstelle, Platz für große Garderobe. Oben funktionierts dann auch, kommt der Piano-Flur eben nach planlinks.

Um welten besser als der ursprüngliche Entwurf. Klasse Arbeit @Würfel*pagoni2020 schrieb:
Hm.....der Keller wird wohl sehr teuer wie ich lese; dafür bekommt man keine schöne Einliegerwohnung hin bzw. schöne Räume.......dann würde ich mir tatsächlich überlegen, ob ich den Keller in dieser Form zwingend brauche und ich mir die nötigen Räume nicht anderweitig und schön schaffe.Das finde ich wirklich eine grundsätzliche Überlegung wert, die ewig alte Diskussion über Keller versus ausgebautem Dach.Unser eigener Stand, da wir von Grundriss/Baugröße fast identisch planen, ist:
1. eigentlich favorisieren wir ein ausgebautes (Sattel-)Dach gegenüber Keller, weil man mit Kniestock qualitativ hochwertige Räume bekommt.
2. Möglichkeit: etwas größer von der Grundfläche her bauen, dafür ohne Keller, kostenneutral. Bietet vielleicht mehr Qualität. (Bei uns keine Option wg kleinem Grundstück, Grundflächenzahl ausgereizt, bei Euch schon möglich)
3. Möglich.: vor einigen Wochen haben wir einen sehr modernen Neubau besichtigt, 200qm, mit Keller, aber ein WOW-Keller: 2 Räume, taghell durch große Abgrabungen, 26 und 30 qm (!), ein Traum, definitiv die beiden schönsten Räume im ganzen Haus. Große Walk-in Dusche im Keller. Wirklich ein Traum, ich würde dort unten sofort wohnen.
WIR können wg unseres Grundstücks nur auf die 1. Möglichkeit gehen, aber IHR habt doch alle drei Optionen. Die Zusatzkosten von einem Dunkel-Sinnlos-Keller zu einem Traum-Kinder-Fitness-Elternbereich sind nicht so groß.
Ihr könntet eines von dreien für Euch „einbauen“...3.?
UJS-Nord schrieb:
Das finde ich wirklich eine grundsätzliche Überlegung wert, die ewig alte Diskussion über Keller versus ausgebautem Dach.Diese Frage finde ich nur bei Hang-Geschosszahl-Dilemmata von Belang - also, ob´s edler im Gemüt, I+D oder I+K zu bauen ...https://www.instagram.com/11antgmxde/
https://www.linkedin.com/company/bauen-jetzt/
Ähnliche Themen