Hallo zusammen.
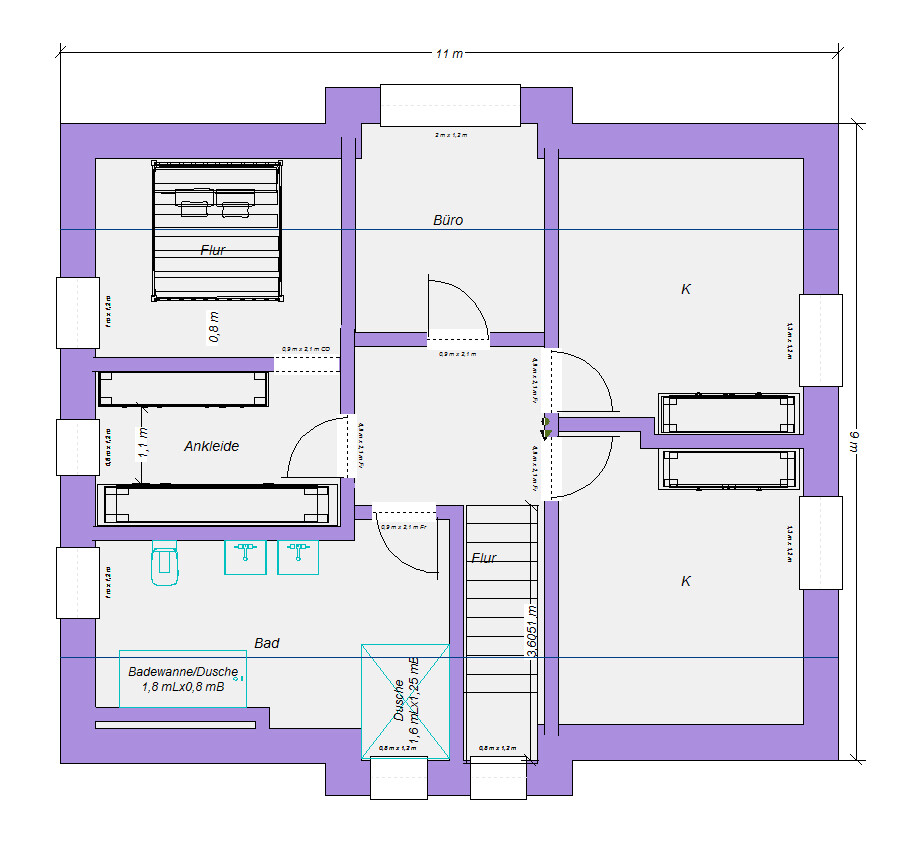
Meine Freundin und ich haben unseren Grundriss selbst geplant und nun anhängende Zeichnung bekommen.
Die Grundmasse sind mit 11x9 angedacht. Die aktuelle Zeichnung hat leider 11x9,5. Eine Änderung haben wir bereits angefordert.
Wir sind mit dem Grundriss für das OG jedoch noch nicht ganz zufrieden:
- Bad ist zu groß
- Linker oberer Raum ist nicht optimal geschnitten
Durch die Verkleinerung vom Haus, werden wir sicherlich das Bad etwas verkleinern können und auch den unteren linken Raum. Es wird dann jedoch schwierig, noch ins Bad rein zukommen, da das Eltern-Schlafzimmer nicht mehr wirklich kleiner gemacht werden kann. Die Trennwand wäre dann ja auf Höhe der Treppe. Die Treppe ist hier auch mit 4 Metern angegeben. Besteht da bei einer normalen Raumhöhe noch Einsparpotenzial? Die Stufen sollen natürlich normgerecht sein.
Zur Info: Süden ist in etwa hinter dem Gebäude. Meine Freundin möchte nicht, dass das Eltern-Schlafzimmer und das Kinderzimmer nebeneinander sind. Das Bad kann zudem wegen der Gestaltung im EG nicht in die linke obere Ecke.
Habt ihr Ideen, was man noch verändern/verbessern kann?
Meine Freundin und ich haben unseren Grundriss selbst geplant und nun anhängende Zeichnung bekommen.
Die Grundmasse sind mit 11x9 angedacht. Die aktuelle Zeichnung hat leider 11x9,5. Eine Änderung haben wir bereits angefordert.
Wir sind mit dem Grundriss für das OG jedoch noch nicht ganz zufrieden:
- Bad ist zu groß
- Linker oberer Raum ist nicht optimal geschnitten
Durch die Verkleinerung vom Haus, werden wir sicherlich das Bad etwas verkleinern können und auch den unteren linken Raum. Es wird dann jedoch schwierig, noch ins Bad rein zukommen, da das Eltern-Schlafzimmer nicht mehr wirklich kleiner gemacht werden kann. Die Trennwand wäre dann ja auf Höhe der Treppe. Die Treppe ist hier auch mit 4 Metern angegeben. Besteht da bei einer normalen Raumhöhe noch Einsparpotenzial? Die Stufen sollen natürlich normgerecht sein.
Zur Info: Süden ist in etwa hinter dem Gebäude. Meine Freundin möchte nicht, dass das Eltern-Schlafzimmer und das Kinderzimmer nebeneinander sind. Das Bad kann zudem wegen der Gestaltung im EG nicht in die linke obere Ecke.
Habt ihr Ideen, was man noch verändern/verbessern kann?
Grundsätzlich ist eine Etage ohne der anderen nicht wirklich diskutierbar. Schliesslich ändert sich auch das andere Geschoss, wenn man zB die Hausgröße ändert. Die ist wiederum vom Grundstück abhängig, also muss auch der Lageplan daher. Das steht ja alles in dem angepinnten Beitrag.
Infos, Infos, Infos. Auch ein "dahinter" gibt es nicht wirklich bei einer Vogelperspektive. Sicherlich mag es für Euch eindeutig sein, weil Ihr Euer Grundstück kennt, aber wir kennen es nicht.
Ansonsten gilt auch hier die Devise: "Mach mich sauber, aber nicht nass."
Infos, Infos, Infos. Auch ein "dahinter" gibt es nicht wirklich bei einer Vogelperspektive. Sicherlich mag es für Euch eindeutig sein, weil Ihr Euer Grundstück kennt, aber wir kennen es nicht.
Ansonsten gilt auch hier die Devise: "Mach mich sauber, aber nicht nass."
Der Ursprung liegt hier: https://www.hausbau-forum.de/threads/grundriss-efh-mit-satteldach-1-5-geschossig-verbesserungen.28219/
und hat(te) folgendes EG:
"Damals" war ich mit dem Entwurf auch schon nicht zufrieden, aber er hatte immerhin noch das Qualitätsniveau "Laienentwurf". Wenn ich das aktuelle DG sehe, hat sich das noch verschlechtert: nämlich zu einem in eine Abmessungsvorgabe "eingepaßten" Traummusterhausgrundriß. Bei Aschenputtel würde es heißen, Blut sei im Schuh, die rechte Braut säße noch daheim ;-)
https://www.instagram.com/11antgmxde/
https://www.linkedin.com/company/bauen-jetzt/
und hat(te) folgendes EG:
"Damals" war ich mit dem Entwurf auch schon nicht zufrieden, aber er hatte immerhin noch das Qualitätsniveau "Laienentwurf". Wenn ich das aktuelle DG sehe, hat sich das noch verschlechtert: nämlich zu einem in eine Abmessungsvorgabe "eingepaßten" Traummusterhausgrundriß. Bei Aschenputtel würde es heißen, Blut sei im Schuh, die rechte Braut säße noch daheim ;-)
https://www.instagram.com/11antgmxde/
https://www.linkedin.com/company/bauen-jetzt/
ypg schrieb:
Mit einer Kürzung des Hauses um einen halben Meter mag ja das Bad etwas kleiner werden (wenn man nicht Grundlegendes ändert), aber auch die anderen Räume werden in Mitleidenschaft gezogen. So wird das obere linke Zimmer nicht grösser, eher kleiner...*Klopp an die Stirn*
Jetzt in Ruhe sehe ich: das Bad wird nimmer kleiner, denn die Treppe bleibt, die Tür bleibt. So ist das halt.. 9 Meter in der Tiefe funktioniert oft nicht. Habe letztens eine andere Diskussion gehabt - da war das Diskussionsthema noch extremer: 8 oder 8,5 auf 10 Meter. 9 sind es geworden, macht den Bauherren aber irgendwie auch nicht glücklich 😉
11ant schrieb:
Der Ursprung liegt hier: https://www.hausbau-forum.de/threads/grundriss-efh-mit-satteldach-1-5-geschossig-verbesserungen.28219/
und hat(te) folgendes EG:

Das EG kann ja nicht ganz das selbe geblieben sein. Hat ja jetzt 2 Erker. Mal ein Versuch, ohne das EG oder den Kniestock zu kennen mit beigefügter Treppe. 2m Grenze einfach mal bei ca. 1m von der Wand angenommen - anhand der Vorlage geschätzt.
Dusche vor dem Fenster - dass sowas geht, glaub ich, seitdem ich ähnliches wie das hier gesehen und für gut befunden habe.
Kleiner Knick in der Kinderwand ist für gleiche Zimmergröße und Tür- sowie Fensterposition wichtig. Ist verschmerzbar, denke ich.
Irre find ich 47er Wände. Ist das jetzt Standard?
kaho674 schrieb:
Mal ein Versuch, ohne das EG oder den Kniestock zu kennen mit beigefügter Treppe.Ich hatte eben auch nochmal den Entwurf angeguckt und gedacht, dass es sinnvoll wäre Bad und Schlafzimmer mit den Kinderzimmern zu tauschen...wegen des Treppenaufgangs. Dein Vorschlag sieht gut aus, finde ich.Tx-25 schrieb:
Hallo zusammen....sprach's und ward nicht mehr gesehen... 😕