Hausbau - Ratgeber
Bauherrenhilfe
- Bauherrenhilfe vor Vertragsabschluss
-- Warum einen unabhängigen Baubetreuer?
-- Vertragsgrundlagen
-- Bausumme
-- Zahlungsplan zur Kostenkontrolle
-- Pflichten des Bauherren vor Vertragsabschluss
-- Unterlagen beim Hausbau vor Vertragsabschluss
- Bauherrenhilfe nach Vertragsabschluss
-- Bauantrag bei Behörden
-- Bau-Genehmigungsverfahren bei Baubehörden
-- Bauspezifische Versicherungen
-- Bauzeitenplan
-- Baubeginn - die Letzten Pflichten der Bauherrschaft
- Bauherrenhilfe während der Bauzeit
- Gewährleistungsansprüche
- Bauabnahme
Baufinanzierung
- Baufinanzierung - Allgemeine Fragen
- Kreditarten
- Kredit-Konditionen
- Bausparen
- Staatliche Förderungen
- Verkehrswert
- Haushaltsrechnung und Bonität
Hausbau Planung
- Haustypen
- Hausbau Vorbereitungsarbeiten
- Das Baugrundstück
- Baugrund beim Hausbau
- Baurecht
- Gebäudeschutz
- Erdarbeiten und Wasserhaltung
- Stützmauern
- Einfriedung
- Untergeschoss
- Kanalisation
- Tragende Elemente
- Nichttragende Innenwände
- Fundation / Fundament
- Deckenkonstruktionen
- Dächer
- Kaminanlagen
- Treppen Rampen Leitern
- Dachbeläge und Spengler
- Fenster
- Sonnen und Wetterschutz
- Aussenputze
- Einbauten, Küchen, Türen
- Bodenbeläge und Unterlagsböden
- Parkett
- Gips, Wand, Decke
Haustechnik und Energie
- Heiztechnik
- Lüftung und Klimatechnik
- Sanitärtechnik
- Elektrotechnik
- Erneuerbare Energie
Whirlpools / Jacuzzi
Hausbau Magazin
- Baufinanzierung trotz Krise?
- Das Blockhaus
- Moderne Dämmstoffe im Vergleich
- Erker Vor- und Nachteile
- Glasflächen beim Hausbau
- Günstig ein Haus Bauen
- Mediterraner Hausbaustil
- Mehrgenerationenhaus
- Moderne Architektur
- Gartengestaltung leicht gemacht
- Traditioneller Ziegelbau
- Villa als höchster Traum
- Im Eigenheim Ruhestand geniessen
- Altbau sanieren
- Kauf einer Holzgarage
- Immobilienmakler
- Arbeitshandschuhe für den Winter
- Zuhause verschönern
- Outdoor-Plissees
- Schlafzimmer planen
- Terrassenüberdachung
- Wohngebäudeversicherung
- Girokonto für Bauherren finden
- Hauseingang gestalten
- Zaunarten und Eigenschaften
- Der perfekte Grundriss
- Sparsamer heizen im Altbau
- Einfamilienhaus smart finanzieren
- Planung einer PV-Anlage
- Neues Haus
- Immobilienfinanzierung
- Installation einer Photovoltaikanlage
- Asbest erkennen und entfernen
- Gartenpflege im Frühling – worauf achten
- Sauna im Fokus - Wellness zuhause
- Erfolgreich vermieten
- Die perfekte Winterbekleidung
- Das Niedrigenergiehaus
- Der April und seine Stürme
- Architektonische Vielfalt
- Ökologisch und nachhaltig bauen
- Das perfekte Schlafzimmer
- Nachhaltige Energieversorgung
- Zukunftsorientiert bauen
- Nachhaltigkeit beim Hausbau
- Tiny Houses
- Wärmepumpen als nachhaltige Heizvariante
- Maßgeschneiderten Kleiderschrank
- Der richtige Baukredit
- Ratgeber für erfolgreichen Hausbau
- Haus als Altersvorsorge
Do-it-yourself Anleitungen
- Verlegeanleitung für Bodenbeläge und Parkett
- Bodenbeläge und Parkett reinigen und pflegen
- Malerarbeiten am Haus
- Garten Tipps
- Umzug und Reinigung

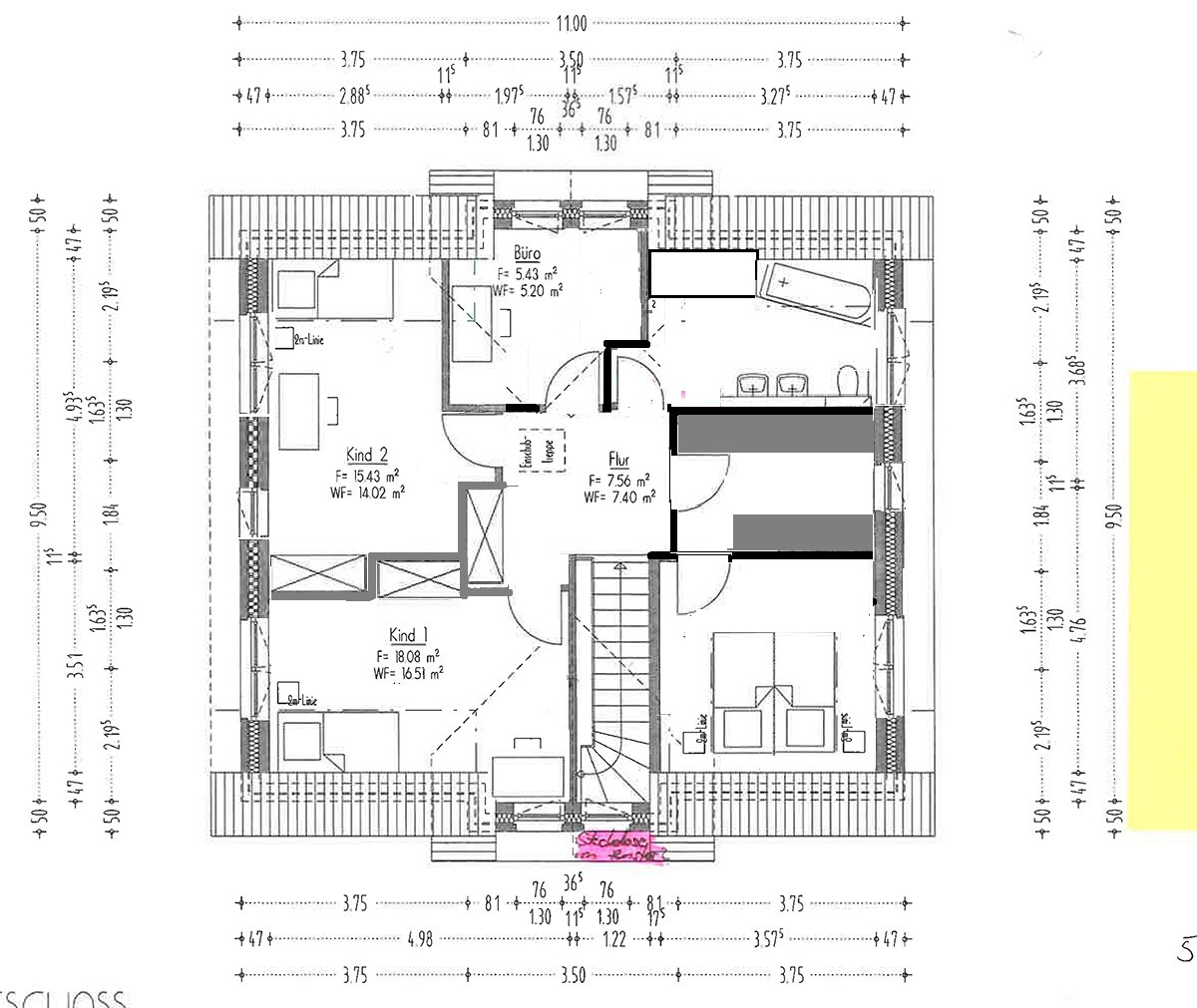
ᐅ Grundrissplanung OG mit Dachschrägen - Was verbessern?

Erstellt am: 20.11.18 09:27
T
Tx-25
Hallo zusammen.
Meine Freundin und ich haben unseren Grundriss selbst geplant und nun anhängende Zeichnung bekommen.
Die Grundmasse sind mit 11x9 angedacht. Die aktuelle Zeichnung hat leider 11x9,5. Eine Änderung haben wir bereits angefordert.

Wir sind mit dem Grundriss für das OG jedoch noch nicht ganz zufrieden:

- Bad ist zu groß
- Linker oberer Raum ist nicht optimal geschnitten

Durch die Verkleinerung vom Haus, werden wir sicherlich das Bad etwas verkleinern können und auch den unteren linken Raum. Es wird dann jedoch schwierig, noch ins Bad rein zukommen, da das Eltern-Schlafzimmer nicht mehr wirklich kleiner gemacht werden kann. Die Trennwand wäre dann ja auf Höhe der Treppe. Die Treppe ist hier auch mit 4 Metern angegeben. Besteht da bei einer normalen Raumhöhe noch Einsparpotenzial? Die Stufen sollen natürlich normgerecht sein.

Zur Info: Süden ist in etwa hinter dem Gebäude. Meine Freundin möchte nicht, dass das Eltern-Schlafzimmer und das Kinderzimmer nebeneinander sind. Das Bad kann zudem wegen der Gestaltung im EG nicht in die linke obere Ecke.

Habt ihr Ideen, was man noch verändern/verbessern kann?
P
perth
29.11.18 05:19
Ich bin sicherlich kein Grundrissexperte. Trotzdem möchte ich dir einen OG Vorschlag machen.

Grundrissplan eines Hauses mit Zimmern, Flur und Treppenhaus.


Schiebetür zum Elternschlafzimmer. Im Flur Stauraum für Bettwäsche/Handtücher/Staubsauger, größere Ankleide, größeres Büro.
Y
ypg
29.11.18 08:45
@perth
Duschen unter der 2-Meter-Linie funktionieren nicht.
Die Fenster kann man auch nicht so einfach unter die Schräge ziehen. Du ignorierst hier das Dach, kleinen Kniestock und Dachschräge.
11ant29.11.18 12:45
Das stimmt leider auffallend, jedoch: die Wanne und das Bett stehen im "Original" adäquat ungünstig.
https://www.instagram.com/11antgmxde/
https://www.linkedin.com/company/bauen-jetzt/