kaho674 schrieb:
Glückwunsch zur Baugenehmigung!
Die Änderung von matte würd ich auch sofort unterstützen.
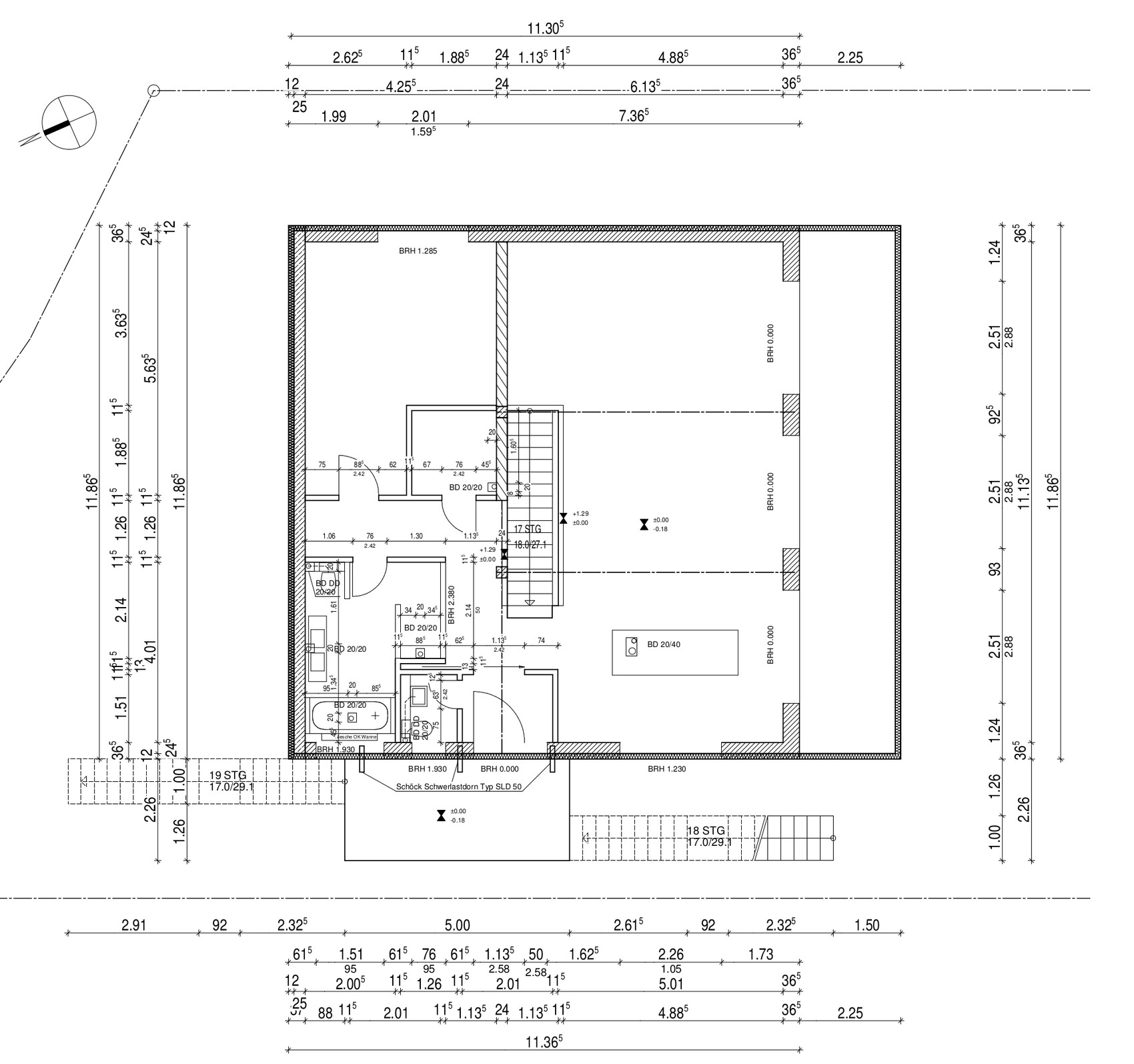
Was mich aber sehr stören würde, ist die Enge am Eingang. Man stürzt ja fast die Treppe runter, wenn man rein kommt.
Wär es meins, flöge die heilige gerade Treppe und die Kammer raus. Stück vom Keller würde abgeknappst für die 1/2 Gewendelte. Aber das ist natürlich Geschmackssache - zumal dann natürlich der Platz in der Kammer fehlt, wozu auch immer er gedacht war.
Windfang finde ich zu klein. Garderobe entsprechend auch. Das Oberlicht bei der Dusche ist super gedacht, aber eine funktionierende Garderobe wäre mir an der Stelle vermutlich wichtiger.

Ich les jetzt nicht alles nach, aber so wird es was: mit Katjas Vorschlag, der Windfang noch verlängert um mind. 1 Meter, zur Küche/Essbereich darf dann auch noch ein Stück Mauer, damit es genehmer ist
S
sichtbeton8219.10.18 08:19ENDLICH!
Am Mittwoch kam der Erdbauer mit seinem Bagger! War erst etwas skeptisch, dass der "kleine" Bagger das nicht schafft. Aber Größe ist nun mal nicht alles! Nach 1,5 Tagen war schon etwas von der Baugrube zu erkennen. Die muss zwar noch deutlich tiefer, aber bis jetzt läuft es sehr gut, da der Schiefer noch ziemlich "locker" ist.
Mit dem Start fiel uns ein Riesen Stein vom Herzen. Die Anschlussarbeiten für den Rohbau sehen auch sehr gut aus. Sind nun der großen Hoffnung dass nun alles durchflutscht... Wettertechnisch haben wir leider einen super Sommer für den Bau liegen lassen.
Finanziell drückt auch der Schuh, da wir seit Anfang des Monats das Annuitätendarlehen bedienen müssen (Zins und Tilgung) und oben darauf eine Strafe für nicht abgerufenes Darlehen zahlen dürfen. Aber gut, Vertrag ist Vertrag und es wird zu verkraften sein. Auf der anderen Seite hoffe ich auf das Baukindergeld...


Am Mittwoch kam der Erdbauer mit seinem Bagger! War erst etwas skeptisch, dass der "kleine" Bagger das nicht schafft. Aber Größe ist nun mal nicht alles! Nach 1,5 Tagen war schon etwas von der Baugrube zu erkennen. Die muss zwar noch deutlich tiefer, aber bis jetzt läuft es sehr gut, da der Schiefer noch ziemlich "locker" ist.
Mit dem Start fiel uns ein Riesen Stein vom Herzen. Die Anschlussarbeiten für den Rohbau sehen auch sehr gut aus. Sind nun der großen Hoffnung dass nun alles durchflutscht... Wettertechnisch haben wir leider einen super Sommer für den Bau liegen lassen.
Finanziell drückt auch der Schuh, da wir seit Anfang des Monats das Annuitätendarlehen bedienen müssen (Zins und Tilgung) und oben darauf eine Strafe für nicht abgerufenes Darlehen zahlen dürfen. Aber gut, Vertrag ist Vertrag und es wird zu verkraften sein. Auf der anderen Seite hoffe ich auf das Baukindergeld...
S
sichtbeton8230.10.18 14:31Ähnliche Themen