SoL schrieb:
Ich spiel das die Tage mal etwas mit Leben durch, um zu sehen, was gut passt, was vielleicht weniger gut 😀Die 15qm, die ich einsparen konnte, würde ich in einen Wintergarten Richtung Terrasse investieren. 😎haydee schrieb:
@K a t j a das Programm kommt mir bekannt vor. Juhu ich freue michKonnte nicht widerstehen - die Sucht. 😉K a t j a schrieb:
Die 15qm, die ich einsparen konnte, würde ich in einen Wintergarten Richtung Terrasse investieren. 😎
Konnte nicht widerstehen - die Sucht. 😉Dachte du bist Clean nach so langer Zeit. Ich freue mich wahnsinnig
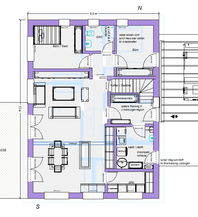
SoL schrieb:
Ich spiel das die Tage mal etwas mit Leben durch, um zu sehen, was gut passt, was vielleicht weniger gut 😀Möchte zu #52 noch die geöffnete Variante zeigen. Gefällt mir persönlich besser. Allerdings wird man hier ohne Unterzug vermutlich nicht auskommen - als Doppellinie angedeutet:Die Außentür für die Büros ist dann aber nicht mehr optional, weil sonst Arbeitskollegen zur Besprechung durch den Wohnraum latschen.
SoL schrieb:
...ich hingegen sehr viele Konferenzen habe.Ach, das sind dann alles Onlinekonferenzen? Ich dachte, Du hast regelmäßig die Bude voller Leute. 😉Mit dem 22° Dach hatte ich überlesen. Vielleicht hast Du gesehen, dass ich oben im Flur einen Glasfirst mit offenen Decken bis unters Dach geplant hatte. Für diesen Grundriss nicht unwichtig. Sonst wird es schnell dunkel im Flur. Man kann zwar auch Oberlichter bei Türen planen, aber der Effekt ist natürlich ganz anders:

Ob das mit 22° noch gut aussieht, müsste man mal 3D testen.
Ob das mit 22° noch gut aussieht, müsste man mal 3D testen.
Ähnliche Themen