B
blubbernase31.01.22 17:48@SoL ist meine PN angekommen? irgendwie taucht die unterhaltung bei mir nicht auf
Hallo @SoL ,
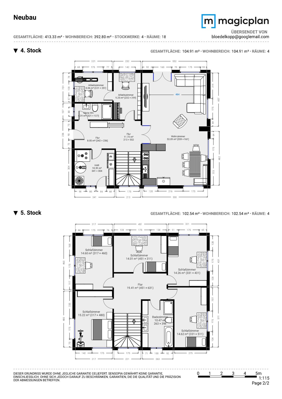
ich finde den Plan aus #33 gar nicht so schlecht. Mir fehlt für die exakte Beurteilung die Möblierung. Besonders Küche / WZ / Schlafzimmer und Bäder sollten maßstabsgetreu möbliert sein. Da der Hauswirtschaftsraum/HAR so klein ist, am besten den auch noch mit. Bei 6 Personen werdet Ihr vermutlich einen extra Warmwasserspeicher brauchen. Heizung, Stromanschluss, Wasseranschluss, Waschmaschine, Trockner - das wird glaub ich mehr als knapp. Der Flur ist recht großzügig - davon musst Du vermutlich Fläche opfern.
Bei Eurem Grundstück sehe ich relativ hohe Erschließungskosten auf Euch zu kommen. Ihr müsst erstmal eine Straße bauen, die ins Grundstück rein führt und dann noch bis zum Haus. Dazu die ganzen Leitungen. Wege, Stellplätze - das ist m.E. alles etwas weiter, als üblich. Das solltet Ihr auf dem Schirm haben.
ich finde den Plan aus #33 gar nicht so schlecht. Mir fehlt für die exakte Beurteilung die Möblierung. Besonders Küche / WZ / Schlafzimmer und Bäder sollten maßstabsgetreu möbliert sein. Da der Hauswirtschaftsraum/HAR so klein ist, am besten den auch noch mit. Bei 6 Personen werdet Ihr vermutlich einen extra Warmwasserspeicher brauchen. Heizung, Stromanschluss, Wasseranschluss, Waschmaschine, Trockner - das wird glaub ich mehr als knapp. Der Flur ist recht großzügig - davon musst Du vermutlich Fläche opfern.
Bei Eurem Grundstück sehe ich relativ hohe Erschließungskosten auf Euch zu kommen. Ihr müsst erstmal eine Straße bauen, die ins Grundstück rein führt und dann noch bis zum Haus. Dazu die ganzen Leitungen. Wege, Stellplätze - das ist m.E. alles etwas weiter, als üblich. Das solltet Ihr auf dem Schirm haben.
Ja das mit den Erschließungskosten ist leider korrekt. Aber besser so, als ein unpassenden Grundstück 🙄
Anbei die möblierten Grundrisse. Auf Wunsch meiner besseren Hälfte haben wir HAR und ein Arbeitszimmer getauscht, um dem HAR wenigstens 2qm mehr erhält.
@blubbernase : Ich darf leider keine PNs schicken, vielleicht liegt es daran, dass noch nichts angekommen ist.

Anbei die möblierten Grundrisse. Auf Wunsch meiner besseren Hälfte haben wir HAR und ein Arbeitszimmer getauscht, um dem HAR wenigstens 2qm mehr erhält.
@blubbernase : Ich darf leider keine PNs schicken, vielleicht liegt es daran, dass noch nichts angekommen ist.
S
Steinaufstein431.01.22 19:01Ich finde den Grundriss so ziemlich gut. Und es hat auch jede Person ein eigenes Zimmer. Das finde ich toll. Die Verlegung des Hauswirtschaftsraum macht meiner Meinung nach auch Sinn.
haydee schrieb:
Ich kann mir nicht helfen es fehlt Stauraum.
Wäre es nicht sinniger die beiden kleinen Arbeitszimmer zu einem großen zusammenzulegen?Gemeinsames Arbeitszimmer ist leider keine Option, da meine Frau in Ruhe planen muss, ich hingegen sehr viele Konferenzen habe.Das haben wir hier im Haus ausprobiert und aufgegeben...
Ich habe bzgl. des Allraums noch Bedenken, ob er zu laut ist (Hall) und ob man den großen Raum gemütlich bekommt. Wie ist da Eure Erfahrung?