ᐅ Grundrisscheck Stadtvilla 145qm
Erstellt am: 10.01.21 20:23
F
flitzpiepe10.01.21 20:23Hallo Bauexperten,
habe schon viel im Forum gestöbert, wertvolle Infos gefunden und da sich unser Bauprojekt konkretisiert, hoffe ich auf Euren Input zur aktuellen Grundrissplanung. Sollte es richtig losgehen, wird ein dedizierter Beitrag folgen.
Grobe Eckdaten..
..zu uns:
- M, 30, Ingenieur
- W, 30, Sozialpädagogin
keine Kids, 1 geplant
..zum Grundstück:
- Standort NRW, 45xxx
- ca. 400qm (24x17m) und kerzengerade
- Bebauungsplan vorhanden, II-Vollgeschosse, Geschossflächenzahl 0.8, Grundflächenzahl 0.4, nahezu keine Einschränkungen
- Baufenster 12x10m
.. zum Wunschhaus:
- Stadtvilla 140-150qm
- monolithisch oder WDVS
- min KfW55
- Luft-Wasser-Wärmepumpe+Zentrale Kontrollierte-Wohnraumlüftung
- offene Galerie über der Eingangstür (Wunsch, aber verzichtbar)
- kein Keller (Budget und BK >6), daher großer Hauswirtschaftsraum + Kammer
- KNX (vrsl. nur vorrüsten)
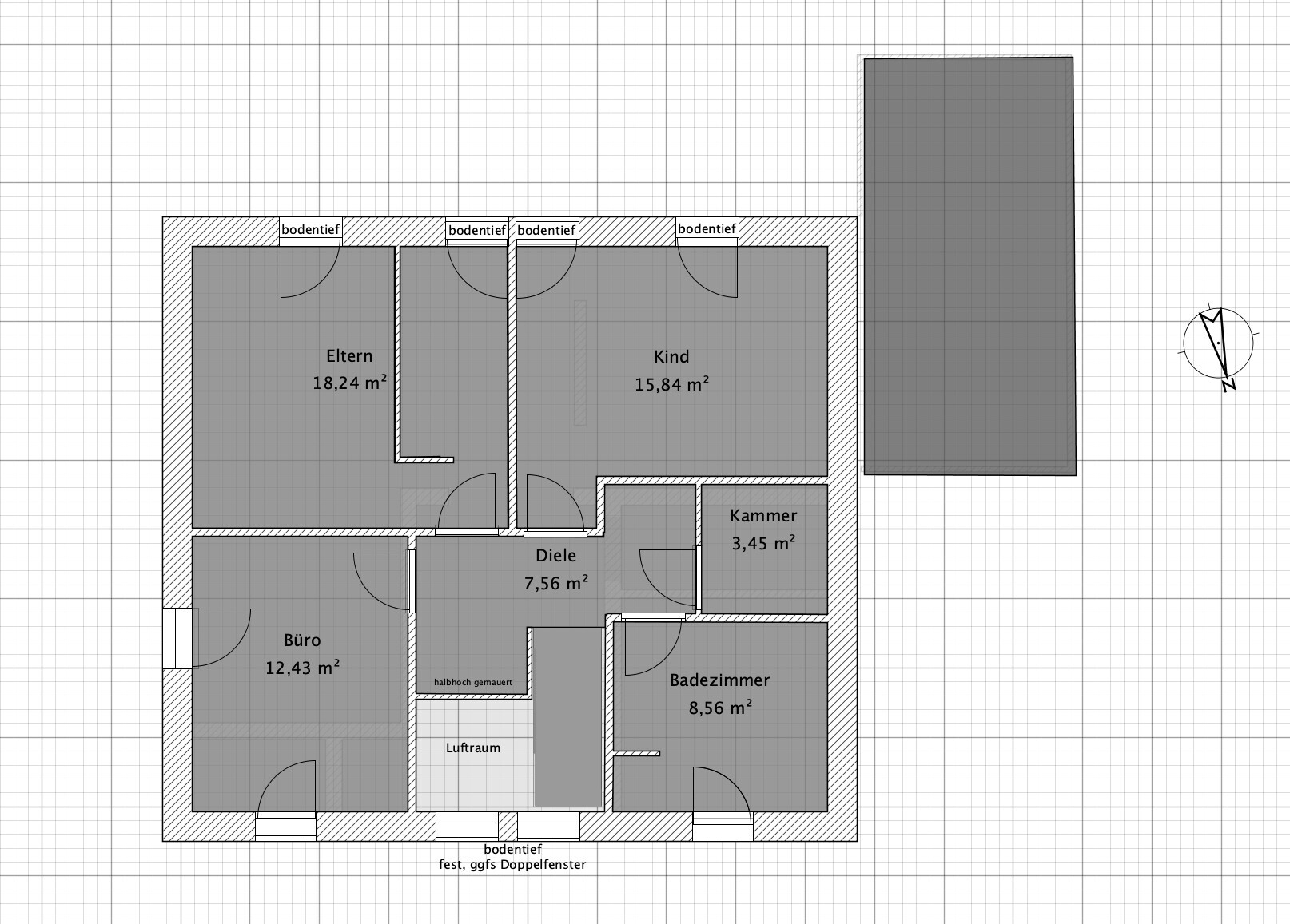
Anbei meine laienhaften Grundrisse. Schaut gern mal drauf und äußert was ihr meint.
Punkte, die mich beschäftigen und dazu gerne besondere Anregung oder Kritik:
- Ist das Wohnzimmern mit etwa 3,45m Tiefe zu schmal für die halbhohe TV Wand?
- Anzahl Fenster zum Garten? Anders kombinierbar?
- "Vorraum" Gäste-WC soll als Garderobe genutzt werden können. Ist dort zu wenig Platz?
Freue mich auf Euer Feedback!




habe schon viel im Forum gestöbert, wertvolle Infos gefunden und da sich unser Bauprojekt konkretisiert, hoffe ich auf Euren Input zur aktuellen Grundrissplanung. Sollte es richtig losgehen, wird ein dedizierter Beitrag folgen.
Grobe Eckdaten..
..zu uns:
- M, 30, Ingenieur
- W, 30, Sozialpädagogin
keine Kids, 1 geplant
..zum Grundstück:
- Standort NRW, 45xxx
- ca. 400qm (24x17m) und kerzengerade
- Bebauungsplan vorhanden, II-Vollgeschosse, Geschossflächenzahl 0.8, Grundflächenzahl 0.4, nahezu keine Einschränkungen
- Baufenster 12x10m
.. zum Wunschhaus:
- Stadtvilla 140-150qm
- monolithisch oder WDVS
- min KfW55
- Luft-Wasser-Wärmepumpe+Zentrale Kontrollierte-Wohnraumlüftung
- offene Galerie über der Eingangstür (Wunsch, aber verzichtbar)
- kein Keller (Budget und BK >6), daher großer Hauswirtschaftsraum + Kammer
- KNX (vrsl. nur vorrüsten)
Anbei meine laienhaften Grundrisse. Schaut gern mal drauf und äußert was ihr meint.
Punkte, die mich beschäftigen und dazu gerne besondere Anregung oder Kritik:
- Ist das Wohnzimmern mit etwa 3,45m Tiefe zu schmal für die halbhohe TV Wand?
- Anzahl Fenster zum Garten? Anders kombinierbar?
- "Vorraum" Gäste-WC soll als Garderobe genutzt werden können. Ist dort zu wenig Platz?
Freue mich auf Euer Feedback!
H
Hausbautraum2010.01.21 20:42Also ich bin kein Experte, deswegen will ich dich nicht verunsichern, aber ich find paar Sachen "komisch"
-Warum die Kammer vor dem Hauswirtschaftsraum?
- Die Kammer oben wäre mir auch zu groß.
Wir haben 2,5qm Speis und da sind neben jeder Menge Essen auch der Staubsauger, Putzmittel....
Aber ich weiß ja auch nicht, wozu die da ist.
- Warum ist das WC im EG so stark reinversetzt?
Müsstest mal mit Möbeln zeichnen, ob da Klo und WB gut hinpassen
- Die Ankleide kommt mir sehr schmal vor, geht das so?
Was ich dir auf jeden Fall sagen kann:
Wir haben 3,4m Wandabstand zwischen Sofawand und TV-Wand (Schrankwand) Zum gemütlichen Fernsehen für uns kein Problem. Mit Yoga vor dem TV wirds nix.
Also bissl mehr wäre vielleicht schöner, aber wir finden es okay.
-Warum die Kammer vor dem Hauswirtschaftsraum?
- Die Kammer oben wäre mir auch zu groß.
Wir haben 2,5qm Speis und da sind neben jeder Menge Essen auch der Staubsauger, Putzmittel....
Aber ich weiß ja auch nicht, wozu die da ist.
- Warum ist das WC im EG so stark reinversetzt?
Müsstest mal mit Möbeln zeichnen, ob da Klo und WB gut hinpassen
- Die Ankleide kommt mir sehr schmal vor, geht das so?
Was ich dir auf jeden Fall sagen kann:
Wir haben 3,4m Wandabstand zwischen Sofawand und TV-Wand (Schrankwand) Zum gemütlichen Fernsehen für uns kein Problem. Mit Yoga vor dem TV wirds nix.
Also bissl mehr wäre vielleicht schöner, aber wir finden es okay.
F
flitzpiepe10.01.21 21:03Hausbautraum20 schrieb:
Also ich bin kein Experte, deswegen will ich dich nicht verunsichern, aber ich find paar Sachen "komisch"Ich auch nicht, deshalb mein Beitrag.
Hausbautraum20 schrieb:
-Warum die Kammer vor dem Hauswirtschaftsraum?Wir dachten, diese als Speis bzw. erweitere Garderobe zu nutzen. Wollte eine physische Abgrenzung zum Hauswirtschaftsraum, der ja eher Technik, Wäsche, Werkzeug etc. enthält. Erreichst dadurch auch weitere Wandfläche, die man mit Regalen/Schränken zustellen kann.Ist vielleicht Quark, was wäre die Alternative?
Hausbautraum20 schrieb:
- Die Kammer oben wäre mir auch zu groß.
Wir haben 2,5qm Speis und da sind neben jeder Menge Essen auch der Staubsauger, Putzmittel....
Aber ich weiß ja auch nicht, wozu die da ist.Da wir heute in unserer Mietwohnung ein kleines Kellerabteil haben und ich sehe welcher Krempel da überall rumfliegt, hatte ich hier großzügig geplant.
Hausbautraum20 schrieb:
- Warum ist das WC im EG so stark reinversetzt?
Müsstest mal mit Möbeln zeichnen, ob da Klo und WB gut hinpassenWar ursprünglich bis zur Tür vorgezogen aber ich dachte mir "wofür?". So ggfs noch einen Kleiderhaken an die Wand, um mal eine Jacke aufzuhängen?Möbel zeichne ich mal ein!
Hausbautraum20 schrieb:
- Die Ankleide kommt mir sehr schmal vor, geht das so?Sind etwa 150cm. Ein Schrank mit etwas Abstand zur Wand ist ca 70cm - bleiben noch 80cm. Passt mit Schiebetüren doch, oder?
Hausbautraum20 schrieb:
Was ich dir auf jeden Fall sagen kann:
Wir haben 3,4m Wandabstand zwischen Sofawand und TV-Wand (Schrankwand) Zum gemütlichen Fernsehen für uns kein Problem. Mit Yoga vor dem TV wirds nix.
Also bissl mehr wäre vielleicht schöner, aber wir finden es okay.Der Abstand zwischen TV und Sofa ist m.M.n. auch nicht super kritisch. Vielmehr sorgt mich die Durchgangsbreite, wenn man diese Trennwand haben möchte. Sind da leider mit unserem TV-Board, das wir mitnehmen möchten in der Breite limitiert.
Danke erstmal für deine Gedanken
flitzpiepe schrieb:
Wir dachten, diese als Speis bzw. erweitere Garderobe zu nutzen. Wollte eine physische Abgrenzung zum Hauswirtschaftsraum, der ja eher Technik, Wäsche, Werkzeug etc. enthält. Erreichst dadurch auch weitere Wandfläche, die man mit Regalen/Schränken zustellen kann.mit den zwei Türen bekommst du den Raum aber nicht wirklich gut möbliert, oder? Zumal als Speisekammer recht weit von der Küche und als Garderobe zu weit vom Eingang.
Die Küche könnte zu tief sein. Daher wird dort, wo du das WC reingequetscht hast, hier gerne die Garderobe eingezeichnet.
Wie sind denn die Maße der einzelnen Räume? Dann kann man (und mit ordentlichen Möbeln) besser erkennen, wo zu knapp und wo zu großzügig geplant wurde.
F
flitzpiepe10.01.21 22:29Ysop*** schrieb:
Wie sind denn die Maße der einzelnen Räume? Dann kann man (und mit ordentlichen Möbeln) besser erkennen, wo zu knapp und wo zu großzügig geplant wurde.Zeichne gerne morgen mal ein paar weitere Maße ein. Grob zur Orientierung dient das Kästchenpapier. Dicke Linien sind 100cm, dünne Linien dementsprechend 20cm.
Hallo,
Orientiere Dich bitte an den angepinnten Beiträgen hier im Unterforum. Dann weißt Du auch, dass Deine Treppe um ca einen Meter mindestens zu kurz ist.
Budget und ein paar Fragen sind noch offen.
Hauswirtschaftsraum über zwei Türen, das ist nichts, nimmt Dir auch Stellfläche im Abstellraum.
Küche nicht ausreichend für eine Insel, wenn gewollt.
WZ ist viel zu eingeengt. Da gibts ja gar keine Möglichkeiten, sich mal zu verändern oder überhaupt zu bewegen. Ist auch ein dunkles Loch.
Am besten mal alles möblieren mit reellen Maßen und Möbeln.
Orientiere Dich bitte an den angepinnten Beiträgen hier im Unterforum. Dann weißt Du auch, dass Deine Treppe um ca einen Meter mindestens zu kurz ist.
Budget und ein paar Fragen sind noch offen.
Hauswirtschaftsraum über zwei Türen, das ist nichts, nimmt Dir auch Stellfläche im Abstellraum.
Küche nicht ausreichend für eine Insel, wenn gewollt.
WZ ist viel zu eingeengt. Da gibts ja gar keine Möglichkeiten, sich mal zu verändern oder überhaupt zu bewegen. Ist auch ein dunkles Loch.
Am besten mal alles möblieren mit reellen Maßen und Möbeln.
Ähnliche Themen