Hausbau - Ratgeber
Bauherrenhilfe
- Bauherrenhilfe vor Vertragsabschluss
-- Warum einen unabhängigen Baubetreuer?
-- Vertragsgrundlagen
-- Bausumme
-- Zahlungsplan zur Kostenkontrolle
-- Pflichten des Bauherren vor Vertragsabschluss
-- Unterlagen beim Hausbau vor Vertragsabschluss
- Bauherrenhilfe nach Vertragsabschluss
-- Bauantrag bei Behörden
-- Bau-Genehmigungsverfahren bei Baubehörden
-- Bauspezifische Versicherungen
-- Bauzeitenplan
-- Baubeginn - die Letzten Pflichten der Bauherrschaft
- Bauherrenhilfe während der Bauzeit
- Gewährleistungsansprüche
- Bauabnahme
Baufinanzierung
- Baufinanzierung - Allgemeine Fragen
- Kreditarten
- Kredit-Konditionen
- Bausparen
- Staatliche Förderungen
- Verkehrswert
- Haushaltsrechnung und Bonität
Hausbau Planung
- Haustypen
- Hausbau Vorbereitungsarbeiten
- Das Baugrundstück
- Baugrund beim Hausbau
- Baurecht
- Gebäudeschutz
- Erdarbeiten und Wasserhaltung
- Stützmauern
- Einfriedung
- Untergeschoss
- Kanalisation
- Tragende Elemente
- Nichttragende Innenwände
- Fundation / Fundament
- Deckenkonstruktionen
- Dächer
- Kaminanlagen
- Treppen Rampen Leitern
- Dachbeläge und Spengler
- Fenster
- Sonnen und Wetterschutz
- Aussenputze
- Einbauten, Küchen, Türen
- Bodenbeläge und Unterlagsböden
- Parkett
- Gips, Wand, Decke
Haustechnik und Energie
- Heiztechnik
- Lüftung und Klimatechnik
- Sanitärtechnik
- Elektrotechnik
- Erneuerbare Energie
Whirlpools / Jacuzzi
Hausbau Magazin
- Baufinanzierung trotz Krise?
- Das Blockhaus
- Moderne Dämmstoffe im Vergleich
- Erker Vor- und Nachteile
- Glasflächen beim Hausbau
- Günstig ein Haus Bauen
- Mediterraner Hausbaustil
- Mehrgenerationenhaus
- Moderne Architektur
- Gartengestaltung leicht gemacht
- Traditioneller Ziegelbau
- Villa als höchster Traum
- Im Eigenheim Ruhestand geniessen
- Altbau sanieren
- Kauf einer Holzgarage
- Immobilienmakler
- Arbeitshandschuhe für den Winter
- Zuhause verschönern
- Outdoor-Plissees
- Schlafzimmer planen
- Terrassenüberdachung
- Wohngebäudeversicherung
- Zaunarten und Eigenschaften
- Hauseingang gestalten
- Der perfekte Grundriss
- Sparsamer heizen im Altbau
- Einfamilienhaus smart finanzieren
- Planung einer PV-Anlage
- Neues Haus
- Immobilienfinanzierung
- Installation einer Photovoltaikanlage
- Asbest erkennen und entfernen
- Gartenpflege im Frühling – worauf achten
- Sauna im Fokus - Wellness zuhause
- Erfolgreich vermieten
- Die perfekte Winterbekleidung
- Das Niedrigenergiehaus
- Der April und seine Stürme
- Architektonische Vielfalt
- Ökologisch und nachhaltig bauen
- Das perfekte Schlafzimmer
- Nachhaltige Energieversorgung
- Zukunftsorientiert bauen
- Nachhaltigkeit beim Hausbau
- Tiny Houses
- Wärmepumpen als nachhaltige Heizvariante
- Maßgeschneiderten Kleiderschrank
- Der richtige Baukredit
- Ratgeber für erfolgreichen Hausbau
- Haus als Altersvorsorge
Do-it-yourself Anleitungen
- Verlegeanleitung für Bodenbeläge und Parkett
- Bodenbeläge und Parkett reinigen und pflegen
- Malerarbeiten am Haus
- Garten Tipps
- Umzug und Reinigung

ᐅ Grundriss Komplettsanierung Doppelhaushälfte zum 3-Etagen-Familienhaus

Erstellt am: 08.05.24 23:07
D
Draislah
D
Draislah
08.05.24 23:07
Hallo zusammen,

wir stehen vor der spannenden Aufgabe, eine Doppelhaushälfte in der Stadt zu (kern-)sanieren/renovieren und umzugestalten, um daraus ein modernes und lichtdurchflutetes Einfamilienhaus zu schaffen.

Unser Hauptaugenmerk liegt dabei auf dem offenen, möglichst großzügigen Gemeinschaftsbereich im Erdgeschoss, der eine nahtlose Verbindung zur Terrasse und zum Garten bieten soll. Im ersten Obergeschoss planen wir die Zimmer für beide Kinder, ein Bad sowie ein vielseitig nutzbares Gästezimmer oder Büro.
Das Dachgeschoss soll den Charakter einer offenen Loft mit geöffnetem Spitzboden (entfernte Geschossdecke zum Spitzboden hin) mit bodentiefen Giebeln auf mindestens einer Seite, wenn nicht sogar beiden Seiten, erhalten und als Elternreich dienen. (--> im EG und DG müssen einige Wände raus!)

Auch der Keller soll funktional und offen gestaltet werden, mit zwei abgetrennten Räumen und einem offenen Bereich.
Effizienz und erneuerbare Energien sind mir besonders wichtig bei der Gestaltung dieses Hauses
Die Doppelhaushälfte stammt aus dem Jahr 1954 und befindet sich in einem stark sanierungsbedürftigen Zustand. Sie ist voll erschlossen und voll unterkellert, mit einer Massivbauweise und einem Satteldach. Die Fenster bestehen aus Kunststoff mit Isolierglas, und der Energieausweis weist einen Endenergiebedarf von 312,4 kWh/(m²a) aus, was der Energieeffizienzklasse H entspricht. Die Heizung erfolgt derzeit über Öfen, eine Etagenheizung und Durchlauferhitzer.

Ich freue mich darauf, Feedback und Ideen von euch zu erhalten, insbesondere da wir uns noch in einer frühen Planungsphase befinden!

Grüße!
-------------------------------
Die Doppelhaushälfte ist von 1954. sanierungsbedürftige Zustand.
Baujahr / Fertigstellung: ca. 1954
Erschließung: voll erschlossen
Unterkellerung: voll unterkellert
Zustand: stark sanierungsbedürftig
Bauart: Massivbau
Dachform: Satteldach
Dach: voll ausgebaut
Fenstertyp: Kunststoff/Isolierglas
Endenergiebedarf: 312,4 kWh/(m²a)
Energieausweisklasse: H
Heizung: Ofenheizungen, Etagenheizung, Durchlauferhitzer
Gesamtwohnfläche: ca. 162 m²
Grundstücksfläche: 458 m²

Bebauungsplan/Einschränkungen
Größe des Grundstücks: 460 qm
Hang: Nein.
Baufenster, Baulinie und -grenze: Baulinie im hinteren Gartenteil
Anzahl Stellplatz: mind. 1
Geschossigkeit: 3 Geschosse
Ausrichtung: SW-NO
Im Moment ist das haus mit 3 Wohneinheiten und einem unendlich hässlichen Treppenhaus gestaltet--> Herausforderung!


Anforderungen der Bauherren
Stilrichtung: modern
Anzahl der Personen: 2 Erwachsene (40), 2 Kinder (3 + 1)
Keller: Stauraum + Wäsche
EG: Gemeinschaftsfläche --> sehr hell, offen, so großzügig wie möglich, Anbau mit maximaler Größe, Kochen-Essen-Familienleben, Blick in Garten
1.OG: Kinder + Gast
2.OG: Eltern
Homeoffice: nur 1 Elternteil, selten
Schlafgäste pro Jahr: 20
moderne Bauweise
offene Küche/Kochinsel
Kein Kamin
keine Garage, aber Fahrradschuppen/Gartenschuppen
Garten: Rasenfläche mit Beet-Umrandung

Hausentwurf
Planung: Vor-Entwurfsplanung Architektin
Preisschätzung laut Architekt/Planer: 600k
favorisierte Heiztechnik: Wärmepumpe mit Erdkörben im Garten oder Luft-Wasser

Wenn Ihr verzichten müsst, auf welche Details/Ausbauten
-könnt Ihr verzichten: Garage, Badewanne, Dachboden
-könnt Ihr nicht verzichten: moderne Energieversorgung: Photovoltaik+WP, Giebel bodentief, viele Fenster und viel Licht

Warum ist der Entwurf so geworden, wie er jetzt ist? ZB
Standardentwurf vom Planer?
Entsprechende/Welche Wünsche wurden vom Architekten umgesetzt?
Ein Gemisch aus vielen Beispielen aus div. Magazinen...
Was macht ihn in Euren Augen besonders gut oder schlecht?
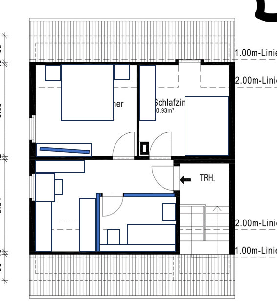
Dachgeschoss-Grundriss: zwei Schlafzimmer, Wohnküche, Bad, Technikraum, Treppenhaus

Grundriss Kellergeschoss mit Keller 1, Keller 2, Flur, Treppenhaus und Waschküche.

Mehrfamilienhaus mit rotem und grauem Ziegeldach, zwei Etagen, Vorgarten, Straßenseite.

Lageplan eines Wohnviertels: gelb markierte Parzelle mit Gebäuden 17/19 an der Straße.

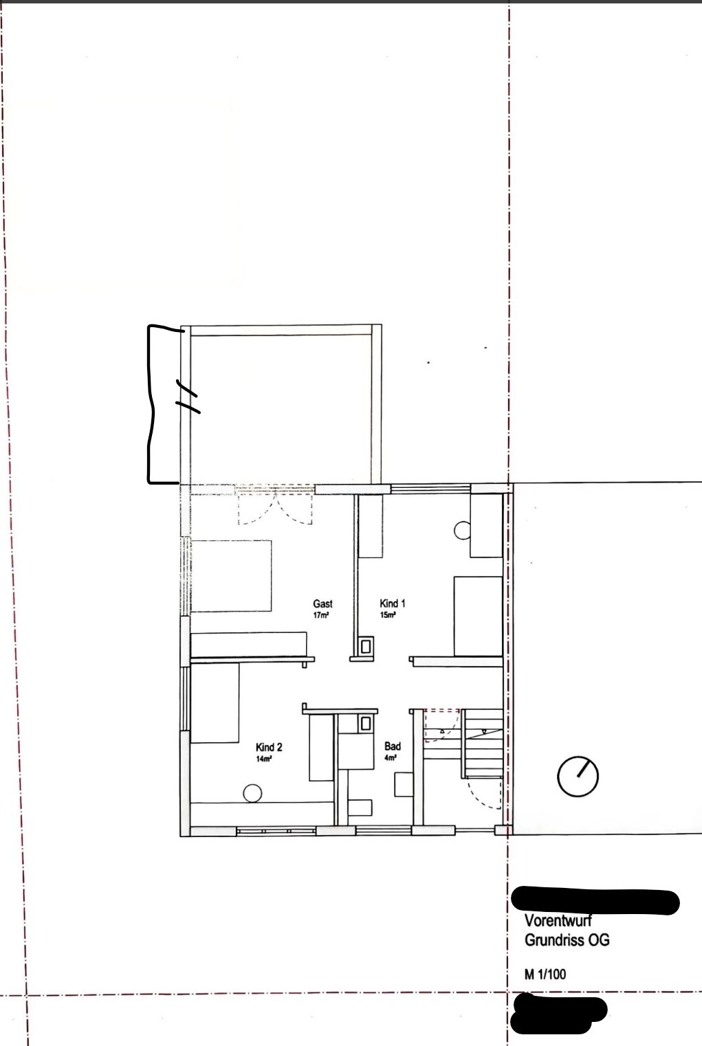
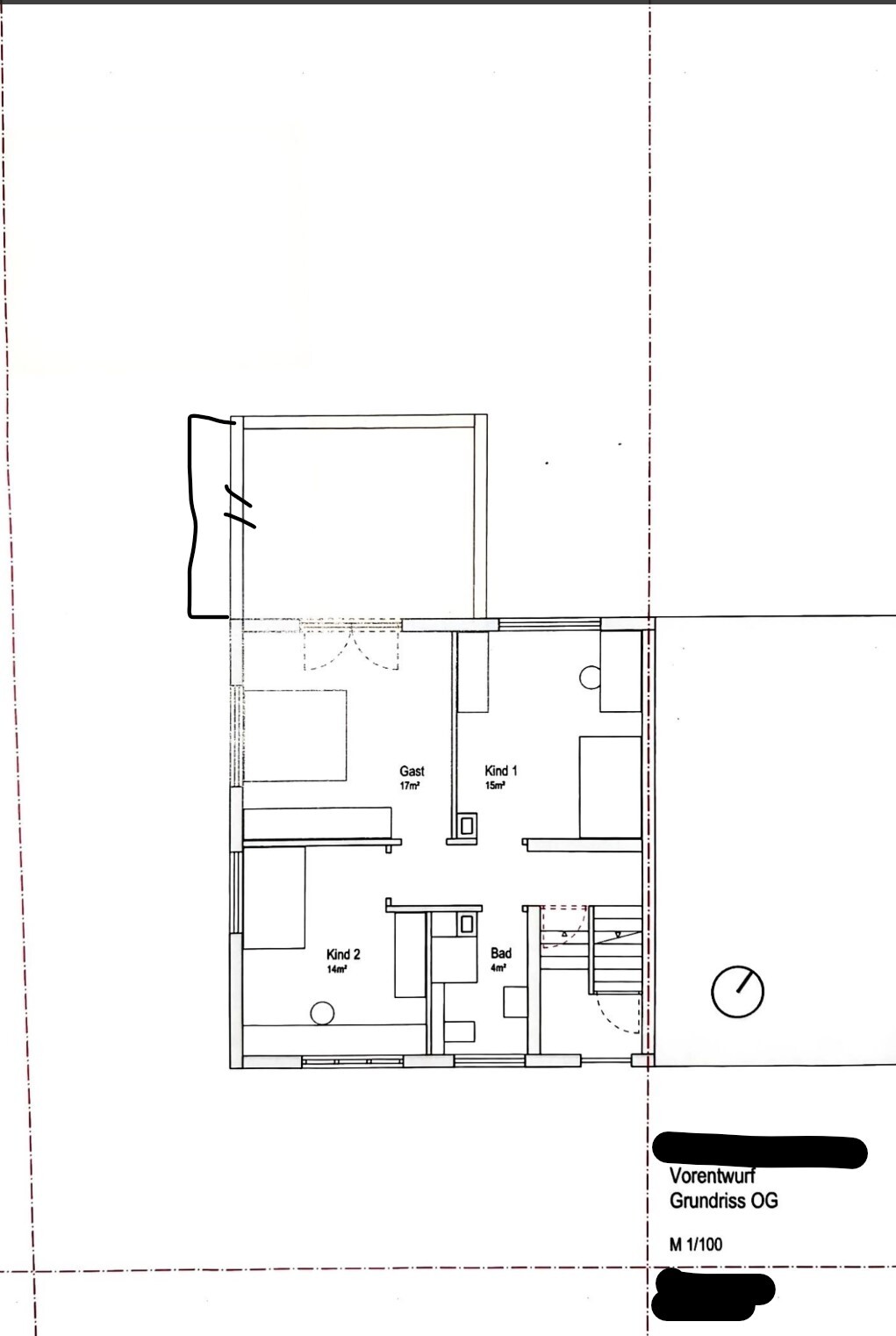
Grundriss OG: Gast 17m², Kind 1 15m², Kind 2 14m², Bad 4m², Treppenhaus.

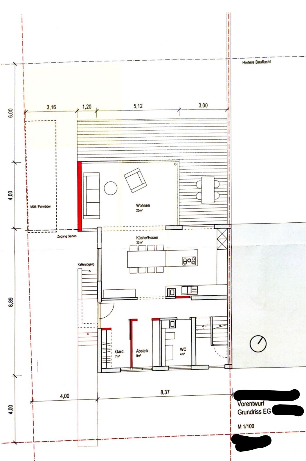
Grundriss EG: Wohnen, Küche/Essen, WC, Abstellraum, Garderobe, Terrasse

Mehrfamilienhaus mit rotem Ziegeldach, hellbeige Fassade und Bäumen im Vorgarten
H
hanghaus2023
09.05.24 10:48
Garagen kommen weg und wo kommen die Stellplätze hin?
H
hanghaus2023
09.05.24 11:08
Das DG gefällt mir gar nicht. Die 2 Kamine sind entbehrlich. Die sollten raus. Dann gehen auch die Bäder besser. Soll das im OG eine Dachterrasse werden?
H
hanghaus2023
09.05.24 12:27
Ich habe mir das so vorgestellt.


Grundriss eines mehrstöckigen Wohnhauses mit Schlafzimmern, Fluren und Treppen.
Y
ypg
09.05.24 14:45
Erinnert an das Haus von @Ben_des im Thread
https://www.hausbau-forum.de/threads/grundriss-ideen-einfamilienhaus-als-anbau-mit-3-kinderzimmern-und-buero.46349/
Das ist fast das gleiche DH, nur von 1939.

Ich gehe mal davon aus, dass nicht
Draislah schrieb:

Ein Gemisch aus vielen Beispielen aus div. Magazinen...
das zu den Wandpositionen geführt hat, sondern der Bestandsgrundriss?!

Insofern ist es doch ganz gut gelöst. Ich würde zwar nicht als erstes mit der Stellplatzverordnung kommen, aber die Erhaltung der Garagen würde auch ich sehen - auch wenn es derzeit kein Auto in der Familie gibt.
WS mich stört, ist der völlig offene Chillbereich. Nicht, dass ich konservatives denke, aber eine Wand strukturiert auch, bringt Behaglichkeit und Sichtschutz. Das fehlt mir hier. Dem TV fehlt eine Rückwand und dem Blick zur Terrasse könnte ein Sichtschutz von 2-3 Metern auch gut tun, damit man nicht auf abgestellte Dinge auf der Terrasse schauen muss. Ich würde deshalb planoben links eine 2-Meter-Wand als Sichtschutz zur Garage und Sitz-Schutz des Sofas sehen sowie planoben rechts eine 2-3 Meter lange Wand zur Terrasse. Die brauchen noch nicht einmal bis ganz zur Decke gehen.
Des Weiteren, was mich immens stören würde, sind die Nasszellen: EG reicht, 1.OG kann auch reichen, wenn im DG eben der familienfreundliche Ausgleich eines Badezimmers vorhanden ist. Ich würde auch nicht die Wanne wegdiskutieren, da gibt es genug Pro-Argumente (die medizinischen Bäder, das Waschen des Tieres, Einlegen von Wolle, Putzen von Lebensmittel oder anderes Hobby, denn in Pinterest wird nicht gegoogelt, was man noch nicht kennt )

Als Einliegerwohnung kann das DG eh nicht dienen, insofern bin ich fast bei @hanghaus2023 Version. Ich würde das ganze als Familienbad einrichten, Büro kann ins kleinere Schlafzimmer.
D
Draislah
09.05.24 16:34
hanghaus2023 schrieb:

Garagen kommen weg und wo kommen die Stellplätze hin?
Ein Stellplatz in die Einfahrt wird pro forma nachgewiesen. Wir besitzen kein Auto und planen auch nicht mit einem.
garagenterrassegartenunterkellertetagenheizungdoppelhaushälftesichtschutzeinfamilienhausspitzbodenerschlossen