S
smartsurfer11.08.16 22:24ypg schrieb:
Ich hab es mal probiert, und ich muss sagen, dass es zu möblieren geht.
Allerdings würde ich in dieses Wohnzimmer keine drei Personen reinpacken.
Möbel sind gängige Maße - Küche ist Platzhalter

Hallo Yvonne, danke, das sieht gut aus und gibt mir noch eine Anregung bzgl. der möblierung und damit auch der Lage der Fenster! Mit welchem Programm hast du das gezeichnet? Ist das frei verfügbar?
S
smartsurfer11.08.16 22:37Ich habe zwischenzeitlich noch etwas über das Bad nachgedacht. Eine Wohnung ohne Badewanne ist wohl definitiv schlechter zu vermieten, weil manch einer doch zumindest die Option haben möchten, baden zu können (Winter, Erkältung, etc.).
Daher habe ich nochmals die Wände etwas verschoben und zwei Varianten generiert.
In der ersten Variante passt alles gerade so ins Bad.
Darum habe ich nochmals mehr verschoben und damit wird dann das Bad etwas größer (vorausgesetzt die Technik passt dann noch in den verbleibenden Raum). Dafür bleibt aber kein Platz mehr für die Türe für das Küchen/Essen/Wohnen-Zimmer.(Das Kinderzimmer wird auch minimal kleiner)
Meine Frage: Was würdet ihr bevorzugen? Die Türe von der Küche/Wohnzimmer (zurückhalten von Gerüchen vom Rest der Wohnung) in Variante 1 oder das größere Bad in Variante 2?


Daher habe ich nochmals die Wände etwas verschoben und zwei Varianten generiert.
In der ersten Variante passt alles gerade so ins Bad.
Darum habe ich nochmals mehr verschoben und damit wird dann das Bad etwas größer (vorausgesetzt die Technik passt dann noch in den verbleibenden Raum). Dafür bleibt aber kein Platz mehr für die Türe für das Küchen/Essen/Wohnen-Zimmer.(Das Kinderzimmer wird auch minimal kleiner)
Meine Frage: Was würdet ihr bevorzugen? Die Türe von der Küche/Wohnzimmer (zurückhalten von Gerüchen vom Rest der Wohnung) in Variante 1 oder das größere Bad in Variante 2?
HomeByMe heißt das Onlineprogramm.
Ich sehe jetzt zwar die Entwürfe nicht, da mein iPad die Fotos nicht lädt, aber Du solltest Dir über die Zielgruppe Gedanken machen. Ich hatte wohl auch schon danach gefragt, aber keine Antwort erhalten.
Als Vermieter kannst Du nicht jeder Zielgruppe gerecht werden. Insofern musst Du überlegen, wie sinnhaft eine Wanne oder eine besser ausgestattete Küchenzeile ist. Es gibt keine eierlegende Wollmilchsau im Immobiliensektor.
Ich sehe jetzt zwar die Entwürfe nicht, da mein iPad die Fotos nicht lädt, aber Du solltest Dir über die Zielgruppe Gedanken machen. Ich hatte wohl auch schon danach gefragt, aber keine Antwort erhalten.
Als Vermieter kannst Du nicht jeder Zielgruppe gerecht werden. Insofern musst Du überlegen, wie sinnhaft eine Wanne oder eine besser ausgestattete Küchenzeile ist. Es gibt keine eierlegende Wollmilchsau im Immobiliensektor.
Ich werfe hier nochmal ein: warum drei Zimmer? Für drei Personen ist das Ganze mehr als knapp. Warum nicht einen Single oder ein Paar als Zielgruppe und dann lieber wohnliche und gut möblierbare Räume? Du mußt bedenken, auch wenn Yvonne dir jetzt eine mögliche Möblierung gezeigt hat, heißt das ja noch lange nicht, daß deine potentiellen Mieter auch genau solche Möbel haben und dann wird's problematisch.
2,7m Schrank sind immer noch nicht üppig (mir wäre das zu wenig, man hat ja auch Bettwäsche, ggf. Sommerbetten, Handtücher, Skisachen, Wintermantel etc.)
Ich persönlich würde diese Wohnungen nicht mieten, auch nicht als Single.
Das gleiche mit größeren Räumen, einem etwas komfortablerem Bad (weil das dann so groß werden kann, daß man sich auch darin bewegen kann) und ausreichend Platz für zus. Stauraum und die Geschichte schaut anders aus.
Wenn ich das richtig verfolgt habe, gibt es ja auch keinen Keller, sondern ggf. Platz in einem Speicher, oder? Ist der frei zugänglich, also ohne daß ich eine Nottreppe ausklappen muß?
2,7m Schrank sind immer noch nicht üppig (mir wäre das zu wenig, man hat ja auch Bettwäsche, ggf. Sommerbetten, Handtücher, Skisachen, Wintermantel etc.)
Ich persönlich würde diese Wohnungen nicht mieten, auch nicht als Single.
Das gleiche mit größeren Räumen, einem etwas komfortablerem Bad (weil das dann so groß werden kann, daß man sich auch darin bewegen kann) und ausreichend Platz für zus. Stauraum und die Geschichte schaut anders aus.
Wenn ich das richtig verfolgt habe, gibt es ja auch keinen Keller, sondern ggf. Platz in einem Speicher, oder? Ist der frei zugänglich, also ohne daß ich eine Nottreppe ausklappen muß?
Wie schon gesagt: ich würde da auch keine 3 Personen sehen. Als Vermieter würde ich auch keine 3 Personen nehmen, da 3 Personen auf einer Enge auch intensiver abwohnen 😉
Allerdings: wenn ich jetzt als Single diese Wohnung anschaue und mal wegblende, dass mir andere Dinge nicht gefallen, würde ich wohl oder übel auf ein kleineres Sofa zurückgreifen, da ich größeren Wohnraum eh nicht bezahlen kann
Allerdings: wenn ich jetzt als Single diese Wohnung anschaue und mal wegblende, dass mir andere Dinge nicht gefallen, würde ich wohl oder übel auf ein kleineres Sofa zurückgreifen, da ich größeren Wohnraum eh nicht bezahlen kann
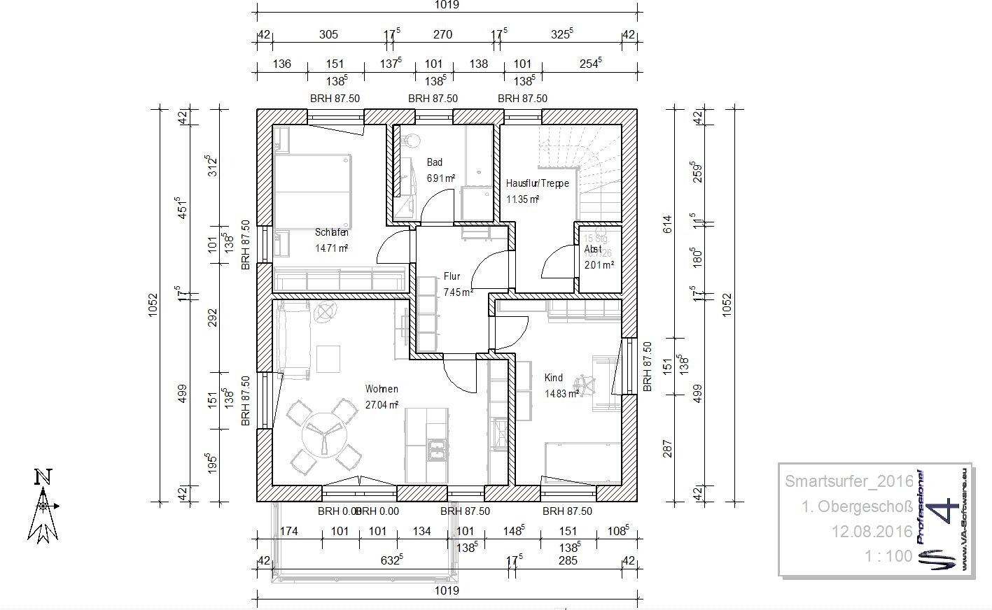
Ich habe mich auch mal getraut 😉 ... knapp 71 qm. Im OG zusätzliche Abstellkammer im Hausflur.
Wohnen/Essen/Kochen ist jetzt sogar nur gut 27 qm .. läßt sich aber meiner Meinung nach besser möblieren.
Auf jeden Fall passt im Elternbereich jetzt ein 350 cm Schrank. Im Flur passen 200 cm Schrank (Staubsauger/Bügelbrett/Wischer und Sonstiges) und eine offene Garderobe am Eingang.
Bad mit Wanne und Dusche, Waschmaschine gleich am Bad-Eingang unter fortgeführter Waschtischplatte.
Leider, @smartsurfer, erklärst du ja nicht, was deine Hauptzielgruppe ist.


Wohnen/Essen/Kochen ist jetzt sogar nur gut 27 qm .. läßt sich aber meiner Meinung nach besser möblieren.
Auf jeden Fall passt im Elternbereich jetzt ein 350 cm Schrank. Im Flur passen 200 cm Schrank (Staubsauger/Bügelbrett/Wischer und Sonstiges) und eine offene Garderobe am Eingang.
Bad mit Wanne und Dusche, Waschmaschine gleich am Bad-Eingang unter fortgeführter Waschtischplatte.
Leider, @smartsurfer, erklärst du ja nicht, was deine Hauptzielgruppe ist.
Ähnliche Themen